Bildegalleri

IG til to boliger i rekken som vist på bilde
Rælingen
Utsikt tomannsboligtomt med IG(Igangsettingstillatelse) til to boliger i rekken til SALGS, 994 kvm
Prisantydning3 250 000 kr
Nøkkelinfo
- Boligtype
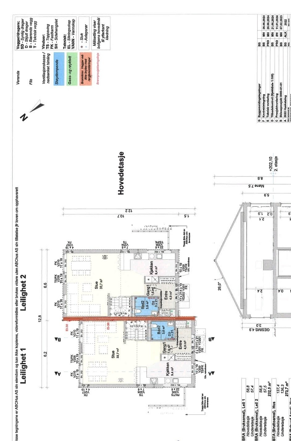
- Tomannsbolig
- Eieform
- Eier (Selveier)
- Soverom
- 6
- Bruksareal
- 232 m²
- Byggeår
- 2025
- Tomteareal
- 994 m² (eiet)
Visning
Visning etter avtale
Beliggenhet
Byggeklar tomt med IG til oppføring av to bolig i rekken. Tomt har fantastisk utsikt og ligger i nyetablert boligområde med bare nye hus og lekeplasser. Elektrisitet og rør er klar å koble til tomannsbolig. Tomt ligger i Rælinger og er 25 minutt kjørevei fra Oslo.
Adkomst
Sentralt tomannboligtomt i Rælingen med utsikt. 15 min fra Lillestrøm , 25 min fra Oslo
Beskaffenhet
Elektrisitet og rør er klar å koble til tomannsbolig. Tomt har innkjørsel og belysning (uteområder)
NB: Knappen for å vise hele beskrivelsen har kun en visuell effekt.
NB: Knappen for å vise hele beskrivelsen har kun en visuell effekt.
Ta kontakt med selger for komplett informasjon
Nyttige lenker
Nærområdet
Annonsene kan være mangelfulle i forhold til lovpålagt opplysningsplikt. Før bindende avtale inngås oppfordres interessenter til å innhente komplett informasjon fra meglerforetaket, selger eller utleier.










