Bildegalleri

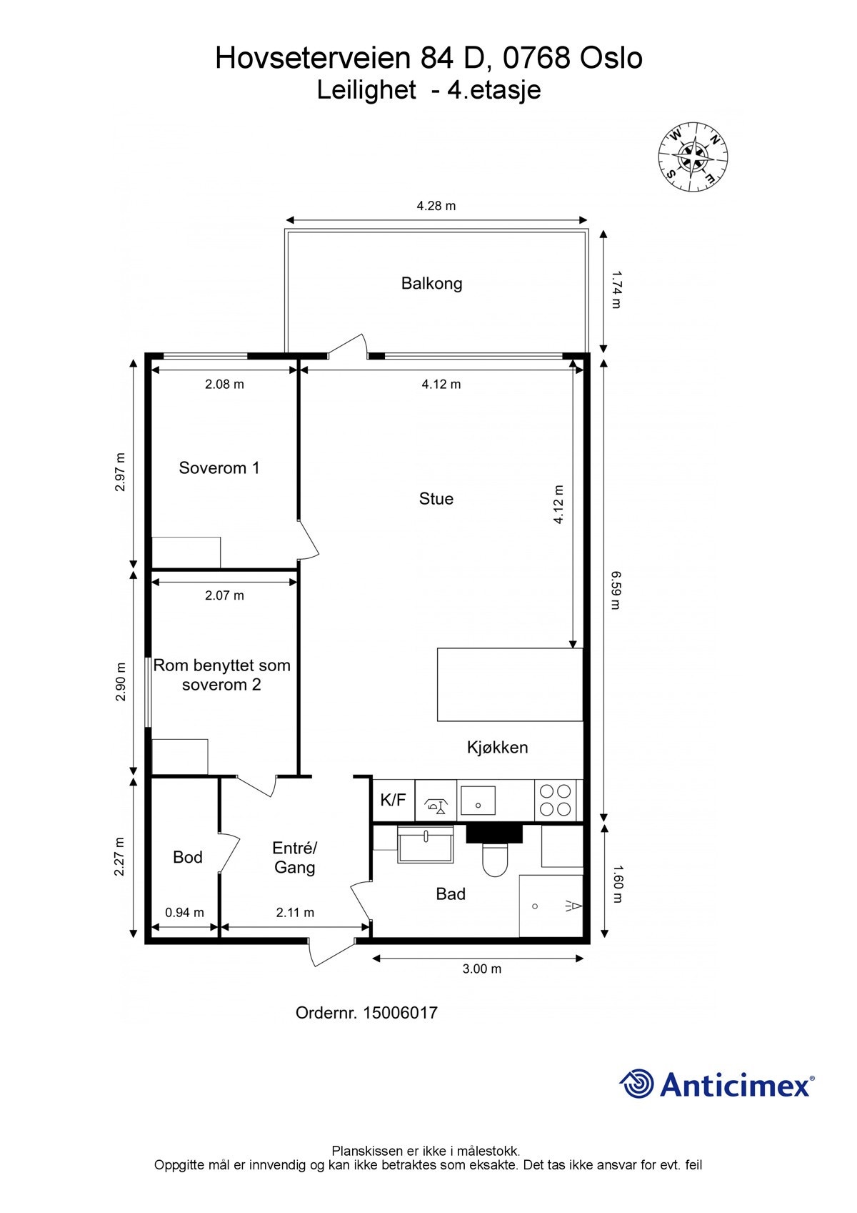
Leiligheten ligger høyt og fritt i 4. etasje med fint glassrekkverk med frostet nedre del som gir fint utsyn og begrenset innsyn.
Lys og pen 3-roms leilighet | Solrik balkong | Heis | Varmtvann inkl. | Bad 2018 | Sentral beliggenhet m/ marka som nabo
Nøkkelinfo
- Boligtype
- Leilighet
- Eieform
- Andel
- Soverom
- 2
- Primærrom
- 50 m²
- Bruksareal
- 52 m²
- Etasje
- 4
- Byggeår
- 1976
- Energimerking
- E - Rød
- Tomteareal
- 2 114 m² (eiet)
- Bruttoareal
- 57 m²
Fasiliteter
Om boligen
- Lys og pen leilighet med nordvestvendt balkong
- Fint beliggende i byggets 4. etasje med heisadkomst
- To soverom (originalt ett)
- Moderne, sosial og livlig planløsning
- Endeleilighet med ekstra vindu i gavlvegg
- Nytt gulv, nymalte vegger og himlinger i 2017
- Bad rehabilitert i regi av borettslaget i 2018
- Praktisk innvendig bod
- Veldriftet borettslag med bl.a. nyrehabiliterte fasader
- Kort vei til butikker, t-bane og Røa sentrum
Velkommen til Hovseterveien 84 D - en flott 3-roms endeleilighet med fin beliggenhet på Hovseter. Høyt og fritt i byggets 4. etasje med heisadkomst og nordvestvendt balkong med gode solforhold.
Leiligheten fremstår pen med oppussete overflater i 2017 og nytt bad fra 2018. Beliggenhet med kort vei til det meste. Marka, butikker, offentlig transport og Røa sentrum finner man like ved.
Salgsoppgaven beskriver vesentlig og lovpålagt informasjon om eiendommen
Se komplett salgsoppgaveNyttige lenker
Nærområdet
EIE eiendomsmegling Røa, Skøyen og Ullern
Annonseinformasjon
| FINN-kode | 210158037 |
|---|---|
| Sist endret | 26. mars 2021 10:35 |
| Referanse | 50210038 |
Annonsene kan være mangelfulle i forhold til lovpålagt opplysningsplikt. Før bindende avtale inngås oppfordres interessenter til å innhente komplett informasjon fra meglerforetaket, selger eller utleier.


























