Bildegalleri

Velkommen til Hovseterveien 68J - Presentert av Privatmegleren Park v/ adv. Christoffer Brekke-Hammersland og Sunniva Odlo Myrvang
Splitter ny endeleilighet i NYE Setra borettslag | Solid takhøyde og kort vei til T-bane/sentrum, marka og butikker.
Nøkkelinfo
- Boligtype
- Leilighet
- Eieform
- Andel
- Soverom
- 2
- Primærrom
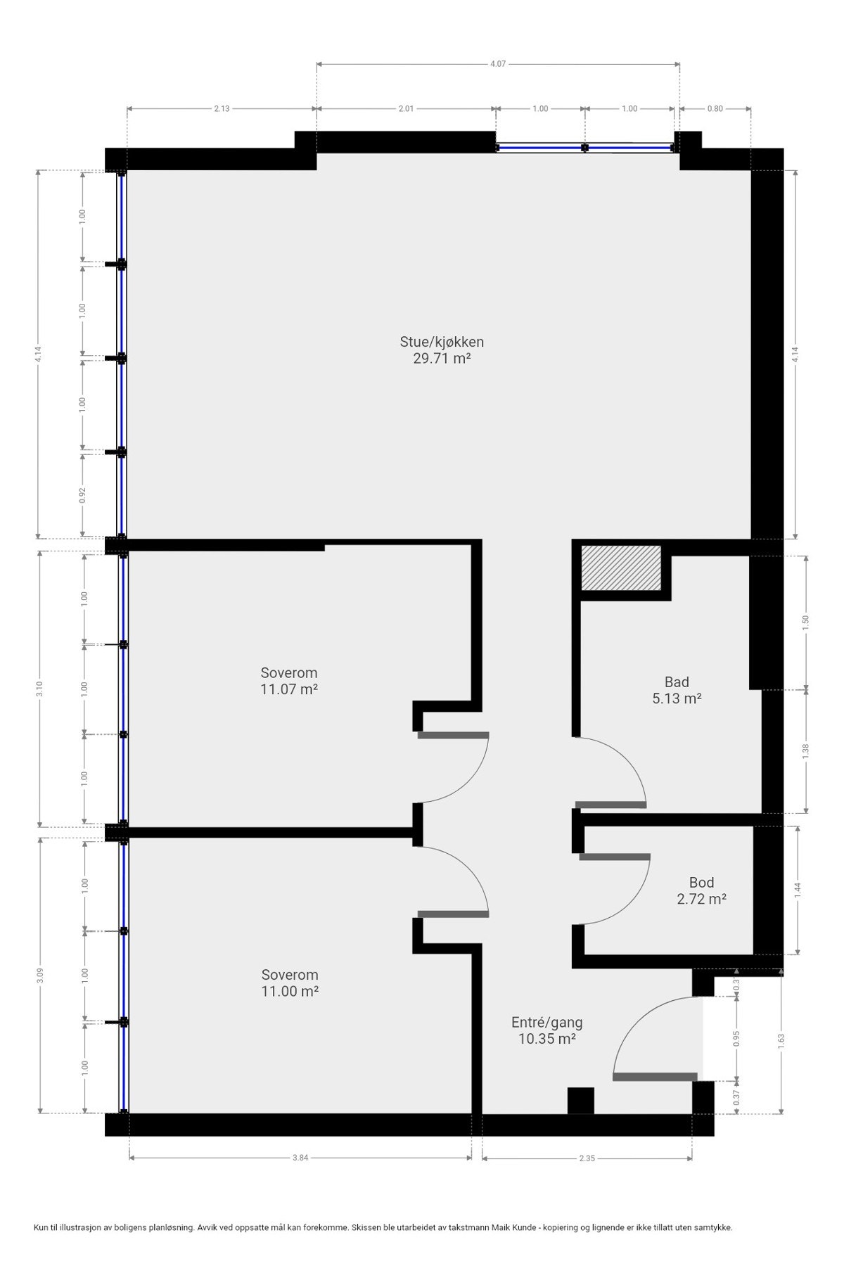
- 71 m²
- Bruksareal
- 74 m²
- Byggeår
- 1975
- Energimerking
- F - Rød
- Tomt
- Eiet
- Bruttoareal
- 83 m²
Fasiliteter
Om boligen
Privatmegleren Park v/adv. Christoffer Brekke-Hammersland og Sunniva Odlo Myrvang har gleden av å presentere Hovseterveien 68J, -en splitter ny og lekker 3-roms endeleilighet med egen inngang, store vindusflater, masse lagringsplass og direkte adgang til alt man trenger i livet.
- Renovert 3-roms fra 2020/21. Flytt rett inn i nytt og ubrukt
- Renovert fasade 2019-2021
- Selges med nyboliggaranti
- Varmtvann og kabel-TV/ internett inkludert i husleien
- Få minutters gange til T-banestoppet, 9 min til Majorstuen
- Nærbutikken, grønnsaksforhandleren og lokale pizzamesterne rett utenfor døren
- Kort og bilfri vei til 6 barnehager, barnerskole, ungdomskole og videregående skole
- Perfekt leilighet for små barnefamilier eller par
VELKOMMEN TIL VISNING - behov for privat visning, ta kontakt.
Salgsoppgaven beskriver vesentlig og lovpålagt informasjon om eiendommen
Se komplett salgsoppgaveNyttige lenker
Nærområdet

PrivatMegleren Park
Sunniva Odlo Myrvang
Annonsene kan være mangelfulle i forhold til lovpålagt opplysningsplikt. Før bindende avtale inngås oppfordres interessenter til å innhente komplett informasjon fra meglerforetaket, selger eller utleier.








































