Bildegalleri

Velkommen til Ekebergveien 226 C - En stor og innholdsrik leilighet fra 2016 med bl.a. heis og 2 garasjeplasser
Solgt
Nordstrand/Sæter
Stor og lekker selveier fra 2016 i Sæter Terrasse | Vannbåren gulvvarme | Solrikt | Balkonger | Heis | 2 garasjeplasser
Prisantydning16 800 000 kr
Nøkkelinfo
- Boligtype
- Leilighet
- Eieform
- Eier (Selveier)
- Soverom
- 3
- Primærrom
- 167 m²
- Bruksareal
- 171 m²
- Etasje
- 3
- Byggeår
- 2016
- Energimerking
- C - Mørkegrønn
- Rom
- 4
- Tomteareal
- 2 954 m² (eiet)
- Bruttoareal
- 188 m²
Fasiliteter
Balkong/Terrasse
Bredbåndstilknytning
Garasje/P-plass
Heis
Kjæledyr tillatt
Kabel-TV
Offentlig vann/kloakk
Parkett
Sentralt
Utsikt
Vaktmester-/vektertjeneste
Lademulighet
Om boligen
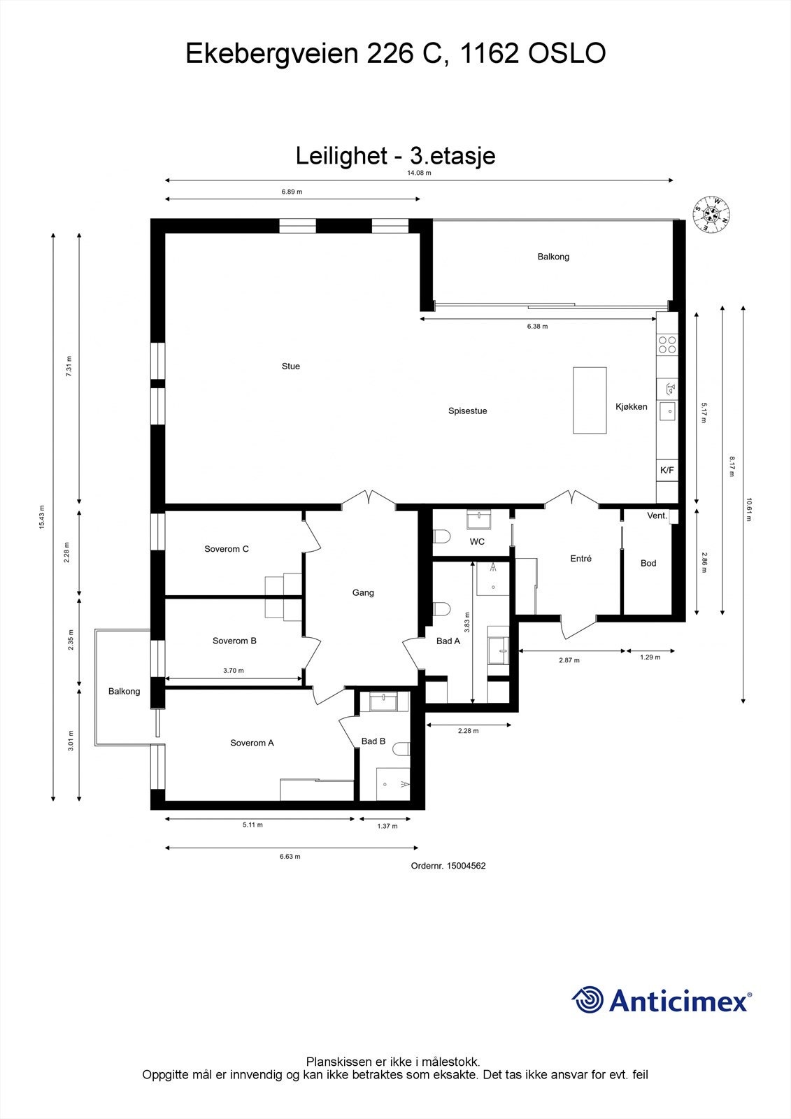
Velkommen opp til denne flotte leiligheten i Sæter Terrasse. Dette er en unik mulighet til å sikre seg en av de største leilighetene på ett plan på Sæter, i et bygg fra 2016 som har fått internasjonal oppmerksomhet for sin arkitektur. En lys, solrik og lekker leilighet med høy standard og en meget god og romslig planløsning. Leiligheten ligger i 3. etasje og inneholder entré, garderoberom, gjestetoalett, 2 bad, 3 soverom, allrom/tv-stue og stue/spisestue på over 80 kvm. med åpen kjøkkenløsning og utgang til vestvendt balkong. Vannbåren gulvvarme i alle rom. Det er også balkong mot syd, stor ekstra kjellerbod og 2 garasjeplasser med opplegg for el. bil ladere. Heis til alle etasjer. Det gode service- og kollektivtilbudet på Sæter ligger rett utenfor døren.
NB: Knappen for å vise hele beskrivelsen har kun en visuell effekt.
NB: Knappen for å vise hele beskrivelsen har kun en visuell effekt.
Salgsoppgaven beskriver vesentlig og lovpålagt informasjon om eiendommen
Se komplett salgsoppgaveNyttige lenker
Nærområdet
Krogsveen Nordstrand
Verdien av en god megler.
Annonseinformasjon
| FINN-kode | 207848652 |
|---|---|
| Sist endret | 16. mai 2021 12:33 |
| Referanse | KR44.20241 |
Annonsene kan være mangelfulle i forhold til lovpålagt opplysningsplikt. Før bindende avtale inngås oppfordres interessenter til å innhente komplett informasjon fra meglerforetaket, selger eller utleier.





























































