Bildegalleri

EiendomsMegler1 Mosjøen har gleden av å formidle denne 6-mannsboligen i Skul-Svends veg 6 A-F.
Solgt
Olderskog
Sjeldent investeringsobjekt med rehabiliteringsbehov på Olderskog // 6 rekkehus selges samlet | P-plasser på egen tomt
Prisantydning7 500 000 kr
Nøkkelinfo
- Boligtype
- Rekkehus
- Eieform
- Eier (Selveier)
- Soverom
- 18
- Primærrom
- 526 m²
- Bruksareal
- 829 m²
- Byggeår
- 1962
- Rom
- 30
- Tomteareal
- 1 714 m² (eiet)
- Bruttoareal
- 933 m²
Fasiliteter
Balkong/Terrasse
Garasje/P-plass
Offentlig vann/kloakk
Peis/Ildsted
Utsikt
Sentralt
Om boligen
EiendomsMegler 1 Nord-Norge AS følger helsemyndighetens anbefalinger. Visningstidspunkt må derfor avtales direkte med megler for tildeling av tidspunkt. Benytt visningspåmelding til høyre i annonsen.
Vi har gleden av å formidle denne 6-mannsboligen på Olderskog. Boligen ble oppført i 1962 og vært benyttet som utleiebolig de senere år for Vefsn Kommune. Eiendommen har behov for omfattende rehabilitering innvending som utvendig. Vedlagt i salgsoppgaven ligger forslag for rehabilitering utarbeidet av arkitektfirma.
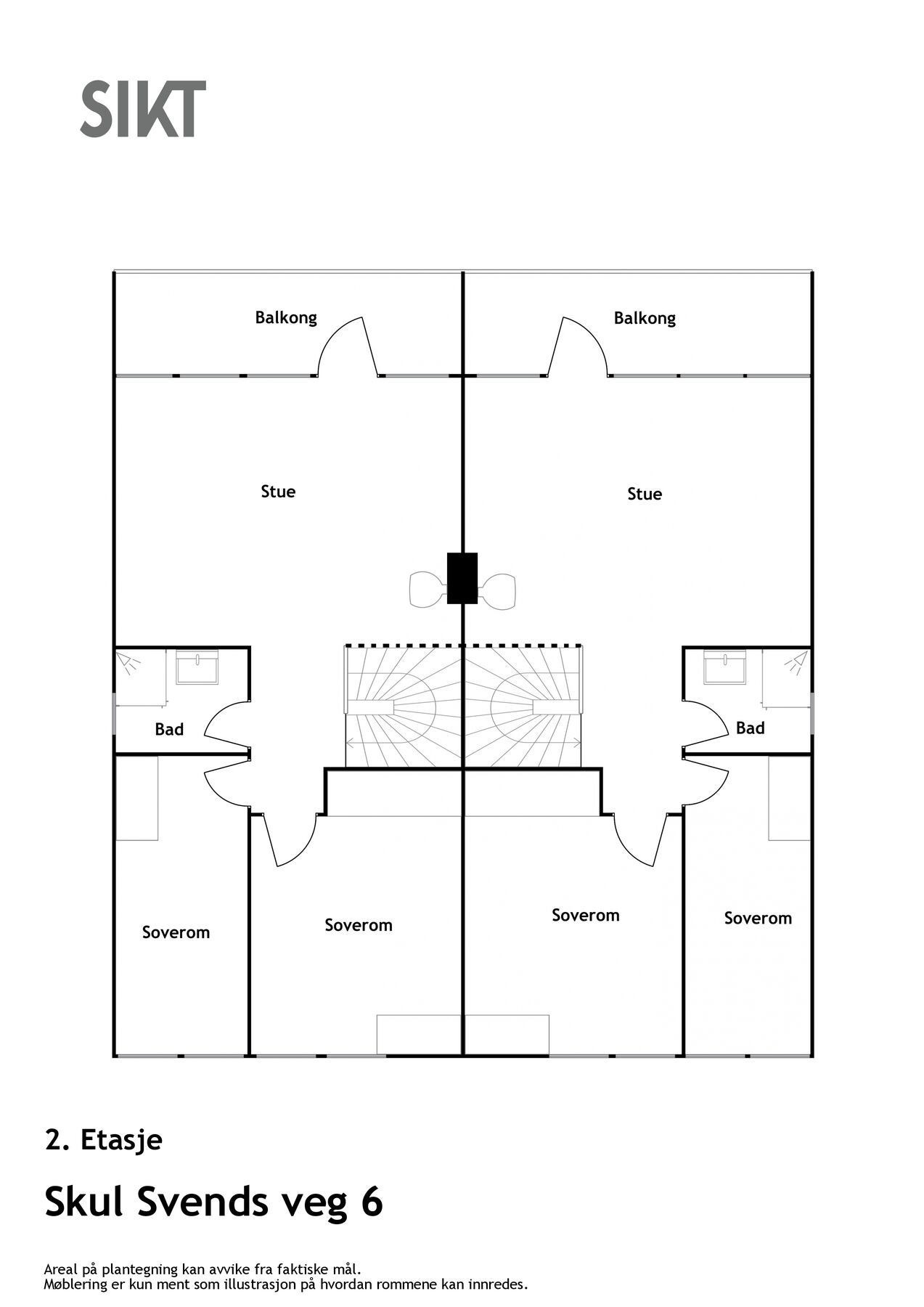
Rekkehusene går over 2 etasjer + kjeller og har et totalt BRA på ca. 829 m². Leilighetene har samme planløsning med 3 soverom, WC, vaskerom, bad, kjøkken og 2 stuer. I tillegg er det en sør-vestvendt terrasse i første etasje og en balkong i andre etasje med gode solforhold utover dagen.
Eiendommen ligger fint til på Olderskog med kort vei til nærbutikk og barneskole barneskole like ved eiendommen.
NB! Alle bud som inngis etter annonsert fellesvisning må ha en akseptfrist på minst 2 timer. Budfrister kan kun settes mellom kl 08:00 - 15:30 i hverdager.
Er dette noe for deg? Last ned salgsoppgaven og kontakt meglere for å avtale visning!
Vi har gleden av å formidle denne 6-mannsboligen på Olderskog. Boligen ble oppført i 1962 og vært benyttet som utleiebolig de senere år for Vefsn Kommune. Eiendommen har behov for omfattende rehabilitering innvending som utvendig. Vedlagt i salgsoppgaven ligger forslag for rehabilitering utarbeidet av arkitektfirma.
Rekkehusene går over 2 etasjer + kjeller og har et totalt BRA på ca. 829 m². Leilighetene har samme planløsning med 3 soverom, WC, vaskerom, bad, kjøkken og 2 stuer. I tillegg er det en sør-vestvendt terrasse i første etasje og en balkong i andre etasje med gode solforhold utover dagen.
Eiendommen ligger fint til på Olderskog med kort vei til nærbutikk og barneskole barneskole like ved eiendommen.
NB! Alle bud som inngis etter annonsert fellesvisning må ha en akseptfrist på minst 2 timer. Budfrister kan kun settes mellom kl 08:00 - 15:30 i hverdager.
Er dette noe for deg? Last ned salgsoppgaven og kontakt meglere for å avtale visning!
NB: Knappen for å vise hele beskrivelsen har kun en visuell effekt.
NB: Knappen for å vise hele beskrivelsen har kun en visuell effekt.
Salgsoppgaven beskriver vesentlig og lovpålagt informasjon om eiendommen
Se komplett salgsoppgaveNyttige lenker
Nærområdet
EiendomsMegler 1 Mosjøen
Vi loser deg trygt gjennom hele boligsalget
Annonseinformasjon
| FINN-kode | 205853043 |
|---|---|
| Sist endret | 14. mars 2022 11:35 |
| Referanse | 15210002 |
Annonsene kan være mangelfulle i forhold til lovpålagt opplysningsplikt. Før bindende avtale inngås oppfordres interessenter til å innhente komplett informasjon fra meglerforetaket, selger eller utleier.
















































