Bildegalleri

Notar v/Lillian Tunge har fått for salg en meget kjekk leilighet i Olabakken 2
Solgt
Ganddal
PÅMELDINGVISNING 19.01 - Lys og trivelig endeleilighet med god planløsning - 2 soverom - Heis og parkering i anlegg
Prisantydning2 290 000 kr
Nøkkelinfo
- Boligtype
- Leilighet
- Eieform
- Eier (Selveier)
- Soverom
- 2
- Primærrom
- 76 m²
- Bruksareal
- 80 m²
- Etasje
- 2
- Byggeår
- 1991
- Energimerking
- F - Rød
- Rom
- 3
- Tomteareal
- 2 774 m² (eiet)
- Bruttoareal
- 89 m²
Fasiliteter
Balkong/Terrasse
Barnevennlig
Garasje/P-plass
Heis
Kjæledyr tillatt
Rolig
Sentralt
Turterreng
Lademulighet
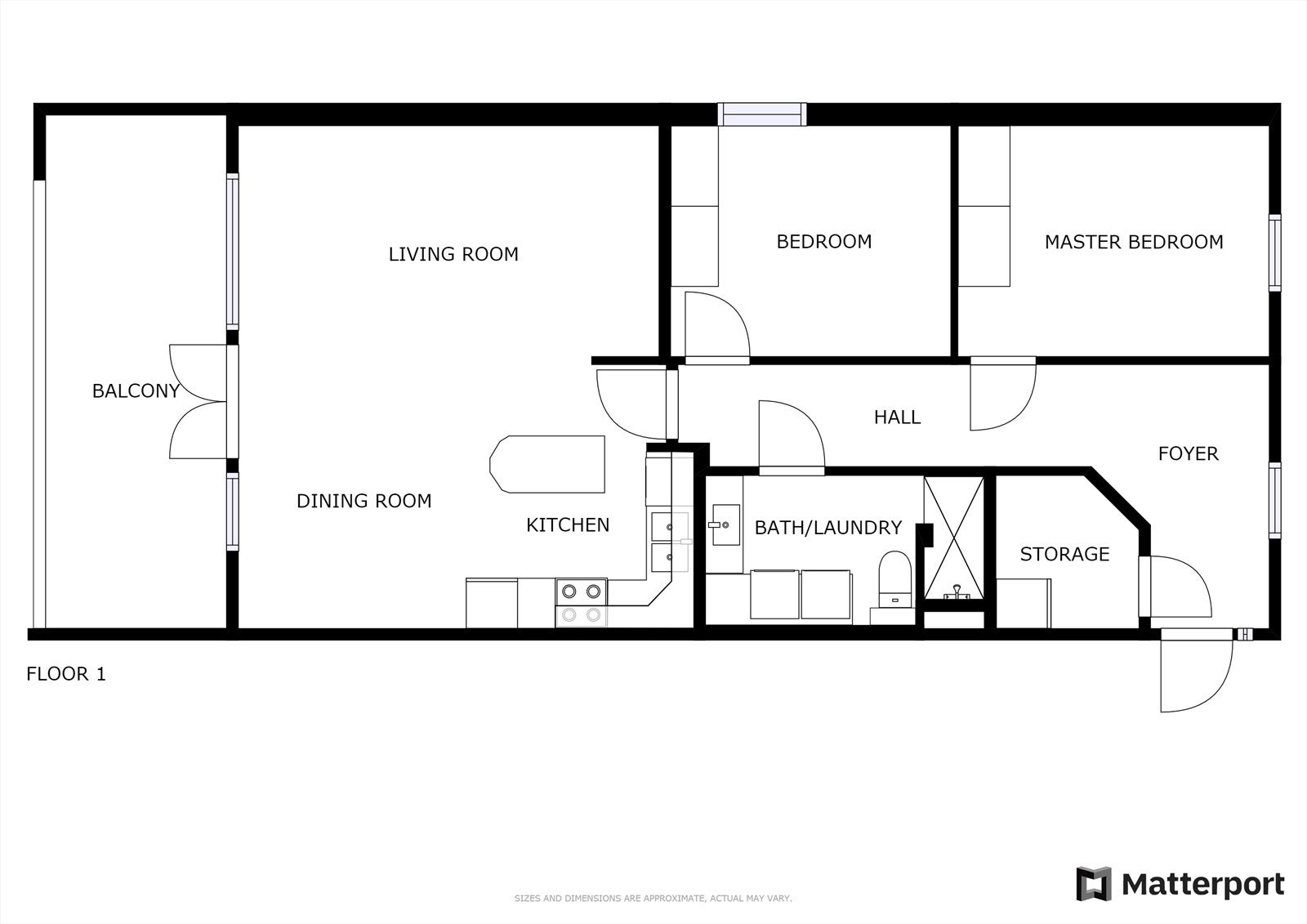
Om boligen
Notar v/Lillian Tunge har gleden av å presentere Olabakken 2, en lys og kjekk leilighet med nærhet til det meste. Verdt å nevne:
- God beliggenhet i enden av blokkens 2.etasje
- Romslig og kjekk planløsning hvor alle rom er av god størrelse
- Flott badet som ble oppgradert i 2015 med bla. nye våtromsplater på vegg og innredning
- Koselig flislagt balkong
- Flott parkett i gang, stue og kjøkken
- Heis i bygget
- Fast parkeringsplass og bod i underetasjen (mulighet for elbil lading)
- Sameiet har nylig gått i gang med rehabilitering av fasaden (i følge selger vil ikke fellesgjeld/felleskostnader øke mer i forbindelse med dette)
Alt i alt - en meget kjekk leilighet med nærhet til det aller meste! Velkommen på visning
- God beliggenhet i enden av blokkens 2.etasje
- Romslig og kjekk planløsning hvor alle rom er av god størrelse
- Flott badet som ble oppgradert i 2015 med bla. nye våtromsplater på vegg og innredning
- Koselig flislagt balkong
- Flott parkett i gang, stue og kjøkken
- Heis i bygget
- Fast parkeringsplass og bod i underetasjen (mulighet for elbil lading)
- Sameiet har nylig gått i gang med rehabilitering av fasaden (i følge selger vil ikke fellesgjeld/felleskostnader øke mer i forbindelse med dette)
Alt i alt - en meget kjekk leilighet med nærhet til det aller meste! Velkommen på visning
NB: Knappen for å vise hele beskrivelsen har kun en visuell effekt.
NB: Knappen for å vise hele beskrivelsen har kun en visuell effekt.
Salgsoppgaven beskriver vesentlig og lovpålagt informasjon om eiendommen
Se komplett salgsoppgaveNærområdet
Notar Sentrum
Annonseinformasjon
| FINN-kode | 200381162 |
|---|---|
| Sist endret | 23. jan. 2021 11:23 |
| Referanse | NO12.20309 |
Annonsene kan være mangelfulle i forhold til lovpålagt opplysningsplikt. Før bindende avtale inngås oppfordres interessenter til å innhente komplett informasjon fra meglerforetaket, selger eller utleier.

























