Bildegalleri

Velkommen til Bjørnenga 2D! Enderekkehus av ypperste klasse.
Inaktiv
Lekkert enderekkehus over 3 plan - 3 soverom - 2 bad - Solrike uteplasser - Garasje - Svært barnevennlig strøk - MÅ ses!
Prisantydning11 950 000 kr
Nøkkelinfo
- Boligtype
- Rekkehus
- Eieform
- Selveier
- Soverom
- 3
- Primærrom
- 118 m²
- Bruksareal
- 123 m²
- Etasje
- 3
- Byggeår
- 2016
- Energimerking
- B - Mørkegrønn
- Rom
- 4
- Tomteareal
- 70 m² (eiet)
Fasiliteter
Alarm
Balkong/Terrasse
Barnevennlig
Bredbåndstilknytning
Garasje/P-plass
Hage
Kjæledyr tillatt
Kabel-TV
Rolig
Sentralt
Utsikt
Bademulighet
Lademulighet
Visning
Ta kontakt med megler dersom du ønsker å se boligen.
Sammen skal vi sikre trygge visninger.
Husk også å lese salgsoppgave før visning.
VisningspåmeldingOm boligen
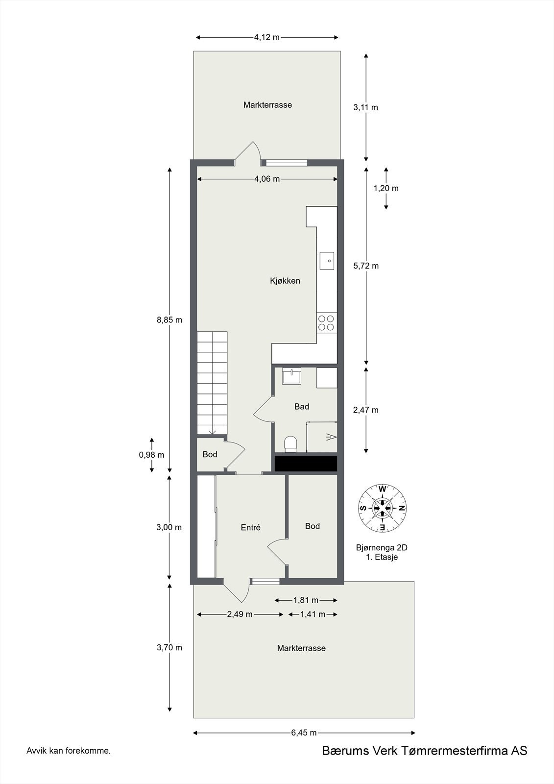
Bjørnenga 2D er et enderekkehus av ypperste kvalitet, som sto ferdig i 2016. Gj.gående høy standard og en planløsning som passer alle familier. Flotte uteplasser/balkonger på begge sider av huset. I første etg. er det en romslig entré med innbygde garderobeskap og bod, flislagt bad og et lekkert spisekjøkken med utgang til hyggelig uteplass. I andre etasje er det lys stue med utgang til vestvendt balkong + soverom/kontor. Tredje etasje har to romslige soverom og et tiltalende bad. I Bjørnenga 2d er behovet for oppgraderinger/vedlikehold minimalt. Oppvarming m/ vannbåren gulvvarme og varmtvann via fjernvarme. Balansert ventilasjon gir god luftkvalitet. Hagen og tomten er pent opparbeidet. Lekeplass rett utenfor døren!
NB: Knappen for å vise hele beskrivelsen har kun en visuell effekt.
NB: Knappen for å vise hele beskrivelsen har kun en visuell effekt.
Salgsoppgaven beskriver vesentlig og lovpålagt informasjon om eiendommen
Se komplett salgsoppgaveNyttige lenker
Nærområdet
Nordvik Bærum
Annonseinformasjon
| FINN-kode | 200311017 |
|---|---|
| Sist endret | 24. des. 2020 13:58 |
| Referanse | NOP56.20239 |
Annonsene kan være mangelfulle i forhold til lovpålagt opplysningsplikt. Før bindende avtale inngås oppfordres interessenter til å innhente komplett informasjon fra meglerforetaket, selger eller utleier.







































