Bildegalleri

Nordvik Eiendomsmegling v/ Håvard A. Bjerke presenterer Inges Gate 23b.
Solgt
Lillestrøm - Vigernes
Lekker, innholdsrik familiebolig med 5 soverom - Visning avlyst - Boligen er solgt!
Prisantydning10 250 000 kr
Nøkkelinfo
- Boligtype
- Tomannsbolig
- Eieform
- Eier (Selveier)
- Soverom
- 5
- Primærrom
- 150 m²
- Bruksareal
- 193 m²
- Etasje
- 2
- Byggeår
- 2020
- Energimerking
- B - Oransje
- Rom
- 7
- Tomteareal
- 441 m² (eiet)
Fasiliteter
Balkong/Terrasse
Bredbåndstilknytning
Garasje/P-plass
Golfbane
Hage
Parkett
Peis/Ildsted
Rolig
Sentralt
Lademulighet
Om boligen
"Du går aldri aleine til Åråsen", synger supporterne i LSK, og fra denne flotte eiendommen er det kun en kort spasertur bort til stadion. Deler av overskuddet fra salget av boligen går faktisk til sportsklubben, noe som kan være fint å tenke på når lysene tennes på kampdagen. Fire LSK-drakter og sesongkort ligger allerede klare for den heldige, nye huseier, og som om ikke det var nok så følger det med flyttehjelp og husvask i 1 år.
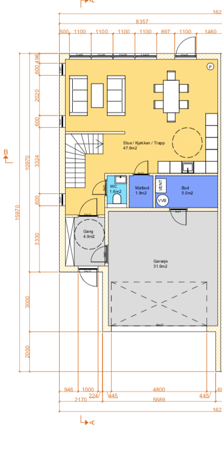
Inges gate 23 B er en innholdsrik, lekker halvpart av en vertikaldelt tomannsbolig fra 2020, med høy standard og eksklusive løsninger. Boligen ligger i barnevennlige, attraktive omgivelser, og det tilhører solrik hage, stor terrasse og integrert garasje. I første etasje er det entré, wc, bod, stue og kjøkken. Andre etasje har stue, vaskerom, to bad og fem sov.
Inges gate 23 B er en innholdsrik, lekker halvpart av en vertikaldelt tomannsbolig fra 2020, med høy standard og eksklusive løsninger. Boligen ligger i barnevennlige, attraktive omgivelser, og det tilhører solrik hage, stor terrasse og integrert garasje. I første etasje er det entré, wc, bod, stue og kjøkken. Andre etasje har stue, vaskerom, to bad og fem sov.
NB: Knappen for å vise hele beskrivelsen har kun en visuell effekt.
NB: Knappen for å vise hele beskrivelsen har kun en visuell effekt.
Salgsoppgaven beskriver vesentlig og lovpålagt informasjon om eiendommen
Se komplett salgsoppgaveNyttige lenker
Nærområdet
Nordvik Lillestrøm
Annonseinformasjon
| FINN-kode | 196649060 |
|---|---|
| Sist endret | 15. des. 2020 14:10 |
| Referanse | NOP60.20367 |
Annonsene kan være mangelfulle i forhold til lovpålagt opplysningsplikt. Før bindende avtale inngås oppfordres interessenter til å innhente komplett informasjon fra meglerforetaket, selger eller utleier.





















































