Bildegalleri

Webmegling v/ Silje Lavik har gleden av å presentere Conradis gate 5!
Solgt
Tønsberg sentrum - Lekker og nyoppusset leilighet i 4.etasje! Balkong, heis & parkering i parkeringshus.
Prisantydning3 290 000 kr
Nøkkelinfo
- Boligtype
- Leilighet
- Eieform
- Andel
- Soverom
- 1
- Primærrom
- 62 m²
- Bruksareal
- 62 m²
- Etasje
- 4
- Byggeår
- 1989
- Energimerking
- D - Rød
- Rom
- 2
- Renovert år
- 2020
- Tomteareal
- 2 174 m² (eiet)
- Bruttoareal
- 65 m²
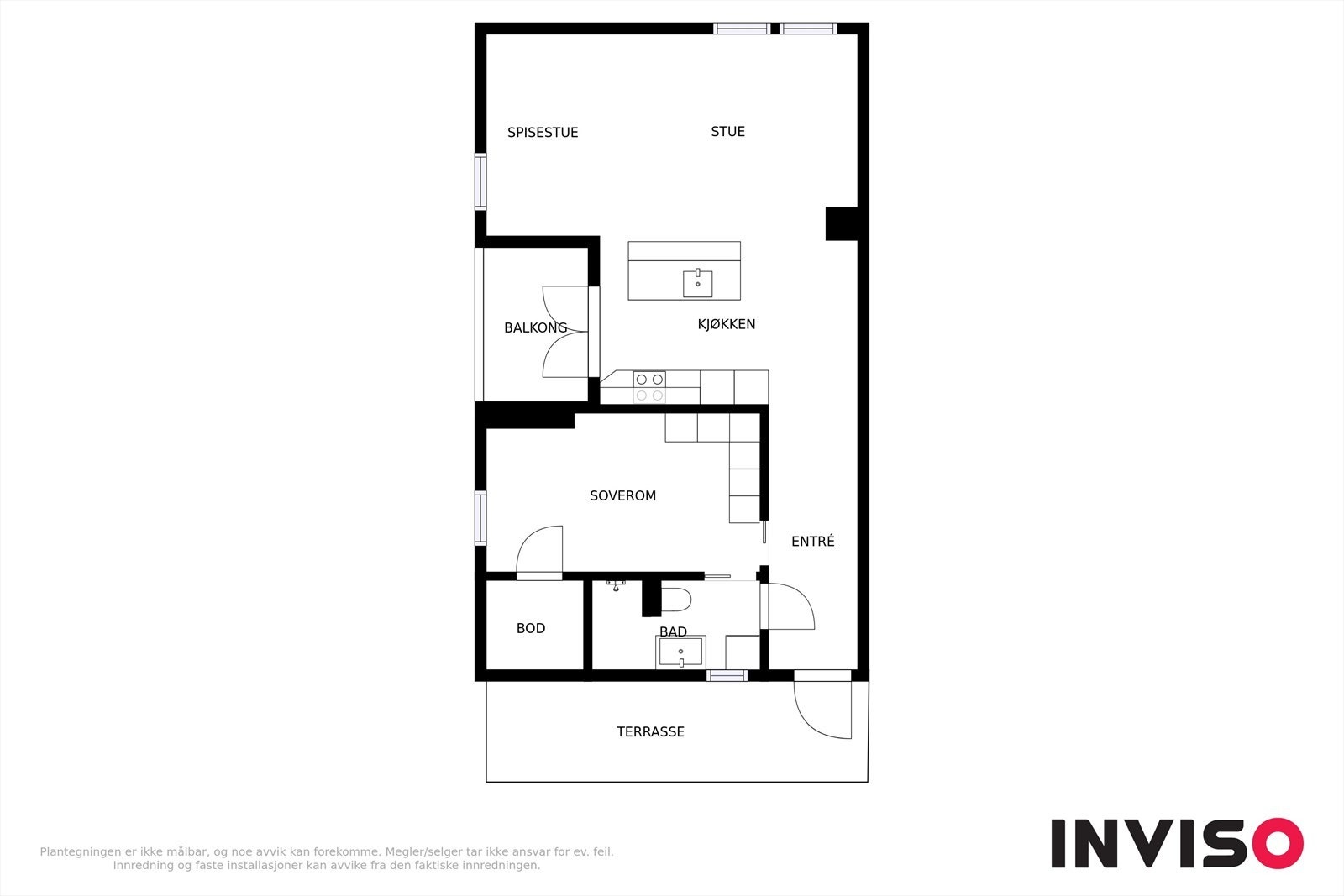
Om boligen
Webmegling ved Silje Lavik har gleden av å presentere Conradis gate 5.
Leiligheten fremstår som moderne med høy standard etter å ha blitt oppusset i 2019/2020. Oppgraderingene har inkludert oppussing av alle overflater, omlegging av elanlegget og rehabilitering av bad/kjøkken.
Verdt å nevne:
- Leiligheten ligger i 4.etasje
- Heis
- Balkong og uteplass ved inngangsparti
- Gode solforhold
- Parkering i parkeringshus
- Sentral beliggenhet med nærhet til alt man trenger av fasiliteter og servicetilbud
Husk påmelding til visning!
Leiligheten fremstår som moderne med høy standard etter å ha blitt oppusset i 2019/2020. Oppgraderingene har inkludert oppussing av alle overflater, omlegging av elanlegget og rehabilitering av bad/kjøkken.
Verdt å nevne:
- Leiligheten ligger i 4.etasje
- Heis
- Balkong og uteplass ved inngangsparti
- Gode solforhold
- Parkering i parkeringshus
- Sentral beliggenhet med nærhet til alt man trenger av fasiliteter og servicetilbud
Husk påmelding til visning!
NB: Knappen for å vise hele beskrivelsen har kun en visuell effekt.
NB: Knappen for å vise hele beskrivelsen har kun en visuell effekt.
Salgsoppgaven beskriver vesentlig og lovpålagt informasjon om eiendommen
Se komplett salgsoppgaveNærområdet
Webmegling AS
Annonseinformasjon
| FINN-kode | 195613086 |
|---|---|
| Sist endret | 17. jan. 2021 13:53 |
| Referanse | WBM1.2036 |
Annonsene kan være mangelfulle i forhold til lovpålagt opplysningsplikt. Før bindende avtale inngås oppfordres interessenter til å innhente komplett informasjon fra meglerforetaket, selger eller utleier.























