Bildegalleri

Velkommen til Døsvegen 1086.
Saksumdal / Lillehammer - Innholdsrik, arkitekttegnet enebolig med naturskjønn beliggenhet, 15 min fra sentrum.
Nøkkelinfo
- Boligtype
- Enebolig
- Eieform
- Eier (Selveier)
- Soverom
- 4
- Primærrom
- 150 m²
- Bruksareal
- 181 m²
- Byggeår
- 1982
- Tomteareal
- 962 m² (eiet)
- Bruttoareal
- 199 m²
- Boligselgerforsikring
- Ja
Fasiliteter
Oppdragsnummer
55-20-0132
Eier
Thomas Aure
Heidi Beate Vang Aure
Eiendomstype
Enebolig
Eierform
Selveier
Betegnelse
Gnr. 113 Bnr. 50 i Lillehammer kommune
Byggeår
1982
Areal
Primærrom: 150 kvm, Bruksareal: 181 kvm, Bruttoareal: 199 kvm
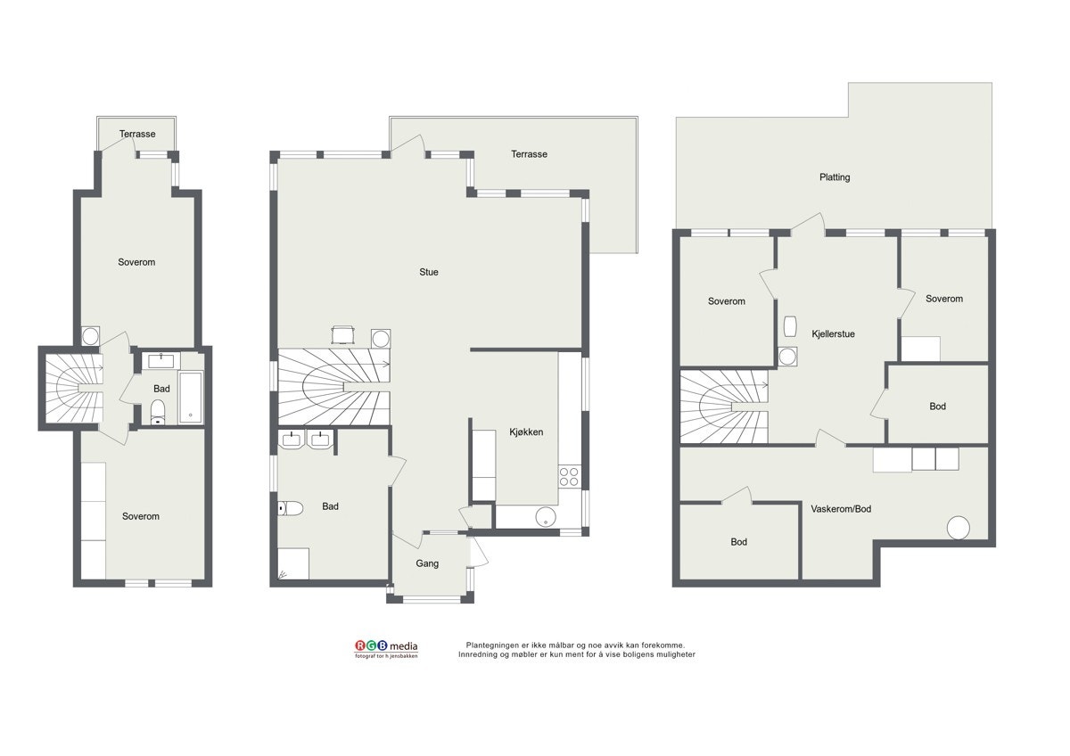
Rom som er P-rom: U.etg.: stue, 2 soverom
1. etg.: vindfang, bad, åpen gang, kjøkken, stue/spisestue
2. etg.: trapperom, bad, 2 soverom
Tomtetype/areal
Eiet tomt / 962 kvm
Beliggenhet
15 minutter fra Lillehammer sentrum med bil finner man denne idylliske og usjenerte eiendommen i Saksumdal. Boligen ligger naturskjønt og solrikt til med gode utsiktsforhold. Umiddelbar nærhet til store og flotte fritidsområder. Her er det jakt- og fiskemuligheter, sommer som vinter.
Eiendommen ligger i et LNF-område og består hovedsaklig av landbruk og boliger.
Velkommen til et trivelig bygdesamfunn med fritidsaktiviteter både for voksne og barn. Ca 500 m til barnehage. Avstand til Lillehammer er ca 12 km, med togstasjon, kjøpesenter og et sentrum med alle servicetilbud.
Bygninger
Frittliggende enebolig
Garasje med skåle
Carport
Byggemåte
Denne arkitekttegnede eneboligen er fundamentert på støpt grunnmur og støpt gulv på grunn. Videre oppført i bindingsverk kledd med tømmermannspanel utvendig, som er nybeiset (siste rest blir fullført før overtagelse). Etasjeskille i trebjelkelag. Vinduer og verandadører med isolerglass fra byggeår, med unntak av kjøkkenvindu fra 2018 og bad fra 2017/18. Salet takkonstruksjon er tekket med betongstein. Takrenner og nedløp i stål. Terrasser, veranda og balkong i impregnert treverk.
Garasjen med skåle er oppført på støpt plate på mark og støpt grunnmur i halv etasjehøyde i bakkant. Utvendig kledd med stående og liggende panel. Salet takkonstruksjon tekket med betongstein. Vippeport i tre til garasjerom og tredør til skåle, med innlagt strøm.
Carport med åpne sider og gruset gulv.
For ytterligere opplysninger om byggemåte, se vedlagte tilstandsrapport utført av takstmann Øyvind Myrvold, datert 28.05.2020. Se forøvrig selgers egenerklæringsskjema som følger som vedlegg til prospektet.
Arealer og fordeling per etasje
Totalt: Primærrom: 150 kvm, Bruksareal: 181 kvm, Bruttoareal: 199 kvm
Underetasje:
P-rom: 36 kvm, BRA: 67 kvm, BTA: 78 kvm
1. etasje:
P-rom: 79 kvm, BRA: 79 kvm, BTA: 83 kvm
2.etasje:
P-rom: 35 kvm, BRA: 35 kvm, BTA: 38 kvm
Innhold
PrivatMegleren Lillehammer har gleden av presentere denne innholdsrike eneboligen i Saksumdalen. Boligen går over 3 plan og inneholder:
Underetasje:
* Stue
* 2 soverom
* Vaskerom/teknisk rom
* 2 boder
1. etasje:
* Vindfang
* Bad
* Åpen gang
* Kjøkken
* Stue/spisestue
2.etasje:
* Trapperom
* Bad
* 2 soverom
Standard
Arkitekttegnet bolig som fremstår som solid og i god stand. Oppgraderinger som er utført de senere årene gir et hyggelig og godt inntrykk.
Stor stue i 1. etasje åpner opp for flere møbleringsmuligheter. Vinduene mot vest med store lysflater og innvendig åpen røst gir en god romfølelse. Utgang til en delvis takoverbygd veranda på ca 16 kvm. Nymalt trapp opp til loftsetasjen (med slitesterk vinyl i trinnene).
Fra stua kommer man inn på et flott kjøkken med innredning fra 2019. Underskap og noen overskap med glatte høyglans fronter og gripetak. Laminert benkeplate med nedfelt benkebeslag med stor kum og 1-greps armatur. Plass til komfyr, oppvaskmaskin og kjøl-/fryseskap. Praktisk glassplate over komfyr. Skråstilt ventilator over komfyrplass. Rommet er malt i en tidsriktig farge og gjør rommet lunt og trivelig.
Badet i 1. etasjen ble renovert og utvidet i 2017/18 av fagfolk. Det er et meget romslig bad med flislagt gulv og vegger, samt malt panel i himling med innfelte downlights og DAB radio med bluetooth tilkobling. Baderomsinnredning med 4 skuffer og heldekkende sevantplate med to vasker. Speil med integrert lys over. Dusjhjørne med en fast glassfront og en hengslet glassdør. Dusjarmatur montert på vegg med regndusj og standard dusj. Vegghengt toalett med innebygget sisterne. Opplegg for vaskemaskin og tørketrommel.
Underetasjen har en stue med utgang til en solrik platting. Stuen har ubehandlet liggende panel på vegger og i himling. Laminat på gulvet. TV-uttak og plass til sofa med tihørende møbler. Rommet har en vedovn som varmer etasjen samt fører varmen videre oppover i etasjene.
Det er to soverom i underetasjen, begge med malt strie på veggene og lik laminat som på stua.
Takess i himling.
Et stort praktisk vaskerom i underetasjen har malt betonggulv og kombinasjon av trehvit panel og malt betong på veggene. Innredet med skap og hyller. Opplegg for vaskemaskin og tørketrommel. Rommet er velfungerende med enkel standard.
I tillegg er det to store boder med god lagringsplass.
Det er to soverom i 2 etasjen. Hovedsoverommet er malt og overflateoppusset den senere tiden. De to øvrige rommen er ubehandlet.
Badet i 2.etasjen har standard fra byggeår, som synes å være solid utført den gang. Våtromsbelegg på gulvet, uten gulvvarme. Rommet varmes opp med panelovn. Vegger har fliser opp til skråtakhøyde, over her er det malte plater. Innredet med servantskap med malte trefronter. Heldekkende vask med nyere 1-greps armatur. Speil med lys over. Badekar med integrert badekarbatteri og dusjhode. Standard toalett.
Møblering
Boligen selges umøblert. Komfyr, kjøleskap, huskestativ og en sibirerter plante (gave) medfølger ikke. Lekehus kan selges etter avtale.
Oppvarming
Det er vedovn både i stua i 1. etasje og i kjellerstua. I tillegg er det installert varmepumpe i stua i 1. etasje. Gulvvarme i stue og på begge soverom i underetasjen samt på bad i 1. etasjen. Panelovn på bad i loftsetasjen.
Parkering / Garasje
Garasje med plass til èn bil samt carport med plass til èn bil. Garasje og carport har støpt dekke og innlagt strøm. Manuell port.
Forøvrig god plass til parkering på egen gårdsplass.
Adkomst
Fra Lillehammer følg skilt til Saksumdal fra Vingnes. Følg Saksumdalsveien ca 12 km, ta første avkjørsel ned til venstre etter 2 fartsdump. Det er skiltet med tilsalgs plakat fra PrivatMegleren.
Beskrivelse av tomt/hage
Høyt og fritt beliggende med gode sol- og utsiktsforhold. Terrassert tomt med flate partier ved inngangspartiet og på nedsiden av huset. Pent opparbeidet med plenaeraler, stauder, bed og annen beplantning. Gårdsplassen, samt foran garasje og inngangspartiet er steinbelagt. Adkomstvei er gruset.
Tinglyste rettigheter og forpliktelser
Kommunen har legalpant som sikkerhet for betaling av kommunale avgifter. Legalpant er pant som følger av loven, og som ikke tinglyses. Legalpant følger derfor eiendommen ved salg. På eiendommen kan det være tinglyst erklæringer som f eks rett for kommunen til å vedlikeholde rørsystemer for vann- og kloakk. Disse erklæringene vil følge eiendommen ved salg. Kontakt megler for nærmere informasjon.
Servitutter / rettigheter
Eiendommen overdras fri for pengeheftelser, med unntak av eventuelle erklæringer, avtaler, servitutter og panteheftelser som fremgår av salgsoppgaven og skal følge med eiendommen ved salg. Kjøpers bank vil få prioritet etter disse.
I henhold til grunnboksutskrift datert 13.05.2020 er følgende tinglyst på eiendommen:
1975/5185-3/17 Bestemmelse om gjerde
Tinglyst 07.07.1975
1975/5185-2/17 Bestemmelse om veg
Tinglyst 07.07.1975
Bestemmelse om vannrett
Ovennevnte dokumenter følger som vedlegg til prospekt. Grunnboksutskrift kan fås ved henvendelse til megler.
Vei / Vann / Avløp
Privat veg fra offentlig veg.
Det ble laget nytt borehull med nedsenket pumpe i 2015. Filter for jern og mangan, samt partikkelfilter.
Gammel brønn ligger på oversiden av huset. Brønnen deles med nabogård, men er ikke i bruk.
Privat septikanlegg med gråvannskum og spredegrøfter.
Ferdigattest eller midl. brukstillatelse
Det er utstedt ferdigattest på eiendommen, datert 23.03.1983. Denne følger som vedlegg til prospektet.
Det foreligger ikke ferdigattest eller midlertidig brukstillatelse på denne eiendommen. Boligen er oppført på et tidspunkt da dette ikke var påkrevd.
Verdi ved skattefastsetting
Verdien ved skattefastsetting pr 04.06.20
- som primærbolig kr 663 221,-
- som sekundærbolig kr 2 387 595,-
Reguleringsforhold
Gjeldende plan for området er "Kommunedelplan for Lillehammer" vedtatt 15.12.2011 med formål å ivareta bestemmelser om arealbruk i kommunen. Kopi av kommuneplanens arealdel kan fås ved henvendelse til megler.
Eiendommen ligger i et LNF-område (Landbruk, Natur og Friluftsområde) og kommuneplanen ligger til grunn for dette området.
Energimerking
Energiattest følger som vedlegg til prospektet.
Faste, løpende kostnader
Det må påregnes kostnader til:
* Kommunale avgifter kr 8 727,66 pr. år
I dette beløpet inngår bl.a. avgifter for eiendomsskatt, vann, renovasjon og feiing. Beløpet fordeles på fire terminer. Av det totale beløpet utgjør Eiendomsskatt for 2020 kr. 4 280,16.
I tillegg kommer tømming av privat avløpsanlegg. Faktureres når tømming har vært utført.
* Forsikring, med en årlig premie på kr 6 599,- (Vil variere fra husstand til husstand).
* Strøm, totalt i 2019 kr 25 236,- (vil selvfølgelig variere utfra familiestørrelse og bruken av boligen / bruken av alternativ oppvarming etc.
* Ved
* Snøbrøyting/ strøing, varierer ut fra snømengde og vedlikeholdsbehov.
* Tv og internett (Fiber) fra Eidiva bredbånd. Pris varierer ut fra hvilken kanalpakke og hastighet man ønsker.
Oppgjør
Kjøpesum med tillegg av omkostninger skal være disponibelt på meglers klientkonto innen overtagelse. Normalt innebærer dette at fullt oppgjør må være innbetalt på meglers klientkonto senest to virkedager før avtalt overtagelsesdato.
Eventuelle vilkår knyttet til innbetalingen, eksempelvis pantedokument som skal tinglyses til fordel for kjøpers bank, må være megler i hende i god tid før overtagelse kan finne sted.
Finansiering
Kontakt megler for avklaring av finansielle forhold, herunder lån til kjøp av eiendom. Privatmegleren har avtale med Nordea om formidling av lån og andre finansielle tjenester. Privatmegleren mottar godtgjørelse for dette.
Energiforbruk
Selger opplyser å ha brukt 22 606 kwh forrige år. Dette vil selvsagt variere ut fra familiens størrelse og forbruk.
Skjeggkre
I henhold til selgers egenerklæringsskjema opplyses det at selger ikke har kjennskap til om det er skjeggkre i boligen.
Annen nyttig informasjon
Alle innvendige og utvendige arealangivelser er hentet fra vedlagte tilstandsrapport.
Det gjøres oppmerksom på at megler ikke har innhentet særskilte opplysninger om det finnes pålegg fra brann/feiervesen på eiendommen.
Med mindre annet er uttrykkelig avtalt gjelder NEFs normgivende liste over løsøre og tilbehør.
Adgang til utleie (boligformål)
Ingen restriksjoner på utleie av boligen. Ingen egen utleieenhet pr. i dag.
Konsesjon / Odel
Det foreligger ikke konsesjonsplikt eller odelsrett på denne eiendommen.
Boligkjøperforsikring
Vedlagt i salgsoppgaven følger informasjon om Boligkjøperforsikring Pluss og Boligkjøperforsikring fra HELP Forsikring AS. Boligkjøperforsikring er en rettshjelpsforsikring som gir trygghet og profesjonell juridisk hjelp dersom det oppdages uventede feil eller mangler ved boligen de neste fem årene. Boligkjøperforsikring Pluss har samme dekning som boligkjøperforsikring + fullverdig advokathjelp på viktige rettsområder i privatlivet. Les mer om begge forsikringene i vedlagte materiell eller på help.no. Meglerforetaket mottar kr 1400,- / 2100,- / 3100,- pr tegnet forsikring.
Overtagelse
Etter nærmere avtale.
Boligselgerforsikring
Selger har tegnet boligselgerforsikring, og interessenter oppfordres til å sette seg inn i selgers egenerklæring før det inngis bud på eiendommen.
Budgiving
Bud kan legges inn via Privatmeglerens "gi bud-knapp" som finnes på Privatmegleren.no/eiendommens hjemmeside og i nettannonsen. Bud legges inn trygt og enkelt med bank-ID.
For mer informasjon om budgivning, se "Viktig informasjon" i salgsoppgaven.
Solgt 'som den er'
Eiendommen selges "som den er", jf. avhendingsloven (avhl) § 3-9.
Boligen har mangel i følgende tilfelle:
1) Når kjøper ikke har fått opplysninger om forhold ved boligen som selger kjente eller måtte kjenne til, og som kjøper hadde grunn til å regne med å få, jf. avhl § 3-7. Dette gjelder likevel bare dersom man kan gå ut fra at det har virket inn på avtalen at opplysningene ikke ble gitt.
2) Når selger har gitt uriktige opplysninger om boligen, jf. avhl § 3-8. Det samme gjelder dersom boligen ikke er i samsvar med opplysninger som er gitt i annonse, salgsprospekt eller ved annen markedsføring på vegne av selgeren. Dette gjelder likevel bare dersom man kan gå ut fra at opplysningene har virket inn på avtalen, og ikke på en tydelig måte er blitt rettet i tide.
3) Når boligen er i vesentlig dårligere stand enn kjøper hadde grunn til å regne med ut fra kjøpesummen og forholdene ellers, jf. avhl § 3-9.
Alle interessenter oppfordres til å sette seg godt inn i opplysninger som fremgår av salgsoppgave og vedlegg til denne, også egenerklæring fra selger. Videre oppfordres interessenter til å undersøke eiendommen nøye, gjerne sammen med fagkyndig. Deretter kan bud gis.
Meglers vederlag og utlegg
Meglers vederlag og utlegg betales av selgeren og utgjør: 2,2 % av oppnådd totalpris, minimum kr 49 900,- inkl. mva. Sum tillegg stipulert til kr 51 878,-. Direkte utlegg kr 585,-. Dersom eiendommen ikke blir solgt skal selgere betale kr 13 900,- + tillegg/utlegg.
Vedlegg til salgsoppgaven
Meglers verdivurdering
Tilstandsrapport
Selgers egenerklæringsskjema
Energiattest
Informasjon fra Lillehammer kommune, herunder kartutsnitt, målebrev, ferdigattest, reguleringsplan med bestemmelser og øvrig kommunal informasjon vedr eiendommen
Tinglyste dokumenter fra Statens Kartverk
Budskjema
Salgsoppgaven beskriver vesentlig og lovpålagt informasjon om eiendommen
Se komplett salgsoppgaveNyttige lenker
Nærområdet

PrivatMegleren Lillehammer
Annonseinformasjon
| FINN-kode | 181104668 |
|---|---|
| Sist endret | 26. juni 2020 00:18 |
| Referanse | 55200132 |
Annonsene kan være mangelfulle i forhold til lovpålagt opplysningsplikt. Før bindende avtale inngås oppfordres interessenter til å innhente komplett informasjon fra meglerforetaket, selger eller utleier.












































