Bildegalleri

Velkomen til Årsheim! Ein innhaldsrik familiebustad med fint hagemiljø og dobbel garasje.
Solgt
ÅRSHEIM
Familievennleg einebustad med fint hagemiljø og garasje - 4 soverom
Prisantydning1 350 000 kr
Nøkkelinfo
- Boligtype
- Enebolig
- Eieform
- Eier (Selveier)
- Soverom
- 4
- Primærrom
- 136 m²
- Bruksareal
- 159 m²
- Etasje
- 2
- Byggeår
- 1977
- Energimerking
- F - Gul
- Rom
- 5
- Tomteareal
- 1 225 m² (eiet)
- Bruttoareal
- 178 m²
Fasiliteter
Gjesteparkering
Balkong/Terrasse
Barnevennlig
Garasje/P-plass
Hage
Kjæledyr tillatt
Ingen gjenboere
Peis/Ildsted
Rolig
Utsikt
Utvidelsesmuligheter
Bademulighet
Fiskemulighet
Turterreng
Om boligen
Velkomen til Årsheim!
Ein innhaldsrik familiebustad med store, gode opphaldsrom, 4 soverom og 3 garasjeplassar. Tomta er stor og fint opparbeidd med eit triveleg hagemiljø beståande av plenareal, beplantning og terrasse. Her bur du i rolege og landlege omgjevnadar, med fin utsikt mot fjorden og fjella i kring. Frå eigedomen er det ca 12 km til Leikanger med skule og butikk, ca. 12 km til Selje og ca. 16 km til Åheim, samt kort veg til surfeparadisa Hoddevik og Ervik.
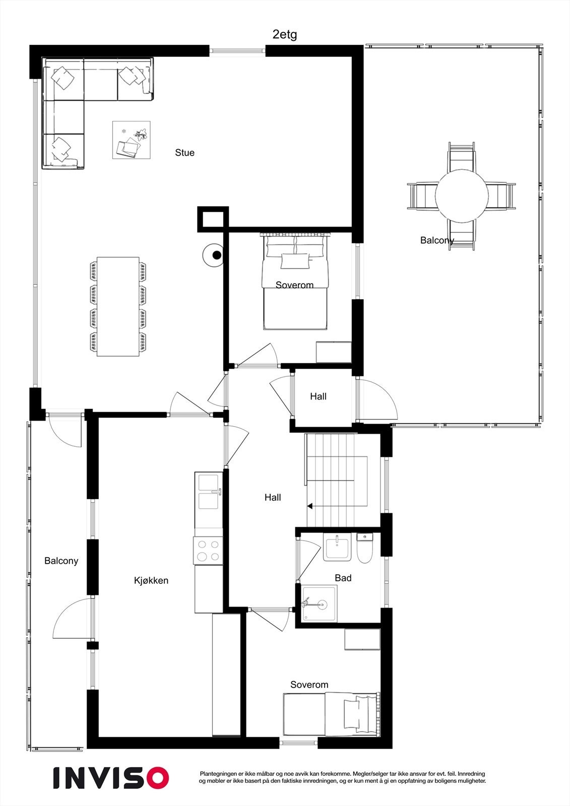
Bustaden er over 2 plan og inneheld:
H.etg: Vindfang, gang, stove og kjøkken med utgang til terrasse, og 2 soverom.
U.etg: Entrè, gang, 2 soverom, bad, vaskerom og bod.
Frittståande dobbel garasje samt garasje samanbygd som ein del av bustaden.
Velkomen til visning!
Ein innhaldsrik familiebustad med store, gode opphaldsrom, 4 soverom og 3 garasjeplassar. Tomta er stor og fint opparbeidd med eit triveleg hagemiljø beståande av plenareal, beplantning og terrasse. Her bur du i rolege og landlege omgjevnadar, med fin utsikt mot fjorden og fjella i kring. Frå eigedomen er det ca 12 km til Leikanger med skule og butikk, ca. 12 km til Selje og ca. 16 km til Åheim, samt kort veg til surfeparadisa Hoddevik og Ervik.
Bustaden er over 2 plan og inneheld:
H.etg: Vindfang, gang, stove og kjøkken med utgang til terrasse, og 2 soverom.
U.etg: Entrè, gang, 2 soverom, bad, vaskerom og bod.
Frittståande dobbel garasje samt garasje samanbygd som ein del av bustaden.
Velkomen til visning!
NB: Knappen for å vise hele beskrivelsen har kun en visuell effekt.
NB: Knappen for å vise hele beskrivelsen har kun en visuell effekt.
Salgsoppgaven beskriver vesentlig og lovpålagt informasjon om eiendommen
Se komplett salgsoppgaveNyttige lenker
Nærområdet
Å IKKE I BRUK Eiendomsmegler Norge Volda
Annonseinformasjon
| FINN-kode | 170410018 |
|---|---|
| Sist endret | 01. mars 2020 10:23 |
| Referanse | 27200015 |
Annonsene kan være mangelfulle i forhold til lovpålagt opplysningsplikt. Før bindende avtale inngås oppfordres interessenter til å innhente komplett informasjon fra meglerforetaket, selger eller utleier.























