Bildegalleri

Enebolig m/ innredet utleiedel, tidligere utleid for kr. 8 000 | 180 graders panorama | Sol "hele" dagen | Dobbelgarasje
Nøkkelinfo
- Boligtype
- Enebolig
- Eieform
- Eier (Selveier)
- Soverom
- 5
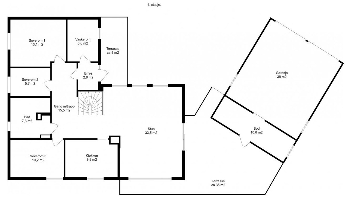
- Primærrom
- 214 m²
- Bruksareal
- 225 m²
- Byggeår
- 1968
- Energimerking
- F - Gul
- Tomteareal
- 1 105 m² (festet)
- Festeavgift
- 3 306 kr
- Boligselgerforsikring
- Ja
Fasiliteter
Om boligen
Brekkavegen 9 - en kvalitetsrik enebolig med egen innredet utleiedel som tidligere har vært utleid for kr. 8 000,- pr. mnd. En særdeles familievennlig enebolig som har en av de bedre beliggenhetene i Buvika og samtidig har vært gjenstand for god ivaretakelse og jevnlig vedlikeholdt. Planløsningen er fleksibel med flere stuer, våtrom og mange fine soverom.
Verdt å merke seg
Innredet utleiedel på 54 kvm med ett soverom, stue, kjøkken, vindfang, gang og bod
Hoveddelen inneholder fire soverom, to stuer, flere våtrom
Dobbelgarasje med EL-billader
Boligen har lang solgang med sol hele dagen
Utsiktstomt med 180 graders panoramautsikt
Hage og tomt på 1,1 mål
Den innrede utleiedelen er oppusset i 2020
Rolig og barnevennlig
Gangavstand til bussholdeplass med mange avganger daglig til Trondheim og Orkanger
Salgsoppgaven beskriver vesentlig og lovpålagt informasjon om eiendommen
Se komplett salgsoppgaveNyttige lenker
Nærområdet
Heimdal Eiendomsmegling avd. Heimdal
Annonsene kan være mangelfulle i forhold til lovpålagt opplysningsplikt. Før bindende avtale inngås oppfordres interessenter til å innhente komplett informasjon fra meglerforetaket, selger eller utleier.








































