Bildegalleri

Velkommen til Kirkerudlia 7 B - Presentert av Kenneth Eckmann ved eie eiendomsmegling avd. Sandvika.
Lyst og delikat rekkehus med utsikt. Parkering og garasje. Kort vei til skole, barnehage og off komm.
Nøkkelinfo
- Boligtype
- Rekkehus
- Eieform
- Eier (Selveier)
- Soverom
- 2
- Primærrom
- 81 m²
- Bruksareal
- 81 m²
- Byggeår
- 1962
- Energimerking
- G - Rød
- Tomteareal
- 210 m² (eiet)
- Bruttoareal
- 90 m²
- Boligselgerforsikring
- Ja
Fasiliteter
Om boligen
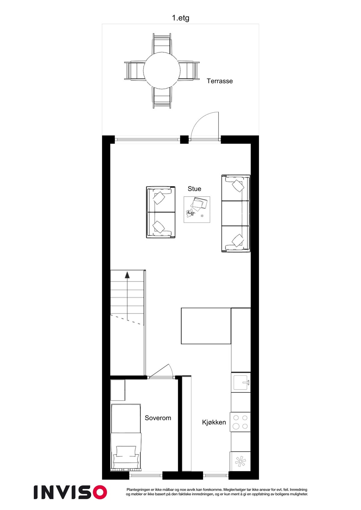
Rekkehus i etablert og koselig boligstrøk!
Kirkerudlia 7B har mange smarte løsninger over 2-plan. Totaloppusset i 2010/11 med blant annet HTH-kjøkken, marmorbenkeplater, varmekabler i gang, bad og stue, en-stavs eikeparkett, downlights og lekkert bad. 2 gode soverom med innebygde garderobeskap, stort innredet disponibelt rom som kan benyttes til mye ulike formål, og det er ekstra takhøyde i stue og kjøkken. Plassbygd garderobeskap under trappen, for smart arealutnyttelse.
Her får du et rekkehus i et barnevennlig boligstrøk med usjenert overbygget terrasse og hyggelig nivådelt hage. Bilen kan parkeres rett utenfor døren eller i den medfølgende garasjen.
Her er det kort vei til marka, ski-løyper, skole, barnehager og matbutikken - buss hvert 10. min til Sandvika.
Salgsoppgaven beskriver vesentlig og lovpålagt informasjon om eiendommen
Se komplett salgsoppgaveNyttige lenker
Nærområdet
EIE eiendomsmegling Bærum
Annonseinformasjon
| FINN-kode | 166654597 |
|---|---|
| Sist endret | 30. apr. 2020 09:20 |
| Referanse | 36190428 |
Annonsene kan være mangelfulle i forhold til lovpålagt opplysningsplikt. Før bindende avtale inngås oppfordres interessenter til å innhente komplett informasjon fra meglerforetaket, selger eller utleier.
































