Bildegalleri

Velkommen til Hovseterveien 100 B!
Solgt
HOVSETER/RØA
Attraktiv gjennomgående 3(4)-roms med kjøkken fra 2019 - Balkong med gode solforhold - Garasje - Rolig og barnevennlig
Prisantydning4 800 000 kr
Nøkkelinfo
- Boligtype
- Leilighet
- Eieform
- Andel
- Soverom
- 2
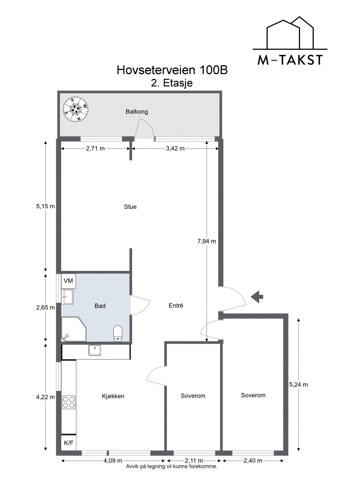
- Primærrom
- 90 m²
- Bruksareal
- 90 m²
- Etasje
- 2
- Byggeår
- 1975
- Energimerking
- F - Rød
- Tomteareal
- 9 651 m² (eiet)
- Bruttoareal
- 99 m²
Fasiliteter
Balkong/Terrasse
Parkett
Barnevennlig
Rolig
Kabel-TV
Moderne
Sentralt
Garasje/P-plass
Turterreng
Offentlig vann/kloakk
Vaktmester-/vektertjeneste
Fellesvaskeri
Bredbåndstilknytning
Om boligen
Lys og gjennomgående 3(4)-roms i 2. etasje med stor balkong på 10,7 kvm. Leiligheten holder en god standard med bl.a. nyoppusset kjøkken, nytt gulv, nedsenket himling med downlights, malte vegger og ny inngangsdør. Borettslaget er svært attraktivt med en rolig og barnevennlig beliggenhet, omkranset av fine tur- og grøntområder.
Verdt å merke seg:
- Nytt kjøkken fra 2019
- Sydvendt balkong på ca. 10,7 kvm med fine solforhold
- Mulighet for et tredje soverom
- Ny inngangsdør i 2018
- Garasjeplass
- 2 boder på tilsammen ca. 5,3 kvm
- Kort vei til tur- og treningsmuligheter
- Få minutters gange til T-bane og buss
- Gangavstand til barnehager og skoler
- Kabel-TV, fibernett, garasjeplass og varmtvann inkl. i felleskostnader
Vil du se boligen, men ser at oppsatt visning ikke passer? Ta kontakt for privatvisning!
NB: Knappen for å vise hele beskrivelsen har kun en visuell effekt.
NB: Knappen for å vise hele beskrivelsen har kun en visuell effekt.
Salgsoppgaven beskriver vesentlig og lovpålagt informasjon om eiendommen
Se komplett salgsoppgaveNyttige lenker
Nærområdet
EIE eiendomsmegling Røa, Skøyen og Ullern
Annonseinformasjon
| FINN-kode | 162124137 |
|---|---|
| Sist endret | 15. nov. 2019 12:13 |
| Referanse | 50190109 |
Annonsene kan være mangelfulle i forhold til lovpålagt opplysningsplikt. Før bindende avtale inngås oppfordres interessenter til å innhente komplett informasjon fra meglerforetaket, selger eller utleier.































