Bildegalleri

Kveldstemning på terrassen.
Stor, innholdsrik enebolig med utleiedel. Vakker utsikt og flere herlige uteplasser. Omfattende oppgradert. 336 kvm.
Nøkkelinfo
- Boligtype
- Enebolig
- Eieform
- Eier (Selveier)
- Soverom
- 3
- Primærrom
- 307 m²
- Bruksareal
- 336 m²
- Byggeår
- 1952
- Energimerking
- F - Oransje
- Tomteareal
- 1 002 m² (eiet)
- Bruttoareal
- 364 m²
- Boligselgerforsikring
- Ja
Fasiliteter
Om boligen
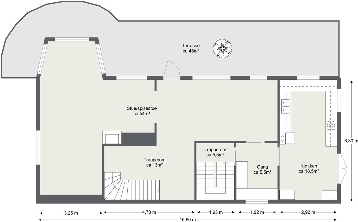
En nydelig og innholdsrik enebolig over tre plan med godkjent utleiedel. Eiendommen ligger vestvendt med herlige solforhold og en meget vakker utsikt til fjorden, øyene og byen. Tomten er terrassert, på ett mål med mye naturtomt og diverse beplantning. Utsikt og sol kan nytes fra balkong utenfor hovedsoverom, stor veranda ved stuen og en koselig overbygget markterrasse.
Boligen er omfattende oppgradert i senere år, og selv om noe gjenstår er dette er unikt hjem med flotte detaljer og en særegen atmosfære. Boligen har tre flotte soverom, det ene med walk-in garderobe, tre bad, lekker stue med peis, romslig spisestue og stort kjøkken - også dette med peis. Videre er det entre med garderobe og to innredede rom i kjeller. Leiligheten kan enkelt gjøres om til en integrert del av boligen.
Salgsoppgaven beskriver vesentlig og lovpålagt informasjon om eiendommen
Se komplett salgsoppgaveNyttige lenker
Nærområdet

PrivatMegleren Panorama
Annonseinformasjon
| FINN-kode | 160261470 |
|---|---|
| Sist endret | 25. aug. 2020 07:31 |
| Referanse | 38190627 |
Annonsene kan være mangelfulle i forhold til lovpålagt opplysningsplikt. Før bindende avtale inngås oppfordres interessenter til å innhente komplett informasjon fra meglerforetaket, selger eller utleier.













































































