Bildegalleri

Velkommen til Sønnaveien 25 - Kontakt Carl Sveistrup på 980 45 319 dersom privat visning ønskes.
Herskapelig praktvilla på 485 kvm m/hybel, dobbelgarasje, fantastisk hage og stor velværeavdelig med basseng. Nær marka.
Nøkkelinfo
- Boligtype
- Enebolig
- Eieform
- Eier (Selveier)
- Soverom
- 5
- Primærrom
- 451 m²
- Bruksareal
- 485 m²
- Byggeår
- 1987
- Energimerking
- E - Gul
- Rom
- 13
- Tomteareal
- 1 369 m² (eiet)
- Bruttoareal
- 542 m²
- Boligselgerforsikring
- Ja
Fasiliteter
Om boligen
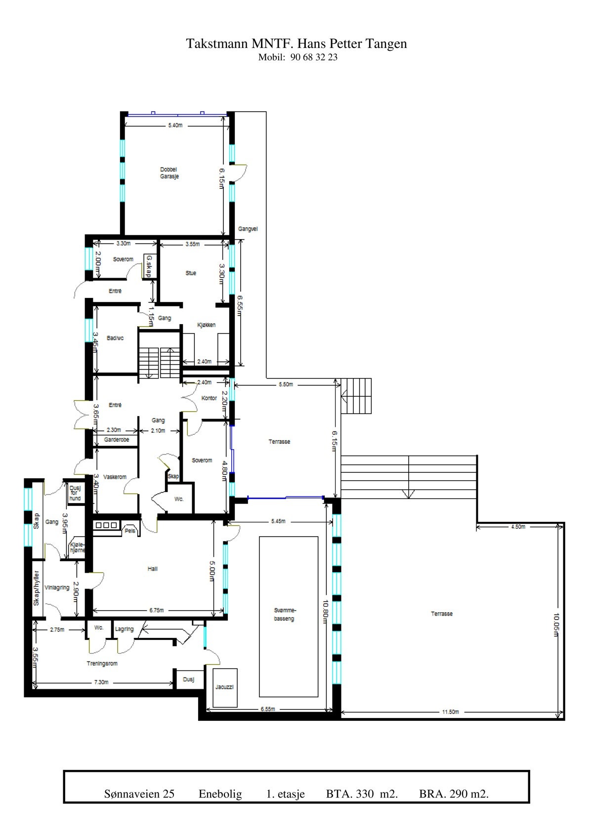
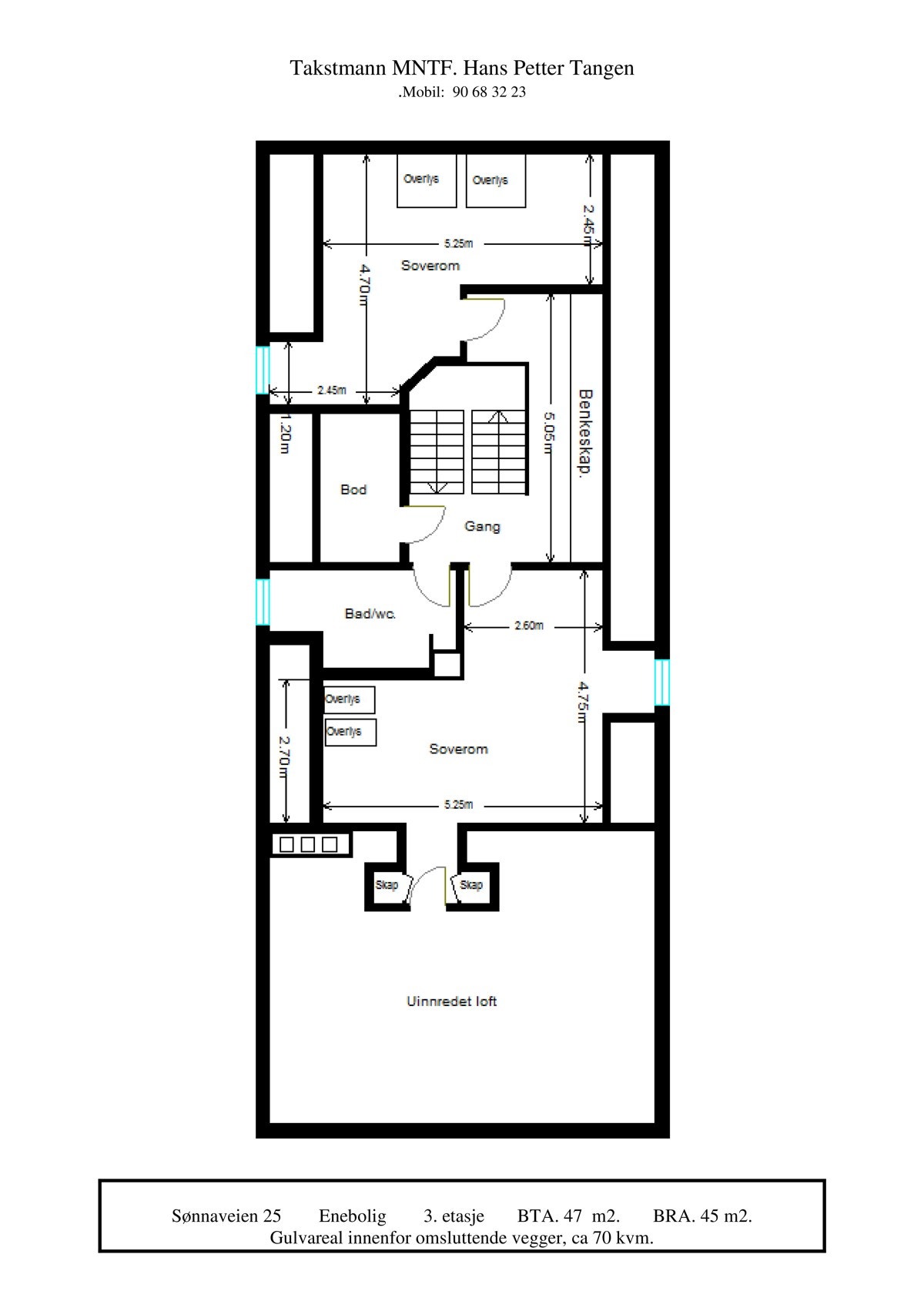
Sønnaveien 25 er en eksklusiv villa på 485 kvm, over tre innholdsrike etasjer. Boligen ligger på en stor, nydelig tomt, hvor det er tilrettelagt for å nyte solen helt usjenert. Her er det deilig hage og omfangsrike terrasser, den ene dels overbygd, med jacuzzi.
Inne er det egen velværeavdeling med svømmebasseng og trimrom, samt hybelleilighet og integrert dobbelgarasje. Boligen har gjennomgått flere oppgraderinger i nyere tid hva gjelder innredninger og innvendige overflater, dette er i en klasse for seg.
Rommene oser av eleganse med Versace tapet, nydelig stukkatur, søyler, rosetter og ildsteder med lekre omramminger. Det er kvalitet på innredninger; blant annet kjøkkenet, med integrerte hvitevarer. Videre finnes vinrom, store stuer, tre bad, to wc-rom, dusjrom, vaskerom og fem soverom.
Salgsoppgaven beskriver vesentlig og lovpålagt informasjon om eiendommen
Se komplett salgsoppgaveNyttige lenker
Nærområdet

PrivatMegleren Dyve & Partnere
Annonseinformasjon
| FINN-kode | 157305135 |
|---|---|
| Sist endret | 08. nov. 2019 01:08 |
| Referanse | 159190465 |
Annonsene kan være mangelfulle i forhold til lovpålagt opplysningsplikt. Før bindende avtale inngås oppfordres interessenter til å innhente komplett informasjon fra meglerforetaket, selger eller utleier.




















































