Bildegalleri

Collage
OKSENØYA 2-ROMS SELVEIER NY 2019 -STOR BALKONG 9,2 KVM SJØUTSIKT LANDLIGE OMGIVELSER INNFLYTTINGSKLAR TRAPPEFRI ADKOMST
Nøkkelinfo
- Boligtype
- Leilighet
- Eieform
- Eier (Selveier)
- Soverom
- 1
- Primærrom
- 37 m²
- Byggeår
- 2019
- Rom
- 2
- Tomt
- Eiet
- Bruttoareal
- 43 m²
Fasiliteter
Beskrivelse
Oksenøya er et nytt boligområde på Fornebu.
Boligen ligger landlig til og har en idyllisk skjermet beliggenhet vest på Fornebulandet. Her har du gangavstand til brygge, badestrand, kyststien, kjøpEsenter, Nansenparken og kollektivtransport. Oksenøya 1 har miljøsertifiseringen BREEAM. Dette gir en grønnere bolig til fordel for deg. Med mange ulike tiltak utgjør den verdensledende miljøsertifiseringen BREEAM en stor forskjell som sparer både hjemmet og miljøet for unødvendig forurensing og energibruk.
Drømmer du om å bo ved sjøen, men samtidig ønsker tilgang til byen, da bør du tenke på Oksenøya 1.
Oksenøya ligger på Fornebu, helt i kanten ved vannet med både kyststien og marinaen som nærmeste nabo. Perfekt for den som liker sjøen og aktivitetene som hører til. Her har du umiddelbar tilgang til både kajakk, SUP-board, marina og mye mer. Fornebu legger opp til en innholdsrik og aktiv hverdag, på land så vel som på vann. Nansenparken er en annen nabo som ligger rett i nærheten, med sykkelstier,paviljonger, lekeplasser og treningsparker til rådighet. Langt er det heller ikke til Storøyodden badestrand. Her kan du nyte lange sommerdager med bading, sandvolleyballog bordtennis. Badestranden har EUs høyeste sertifisering for rent vann og har tilgang til både kiosk, dusj og utegrill. Fasiliteter som skole, barnehage, treningssenter og det nye kjøpesenteret Fornebu S ligger også i området. På Fornebu finner du med andre ord alt det du trenger, men skulle man savne byen så er det ikke langt verken med bil eller buss. Så nå som du vet dette kan du tenke litt på Oksenøya 1, et lite hverdagsparadis ved sjøen med tilgang til byen.
Beliggenhet
Dersom du drømmer om å bo ved sjøen men samtidig ønsker tilgang til byen, da bør du tenke på Oksenøya 1.
Oksenøya ligger på Fornebu, helt i kanten ved vannet med både kyststien og marinaen som nærmeste nabo. Perfekt for den som liker sjøen og aktivitetene som hører til. Her har du umiddelbar tilgang til både kajakk, SUP-board, marina og mye mer. Fornebu legger opp til en innholdsrik og aktiv hverdag, på land så vel som på vann. Nansenparken er en annen nabo som ligger rett i nærheten, med sykkelstier,paviljonger, lekeplasser og treningsparker til rådighet. Langt er det heller ikke til Storøyodden badestrand. Her kan du nyte lange sommerdager med bading, sandvolleyballog bordtennis. Badestranden har EUs høyeste sertifisering for rent vann og har tilgang til både kiosk, dusj og utegrill. Fasiliteter som skole, barnehage, treningssenter og det nye kjøpesenteret Fornebu S ligger også i området. På Fornebu finner du med andre ord alt det du trenger, men skulle man savne byen så er det ikke langt verken med bil eller buss. Så nå som du vet dette kan du tenke litt på Oksenøya 1, et lite hverdagsparadis ved sjøen med tilgang til byen.
Bebyggelse
Sameiet består av 97 boligseksjoner og 2 næringsseksjoner på eiendommen gnr. 41, bnr. 2545 i Bærum kommune, fordelt på hus A, hus B, hus C, hus D og Hus E samt garasjeanlegg under husene bestående av p-plasser og boder. Det er også felles lagringsplass for kajakk bor boligene på Oksenøya Utbyggingsområde lokalisert utvendig ved Hus C.
Adkomst
Offentlig transport
BUSS Ekern 11 min / spasere
Linje 214 0.9 km
BÅT Fornebu 24 min / spasere
Linje B22 1.9 km
BUSS,FLYTOG, TOG Lysaker stasjon 5 min m / bil
Buss, flytog, tog 2.9 km
BÅT Lysaker brygge 6 min m / bil
Linje B11 3.1 km
TOG/BANE Lilleaker 7 min m / bil
Linje 13 3.9 km
Innhold
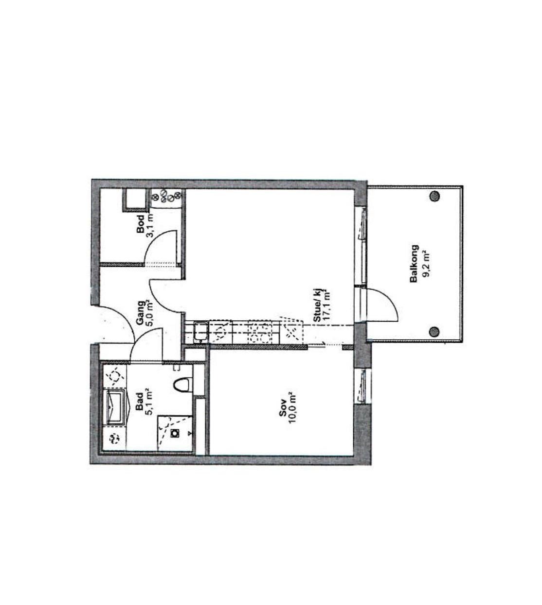
1. etg. med trappefri adkomst. Leiligheten vender mot vest og balkongen, stuen og soverommet ligger i 2. etg. fra denne siden. Leiligheten er ikke gjennomgående.
Gang, bad, stue med åpen kjøkkenløsning. 1 soverom. 1 stor bod i kjelleren.
Stor balkong på 9,2 kvm med flott utsikt mot sjøen og grøntarealer. Sydvestvendt.
Areal
Primærrom: 37 kvm, Bruttoareal: 43 kvm
Standard
Kjøkkenet fra Sigdal, Uno Palett.
Integrerte hvitevarer.
Moderne bad, der flisene er holdt i lyse og delikate toner. Hvite fliser på vegg i størrelsen 30x60, grå fliser på gulv i størrelsen 30x30 og i dusjsonen mørke grå fliser på gulv i størrelsen 5x5.
Servant med skuffer.
Utstyr
Døråpner/telefon.
Oppvarming
Leiligheten varmes opp med fjernvarme i form av vannbåren gulvvarme.
Tomten
Eiet.
Parkering
Det er direkte tilgang til bod garasjekjeller via heis. Det medfølger ikke garasjeplass til leiligheten, men muligheter for å leie hvis det er ledige plasser.
Vei/vann/avløp
Offentlig.
Forretningsfører
OBOS Eiendomsforvaltning AS
Sameiet
Boligselskap: 7709, Oksenøya 1 Sameie
Organisasjonsnr: 922.878.773
oksenoya1@styrerommet.net
Hjemmeside: http://web2.herborvi.no/7709
Styregodkjennelse
Nei.
Dyrehold
Dyrehold er tillatt så lenge dette ikke på en urimelig eller unødvendig måte er til skade eller ulempe for de øvrige brukerne av eiendommen.
Forsikring
Forsikringsselskap Tryg Forsikring - polise nummer 7133974.
Felleskostnader
Totale felleskostnader pr. d.d. kr 3.057,- pr. mnd.
Herav:
Fjernvarme 344,-
Oppstartskostnader 1.376,-
Felleskost. brøk 688,-
Felleskost. likt 350,-
TV/Bredbånd 299,-
3 057,-
Fjernvarme kr 344,-. Oppstartskostnader kr 1 376,-. Felleskostnader etter eierbrøk: 688. Felleskostnader som fordeles likt kr 350,-. TV og Bredbånd kr 299,-.
Lånevilkår
Kjøper oppfordres særskilt å vurdere konsekvensene av eventuelle renteendringer, lengde på evt avdragsfri periode, samt de økonomiske konsekvenser ved utløpet av en avdragsfri periode. Endringer i disse forhold vil medføre endringer i størrelsen av felleskostnadene.
Kjøper forutsettes også å være innforstått med at fellesgjelden i borettslaget og felleskostnadene kan variere over tid, og at den kan øke som følge av beslutninger i borettslagets styre eller generalforsamling.
Kjøpers ansvar for øvrige sameieres mislighold
For felles ansvar og forpliktelser hefter den enkelte sameiere i forhold til sin sameiebrøk, jf eierseksjonsloven § 24.
Utleie
En seksjonseier har rett til å leie ut sin seksjon, men leier må godkjennes av sameiet ved styret. Godkjenning kan bare nektes dersom det foreligger saklig grunn.
Konsesjon
Eiendommen er konsesjonsfri.
Odel
Det er ikke knyttet odelsplikt til eiendommen.
Diverse
Nabolaget fornebu
Spesielt anbefalt for:
Familier med barn
Etablerere
Godt voksne
Reguleringsmessige forhold/Kommunale planer
Innhentede reguleringsbestemmelser og utsnitt av reguleringsplan oppbevares på ansvarlig meglers kontor og kan utleveres på forespørsel.
Eiendommen/området er regulert til boligområde og næring.
Overtagelse
Etter avtale med selger.
Eierskifteforsikring
Selger har ikke tegnet eierskifteforsikring
Boligkjøperforsikring
Det gjøres oppmerksom på at kjøper har anledning til å tegne Boligkjøperforsikring ved kjøp av denne boligen. Det er en rettshjelpsforsikring som gir trygghet og profesjonell juridisk hjelp dersom det oppdages uventede feil eller mangler ved boligen de neste fem årene. Les om denne på www.help.no og ta kontakt med oss for ytterligere informasjon.
Energimerking
Eier skal legge frem energiattest for kjøper, før avtale om salg av boligen/bygningen blir inngått. Dersom eier ikke har lagt frem energiattest, og eier etter skriftlig anmodning fra kjøper ikke har lagt frem energiattest før avtale om salg er inngått, kan kjøper få laget en energiattest ved hjelp av ekspert for selgers regning, innen ett år etter at avtale om salg er inngått. Kjøper må skriftlig anmode om en energiattest innen kjøpekontrakten er underskrevet.
Budgivning
Som kjøper vil du få forelagt kopi av budjournal. Eiendomsmeglingsforskriften § 6-3 3. ledd forbyr oppdragsansvarlig i forbrukerforhold å videreformidle bud til selger med kortere akseptfrist enn til kl 12.00 første virkedag etter siste annonserte visning. Lørdag regnes ikke som virkedag. Vi fraråder derfor å inngi slike bud da de ikke vil bli videreformidlet til selger. Ethvert bud må ha en akseptfrist som muliggjør en forsvarlig avvikling av budrunden, samt at det må komme megler i hende minst et kvarter før tidligere bud går ut. For øvrig henvises til forbrukerinformasjon i vedlagt budskjema. I følge eiendomsmeglingsforskriften § 6-3 første ledd har oppdragsansvarlig en plikt til å oppfordre oppdragsgiver til ikke å ta imot bud direkte fra budgiver, men henvise til oppdragstaker.
Løsøre og tilbehør
Det er kun integrerte hvitevarer på kjøkken som medfølger dersom annet ikke er avtalt. For øvrig legges listen over løsøre og tilbehør, utarbeidet av Norges Eiendomsmeglerforbund, Eiendomsmeglerforetakenes Forening og Eiendomsadvokatenes Servicekontor, gjeldende fra 1.februar 2012, til grunn for salget dersom ikke annet fremkommer av salgsoppgaven. Listen er tilgjengelig hos oppdragsansvarlig samt på www.nef.no. Til orientering er det full avtalefrihet om hva som skal følge med bolig og fritidsbolig ved salg.
Lov om hvitvasking
I henhold til lov om hvitvasking og terrorfinansiering har megler plikt til å gjennomføre kontrolltiltak ovenfor kunder. Dette innebærer å bekrefte kunders identitet på bakgrunn av fremvist gyldig legitimasjon. Videre innebærer det å få bekreftet identiteten til eventuelle reelle rettighetshavere, og å innhente opplysninger om kundeforholdets formål.
Dersom megler får mistanke om brudd på hvitvaskingsreglementet i forbindelse med en eiendomshandel, og han ikke klarer å få avkreftet denne mistanke, har han plikt til å rapportere dette til Økokrim. Melding sendes Økokrim uten at partene varsles. Megler kan i enkelte tilfeller også ha plikt til å stanse gjennomføring av handelen.
Solgt "som den er"
Boligen selges som den er, jfr Avhendingslovens § 3-9. Kjøpsinteressenter gjøres kjent med at dette reduserer selgers ansvar etter Avhendingsloven og vil være en del av kontraktsvilkårene. I forhold til mangler, er det kun Avhendingslovens § 3-7 "manglende opplysninger om eiendommen" og § 3-8 "uriktige opplysninger om eiendommen" som kan påberopes, med mindre boligen er i vesentlig dårligere stand enn kjøperen hadde grunn til å regne med ut ifra kjøpesum og forholdene ellers, jfr Avhendingsloven § 3-9.
Selgeren er ikke kjent med at eiendommen er beheftet med mangler i relasjon til offentligrettslige krav ut over det som er opplyst tidligere, jfr Avhendingsloven § 3-2. Skulle det vise seg at slike krav ikke er oppfylt, er selgeren ikke ansvarlig for disse.
Finansiering
OBOS-banken tilbyr lån til alle slags boliger. På obosbanken.no kan du sjekke hvor mye du kan få i lån, beregne lånekostnader og søke om finansiering. Skal du kjøpe nytt før du har solgt din nåværende bolig, får du mellomfinansiering til samme rente som boliglånet.
Det gjøres oppmerksom på at OBOS Eiendomsmeglere AS kan motta et mindre honorar for salg av finansielle tjenester.
Les mer på obosbanken.no.
Salgsoppgave
Salgsoppgaven er opprettet 11.07.2019 og utformet iht. lov om eiendomsmegling av 29.06.2007.
Følgende dokumenter følger som vedlegg til salgsoppgaven: (skriv vedlegg her)
Salgsoppgaven er ufullstendig uten alle vedlegg.
Ansvarlig megler
Ansvarlig Megler Anita Theresia S.P. Skogsrud
Salgsoppgaven beskriver vesentlig og lovpålagt informasjon om eiendommen
Se komplett salgsoppgaveNyttige lenker
Nærområdet
OBOS eiendomsmeglere - Oslo Sentrum
Annonseinformasjon
| FINN-kode | 152149615 |
|---|---|
| Sist endret | 29. mai 2020 14:46 |
| Referanse | 701190117 |
Annonsene kan være mangelfulle i forhold til lovpålagt opplysningsplikt. Før bindende avtale inngås oppfordres interessenter til å innhente komplett informasjon fra meglerforetaket, selger eller utleier.





























