Bildegalleri

Velkommen til Vibes gate 9B. Et fantastisk utleieobjekt. 3 rom. Lave FK. God standard. Oppgradert 2019. Effektiv planløsning. Attraktiv beliggenhet
Solgt
Majorstuen
Fantastisk utleieobjekt. 3 rom. Lave FK. God standard. Oppgradert 2019. Effektiv planløsning. Attraktiv beliggenhet
Prisantydning3 260 000 kr
Nøkkelinfo
- Boligtype
- Leilighet
- Eieform
- Eier (Selveier)
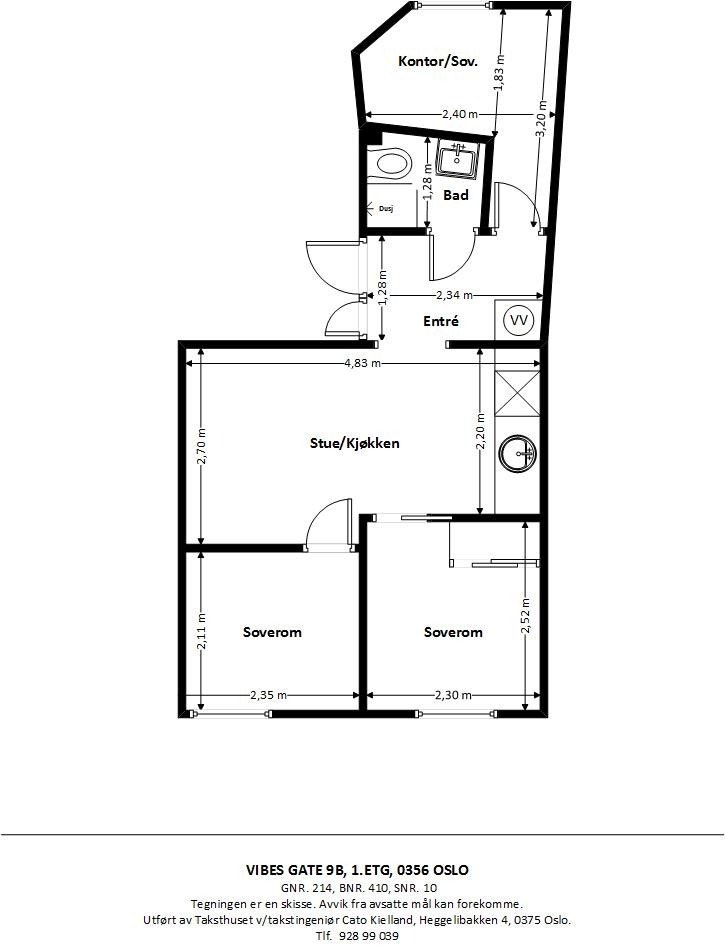
- Soverom
- 3
- Primærrom
- 36 m²
- Bruksareal
- 36 m²
- Etasje
- 1
- Byggeår
- 1900
- Energimerking
- G - Rød
- Tomteareal
- 405 m² (eiet)
- Bruttoareal
- 40 m²
Fasiliteter
Barnevennlig
Kabel-TV
Sentralt
Bredbåndstilknytning
Moderne
Rolig
Om boligen
<b>BN Bolig v/Anders Glasø har gleden av å presentere denne oppgraderte leiligheten i Vibes gate 9B:</b>
- Oppgradert i 2019
- TG1 på både kjøkken og bad ifølge takstmann
- Helt nytt bad fra 2019
- Lave bokostnader
- Eget vaskerom i gang
- Leilighetens areal er utnyttet til det fulle
- Leiligheten har 2 soverom og et kontor/sov.
- Her kan man sikre seg gode leieinntekter
- Kan med enkle grep gjøres om til en 3-roms
- Leiligheten vender ut mot en lite trafikkert gate
- Veldrevet sameie
- Ingen forkjøpsrett
- Umiddelbar nærhet til kollektivtransport med hyppige avganger
- Kort gangavstand til dagligvarebutikk/servicetilbud
- Attraktiv beliggenhet
<b>Dersom oppsatte visningstidspunkt ikke skulle passe, ta kontakt med Anders Glasø på tlf: 92859958 eller apg@bnbolig.no</b>
- Oppgradert i 2019
- TG1 på både kjøkken og bad ifølge takstmann
- Helt nytt bad fra 2019
- Lave bokostnader
- Eget vaskerom i gang
- Leilighetens areal er utnyttet til det fulle
- Leiligheten har 2 soverom og et kontor/sov.
- Her kan man sikre seg gode leieinntekter
- Kan med enkle grep gjøres om til en 3-roms
- Leiligheten vender ut mot en lite trafikkert gate
- Veldrevet sameie
- Ingen forkjøpsrett
- Umiddelbar nærhet til kollektivtransport med hyppige avganger
- Kort gangavstand til dagligvarebutikk/servicetilbud
- Attraktiv beliggenhet
<b>Dersom oppsatte visningstidspunkt ikke skulle passe, ta kontakt med Anders Glasø på tlf: 92859958 eller apg@bnbolig.no</b>
NB: Knappen for å vise hele beskrivelsen har kun en visuell effekt.
NB: Knappen for å vise hele beskrivelsen har kun en visuell effekt.
Salgsoppgaven beskriver vesentlig og lovpålagt informasjon om eiendommen
Se komplett salgsoppgaveNyttige lenker
Nærområdet
BN Bolig St. Hanshaugen
Annonseinformasjon
| FINN-kode | 151095029 |
|---|---|
| Sist endret | 16. juli 2019 13:18 |
| Referanse | 87-19-00035 |
Annonsene kan være mangelfulle i forhold til lovpålagt opplysningsplikt. Før bindende avtale inngås oppfordres interessenter til å innhente komplett informasjon fra meglerforetaket, selger eller utleier.


























