Bildegalleri

Her kan man virkelig finne hjemmefølelsen. Lekkert kjøkken og innbydende bad.
Solgt
MEKLENBORG/RØA
Lys og moderne 2-r med sydvestvendt, solrik veranda l Nær Marka l Ingen dok.avgift l Innflyttingsklar! Ingen forkjøp
Prisantydning3 350 000 kr
Nøkkelinfo
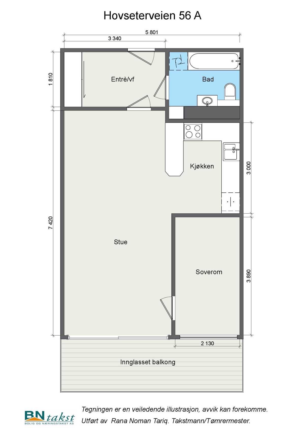
- Boligtype
- Leilighet
- Eieform
- Andel
- Soverom
- 1
- Primærrom
- 54 m²
- Bruksareal
- 64 m²
- Etasje
- 2
- Byggeår
- 1972
- Energimerking
- D - Rød
- Rom
- 2
- Tomteareal
- 39 100 m² (eiet)
- Bruttoareal
- 70 m²
- Boligselgerforsikring
- Ja
Fasiliteter
Balkong/Terrasse
Parkett
Barnevennlig
Rolig
Kabel-TV
Moderne
Sentralt
Vaktmester-/vektertjeneste
Fellesvaskeri
Bredbåndstilknytning
Om boligen
Velkommen til Hovseterveien 56 A i Meklenborg borettslag! Borettslaget er svært veldrevet og kan bla tilby trimrom, gjesteværelser, selskapslokale, badstu og snekkerrom. Leiligheten er godt vedlikeholdt og klar for ny eier.
Verdt å merke seg:
- Lys og pen 2-roms med god planløsning. Flytt rett inn
- Lekkert kjøkken og innbydende bad
- Solfylt veranda på hele 10 kvm
- God intern beliggenhet
- Røa senter kun 5 minutters gange fra leiligheten for bredt utvalg av butikker
- Mærradalen/marka med fine turstier rett utenfor døra
- Kort gangvei til Hovseter T-Banestasjon som lett frakter deg til Majorstuen på 9 min
- Lave felleskostnader
- Kabel-TV og bredbånd fra Get
- Lave kjøpsomkostninger da det ikke betales dokumentavgift (2,5 % av kjøpesummen) ved kjøp av andelsleilighet
- Ingen forkjøpsrett
NB: Knappen for å vise hele beskrivelsen har kun en visuell effekt.
NB: Knappen for å vise hele beskrivelsen har kun en visuell effekt.
Salgsoppgaven beskriver vesentlig og lovpålagt informasjon om eiendommen
Se komplett salgsoppgaveNyttige lenker
Nærområdet
OBOS eiendomsmeglere - Oslo Sentrum
Annonseinformasjon
| FINN-kode | 150571922 |
|---|---|
| Sist endret | 07. aug. 2019 14:06 |
| Referanse | 701190097 |
Annonsene kan være mangelfulle i forhold til lovpålagt opplysningsplikt. Før bindende avtale inngås oppfordres interessenter til å innhente komplett informasjon fra meglerforetaket, selger eller utleier.




















