Bildegalleri

Eie Røa ved Rajic & Overen Myhre ønsker velkommen til Hovseterveien 102 B!
Solgt
HOVSETER/RØA
Solgt, visning avlyst
Prisantydning3 999 990 kr
Nøkkelinfo
- Boligtype
- Leilighet
- Eieform
- Andel
- Soverom
- 2
- Primærrom
- 77 m²
- Bruksareal
- 77 m²
- Etasje
- 4
- Byggeår
- 1975
- Energimerking
- F - Rød
- Tomteareal
- 9 900 m² (eiet)
- Bruttoareal
- 85 m²
- Boligselgerforsikring
- Ja
Fasiliteter
Balkong/Terrasse
Parkett
Barnevennlig
Rolig
Kabel-TV
Moderne
Sentralt
Garasje/P-plass
Turterreng
Offentlig vann/kloakk
Vaktmester-/vektertjeneste
Fellesvaskeri
Bredbåndstilknytning
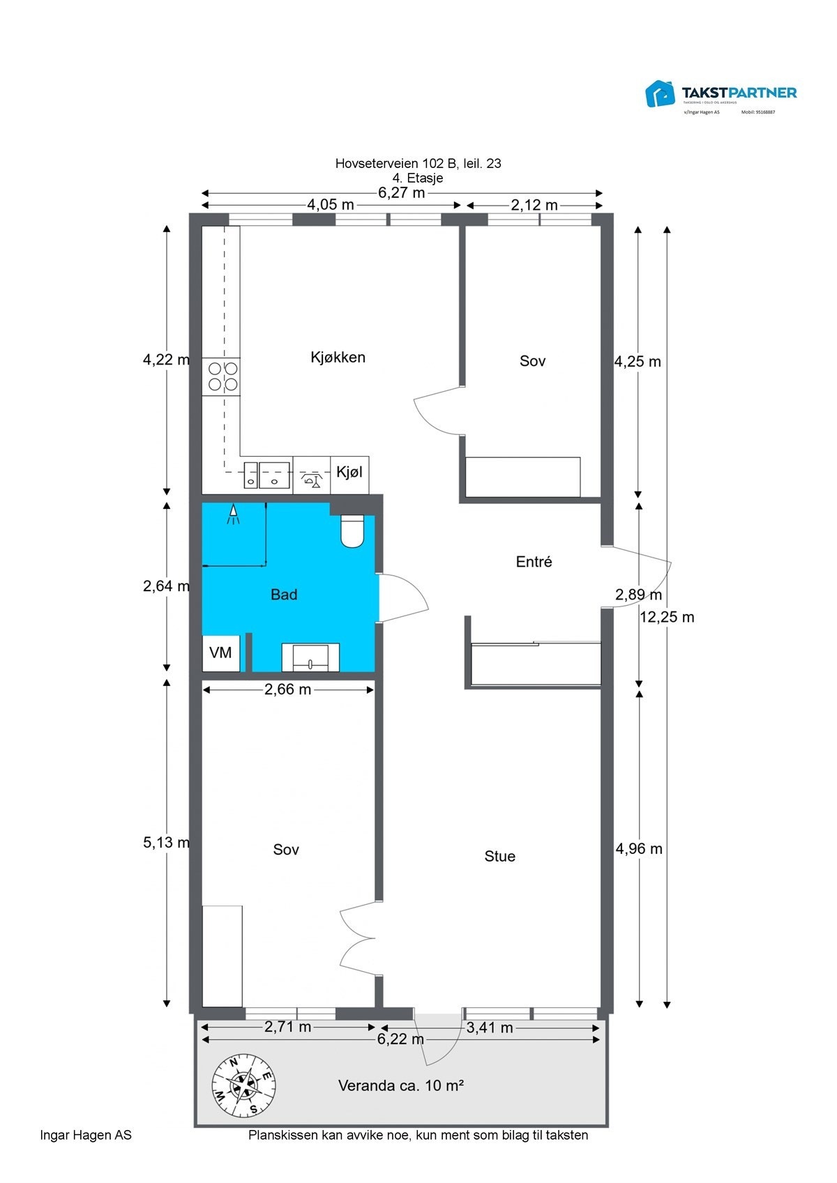
Om boligen
Eie Røa ved Rajic & Overen Myhre ønsker velkommen til Hovseterveien 102 B - delikat 3-roms leilighet på Hovseter like ved Røa. Leiligheten holder en gjennomgående god standard med flere oppgraderinger foretatt de senere år. Her bor du rolig til med kort vei til skoler/barnehager, marka og offentlig kommunikasjon!
Verdt å merke seg:
- Gjennomgående 3-roms
- Lekkert oppusset bad fra 2017
- Sydvest-vendt veranda på ca. 11 kvm
- Gode solforhold og lite innsyn
- Separat kjøkken med god skap - og benkeplass
- To romslige soverom
- Godt med lagringsplass i flere boder
- Parkeringsplass i garasjeanlegg
- Varmtvann og KabelTV/Internett inkl
- Hyggelig og sosialt borettslaget med flere fellesfasiliteter som treningsrom, selskapslokale og hybler til leie for beboerne
- Kort vei til skoler og barnehager
- Kort vei til buss og t-bane
NB: Knappen for å vise hele beskrivelsen har kun en visuell effekt.
NB: Knappen for å vise hele beskrivelsen har kun en visuell effekt.
Salgsoppgaven beskriver vesentlig og lovpålagt informasjon om eiendommen
Se komplett salgsoppgaveNyttige lenker
Nærområdet
EIE eiendomsmegling Røa, Skøyen og Ullern
Annonsene kan være mangelfulle i forhold til lovpålagt opplysningsplikt. Før bindende avtale inngås oppfordres interessenter til å innhente komplett informasjon fra meglerforetaket, selger eller utleier.



































