Bildegalleri

Velkommen til Heierstuveien 42 - et lyst, flott oppusset og romslig enderekkehus med hage. Boligen har god planløsning, gruepeis og utsikt mot sydøstlige deler av byen. En markanær bolig med kort vei til sentrale servicefunksjoner på Storo/Nydalen.
Solgt
KOSELIG ENDEREKKEHUS PÅ KORSVOLL/TÅSEN
Sjarmerende enderekkehus over 3 plan + loft - God standard - Arealeffektiv planløsning - Idyllisk hage - Nær Havnabakken
Prisantydning8 900 000 kr
Nøkkelinfo
- Boligtype
- Rekkehus
- Eieform
- Eier (Selveier)
- Soverom
- 3
- Primærrom
- 136 m²
- Bruksareal
- 138 m²
- Byggeår
- 1951
- Energimerking
- G - Rød
- Rom
- 4
- Tomteareal
- 102 m² (eiet)
- Bruttoareal
- 153 m²
Fasiliteter
Balkong/Terrasse
Barnevennlig
Bredbåndstilknytning
Hage
Kjæledyr tillatt
Ingen gjenboere
Kabel-TV
Peis/Ildsted
Rolig
Sentralt
Utsikt
Bademulighet
Turterreng
Om boligen
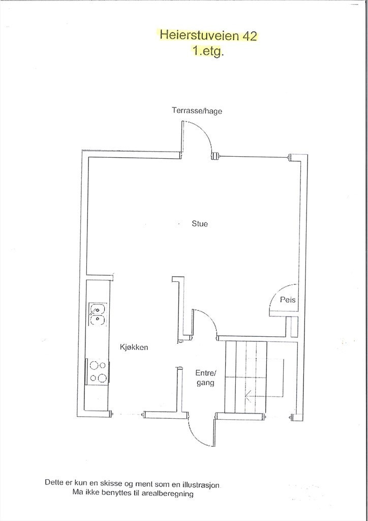
Et lyst og koselig rekkehus med god planløsning og standard. Praktisk innredet for familier med 3 soverom og bad/wc i 2. etg, romslig kjøkken og stue med utgang til hage i 1. etasje, innredet tv-stue, kontor og stort wc-rom og stort vaskerom/oppbevaringsrom i kjellerplan.
Murt gruepeis i stuen med god trekk.
Utebod + fellesbod.
Lekeplass på fellesområdet til sameiet.
Hagen er pent opparbeidet og beplantet med plen, hekk og bed. Et herlig uteområde for å nyte vårdager og grilling.
Åpent utsyn mot sydøst.
Boligen ligger få minutters gange fra det flotte friområde Havnabakken med populære barnehager, skoletilhørighet til idyllisk beliggende Korsvoll barneskole, gangavstand til t-bane på Østhorn og buss i Maridalsveien og Karl Kjelsens vei, Nordmarka og Akerselva i nabolaget.
Murt gruepeis i stuen med god trekk.
Utebod + fellesbod.
Lekeplass på fellesområdet til sameiet.
Hagen er pent opparbeidet og beplantet med plen, hekk og bed. Et herlig uteområde for å nyte vårdager og grilling.
Åpent utsyn mot sydøst.
Boligen ligger få minutters gange fra det flotte friområde Havnabakken med populære barnehager, skoletilhørighet til idyllisk beliggende Korsvoll barneskole, gangavstand til t-bane på Østhorn og buss i Maridalsveien og Karl Kjelsens vei, Nordmarka og Akerselva i nabolaget.
NB: Knappen for å vise hele beskrivelsen har kun en visuell effekt.
NB: Knappen for å vise hele beskrivelsen har kun en visuell effekt.
Salgsoppgaven beskriver vesentlig og lovpålagt informasjon om eiendommen
Se komplett salgsoppgaveNyttige lenker
Nærområdet
Nordvik Ullevål
Annonseinformasjon
| FINN-kode | 143091949 |
|---|---|
| Sist endret | 30. jan. 2020 11:58 |
| Referanse | NOP23.1979 |
Annonsene kan være mangelfulle i forhold til lovpålagt opplysningsplikt. Før bindende avtale inngås oppfordres interessenter til å innhente komplett informasjon fra meglerforetaket, selger eller utleier.




































































