Bildegalleri

Velkommen til visning i Nils Bays vei 59E - et flott oppusset enderekkehus med stor terrasse og solrike hagearealer, garasje og mulig utbygging av entré. Sentralt beliggende med kort vei til Ullevål Stadion, Tåsen barneskole, t-bane/buss/flybuss.
Solgt
ENDEREKKEHUS PÅ TÅSEN/ULLEVÅLSLETTA
Åpent, lyst, arealeffektivt enderekkehus med stor solrik hage & terrasse - Garasje - Barnevennlig innerst på rekken
Prisantydning8 950 000 kr
Nøkkelinfo
- Boligtype
- Rekkehus
- Eieform
- Eier (Selveier)
- Soverom
- 3
- Primærrom
- 97 m²
- Bruksareal
- 106 m²
- Byggeår
- 1960
- Energimerking
- G - Rød
- Rom
- 4
- Tomteareal
- 294 m² (eiet)
- Bruttoareal
- 117 m²
Fasiliteter
Balkong/Terrasse
Barnevennlig
Bredbåndstilknytning
Garasje/P-plass
Hage
Kjæledyr tillatt
Kabel-TV
Parkett
Peis/Ildsted
Rolig
Sentralt
Utvidelsesmuligheter
Vaktmester-/vektertjeneste
Turterreng
Om boligen
Et lyst, familievennlig enderekkehus med arealeffektiv planløsning og god standard. Boligen har en praktfull hage med svært gode solforhold og en skjermet, sydvestvendt terrasse (22kvm) med plass til stor spisegruppe, utepeis og grill. Boligen ligger innerst i rekken uten gjennomgangstrafikk. Garasje.
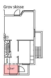
1. etg består av entré (mulig utvidelse på 4,3 kvm), trappegang, kjøkken (2013), stue med utgang til terrasse og hage.
2. etg består av gang, 3 soverom - ett med fransk balkong, bad/wc (2012).
Kjelleretasje som er innredet med tv-stue og 9 kvm bod.
Loft med god lagringsplass.
Populær beliggenhet med kort gange til t-bane/buss, Ullevål Stadion, Tåsen barneskole, Damefallet og marka.
Velkommen til visning i Nils Bays vei 59E!
1. etg består av entré (mulig utvidelse på 4,3 kvm), trappegang, kjøkken (2013), stue med utgang til terrasse og hage.
2. etg består av gang, 3 soverom - ett med fransk balkong, bad/wc (2012).
Kjelleretasje som er innredet med tv-stue og 9 kvm bod.
Loft med god lagringsplass.
Populær beliggenhet med kort gange til t-bane/buss, Ullevål Stadion, Tåsen barneskole, Damefallet og marka.
Velkommen til visning i Nils Bays vei 59E!
NB: Knappen for å vise hele beskrivelsen har kun en visuell effekt.
NB: Knappen for å vise hele beskrivelsen har kun en visuell effekt.
Salgsoppgaven beskriver vesentlig og lovpålagt informasjon om eiendommen
Se komplett salgsoppgaveNyttige lenker
Nærområdet
Nordvik Ullevål
Annonseinformasjon
| FINN-kode | 143056172 |
|---|---|
| Sist endret | 10. mai 2019 12:06 |
| Referanse | NOP23.1973 |
Annonsene kan være mangelfulle i forhold til lovpålagt opplysningsplikt. Før bindende avtale inngås oppfordres interessenter til å innhente komplett informasjon fra meglerforetaket, selger eller utleier.







































































