Bildegalleri

Velkommen til Hovseterveien 38 a - Presentert av Eie Eiendomsmegling Røa v/ Nikolai
Solgt
Hovseter/Røa
Stor 3-roms leilighet med balkong | Gjennomgående planløsning | Garasjeplass | Bad og vaskerom | Moderniseringsbehov
Prisantydning3 990 000 kr
Nøkkelinfo
- Boligtype
- Leilighet
- Eieform
- Andel
- Soverom
- 2
- Primærrom
- 83 m²
- Bruksareal
- 83 m²
- Etasje
- 3
- Byggeår
- 1973
- Tomteareal
- 39 240 m² (eiet)
- Bruttoareal
- 91 m²
- Boligselgerforsikring
- Ja
Fasiliteter
Balkong/Terrasse
Parkett
Ingen gjenboere
Barnevennlig
Rolig
Kabel-TV
Sentralt
Garasje/P-plass
Turterreng
Offentlig vann/kloakk
Om boligen
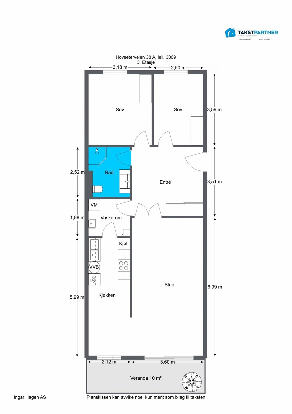
<P>Eie Eiendomsmegling Røa v/ Nikolai Hauglund har gleden av å presentere en gjennomgående 3-roms i attraktive Meklenborg borettslag. Borettslaget ligger i et naturskjønt og barnevennlig område like ved Røa, med umiddelbar nærhet til marka, kort vei til barnehager og skoler, samt flere muligheter for offentlig kommunikasjon.<BR><BR><STRONG>Verdt å merke seg:</STRONG><BR>- Solrik balkong på 10 kvm vendt mot fine grøntområder<BR>- 2 romslige soverom<BR>- Stort bad<BR>- Stort potensial i leiligheten<BR>- "Vaskerom" mellom kjøkken og toalettrom<BR>- God lagringsplass i flere boder<BR>- Garasjeplass<BR>- Barnevennlig beliggenhet<BR>- Kort vei til offentlig kommunikasjon<BR>- Flere skoler og barnehager i gåavstand fra boligen<BR>- En rekke butikk - og servicetilbud i området</P>
NB: Knappen for å vise hele beskrivelsen har kun en visuell effekt.
NB: Knappen for å vise hele beskrivelsen har kun en visuell effekt.
Salgsoppgaven beskriver vesentlig og lovpålagt informasjon om eiendommen
Se komplett salgsoppgaveNyttige lenker
Nærområdet
EIE eiendomsmegling Røa, Skøyen og Ullern
Annonseinformasjon
| FINN-kode | 130871325 |
|---|---|
| Sist endret | 19. okt. 2018 14:59 |
| Referanse | 50180170 |
Annonsene kan være mangelfulle i forhold til lovpålagt opplysningsplikt. Før bindende avtale inngås oppfordres interessenter til å innhente komplett informasjon fra meglerforetaket, selger eller utleier.





























