Bildegalleri

Nydelig arkitekttegnet og moderne bolig med utsøkt beliggenhet kun 20 meter fra vannkanten.
Byneset - Nydelig enebolig helt ned mot fjorden. Byggeår 2016. Spektakulær utsikt. Dobbeltgarasje. 88m² takterrasse.
Nøkkelinfo
- Boligtype
- Enebolig
- Eieform
- Eier (Selveier)
- Soverom
- 5
- Primærrom
- 216 m²
- Bruksareal
- 300 m²
- Byggeår
- 2016
- Energimerking
- B - Gul
- Tomteareal
- 748 m² (eiet)
- Bruttoareal
- 330 m²
- Boligselgerforsikring
- Ja
Fasiliteter
Visning
Ta kontakt for å avtale visning.Om boligen
Nydelig arkitekttegnet enebolig med utsøkt beliggenhet kun 20 meter fra vannkanten. Boligen ble oppført i 2016 og holder en svært høy og påkostet standard. Boligen har fantastisk fjordutsikt og optimale solforhold.
Kvaliteter ved eiendommen:
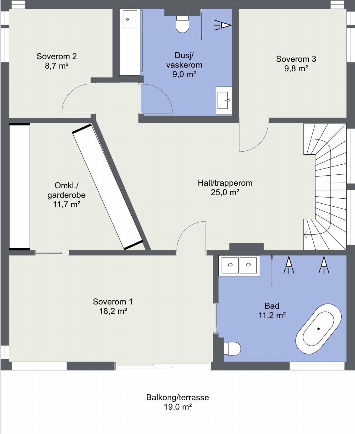
- Totalt ca 145m² terrasser.
- Stue og kjøkken på hele 74,5m² med vinduer fra tak til gulv.
- 4 soverom på 18,2m², 9,8m², 8,7m² og 8,4m².
- TV-stue kan benyttes som ett 5. soverom.
- Hovedsoverom med privat bad og walk-in-closet.
- Oppvarming via bergarme med vannbåren varm.
- Balansert ventilasjonsanlegg med varmegjenvinning.
- Stor dobbeltgarasje med elektrisk port.
- Smarthus fra ABB - Styrer lys, varme, utvendig screen, markise og porttelefon med kamera.
- Store boder i sokkel med flere bruksmuligheter.
- Beliggende kun 20 minutters kjøring fra sentrum.
Salgsoppgaven beskriver vesentlig og lovpålagt informasjon om eiendommen
Se komplett salgsoppgaveNyttige lenker
Nærområdet

PrivatMegleren Benum & Johansen
Annonseinformasjon
| FINN-kode | 129238404 |
|---|---|
| Sist endret | 14. aug. 2019 08:10 |
| Referanse | 164180288 |
Annonsene kan være mangelfulle i forhold til lovpålagt opplysningsplikt. Før bindende avtale inngås oppfordres interessenter til å innhente komplett informasjon fra meglerforetaket, selger eller utleier.













































