Bildegalleri

Baglerfaret 7 A og B presenteres av daglig leder Tommy Stensrud v/ Boa Eiendomsmegling Nordstrand.
EKEBERGÅSEN: Stor enebolig fra 2013 med minst 18.000,- i leieinntekter. 4 garasjeplasser. Fantastisk utsikt!
Nøkkelinfo
- Boligtype
- Enebolig
- Eieform
- Eier (Selveier)
- Soverom
- 5
- Primærrom
- 242 m²
- Bruksareal
- 279 m²
- Byggeår
- 2013
- Energimerking
- C - Oransje
- Rom
- 9
- Tomteareal
- 1 118 m² (eiet)
- Bruttoareal
- 332 m²
- Boligselgerforsikring
- Ja
Fasiliteter
Adresse
Baglerfaret 7 A og B
Kort oppsummert
Baglerfaret 7 A og B har en attraktiv plassering i Ekebergåsens øvre del, med fantastisk utsikt over hele byen og sol frem til 22:30 midtsommers.
Huset ble ferdigstilt i 2013 og har en innholdsrik plan- og romløsning som omfatter tre etasjer og inkluderer en hybel samt en sekundær leilighet. Begge sistnevnte er nå utleid for til sammen kr. 18.000,- per måned, skattefritt.
Plasseringen i Ekebergåsen gir deg enkel tilgang til flotte turmuligheter i nærheten, samtidig bor du svært sentralt med kun få minutter til bygatene i sentrum. Med kort vei ned til til Bjørvika vil du samtidig få enkel tilgang til byens kanskje mest spennende område for utvikling og fornyelse, her ligger også det nye sjøbadet som er unikt i by-sammenheng.
- Innholdsrik enebolig øverst i Ekebergåsen
- Fantastisk utsikt over byen
- Utleid hybel og sekundærleilighet i første etasje
- Skattefri inntekt på kr. 18.000,- per måned
- Oppført i 2013 - moderne standard
- Totalt 4 bad, 5 soverom, 4 stuer og 3 kjøkken
- Gode oppbevaringsmuligheter med bod i hver etasje
- 2 boder og parkering i underjordisk garasjeanlegg
- Terrasser med sol frem til 22:30 midtsommers
- Påkostninger bør påberegnes - les salgsoppgaven nøye, konferer megler
- Friområde med skog rett over gaten
- Sokner til Ekeberg barneskole
- Få minutter til sentrum med sykkel
- 34-, 70- og 74-bussen samt nattbusser i nærområdet
- Nærhet til Sørenga og den nye badeparken
- Innholdsrik enebolig øverst i Ekebergåsen
Ditt nye hjem
Hoveddel
Hoveddelen omfatter husets første og andre etasje, i tillegg til en romslig hall i underetasjen.
Over halve arealet av første etasje er viet til et samlingsrom bestående av stuen og kjøkkenet. Her råder en utpreget lys atmosfære på dagtid, og gjennom vinduene i syd- og vestveggen er det herlig utsikt over byen. Stuen er av generøs størrelse og enkel å møblere etter eget ønske, gjerne med store sittegrupper med plass til mange. En dekorativ, hvitlakkert peisovn setter stemningen i rommet når du tenner opp på kjølige dager.
Kjøkkenet defineres av en svært omfangsrik løsning som er åpent forbundet med stuen og har rikelig med oppbevaringsmuligheter samt meterlange benker å tilberede måltidene på. Kjøkkenet er velutstyrt med samtlige hvitevarer helintegrert, deriblant en induksjonstopp av bred type, stekeovn som er praktisk plassert i benkehøyde og et dypt kjølehjørne. Supplerende oppbevaringsplass er det i dels åpne og dels frostede benkeskap som vender ut mot stuen.
En mindre stue tilknyttet den sosiale sonen benyttes i dag som en separat TV-stue og kan også ha potensial som et bibliotek.
Fra begge stuer kan du gå direkte ut til terrassene som byr på vidstrakt utsyn og sol frem til omkring klokken 22:30 midtsommers. Terrassene er ypperlige for måltider og ledige stunder i friluft når været tillater.
I en mer tilbaketrukket del av første etasje finner du blant annet hovedsoverommet - et master bedroom med eget bad. Soverommet er voluminøst, badet er moderne og elegant utført med mørke veggfliser, lyse gulvfliser og hvite baderomsmøbler.
Et separat toalettrom for gjestene er plassert ved gangen, lett tilgjengelig og samtidig tilbaketrukket fra den sosiale sonen. Samme sted finner du i tillegg vaskerommet som er påkostet med smart innredning og ikke minst av god størrelse til sitt formål.
Hoveddelens øvrige tre soverom er samlet i andre og øverste etasje, alle velfungerende som barnerom hvorav to er av identisk areal. Andre etasje har også et eget bad som interiørmessig langt på vei er en videreføring av hovedsoverommets bad, men har også et lite badekar i tillegg til dusjmulighet.
Hjertet av andre etasje er en romslig stue som har fantastisk utsikt over byen og gir deg en helt unik opplevelse av å bo i høyden. Etter mørkets frembrudd blir lysene fra byen et pent skue å hvile øynene på. Etasjen har i tillegg en vestvendt veranda hvor du kan få med deg solnedgangene i svært luftige omgivelser.
Hybel
Hybelen ligger i hoveddelens første etasje og har adkomst rett fra vindfanget. Romløsningen tilsvarer en ett-roms med soveplass delt av fra stuen. Hybelens kjøkken har en nøytral fremtoning med hvite fronter, oppbevaringsplass for det essensielle samt stekeovn og platetopp innbygget.
Vel så nøytralt innredet er badet med hvite og grå fliser, servant og klosett samt dusjhjørne. Hybelbadet har naturligvis også opplegg til en vaskesøyle.
Sekundær leilighet
Den sekundære leiligheten har egen entré vis á vis hovedentréen og tilsvarer en 2-roms med et fullverdig soverom.
En sosial sone bestående av stuen og kjøkkenet utgjør leilighetens naturlige midtpunkt og er stor nok til å romme en sofa og et spisebord. Kjøkkeninnredningen har en stilsikker og helhethetlig fremtoning med samtlige hvitevarer helintegrert og ellers gode oppbevaringsmuligheter.
Det er verdt å fremheve de tofløyede terrassedørene som gjør det mulig å åpne stuen mot uteplassen som er forbeholdt den sekundære leiligheten. Slik får du med enkle grep en utpreget luftig atmosfære innendørs på varme sommerdager.
Soverommet har adkomst via en mellomgang dedikert til garderobeformål, mens badet har adkomst rett fra entréen som i seg selv er av generøs størrelse.
Badets overflater og innredninger er langt på vei i samme utførelse som i hybelens bad, men baderomsmøblene er her mer omfangsrike og viderefører det stilmessige uttrykket fra kjøkkenet.
Innenfor badet er en stor bod med større areal og dertil gode oppbevaringsmuligheter for stort og smått av eiendeler.
Eierbrøk
Seksjonsbrøk: 95/285
Innhold
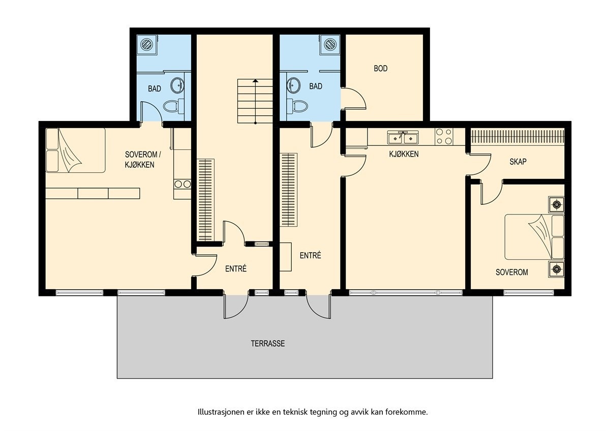
Underetasje, hoveddel: Vindfang, hall og trappegang.
Underetasje, hybel: Bad og stue med kjøkken.
Underetasje, sekundær leilighet: Entré, bad, bod, garderobe, soverom, stue med kjøkken og utgang til uteplass.
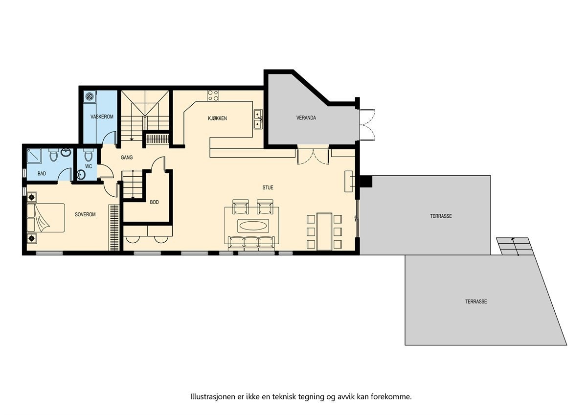
1. etasje: Trappegang, bod, vaskerom, toalettrom, hovedsoverom med bad, stue med kjøkken samt TV-stue. Utgang til terrasse fra begge stuer.
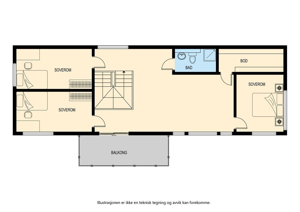
2. etasje: Trappegang, bod, bad, 3 soverom og stue med utgang til veranda.
Beliggenhet og nærområdet
Eiendommen er tilbaketrukket innerst i Baglerfaret, i en del av gaten som er uten gjennomgangstrafikk og har et stille, barnevennlig miljø. Rett over gaten er et større friområde med skog som både skjermer og setter et grønt preg på omgivelsene, spesielt i sommermånedene.
Her vil du bo i Ekebergåsens øvre del og et veletablert nabolag med nærhet til sentrumskjernen. Med sykkel tar du deg på fem minutter ned til Bjørvika og den nye Fjordbyen, et område som er i ferd med å bli et av byens desiderte tyngdepunkter. Her skjer utviklingen i rivende fart og nye forretninger, serveringssteder og kulturinstitusjoner kommer fortløpende på plass. Operaen er allerede vel etablert, og snart kommer både nytt hovedbibliotek og Munch-museum. Et prisverdig tilskudd er i tillegg den nye badeparken ytterst på Bjørvika som på kort tid har blitt en favoritt blant både store og små.
Rekreasjonsmulighetene i nærområdet er mange og inkluderer Ekebergskogen - Oslo kommunes største friområde - med et stort nett av turstier og sykkelveier og ikke minst Skulpturparken. I tillegg ligger den nylig oppussede Svartdalsparken like nedenfor, parken strekker seg oppover langs Alnaelva og er ypperlig å gå, sykle eller løpe hele veien opp til Østmarka om du vil. Forsøk en løpetur langs Alnaelva tidlig om morgenen når du har hele den trolske eventyrskogen for deg selv.
Veien er heller ikke lang opp til Ekeberg med turstier, ridesenter, lekeplass og oppkjørte skispor på gode vinterdager. Gå gjerne en tur i den nye skulpturparken og legg turen innom Ekebergrestauranten som har uteservering med byens råeste utsikt. Ekeberg og Brannfjell skoler ligger også her og er begge ansett som gode skoler. Det eksisterer ellers en rekke barnehager i nærområdet.
Bussholdeplasser finner du i Ryenbergveien og Konows gate der 34-, 70- og 74-bussen samt nattbusser passerer. Nærmeste T-banestopp ligger på Ryen.
Tomt
Areal: 1 118 kvm. Eierform: Eiet tomt felles for sameiet.
Tomten er "delt" i praktiske bruksområder for hver seksjon.
Parkering
Stor garasje, med plass til 6 biler ( hvorav 2 plasser som disponeres av nabohuset).
Forøvrig medfølger det smal parkeringsplass ved innenfor boligen (østsiden).
For øvrig gateparkering etter gjeldende bestemmelser.
Naboeiendommen i Baglerfaret 7 C har opsjon på kjøp av ytterligere 1 plass i garasjeanlegget til en pris på kr 250.000,-. Prisen skal indeksreguleres etter konsumprisindeksen. Avtale inngått i 2013.
I forbindelse med elbilplassen (som pt. disponeres av naboen) så betaler de for den strømmen de bruker. Det er installert en strømmåler som viser antall kWh i teknisk rom i garasjen.
Ved overtakelse er det opp til kjøper om de ønsker å videreføre denne avtalen eller ikke.
Byggemåte
Kort utdrag hentet fra tilstandsrapport:
Enebolig med utleiedel i betong-, Leca- og trekonstruksjoner.
Det er lagt varmekabel i skiferbelagt trapp opp til inngangspartiet.
Bak- og sidevegger i U. etasje er innvendig foret ut med treverk og trolig isolert.
Grunnmur i antar Leca-isoblokk.
Yttervegger over grunnmur i bindingsverk som utvendig er kledd med stående kledning.
Vinduer og balkong-/terrassedører med isolerglass.
Saltak i trekonstruksjon som er tekket med takstein.
Utdrag fra tilstandsrapport (det presiseres at rapporten må leses grundig i sin helhet):
Plan- og bygningsetaten har påklaget feilplassert støttemur ved utendørs parkeringsplass.
Feilplasseringen har medført at parkeringsplassen er for smal til bilparkering.
Ved tilbygging i bakkant av 1. etasje ble det samtidig bygget et tak fra bakre langvegg og inn mot fjellet i bakkant av boligen. Det ble også lukket vertikalt ned ved bakre hushjørner. Ved at dette ble gjort så forårsaket dette at det ble et tilnærmet lukket hulrom bak huset. I det samme hulrommet er avtrekkskanaler fra bad- og kjøkkenvifter ledet + at det trolig renner vann på fjellet. Dette har forårsaket store skader i taket over hulrommet + i tilbygd rom. På taket over hulrommet er påstøpen delvis fjernet og det var ved befaring tildekket med presenninger, som gjør det vankelig å få et fullt inntrykk av skadene. Taket og rommet bør rives.
Hulrommet ble kun besiktiget fra åpning i veggen i hjemmekontoret. Det foreligger rapport vedr fukt- og soppskader.
Bygningens Rammetillatelse er gitt i 2009, på den den tiden var det TEK 7 som var gjeldene forskrift. Igangsettelsestillatelsen er gitt i 2012 og hvor det stilles krav til at den skal oppføres etter gjeldene forskrifter - som var TEK 10. Boligen oppfyller ikke disse kravene med tanke på ventilasjon. I TEK 10 er det krav til balansert ventilasjon og gjeldene bolig har kun naturlig avtrekk med avtrekksvifter i badene. Den tilfredsstiller dermed ikke de nyeste byggeforskrifters krav.
VEDRØRENDE FELLESGARASJE:
Det har ved enkelte tilfeller rent vann inn i garasjen.
Ved utkraget balkonggulv i 2. etasje er det åpent og ikke avsluttet med beslag samt at det
synlig isoporplater. Dette er feil bruk av isopor og er ikke tillatt uten at den er innstøpt eller
annen godkjent inndekning. Det er åpninger i utvendig gipsplater og vann vil kunne komme
inn i konstruksjonen samt at ståldragere er vanskelig materiale med tanke på kuldebro og
kondensering. Dette må fullføres/endres.
Ved taknedløp ved hellelagt platting foran
inngangspartiet i U. etasje er det synlig membran som stikker opp rundt rørene og ved
grunnmur. Med slik åpen avslutning vil det renne vann inn under membranen.
Bad 1. etasje og 2 bad u.etasje:
Dusjen ble ved befaring skrudd på og vannet rant litt sakt til sluket.
Gulvene synes ok - ingen observerbare skader, bortsett fra i tilbygd hjemmekontor som er
skadet. Kommenterte forhold gis TG 2 og bør fjernes.
Overflater og innredning
Gulv: Fliser og parkett.
Innervegger: Fliser og glatte malte flater.
Himlinger: Glatte malte flater.
Kjøkken hoveddel: Skapinnredning med glatte hvite og sorte fronter, grepskanter og laminerte hvite benkeplater. Innfelt spotbelysning under overskap. Nedfelt dobbel stålservant med ett-greps blandebatteri. Innbygget induksjonstopp, ventilator, stekeovn, mikrobølgeovn, oppvaskmaskin og kjølehjørne. Glassplate på vegg over kokesone.
Kjøkken hybel: Skapinnredning med glatte hvite fronter, stålgrep og laminert lys benkeplate. Nedfelt stålservant med ett-greps blandebatteri. Innbygget platetopp og stekeovn. Ventilator i overskap. Hvite metrofliser på vegger over benker.
Kjøkken sekundær leilighet: Skapinnredning med glatte grå fronter, stålgrep og laminert hvit benkeplate. Nedfelt stålservant med ett-greps blandebatteri. Innbygget platetopp, stekeovn, oppvaskmaskin og kjøleskap med fryser. Ventilator i overskap. Hvite metrofliser på vegg over benk.
Bad 1. etasje: Servantskap med glatt hvit front, forkrommet grep og heldekkende porselensservant med ett-greps blandebatteri. Veggspeil med integrert sidebelysning. Dusjhjørned med hånddusj og svingbar glassvegg. Veggmontert klosett.
Bad 2. etasje: Servantskap med glatte hvite fronter, stålgrep og heldekkende porselensservant med ett-greps blandebatteri. Innfelt veggspeil. Sideskap med glatte hvite fronter og stålgrep. Badekar med veggmontert armatur og hånddusj. Veggmontert klosett. Innfelt overskap med glatte hvite fronter og stålgrep.
Bad hybel: Veggmontert porselensservant med ett-greps blandebatteri. Innfelt veggspeil. Dusjhjørne med hånddusj og svingbare glassdører. Veggmontert klosett. Tilkoblingsmulighet for vaskemaskin.
Bad sekundær leilighet: Servantskap med glatt grå front, stålgrep og heldekkende porselensservant med ett-greps blandebatteri. Speilskap. Dusjhjørne med hånddusj og svingbare glassdører. Veggmontert klosett. Tilkoblingsmulighet for vaskemaskin.
Toalettrom, 1. etasje: Veggmontert porselensservant med ett-greps blandebatteri. Vegghengt speil. Veggmontert klosett.
Oppvarming
Varmekabler i alle gulv, bortsett fra i soverommene og bodene.
Det er panelovner i alle soverom bortsett fra et av soverommene i 2 etg.
Peisovn i stuen i 1. etasje.
Vei, vann og avløp
Offentlig vei, offentlig vann, offentlig kloakk. Det er private stikkledninger ut til offentlig nett.
Arealspesifikasjon
Bruksareal per etasje:
2. etasje: 69 kvm.
1. etasje: 98 kvm.
U. etasje: 42 kvm.
Utleiedel / U. etasje: 49 kvm.
Boder i sokkel: 21 kvm.
Følgende rom inngår i primærromarealet:
2. etasje: Stue, bad, 3 soverom
1. etasje: Trappegang, vaskerom, bad, stue/spisestue/ kjøkken, hjemmekontor, wc, soverom
U. etasje: Vindfang, trappegang, bad, stue/kjøkken
Utleiedel / U. etasje: Vindfang, bad, stue/kjøkken, gang, soverom
Adgang til utleie
Eiendommen kan kun leies ut til boligformål.
Separat utleiedel og praktikantdel i U. etasje.
Det vites ikke dette er utleiemuligheter som oppfyller offentligrettslige krav til utleieenheter utover hoveddelen.
Selger fikk ved kjøp av huset fikk vi oppgitt at utleiedelen er godkjent, og har leid den ut videre gjennom selskapet Leiebolig AS.
Regulering
Eiendommen er regulert til boligformål. For ytterligere opplysninger se vedlagte reguleringskart, med bestemmelser. Eller kontakt megler.
Eiendommen omfattes av kommunedelplan KDP-18 og KDP-7
Det foreligger planforslag innenfor kartutsnitt:
Solfjellsbakken 3 B - Oppføring av tomannsbolig med parkeringskjeller. Saksnummer 201405219
Baglerfaret 7 C - Fasadeendringer. Saksnr: 201808753
Baglerfaret 7 C - Bruksendring av kjeller fra tilleggsdel til hoveddel - Utskifting av vinduer
Saksnr: 201803487
Baglerfaret 9 - Oppføring av tomannsbolig - Saksnr: 201807170
Kommunale avgifter
Kommunale avgifter for 2018: kr. 19 214,97
Eiendomsskatt for 2018: kr. 11 818,00
Felleskostnader inkluderer
Ingen felles kostnader opplyst for sameiet.
Fellesgjeld
Ingen gjeld opplyst for sameiet.
Husordensregler/Vedtekter/Regnskap/Budsjett
Avtale om forpliktelser / vedtekter for sameiet følger. Dokumentet er ikke tinglyst.
Diverse
Boligen har ferdigattest utstedt 2014. Følger vedlagt.
Interessenter oppfordres til å undersøke boligen samt gjennomgå tilstandsrapport grundig før eventuell budgivning, gjerne sammen med sakkyndig.
Sameiet har legalpant for forfalte felleskostnader ihht eierseksjonsloven § 25. Pantet er begrenset oppad til folketrygdens grunnbeløp.
Det opplyses om at ingen kan eie mer enn to boligseksjoner i sameiet, jfr. lov om eierseksjoner § 22
Eiendommen sokner til Ekeberg skole og Brannfjell skole.
Canal digital leverer kabel tv og bredbånd. Fiber.
Årlig strømutgifter (både nettleie og forbruk) er ca kr.35 000,-
Oppgjør
Kjøpesum, samt omkostninger, skal være inne på meglers klientkonto innen overtagelse.
Budgivning
Alle bud skal inngis skriftlig til megler. Det første budet skal inngis på budskjema påført budgivers signatur. I tillegg må budgiver ha legitimert seg. Senere bud kan inngis per e-post til: boa@boaeiendom.no, SMS til megler eller per fax til megler: 22 11 60 01. Bud kan også inngis via budgivningsplattform på nett eller app. Velges denne løsning, er det ikke krav til å sende det første budet på budskjema. Megler skal så snart som mulig bekrefte skriftlig overfor budgiver at bud er mottatt.
Bud som ikke er skriftlig, eller som har kortere akseptfrist enn til kl. 12.00 første virkedag etter siste annonserte visning, vil ikke bli formidlet til selger. Et bud er bindende for budgiver når budet er kommet til selgers kunnskap. Selger står fritt til å akseptere eller forkaste ethvert bud, og er således ikke forpliktet til å akseptere det høyeste budet på eiendommen.
Megler skal, i den grad det er nødvending og mulig, informere de involverte i budrunden skriftlig om status i budgivningen.
Megler er forpliktet til å legge til rette for en forsvarlig avvikling av budrunden, og for at budene skal kunne bli behandlet og videreformidlet skriftlig til alle involverte parter, må ethvert bud ha en tilstrekkelig lang akseptfrist. Selger må skriftlig akseptere budet før budaksept kan formidles til budgiver. Budforhøyelser skal derfor ha akseptfrist på minimum 30 minutter fra budet inngis.
Salgsvilkår/AS IS
Eiendommen selges i den forfatning den er under visning. Salget følger Avhendingsloven § 3-9:
"Endå eigedomen er selt "som han er" eller med liknande allment atterhald, har eigedomen likevel mangel der dette følger av §§ 3-7 eller 3-8. Eigedomen har også mangel dersom han er i vesentlig ringare stand enn kjøparen hadde grunn til å rekne med ut i frå kjøpesummen og tilhøva ellers."
Kjøper kan derfor ikke påberope seg noen andre bestemmelser etter avhl. Kapittel 3, enn det som følger direkte av § 3-9. Dette reduserer selgers ansvar etter avhendingsloven og vil være en del av kontraktsvilkårene.
Opplysninger om innvendige arealstørrelser i salgsoppgaven er hentet fra takst på eiendommen. Opplysninger i salgsoppgaven er godkjent av selger.
Boligkjøperforsikring
Kjøper du bolig gjennom Boa Eiendomsmegling kan du tegne Boligkjøperforsikring gjennom HELP. Forsikringen tegnes senest ved kontraktssignering. Kontakt gjerne megler for utfyllende informasjon om Boligkjøperforsikring og HELP.
Copyright
All tekst og alle bilder i denne annonse er © BOA Eiendomsmegling og uautorisert kopiering eller gjenbruk er ikke tillatt.
Salgsoppgaven beskriver vesentlig og lovpålagt informasjon om eiendommen
Se komplett salgsoppgaveNyttige lenker
Nærområdet
Boa Eiendomsmegling
Annonsene kan være mangelfulle i forhold til lovpålagt opplysningsplikt. Før bindende avtale inngås oppfordres interessenter til å innhente komplett informasjon fra meglerforetaket, selger eller utleier.































































