Bildegalleri

Velkommen til Øvre Haugvegen 6 - En innholdsrik hel tomannsbolig på endetomt med god utsikt til Randsfjorden
Gran - Bjoneroa - Hel tomannsbolig med 6 soverom benyttet som enebolig. Stor tomt med utsikt til Randsfjorden. Offentlig
Nøkkelinfo
- Boligtype
- Enebolig
- Eieform
- Eier (Selveier)
- Soverom
- 5
- Primærrom
- 234 m²
- Byggeår
- 1977
- Energimerking
- E - Gul
- Renovert år
- 2017
- Tomteareal
- 1 740 m² (eiet)
- Bruttoareal
- 255 m²
Fasiliteter
Innhold
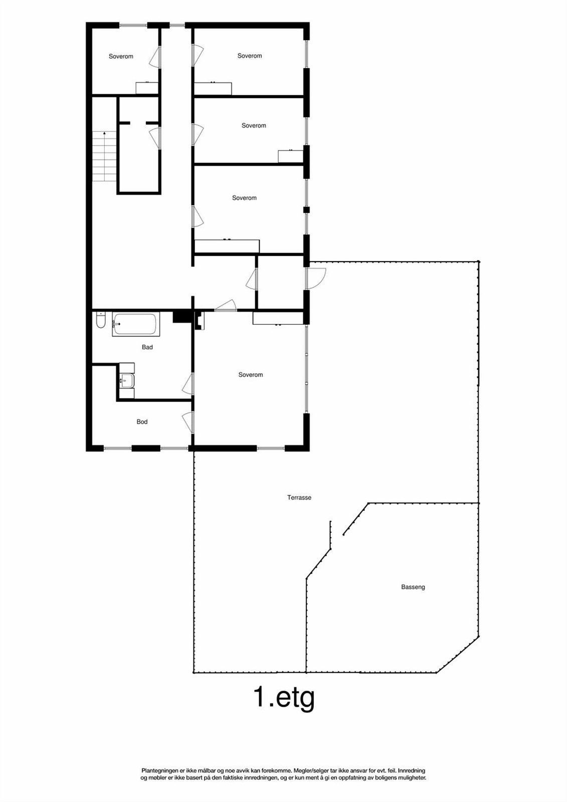
Boligen er på totalt 253 kvm BRA, fordelt over 2 plan, og inneholder:
1. etasje: 131 kvm BRA; Entré, hall, toalettrom, 2 soverom, bad-en-suite, vaskerom, stue og kjøkken i åpen løsning.
- I tillegg til medregnet areal er det veranda på ca 21 kvm som ikke er med i arealberegningen
Sokkel: 117 kvm BRA; Hall, 4 soverom, stue, vaskerom/bad, bodrom(tidligere kjøkken) og bodrom under trapp.
- I tillegg til medregnet areal er det stor terrasseplatting m/basseng på ca 130 kvm som ikke er med i arealberegningen.
Standard
Velkommen til Øvre Haugvegen 6 - En innholdsrik og betraktlig oppgradert bolig på en usjenert endetomt med nydelig utsikt over Randsfjorden og gode solforhold.
Boligen er opprinnelig en tomannsbolig, som pt benyttes som enebolig og inneholder totalt 6 soverom, 2 stuer og 2 vaskerom fordelt over 2 plan. Boligen er betraktlig oppgradert de siste 2 år, blant annet nevnes nytt kjøkken, nytt bad i 1.etasje, varmepumpe, renovering av soverom samt overflatebehandling av himling og vegger i stue/kjøkken.
Nytt delikat flislagt bad(2017) tilknyttet hovedsoverom med han & henne servant, store fliser, spottbelysning, og han & henne dusjnisje med regnskoghode integrert i himling, samt skjulte røropplegg og integrerte blandebatterier i vegg.
Separat nyoppusset toalettrom i hall, ypperlig plassert for når man har gjester på besøk. Oppusset i 2017. Da med tarkett på gulv og brystning bak toalett, vegghengt WC og heldekkende servant.
Kjøkken er nytt i 2017, da med kompositt benkeplate, integrert dobbel komfyr og dobbel oppvaskmaskin, demping på skuffer og skap og ikkeminst kjøkkenøy m/induksjons stekeplate og avtrekksvifte i himling med støysvak vifte over tak. Fra kjøkken er det åpen løsning mot stuen med store vinduer, røstet himling samt gavlvinduer, noe som gir rommet en flott og luftig følelse. I tillegg til rikelig med naturlig lys.
Romslig stue i åpen løsning mot kjøkken. Stuen er utstyrt med gavlvinduer mot nord-vest, røstet proffmalt himling av panel, generøse vindusflater mot Randsfjorden. Sammen med en koselig luftebalkong med adkomst fra både spisestue og kjøkken. Noe som gir både god romfølelse og et luftig fint inntrykk.
Vaskerom i begge etasjer. Da med opplegg for både vaskemaskin, tørketrummel og utslagsvask i begge etasjer. Vaskerom i kjeller er i tillegg kombinert bad utstyrt med toalett og steamdusj.
Mulighet for brebånd via Breiband satelittbrebånd. Inntil 20/6 Mbit/s linje opp/ned. Se gjerne https://www.breiband.no/bredband-bjoneroa/ for nærmere informasjon
Innvendige overflater generelt:
Gulv: Fliser på bad samt vinylbelegg i vaskerom og gang. Nyere Tarkett vinylstaver på wc-rom, stue/spisestue og kjøkken. Laminatgulv på begge soverom og i entré. Vinylstaver buler noe opp ved direkte solvarme på overflater. Eier opplyser at det er/skal reklameres på forhold.
Sokkeletasje: Ny Tarkett vinylstaver på to soverom, betonggulv i bod/teknisk rom og vinylbelegg på øvrig gulvflater. I hall hvor det tidligere var bad er det nå laget opphøyet gulv med bjelker
vas
Vegger: 1. etasje: Fliser på bad og våtromstapet på vaserom. Malte slette vegger på wc-rom og kjøkken. Øvrig veggflater med malt panel.
Sokkeletasje: Walls-to-paint plater på bad. Tapet og malte slette vegger i stue. Malt mur og trepanel i boder og i hall. Øvrig veggflater i hovedsak med panel/malt panel.
Himling: 1. etasje: Røstet panelt himling i stue med luke til kaldt loft i innvendig gavlvegg. Malte slette flater på bad og wc-rom. Øvrig himlinger med panel.
Sokkeletasje: Slett himling i boder, bad og stue. Øvrig himlinger med panel.
Oppgraderinger generelt:
2013: Nytt tak
2014: Varmepumpe
2016: Proffmalte overflater stue/kjøkken
2016: Vaskerom i kjeller oppgradert
2017: Nytt kjøkken
2017: Nytt flislagt bad i 1.etasje
2017: Terrasse/platting på ca 130 kvm
2017: Toalettrom 1.etasje
2017: Renovert 2 soverom sokkel
2017: Planert tomt
2018: Renovert soverom sokkel
Badebasseng medfølger. Sirkulasjonspumpe/ renseanlegg plassert under platting medfølger. Varmepumpe til basseng medfølger ikke. Varmepumpe i sokkel vil bli fjernet før overtagelse.
Eiendommen har to gårds og bruksnummer. Hvorav boligen står på en teig, samt garasje på egen teig.
Oppvarming
Luft til luft varmepumpe i stue og sokkel. Peisovn i stue. Elektriske varmekabler på bad, 4 soverom i sokkel, vaskerom og kjellerstue. Ellers elektrisk oppvarming via panelovner.
Siste feiing gjennomført den 02/10-2017. Iflg opplysninger fra kommunen den 25/06-18 er: Ingen avvik eller anmerkninger er registrert på avtalen.
Interessenter bes orientere seg om det enkelte roms oppvarmingskilde på befaringen.
Byggemåte
Boligen er oppført på ringmur av betong. Over fundament er boligen oppført med bindingsverk, utvendig kledd med stående panel. Tak er saltak tekket med plater. Beslag på pipe og vannbord.
Ferdigattest / midlertidig brukstillatelse
Det finnes ingen ferdigattest/midlertidig brukstillatelse i kommunens arkiver. Trolig grunnet byggets alder.
Utleie
Adgang til utleie:
Boligen inneholder ingen egen utleieenhet. Boligen er opprinnelig en tomannsbolig, som pt er benyttet som enebolig. Det er mulighet for omgjøring til utleiedel med enkle grep da boligen allerede er godkjent med 2 enheter.
Beliggenhet
Boligen ligger i solrike, landlige og naturskjønne omgivelser med fantastisk utsikt over Randsfjorden. Fra eiendommen er det gangavstand til bryggen ved Jokerbutikken, med gode bade, båt og fiskemuligheter.
Området kan by på flott natur med gode turmuligheter. I løpet av sommerhalvåret frister Randsfjorden med gode bademuligheter, båtliv, fiske og andre uteaktiviteter i naturskjønne og usjenerte omgivelser. Ellers så er det kort vei til velkjente Fjorda, som er et eldorado for de som ønsker å padle og tilbringe gode stunder ute i naturen. Vinterhalvåret er det flere brøytede skiløyper i kort avstand fra eiendommen
Adkomst
Fra Gjøvik:
Følg Fagernesvegen FV33 over Vardalsåsen og kjør til Svingvoll. Ta så til venstre på Flubergsvegen (FV34) og følg denne til Fluberg bru. Ved skiltet Fluberg bru, sving til høyre og følg veien over brua. Ta så første til venstre og fortsett på veien i ca. 30 km. Sving så til høyre inn på Ådalsvegen, kjør så ca 300m og ta inn til høyre på Øvre Haugvegen. Kjør så i ca 60 meter og ta til venstre over en liten bakketopp. Boligen ligger da i enden avveien.
Fra Oslo/Sandvika:
Kjør gjennom Hønefoss, ta av på toppen av Hønengata skiltet mot Jevnaker. Følg så veien i ca 9 km og ta til venstre skiltet mot Bjoneroa. Følg så vestsideveien i ca 37 km. Sving så til venstre inn på Ådalsvegen, kjør så ca 300m og ta inn til høyre på Øvre Haugvegen. Kjør så i ca 60 meter og ta til venstre over en liten bakketopp. Boligen ligger da i enden avveien.
Tomten
Stor og romslig selveiet tomt, pent opparbeidet med gressplen. Delvis inngjerdet med gjernde mot Ringeriksveien.
Parkering
Parkering for 2 personbiler i garasje, samt gode parkeringsmuligheter for flere biler på biloppstillingsplass.
Ta kontakt med megler for komplett informasjon
Nærområdet
DNB Eiendom AS
Annonseinformasjon
| FINN-kode | 124143723 |
|---|---|
| Sist endret | 24. aug. 2018 12:29 |
| Referanse | 51018241 |
Annonsene kan være mangelfulle i forhold til lovpålagt opplysningsplikt. Før bindende avtale inngås oppfordres interessenter til å innhente komplett informasjon fra meglerforetaket, selger eller utleier.



































