Bildegalleri

Velkommen til Hurdalsgata 24!

Inaktiv

DRØMMEBOLIG I LILLESTRØM: 335 m². Skattefri utleieinntekt kr. 30-36 500 per mnd./​kr. 360-438 000,- i året. Stor bolig p

Prisantydning9 950 000 kr
Kommunale avg.
23 186 kr per år
Formuesverdi
1 603 180 kr

Nøkkelinfo

Boligtype
Enebolig
Eieform
Eier (Selveier)
Soverom
9
Primærrom
304 m²
Bruksareal
335 m²
Byggeår
1964
Energimerking
G - Rød
Rom
12
Tomt
Eiet
Bruttoareal
375 m²
Boligselgerforsikring
Ja

Les mer om bruksareal her

Fasiliteter

Balkong/Terrasse
Peis/Ildsted
Parkett
Barnevennlig
Rolig
Kabel-TV
Moderne
Sentralt
Garasje/P-plass
Turterreng
Bredbåndstilknytning

Visning

Ta kontakt for å avtale visning.

Beskrivelse

VELKOMMEN TIL VISNING!

Hurdalsgata 24 er en stor og nydelig enebolig over tre plan med flott beliggenhet sentralt i Lillestrøm.

Boligen er betydelig påkostet i perioden 2015 - 2017 og fremstår som godt vedlikeholdt. Innvendig gir eneboligen et smakfullt og stilrent inntrykk med harmoniske og tidsriktige fargevalg etter råd fra interiørarkitekt. Praktisk, familievennlig og arealeffektiv planløsning.

Eneboligen har en solrik hage med gressplen som gir rikelig med plass for store og små og en herlig terrasseplatting, hvor solen kan nytes. I tillegg er en store innbydende takterrasse. Parkering i integrert garasjer med kjørerampe. Stor grusbelagt gårdsplass med mange P-plasser. Boligen har i dag en fleksibel planløsning som gir store spillerom for alternative innredninger og bruksmuligheter. Her kan du skape ditt eget drømmehjem som er tilpasses dine og familiens sitt behov. Det er utleiemuligheter både i innholdsrik kjelleretasje godkjent for varig opphold og i 1 etasje med etablering av praktikanthybel. Boligen egner seg også som en stor generasjonsbolig. Ved å bruke to av soverommene i andre etasje til walk-in closet vil huset også passe utmerket for barnefamilier med to barn.

Innhold

Kort fortalt:
- Meget innholdsrik enebolig med mange muligheter
- Gjennomgående modernisert og påkostet i perioden 2015-2017
- Fire separate innganger, to med porttelefon, en med elektronisk lås
- Store muligheter for skattefrie utleieinnekter
- Tre separate sikringsskap med automatsikringer.
- Alt av eksklusiv belysning i huset er nytt i 2017
- Alle veggene er malt i moderne gråfarger etter interiørarkitektens råd.
- Rikelig med garderobeskap og oppbevaringsplass, to garderober og ett omkledningsrom.
- Ni (9) romslige soverom, tre med skyvedørsgarderobe, to med klesbod.
- Stue er i åpen løsning med kjøkkenet, fire store vinduer og ny peisovn
- Arkitekttegnet Epoq kjøkken i 1. etasje fra 2016
- Fem (5) moderne bad, et nytt tegnet av interiørarkitekt og to (2) toalettrom, alle modernisert i 2017
- Separat vaskerom
- Underetasje med bl.a. skreddersydd smartkjøkken, praktisk kjellerstue med flott peisovn, soverom med mulighet til flere, tre (3) bad og stort trimrom med sporstbod
- Solrik takterrasse mot vest på ca. 48 kvm adgang fra både hovedsoverom i 2 etasje og via utetrapp fra bakkeplan.
- Terrasse mot syd på ca. 27 kvm, adgang både fra 1. etasje og med trapp ned fra takterrassen
- Solrik tomt, usjenert, flat og lettstelt hage med god plass
- Det er parkering i integrert garasje med elektrisk portåpner og direkte inngang til 1. etasje
- Godt med parkering på stor gårdsplass
- Arkitekttegnede uteboder
- Meget sentral beliggenhet med gangavstand til Lillestrøm sentrum
- To ferdigattester, en av dem for godkjent kjeller for varig opphold og utleie

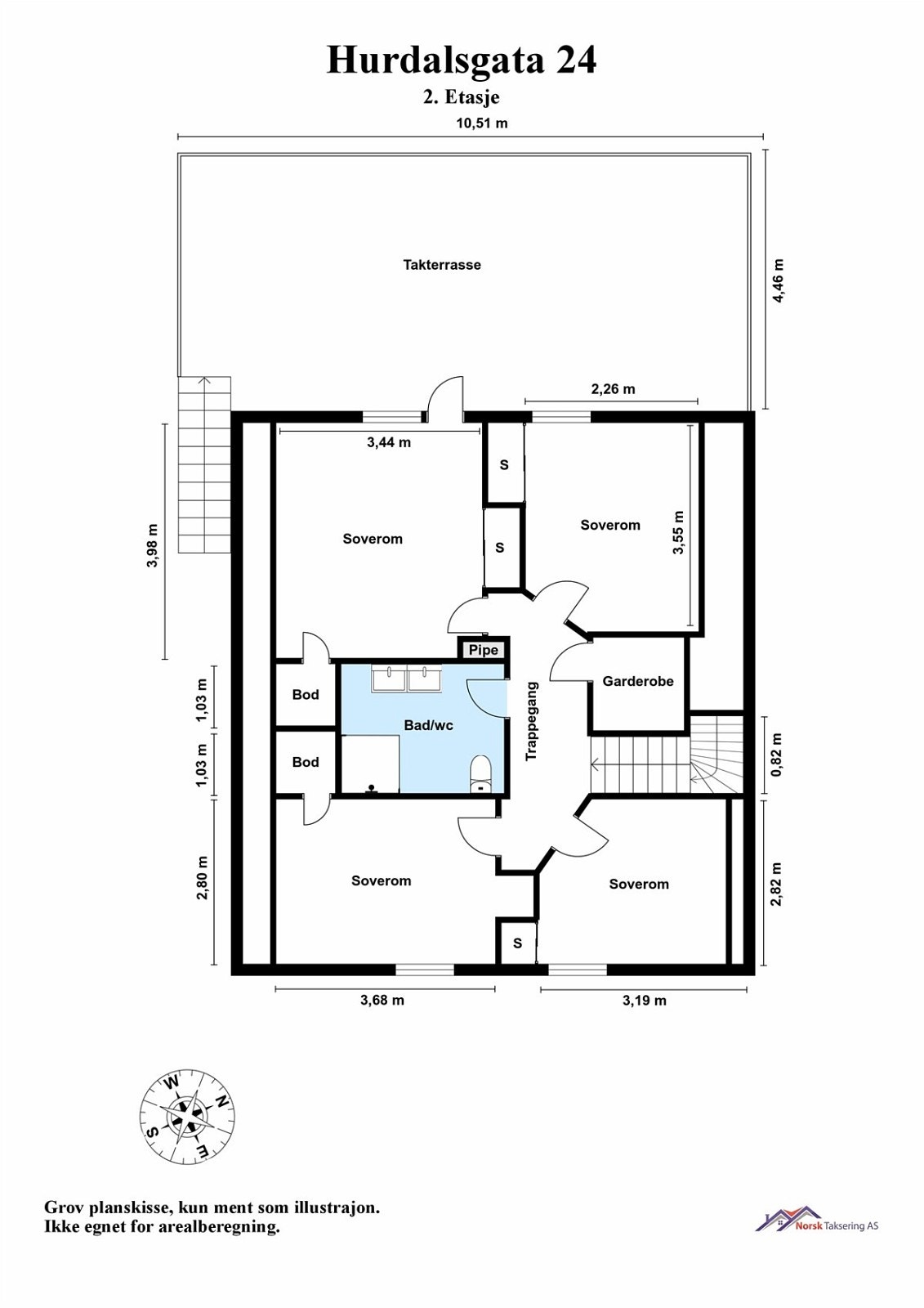
Innhold - Planløsning

1. etasje: Entré, bad/wc, wc, garderobe, 2 ganger, trapperom/hall, stue, kjøkken, 2 soverom, 2 innganger og slusen til direkte tilgang til garasjen

2. etasje: Trappegang, gang, bad/wc, 4 soverom, garderobe og 2 klesboder.

Kjelleretasje: 2 innganger, 2 ganger, 1 (2) kjøkken, 3 bad/wc, wc, trapperom, trappegang bak, 3 soverom, kjellerstue, vaskerom og stort trimrom. Innvendig og utvendig adkomst til kjelleretasje. Takhøyde målt i kjelleretasje: Trimrom ca. 2,35 m, bad/wc og gang ca. 2.45 m, et soverom ca. 2.55 m, to soverom og kjellerstue ca. 2.25 - 2.30 m.
Underetasjen er godkjent for varig opphold og brukes i dag for boligformål.
Loft: Adkomst til kaldtloft via trappeluke i trappegang 2.etasje.

Standard

Entré

Boligen har adkomst fra grusbelagt gårdsplass til et overbygd inngangsparti med dør fra 2016. Inngangsdøren har pene glassfelt og smart kodelås. Det er også et inngangsparti på baksiden av boligen samt to kjellernedganger, en av dem har montert utvendig rullegitter. Entreen gir et pent inntrykk med trestavs eikeparkett på gulv og tidsmessig farge på vegger. Skyvedørsgarderobe, samt direkte adkomst til separat wc, bad og en praktisk garderobe. Tilkobling til vaskemaskin i denne etasjen finner du i veggen bak skyvedørsgraderobene.

Kjøkken

Kjøkkenet ligger i åpen løsning med stuen og er et stilrent, arkitekttegnet Epoq kjøkken fra 2016 med god skap- og benkeplass. Innredning med hvite, glatte fronter, topphengslede overskap med belysning og laminert benkeplate med nedfelt oppvaskkum i sort kompositt. Videre har kjøkkenet integrert keramisk platetopp, oppvaskmaskin, kjøle-/fryseskap, samt integrert stekeovn og mikrobølgeovn i høyskap. Det er glassplate, benkbelysning og avtrekkventilator over kokesonen. Trestavsparkett og downlights.

Kjøkken 2

I kjelleretasjen har boligen et skreddersydd og arealeffektivt smartkjøkken med barløsning. Kjøkkenøya fungerer både som en hyggelig spiseplass og en god arbeidsbenk. Innredningen har gråmalte rammefronter, noen glassfronter, downlights i kasser over innredningen og laminert benkeplate med nedfelt oppvaskkum. Det er innfelt skap under et høytsittende vindu og uttrekkbart strykebrett. Av utstyr har kjøkkenet mikrobølgeovn med ventilator, ny integrert oppvaskmaskin, ny keramisk platetopp, nytt benkskap, to kjøleskap (ett av dem nye) og frys.

Stue

Innbydende stuen med trestavs eikeparkett, harmoniske fargevalg og god belysning fra spotlights montert på skinne. Fire store flotte vindusflater, utgang til herlig terrasse og god plass for møblering. Ny Aduro vedovn med glassdør plassert i hjørnet.

Kjellerstue/loft

Stor koselig kjellerstue, praktisk og godt potensiale. Delikate fargevalg, gode lysforhold fra høytsittende vinduer og lun varme fra trivelig og ny Asgard peisovn.

Loft over andre etasje: ca. 30 m2, 50% etterisolert
Loft over inngang/massasjerom ca. 10 m2

Bad/wc/vaskerom

Boligen inneholder fem bad, to separate wc-er. Tre av badene har gulvvarme, noen med varmekabler andre med vannbåren gulvvarme. Flotte fliser. Elektrisk sensorstyrt avtrekk og belysning på alle bad, på separate wc-rom samt elektrisk avtrekk i kjellerstuen og et av soverommene i kjelleretasje.

Badet i andre etasje er arkitekttegnet og modernisert i 2016. Frittstående toalett, samt dusjhjørne med skyvedører i glass og regnfallsdusj. Innredningen består av ett hvitt servantmøblement med glatte skuffefronter, heldekkende dobbelservant og to speil med tilhørende belysning.

Bad 2

Badet i første etasje er fra 2008 og ble modernisert med nye gulvfliser i 2017. Badet har frittstående toalett, samt separat dusjnisje med glassvegg, skyvedør og regnfallsdusj. Videre har badet servantinnredning med fronter i hvit høyglans og speil med belysning.

Bad 3, 4 og 5

I kjelleretasjen har boligen tre bad. alle fra 2008 og alle med nye flotte gulvfliser i 2017. Det første badet har servantinnredning med underskap, fronter med glassfelt, heldekkende servant og veggspeil med spotbelysning. Badet har også dusjnisje med glassvegg og skyvedør, regnfallsdusj og dusjgarnityr.

Det andre kjellerbadet har både veggmontert toalett og fin dusjnisje med regnfallsdusj. Rommet er innredet med ett hvitt servantmøblement med glatte fronter, heldekkende servant og speil med tilhørende belysning.

Det tredje badet i kjelleretasjen har veggmontert toalett og dusjnisje. Dusj med glassvegg, skyvedør og regnfallsdusj. Videre er det servantskap med hvite, profilert fronter, heldekkende servant og speil i overkant med belysning.

Vaskerom

Separat vaskerom i kjelleretasjen med laminatgulv og malte vegger med brystningspanel, pusset opp i 2017. Vaskerommet har en stor benkeinnredning med laminert benkeplate og benkskap, nedfelt skyllekum, samt opplegg for vaskemaskin og tørketrommel. Vaskerommet kan lett omgjøres til et soverom. Det er tilgang til å koble opp vaskemaskin både i 1 etasje og i kjelleretasje et annet sted.

Soverom og garderobe

Eneboligen har ni soverom. 3 med skyvedørsgarderobe og 2 med klesbod. Det ene soverommet i første etasje har egen gang/entre og plassbygd køyeseng. Denne delen kan tenkes å brukes også som en praktikanthybel, eller praktisk for den voksne tenåring. Utgang her gjør det også enkelt å frakte maten fra stua/kjøkken ut til terrasseplatting i det grillen fyres opp.

Det er fire soverom i andre etasje. To av rommene kan slås sammen til ett stort rom med garderobedel ved behov. Et stort soverom i andre etasje har utgang til takterrasse

Boligen har for øvrig god lagringsplass med garderobe i både første etasje i tilknytning til entreen og i andre etasje. I tillegg er det to boder i andre etasje, en sportsbod i kjelleretasjen og flere uteboder.

Øvrige rom

Boligen har flere spennende rom som gjør dette til en bolig utenom det vanlige. Den gode takhøyden som varierer fra 2,25 til 2,55 cm og flere store vinduer gir en luftig og lys følelse selv om man befinner seg i kjelleren. Trimrom i kjeller med god plass for diverse treningsapparater. Dette rommet har tidligere vært innredet som kjøkken og stue, selger opplyser om at strøm, avløpsrør og vann ligger blendet i veggen og kan enkelt åpnes igjen opp.

Beliggenhet

Eiendommen ligger i et attraktivt og sentralt boligområde i Lillestrøm, med umiddelbar nærhet til offentlig kommunikasjon og byens fasiliteter. På kulturfronten står Lillestrøm for store nysatsinger og kan by på et fristende utvalg innenfor uteliv, shopping og små spesialbutikker. Her ligger en av Norges mest moderne kinoer, samt et flott kulturhus som setter opp populære revyer, teaterforestillinger og konserter.

Nebbursvollen Friluftsbad ligger like utenfor sentrum og er et populært badested med tre bassenger, vannsklier, grøntområder og kiosk. Ellers er det nærhet til tur- og rekreasjonsområder ved Øyeren og rundt Nitelva, noe som gir gode rekreasjonsmuligheter både sommer og vinter. I tillegg har Syklistenes Landsforeningen kåret Lillestrøm til landets beste sykkelby to år på rad.

Det er også kort vei til Sørum gård med mange koselige aktiviteter innenfor ridning og stell av dyr. Det er ca. 5 min gange til Åråsen stadion, hvor nærområdet tilbyr flere fotballbaner, friidrettsbane og idrettshall. Besøk gjerne Lillestrøm Golfklubb. Om vinteren legges det kunstis på torget til glede for alle. Du vil også finne et mylder av turstier, løyper og herlige naturperler i nærliggende områder.


Servicetilbud

Dagligvarehandelen kan gjøres ved bl.a. Matkroken, Kiwi og Rema 1000. Coop Obs Hypermarked er også et populært handlested i kommunen. Ønsker du ytterligere servicetilbud har Lillestrøm Torv kjøpesenter, samt de øvrige handlegatene i Lillestrøm sentrum et rikt og variert utvalg av butikker. Det er også kort vei til Strømmen Storsenter, landets mest innholdsrike kjøpesenter.

Området gir mulighet for offentlig kommunikasjon via buss og tog. Nærmeste holdeplass er Vestbygata som ligger rett utenfor boligen. Hurtigtog/flytog fra Lillestrøm til Oslo S/Oslo lufthavn har en reisetid på ca. 12 min. Med bil fra sentrum tar det ca. 5 min til Strømmen, 8 min til Lørenskog, 16 min til Oslo S og 23 min til Oslo lufthavn.

Fra eiendommen er det gangavstand til Volla barneskole, Kjellervolla ungdomsskole, samt både Skedsmo og Lillestrøm videregående skole. Det finnes også flere videregående skoler i nærliggende områder, blant annet Rælingen, Mailand og Strømmen videregående. Høyskolen i Oslo og Akershus har beliggenhet på Kjeller. Det er også et bredt utvalg av både private og kommunale barnehager.

Tomt

Teglsteinskledt bolig med fin beliggenhet, på solrik tomt i kort gangavstand fra sentrumskjernen. Nydelig og lettstelt tomt som i hovedsak ligger skjermet i bakkant av huset. Her har man en usjenert og hyggelige hage med god plass til barnas lekeapparater. Tomten er flat, pent opparbeidet og rammet inn av nyere gjerde fra 2016 med svært lite innsyn. Opparbeidet med plen, diverse beplantning, singlet gårdsplass med kjørerampe til integrert garasje med direkte tilgang til 1. etasje. Flotte bjørketrær som gir bakgården et ekstra frodig preg.

Boligen har en ny markterrasse på ca. 27 kvm med god plass for møblement innbyr til grillfest og sene kvelder rundt langbordet. Separat redskapsbod og søppelskur, samt et arkitekttegnet bodhus bestående av dels åpne redskapsboder.

Fra markterrassen fører trapper opp til en flott takterrasse fra 2016 på ca. 48 kvm. Takterrassen har også adkomst fra ett av soverommene i andre etasje og gir en deilig oase. Her er det plass til store hagemøbler og solsenger som en kommer til å få god bruk for da solen kan nytes her fra tidlig formiddag til sen kveld.

Garasje / Parkering

Det er parkering i integrert garasje med kjørerampe og direkte adkomst til boligens første etasje. Garasjen har port i hvitlakkert aluminium og automatisk garasjeportåpner. Gode parkeringsmuligheter på gruset gårdsplass både foran og bak boligen.

Formuesverdi

Formuesverdi som primærbolig kr. 1 603 180 pr.
Formuesverdi som sekundærbolig kr. 4 488 903 pr.

Formuesverdien fastsettes med utgangspunkt i en kvadratmeterpris, som beregnes av Statistisk sentralbyrå (SSB). Kvadratmeterprisen skal gi uttrykk for en estimert markedsverdi pr. kvadratmeter og bygger på statistiske opplysninger om omsatte boliger (boligtype, areal, geografisk beliggenhet og alder).

Ut fra kvadratmeterprisene til SSB fastsetter Skatteetaten årlige kvadratmetersatser. Disse satsene vil utgjøre hhv. 25% av kvadratmeterprisene for primærboliger (der boligeier er folkeregistrert pr. 1. januar) og 90% for sekundærboliger (alle andre boliger).

Ferdigattest / brukstillatelse

Hos kommunen foreligger følgende dokumenter: Midlertidig innflytningstillatelse fra 1964 og to ferdigattester, den en fra 12.12.2016 for utvendig overbygget kjellertrapp til enebolig og uthus fra og den andre fra 30.11.2017 for godkjent kjelleretasje for varig opphold. Kommunens byggetegninger samt ferdigattest følger vedlagt salgsoppgave. Det oppfordres til å sette seg inn i ferdigattester, rammetillatelser hos Skedsmo kommune.
Kontakt megler ved spørsmål.

Boligens areal

Bruttoareal: 375 m², Bruksareal: 335 m², Primærrom: 304 m²

Underetasje/kjeller:
Bruksareal: 139 m²
Primærrom: 139 m². Følgende rom er oppgitt som primærrom: Inngang/sportsbod, gang 1, gang 2, gang/kjøkken, separat wc, bad/wc 1, bad/wc 2, bad/wc 3 ,trapperom, 3 soverom, kjellerstue, vaskerom, trimrom

1. etasje:
Bruksareal: 134 m²
Primærrom: 107 m². Følgende rom er oppgitt som primærrom: Entré, separat wc, bad/wc, gang 1, gang 2, inngang/massasjerom, trapperom/hall, stue, kjøkken, sluse, 2 soverom
Sekundærrom: 27 m² : Garderobe, garasjerom

2. etasje:
Bruksareal: 62 m²
Primærrom: 58 m². Følgende rom er oppgitt som primærrom: Trappegang, bad/wc, 4 soverom.
Sekundærrom: 4m² : Garderobe, bod 1, bod 2

Arealet av primære rom (P-ROM) er primærrommenes nettoareal (NTA) og arealet som opptas av innvendige vegger mellom disse rommene. I praksis er dette arealet tilnærmet likt primærrommenes bruksareal (BRA). Se vedlagte takst for nærmere beskrivelse av arealbetegnelser. Arealene er kun oppmålt av takstmann og ikke kontrollert/oppmålt av megler.

Loft: Areal kaldtloft over 2 etasje ca. 30 m², lav høyde
Loft over inngang/massasjerom i 1 etasje 10 m², lav høyde

Oppvarming

Boligen er elektrisk oppvarmet med elektriske panelovner i 2.etasje, radiatorer og vannbåren gulvvarme
i 1 etasje. Varmekabler, radiatorer og vannbåren gulvvarme i kjeller. Vannbåren varme til radiatorer og varmt vann fyring ble skiftet i 2009. Fyrkjele lokalisert bak skapdører i gang kjelleretasje. 3000 liter olje-/parafintank er nedgravd i hagen. Regjeringen har foreslått å forby bruk av fossil olje til oppvarming av bygninger fra 2020. Det vil fortsatt være mulig å bruke biofyringsolje. Vedfyring med to peisovner.

Teknisk

Ventilasjonen er naturlig, supplert med flere mekaniske avtrekk og elektriske sensorstyrte vifter i alle bad og separate wc-er, begge kjøkken, kjellerstua, sauna og massasjerom. Det elektriske anlegget er oppgradert i 2016/2017. Boligen har tre separate sikringsskap med automatsikringer.
Alle rom i hele huset er utstyrt med både uttak til internett og kabel-/satellitt-TV.
Videre har boligen ytterdør fra 2016 med kodelås, rullegitter på trappegang i kjeller, utvendig brannstige, samt utekran med både kaldt- og varmtvann.

Det er også to dørtelefoner i kjelleretasje samt tv og internett tilknytning med uttak i alle rom.

Adkomst

Se vedlagt kartskisse på høyre side i annonsen. Ved å trykke på kartet får du enkelt tilgang til en spesifisert reiserute fra din startdestinasjon til boligen. På visningsdagen vil det bli skiltet med visningsskilter fra megler. Velkommen til visning!

Regulering

Eiendommen er regulert til boligformål. For ytterligere opplysninger om regulering, vennligst ta kontakt med megler.

Boligkjøperpakke / Boligkjøperforsikring

Partners har i samarbeid med If lansert et nytt og gunstig forsikringskonsept for deg som kunde. Dette innebærer at du får alle relevante dekninger inkludert til en meget konkurransedyktig pris.

Kjøper (ikke juridiske personer) har anledning til å tegne Boligkjøperpakken. Denne kan inkludere bl.a. Husforsikring, Innboforsikring, Dobbel rente dekning, Flytteforsikring og Boligkjøperforsikring. Boligkjøperpakken må senest tegnes på kontraktsmøte og prisen avhenger av boligtypen. Ta kontakt for ytterligere informasjon.

Budgivning

Alle bud skal inngis skriftlig til megler. Det første budet skal inngis på budskjema påført budgivers signatur. I tillegg må budgiver ha legitimert seg. Senere bud kan inngis per e-post til: aj@schalapartners.no eller SMS: 91 52 91 50 til megler. Bud kan også inngis via budgivningsplattform på nett eller app. Velges denne løsning, er det ikke krav til å sende det første budet på budskjema. Megler skal så snart som mulig bekrefte skriftlig ovenfor budgiver at bud er mottatt. Bud som ikke er skriftlig, eller som har kortere akseptfrist enn til kl. 12.00 dagen etter siste annonserte visning, vil ikke bli formidlet til selger. Et bud er bindende for budgiver når budet er kommet til selgers kunnskap. Selger står fritt til å akseptere eller forkaste ethvert bud, og er således ikke forpliktet til å akseptere det høyeste budet på eiendommen. Megler skal, i den grad det er nødvending og mulig, informere de involverte i budrunden skriftlig om status i budgivningen.
Megler er forpliktet til å legge til rette for en forsvarlig avvikling av budrunden, og for at budene skal kunne bli behandlet og videreformidlet skriftlig til alle involverte parter, må ethvert bud ha en tilstrekkelig lang akseptfrist. Selger må skriftlig akseptere budet før budaksept kan formidles til budgiver. Budforhøyelser skal derfor ha akseptfrist på minimum 30 minutter fra budet inngis. For at megler skal kunne avholde forsvarlig budrunde, bes det om at bud gis i god tid før budfristen. Selger og kjøper har krav på å få utlevert kopi av budjournalen straks etter at handel er kommet i stand. Alle som har inngitt bud på eiendommen kan på forespørsel få en kopi av anonymisert budjournal etter at budrunden er avsluttet. For øvrig vises til det "Forbrukerinformasjon om budgivning", som er inntatt i salgsoppgaven.

Diverse

Alle innvendige og utvendige arealangivelser, samt beskrivelser av bygningen er hentet fra vedlagte tilstandsrapport. Salgsoppgaven er basert på selgers opplysninger gitt til takstmann, megler og opplysninger innhentet fra kommunen, eventuelt forretningsfører og andre tilgjengelige kilder. Interessenter oppfordres til å undersøke eiendommen godt, gjerne sammen med sakkyndig, før bud inngis. Det er ikke kontrollert om tomtegrensene stemmer med de grenser/gjerde som fysisk er satt. Det kan være avvik fra dagens rombruk/rombenevnelse i forhold til det opprinnelige byggemeldte/godkjente.

Meglerforetaket oppfordrer evt. budgivere til å lese gjennom fullstendig prospekt/salgsoppgave med vedlegg.

Hvitvaskingsloven

Eiendomsmeglere er fra 1/1-2004 underlagt hvitvaskings-loven. Dette innebærer at eiendomsmegler er forpliktet til å melde mistanke om forsøk på hvitvasking til ØKOKRIM.

Solgt 'as is' / Salgsbetingelser

Eiendommen selges som den er, det vil si i den stand den forelå ved besiktigelse, jfr. Lov av 3. juli 1992 nr. 93 om avhending av fast eiendom (avhl.) , § 3-9 hvor det heter: Eigedom selt "som han er" el. - Endå om eigedomen er selt "som han er" eller med liknande allment atterhald, har eigedomen likevel mangel der dette følger av §§ 3-7 eller 3-8. Eigedomen har også mangel dersom han er i vesentlig ringare stand enn kjøparen hadde grunn til å rekne med ut frå kjøpesummen og tilhøva elles. Kjøper kan derfor ikke påberope seg noen andre bestemmelser etter avhl. kapittel 3, enn det som følger direkte av § 3-9. Dette reduserer selgers ansvar etter avhendingsloven og vil være en del av kontraktsvilkårene, dersom man ikke reserverer seg mot avhl. § 3-9 ved budgiving.

Selgeren er ikke kjent med at eiendommen er beheftet med mangler i relasjon til offentligrettslige krav utover det som opplyst tidligere, jfr. avhendingslovens, § 3-2. Skulle det vise seg at slike krav likevel ikke er oppfylt, er selgeren ikke ansvarlig for disse.

Med henvisning til Avhendingslovens § 3-10, oppfordres kjøper til å undersøke eiendommen grundig og gjerne med fagmann før avtale inngås (aksept av bud).

Avhendingsloven

Frivillig salg av fast eiendom reguleres av Lov om avhending av fast eiendom av 3. juli 1992 nr. 93.

Finansiering

Vi har løpende kontakt med finansinstitusjoner som kan tilby lån med konkurransedyktige betingelser. Hvis ønskelig formidler vi gjerne kontakt.

Ta kontakt med megler for komplett informasjon

Nærområdet

Annonseinformasjon

FINN-kode119213083
Sist endret28. sep. 2018 03:49
Referanse16180060

Rapporter annonse

Annonsene kan være mangelfulle i forhold til lovpålagt opplysningsplikt. Før bindende avtale inngås oppfordres interessenter til å innhente komplett informasjon fra meglerforetaket, selger eller utleier.