Bildegalleri

Hovseter/ Røa - 2-roms m/ pent utsyn - Balkong m/ meget gode solforhold - Garasje
Nøkkelinfo
- Boligtype
- Leilighet
- Eieform
- Andel
- Soverom
- 1
- Etasje
- 2
- Byggeår
- 1972
- Tomteareal
- 39 100 m² (eiet)
- Bruttoareal
- 60 m²
Fasiliteter
Beliggenhet
Lys 2-roms andelsleilighet med sentral og attraktiv beliggenhet på Hovseter. Gangavstand til viktige fasiliteter som t-bane, buss, nærbutikk, skole og barnehage.
Kun få minutters gange til holdeplass for buss og t-bane. Buss nr 46 i Stasjonsveien/Landingsveien. Hovseter stasjon på Østeråsbanen (kun 8 min med t-bane til Majorstuen). Nattbuss og flybuss ved Huseby skole.
Ica og Frukt- og grøntbutikk på Hovseter torg. Kort vei til Røa med et bredt servicetilbud. Alternativt CC-vest.
Gangavstand til skoler i alle trinn fra Meklenborg Brl. Flere kommunale og private barnehager i området.
Flotte tur- og sykkelmuligheter i nærområdet langs Mærradalen med kort vei til marka og Bogstadvannet. Preparerte skiløyper i Mærradalen vinterstid. Badevann og golfbane på Bogstad.
Tilgang til trimrom, badstue, gjesterom og selskapslokaler i borettslaget.
Beskrivelse
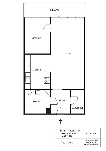
Lys 2-roms andelsleilighet i 2. etasje med flott utsyn. Leiligheten har sydvestvendt balkong med meget gode solforhold.
Boligareal 54 m2. Bruttoareal 60 m2 i hht vedlagte takstpapirer.
Leiligheten inneholder entré, garderobe, bad/wc, soverom, kjøkken, stue med utgang til balkong.
Boligen disponerer 1 garasjeplass og 1 kjellerbod på 2,5 kvm.
Leiligheten har følgende innhold og standard:
Entré: Korkfliser på gulv. Tapet på vegg. Malt himling.
Garderobe: Korkfliser på gulv. Tapet på vegg. Malt himling. Garderobeskap.
Bad: Belegg på gulv. Malt strie på vegg. Malt himling. Dusjkabinett, servant i skapseksjon, toalett og tørkeskap. Opplegg til vaskemaskin.
Soverom: Parkett på gulv. Malt strie på vegg. Malt himling.
Kjøkken: Parkett på gulv. Malt strie på vegg. Malt himling. Hvit kjøkkeninnredning med heltre benkeplate. Kullfiltervifte.
Stue: Parkett på gulv. Malt tapet på vegg. Malt himling. Utgang til balkong med meget gode solforhold.
Parkering
1 garasjeplass i kjeller. Gjesteparkering på oppmerkede plasser.
Adkomst
Se vedlagt kartskisse.
Beskaffenhet
Ta kontakt med megler for komplett informasjon
Nærområdet
Annonsene kan være mangelfulle i forhold til lovpålagt opplysningsplikt. Før bindende avtale inngås oppfordres interessenter til å innhente komplett informasjon fra meglerforetaket, selger eller utleier.











