Bildegalleri

224 kvm industriell designleilighet tilbaketrukket ved Sagene. Arkitektinnredet med unike løsninger.
Industriell designleilighet tilbaketrukket ved Sagene. Arkitektinnredet med unike løsninger. Separat utleiedel (13.5
Nøkkelinfo
- Boligtype
- Leilighet
- Eieform
- Eier (Selveier)
- Soverom
- 4
- Primærrom
- 224 m²
- Bruksareal
- 224 m²
- Byggeår
- 1865
- Energimerking
- G - Mørkegrønn
- Rom
- 6
- Tomteareal
- 1 015 m² (eiet)
- Bruttoareal
- 253 m²
- Boligselgerforsikring
- Ja
Fasiliteter
Adresse
Treschows gate 2 F
Kort oppsummert
Leiligheten er noe helt for seg selv og har etter en omfattende oppussing i 2013 et særegent, gjennomtenkt og ikke minst påkostet interiør som bør oppleves ved selvsyn. Leiligheten ligger i en høy 1. etasje med egen inngang om romslig entre. Romløsningen er smart utformet med tanke på sosiale sammenkomster, men kan også fungere godt for en barnefamilie og er noe fleksibel med tanke på antall soverom.
En del av leiligheten er i dag skilt ut som en utleiedel på 38 kvadratmeter med ett soverom, som i utleid stand representerer gode sideinntekter og et betydelig bidrag til nedbetaling av boliglånet.
Leiligheten disponerer en luftig hageparsell på hele 50 kvadratmeter som gir deg tilgang på gode solforhold dagen gjennom sommerstid. Her får du også fullt utbytte av plasseringen som er oppriktig tilbaketrukket og i praksis innsynsfri.
Gårdens historie strekker seg helt tilbake til 1865 og utgjør i dag det lille Møllermesternes boligsameie som består av kun seks seksjoner.
Innenfor få minutters gange kommer du til både Storo, Nydalen, Sagene og Sandaker. Handlerunden kan du utføre i nærbutikkene eller på Sandaker Senter der du også finner trikkestopp. I kvartalene omkring venter et spennende uteliv i form av kaféer og spisesteder, forretninger og sosiale samlingsplasser i friluft.
- Spennende arkitekttegnet leilighet
- 2-roms separat utleiedel med leieinntekt på 13.500,- per mnd.
- Unike, spesialbygde innredninger
- Særdeles god romfølelse med 3,4m takhøyde
- Vannbåren gulvvarme i alle rom og varmtvann inkludert i f.kost.
- Ca. 50 kvm. hage og skiferbelagt terrasse med gode solforhold
- Tilbaketrukket i sentrale omgivelser
- Kort vei til Sagene, Nydalen, Storo og Sandaker
- Nærhet til vakre parker og Akerselva med turveier
- Spennende arkitekttegnet leilighet
Ditt nye hjem
Hoveddel
Opplevelsen av et stort volum og en fremtredende industriell atmosfære er blant de absolutt første inntrykkene du møter i leiligheten. Volumet er spesielt påtakelig i den sosiale sonen, selve hjertet i leilighetens romløsning, både på bakgrunn av takhøyden på herskapelige 3,4 meter og ikke minst rommets fysiske størrelse. Stuen, spisestuen og kjøkkenet er her forent i et åpent samlingsrom som står for mye av leilighetens unike egenart og fungerer like godt til hverdagslig opphold som til sammenkomster av ulikt omfang.
Samlingsrommet fikk sin nåværende form under den omfattende oppussingen av leiligheten i 2013. Gulvet er helhetlig utført med Epoxy-maling som føles mykt å trå på, og blir lune av vannbåren varme som kan justeres til ønsket styrke i hvert enkelt rom.
Vel så viktig for opplevelsen av den sosiale sonen er hele åtte høyreiste vinduer fra 2013 som alle slipper mye naturlig lys inn fra sydsiden, byr på utsyn mot hagen og i praksis er uten direkte innsyn fra gjenboere. Gårdens tilbaketrukkede plassering kommer til sin rett, og en fin bonus er i tillegg rekken av velvoksne trær langs Akerselva som hvert år blir et fint, grønt skue fra utpå vårparten.
Kjøkkenet har en sentral posisjon i den sosiale sonen og understreker nettopp kjøkkenets funksjon som noe mer enn bare en avdeling for tilberedning. Selve kjøkkenløsningen er italiensk og arkitekttegnet nettopp for denne leiligheten, ble montert i 2013 og er i seg selv et elegant, stort møbel. Innredningen er bruksvennlig utformet med generelt brede arbeidsflater, blant annet på begge sider av kokesonen, samt luftig avstand mellom benkene og den frittstående øyen som fronter kjøkkenet. Øyen fyller ikke bare en praktisk funksjon, men er også et naturlig samlingspunkt før måltider og et fint sted for en arbeidsøkt hjemmefra. Øyens benkehøyde er litt høyere enn vanlig, slik at barløsningen blir funksjonell.
Kjøkkenets sentrale posisjon og åpne forbindelse med stuene gir deg gleden av å tilberede måltider uten å miste kontakten med de som sitter til bords eller i sofagruppen. Rundt spisebordet kan du samle så mange som opptil 11-12 personer, hvorav de fleste finner sin plass på spesialbyggede sittebenker foran karnappvinduet.
Sommerstid kan du på godværsdager ta med måltidene rett ut til den skiferbelagte terrassen som er tilgjengelig med dør fra både stuen og spisestuen. Terrassen er orientert i sydlig retning og har sol fra omkring klokken 12-13 og helt frem til rundt klokken 20 sommerstid. Leiligheten disponerer også cirka 50 kvadratmeter av hagen foran terrassen som i dag er uten fysiske grenser mot de tilstøtende parsellene. Om ønskelig kan en tydeligere avgrensning og mer skjerming oppnås ved å beplante med prydbusker eller en dekorativ hekk.
Soverommene og etasjens bad er samlet i praktisk nærhet i det som nærmest er en separat fløy av hovedetasjen. Døren inn til denne avdelingen er som mye av interiøret for øvrig spesiallaget og går i ett med stuens grove trepaneler når du holder den lukket.
Den luftige takhøyden setter sitt preg også på soverommene som arealmessig utgjør henholdsvis et barne- eller gjesterom og et hovedsoverom av generøs størrelse. Begge har høyreiste vinduer som vender rett ut mot hagen og er i praksis uten direkte innsyn. Hovedsoverommet er allerede utstyrt med to smarte garderobemoduler og kan gjerne også møbleres med et sminkebord. Ytterligere oppbevaringsmuligheter finner du rett utenfor, i gangen som også fungerer som en langstrakt garderobe. Her oppbevarer du klærne lett tilgjengelig fra både soverommene og badet.
Soverommenes nærhet til badet kan oppleves spesielt bekvemmelig på morgenkvisten når en oppvekkende dusj er innenfor rekkevidden av kun et fåtall skritt. Badet prydes av retro-pregede fliser som dekker hele gulvet, inkludert dusjsonen som er ekstra bred og har dusjhode oppunder den høye himlingen. Innfelte hyller og servantbenk i heltre har til sammen oppbevaringsplass for både håndklær og dine personlige effekter.
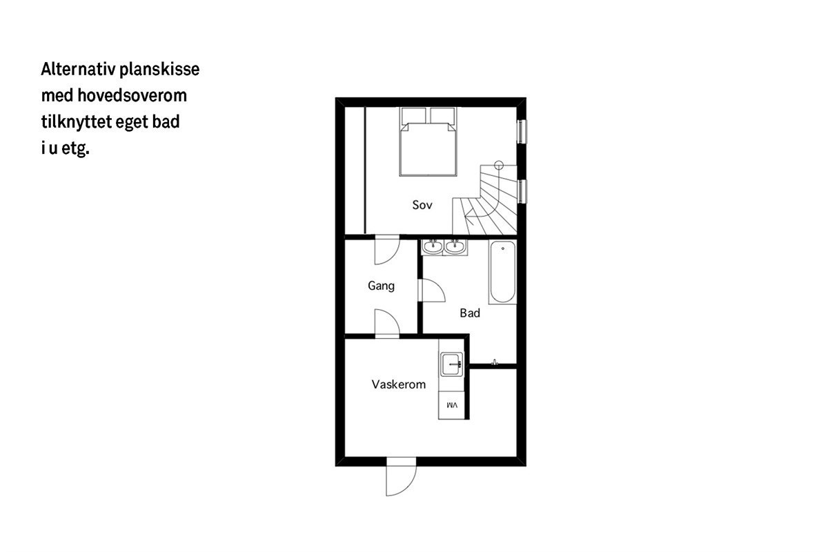
Et bad som er enda mer tilbaketrukket og skjermet finner du i underetasjen. Her er atmosfæren mer intim og velpassende for en roligere stund, og badet kan nærmest betraktes som ditt eget lille SPA. Et frittstående badekar og en åpen dusjsone byr på valgfrihet, mens duplisert servant åpner for samtidig bruk av dette badet. Legg også merke til servantbenken og veggspeilet som er av samme type som på badet over og skaper en interiørmessig helhet mellom leilighetens to bad.
Underetasjen inkluderer også et separat vaskerom som er utpreget romslig og har egen dør ut til fellesareal. Døren er hendig for å ta inn større eiendeler som eksempelvis sykler eller en barnevogn, den gode størrelsen gjør at vaskerommet også fyller rollen som et lagringsrom.
Stuen i underetasjen fungerer i praksis som en mer tilbaketrukket del av den sosiale sonen og er ypperlig som en dedikert TV-stue eller et sted du kan trekke deg tilbake med godt lesestoff. Langs stuens ytterkanter er det bygget benker med sitteplass for mange og integrert strømuttak som gjør det mulig å plugge inn eksempelvis PCer og konsoller. Den åpne himlingen over trappen gjør at du opplever nær kontakt med stuen på hovedplanet, selv om du befinner deg én etasje ned. Trappen som leder ned hit er designet av samme arkitekt som utformet kjøkkenet og i sveiset stål med trinn av heltre.
Takhøyden er gjennomgående god i alle underetasjens rom. Kanskje lar det seg også gjøre å endre kjellerstuen til et master bedroom, etter nødvendige tiltak som søknad, godkjenning og montering av nye vinduer.
Utleiedel
Leilighetens utleiedel er en separat enhet som er helt adskilt fra hoveddelen og har egen adkomst via byggets felles trapperom. Utleiedelens romløsning tilsvarer en 2-roms der kjøkkenet er delvis åpent mot entréen og soverommet orientert inn mot byggets bakside.
Har du behov for ytterligere et soverom i hoveddelen, kan det være mulig å endre utleiedelens romløsning til en hybel og ta i bruk dagens stue som et soverom forbundet med spisestuen i hoveddelen.
Innhold
Hoveddel
1. etasje: Entré, hall, stue og spisestue med åpent kjøkken, mellomgang, bad og to soverom. Utgang til terrasse og hage fra stue og spisestue.
Underetasje: Kjellerstue, gang, bad og vaskerom med ca 6 kvm. lagringsplass.
Utleiedel
1. etasje: Entré, bad, soverom, kjøkken og stue.
Med leiligheten medfølger en kjellerbod på ca 6 kvm.
Beliggenhet og nærområdet
Leiligheten har en oppriktig tilbaketrukket og skjermet plassering midt mellom Sandaker, Bjølsen og Sagene. Herfra er veien kort til fine rekreasjonsmuligheter i noen av byens fineste parker, mens både Storo, Nydalen, Sagene og Torshov er innenfor omlag 10 minutters gange.
Dagligvarene og det meste til hverdagen kan du handle i butikkene på Sandaker Senter. Her finner du blant annet COOP Mega, Baker Samson, Vitusapotek og ett av Vinmonopolets utsalg, i tillegg til et tilbud innenfor helse og personlig pleie. Du finner også nærbutikker som KIWI og søndagsåpen Joker i området, mens større shoppingmuligheter venter på Storo Storsenter som er byens største og inneholder hele 130 forretninger og spisesteder.
Fra leiligheten går du på kun et par minutter frem til stopp for trikkelinjene 11, 12 og 13 som tar deg videre til sentrum på få minutter. Det samme gjør busslinjene 20 Skøyen-Galgeberg og 30 Bygdøy-Nydalen, og med Flybussen reiser du behagelig opp til Gardermoen. Bilkollektivet har parkeringsplasser rett nedenfor sameiet, og med bil får du i tillegg enkel tilgang på Ring 3 fra Storo.
En kort rusletur over elva tar deg frem til hjertet av Sandaker og blant annet Åpent bakeri med god atmosfære og deilige bakverk. Etter bakeriets stengetid åpner pizzarestauranten Lofthus samvirkelag, en annerledes pizzarestaurant med vekt på god smak og nyskapning som resulterer i byens kanskje beste pizza. Veien er heller ikke lang ned til Trikkestallen med sin flotte uteservering, Never Mind Sushi eller restauranten Grisen, en hyggelig møteplass med bar og restaurant.
I det gamle Soria Moria-bygget finner du det nye kulturhuset HVASKJER, der restauranten har vedfyrt grill, et stort ølutvalg samt vin- og cocktailbarer. Prøv deg gjerne også på dansegulvet samme sted, eller få med deg live-opplevelser på husets to konsertscener.
Opp til Nydalen kan du rusle på gode 10 minutter om du legger turen gjennom Akerselvas frodige parkområder. Nydalen er i seg selv kjent som en av bydelene i Oslo med rivende utvikling og fornyelse fra industri til boliger, utdanning og kultur. Mye er allerede forvandlet, blant annet er en rekke restauranter og kaféer på plass som er ypperlige for en lunch eller treff med gode venner. Det nye Torgbygget over T-banen er bydelens nærsenter og inneholder blant annet Coop Mega og ett av Vinmonopolets utsalg, samt apotek, spisesteder og tjenestetilbud.
Frister det med en løpetur i friluft, er turveiene som følger Akerselvas bredd gode og lett tilgjengelige alternativer. Veiene leder deg helt opp til Maridalsvannet og marka om du vil på langtur. Torshovparken og Torshovdalen er på sin side ypperlige både for roligere spasérturer og late dager i solen sommerstid. Om mer intensitet og målrettet trening er å foretrekke kan Myrens Sportssenter være stedet, her finner du også golfsimulator og klatrevegger.
Tomt
Areal: 1 015 kvm, Eierform: Eiet tomt
Parkering
Det er tinglyst en asfaltert parkeringsplass som tilleggsdel til denne leiligheten. Mulighet for å leie ekstra perkeringsplass for 700,- per mnd, rett utenfor leiligheten. Videre er det gateparkering etter gjeldende bestemmelser.
Byggemåte
Hentet fra tilstandsrapport:
Bygning, generelt: Bygård bygget i 1865. Bygningen antas fundamentert med gråstein-/granittmur og tegl til faste masser. Etasjeskillere av trebjelkelag, antatt isolert med stubbloftsleire. Yttervegger oppført med murverk av tegl, pussede fasader. Takkonstruksjon med sperrer av tre, saltak takform, tekket med takstein (ikke besiktiget).
Vinduer: Vinduer med 3-lags isolerglass, prod. 2013. Vinduer med 2-lags isolerglass, prod. 1991. Vinduer med enkle glass i kjeller.
Balkonger, terrasser ol.: Terrasse/uteplass av betong med skiferheller.
Overflater og innredning
Gulv: Fliser i hall, vaskerom og på begge bad, laminat på begge soverom, for øvrig Epoxy-malt betong.
Innervegger: Flisfelter på begge bad, for øvrig trepanel, malt betong og pussede, malte flater.
Himlinger: Trepanel, malte plater og pussede, malte flater.
Kjøkken, hoveddel: Arkitekttegnet skapinnredning med glatte hvite fronter og heltre benkeplater. Fliser på vegg over benk. Innbygget induksjonstopp, stekeovn, mikrobølgeovn fra Samsung, samt kjøleskap med fryser. Veggmontert hetteventilator i stålhette. Frittstående kjøkkenøy i stål/jern-konstruksjon med benk i heltre. Nedfelt dobbel stålservant med ett-greps storkjøkken-armatur. Innbygget Siemens oppvaskmaskin.
Bad hoveddel, 1. etasje: Heltre benkeinnredning med overmontert servant i stein. Ett-greps armatur integrert i vegg. Veggmontert speil med integrert LED-belysning. Dusjhjørne med fast skjermvegg i glass, hånddusj integrert i vegg og regndusj integrert i himling. Veggmontert Duravit klosett.
Bad hoveddel, underetasje: Heltre benkeinnredning med to overmonterte Scarabeo porselensservanter. To Azzurra ett-greps armaturer integrert i vegg. Veggmontert speil med integrert LED-belysning (merk: lys i speil på bad i underetasje fungerer ikke). Frittstående, helstøpt badekar med gulvmontert Hansgrohe armatur med hånddusj. Åpen dusjsone med hånddusj integrert i vegg og regndusj integrert i himling. Veggmontert Duravit klosett.
Oppvarming
Vannbåren gulvvarme i alle rom. Gulvvarme på baderom. Biopeis i spisestue.
Sameiet byttet ut oljefyren til bergvarme pumpe i 2014. Dette er svært energisparende, man sparer 60-80% av boligens energiforbruk til oppvarming og varmt tappevann iht. selger.
Vei, vann og avløp
Offentlig vei, vann og avløp. Private stikkledninger ut i offentlig nett.
Arealspesifikasjon
Hoveddel:
Bra: 186 kvm
P-rom: 186 kvm
Bta: 210 kvm
Følgende rom inngår i primærromarealet:
Bad, entré, gang, 2 soverom, spisestue, stue/ kjøkken.
Hybelleilighet:
Bra: 38 kvm
P-rom: 38 kvm
Bta: 43 kvm
Følgende rom inngår i primærromarealet:
Entre´/gang, bad, soverom, kjøkken og stue.
Adgang til utleie
Det er bygd en utleiedel/ hybel med separat inngang som leies ut for kr.13.500,- pr. mnd. Leiligheten er arkitekttegnet og alle krav vedrørende utleie er oppfylt iht. selger.
Utleie av hybel er basert på utleie av en del av eget husrom, som må ha tilknytning til hovedhuset. I dette tilfellet i form av døradkomst mellom delene. Utleie av hybel i slik form er ikke søknadspliktig. Denne delen av eiendommen oppfyller ikke de offentligrettslige kravene til utleieenheter og må ikke forveksles med en separat utleieenhet.
Eiendommen kan kun leies ut til boligformål iht. vedtektene i sameiet. Alle utleieforhold skal informeres styret.
Regulering
Eiendommen ligger i et område regulert til bolig, industri og næringsformål. Eiendommen ligger inn under KDP-17 kommunedelplan for torg og møteplasser, KDP-4 Akerselva miljøpark. Sikrer et gjennomgående parkdrag og bevaring av verneverdig bebyggelse langs elva fra Maridalsvannet til Vaterland. Det stilles krav til utforming av ny bebyggelse, samt reguleringsplan S-3467 planen er helt eller delvis opphevet som følge av bystyrets vedtak 23.09.15, sak 262. (Kommuneplan 2015- Oslo mot 2030 - smart, trygg og grønn). Kopi av reguleringskart og reguleringsbestemmelser kan ses hos megler. Gjør oppmerksom på ny kommuneplan fra 23. september 2015.
Diverse plansaker/ byggesaker i området:
- Saksnummer: 201015760 - Byggesak. Treschows gate 2 C - Bruksendring av loft til boareal for underliggende leiligheter - Tidligere gnr./bnr. 222/185.
- Saksnummer: 201610611 - Byggesak. Krysset Grefsenveien - Hans Nielsen Hauges gate - Etablering av hovedledningsanlegg for vann og avløp med tilhørende infrastruktur(kummer).
- Saksnummer: 201608808 - Byggesak. Brochmanns gate 9 - Riving av kontorbygg. Status: Tillatelse gitt.
- Saksnummer: 201414656 - Pågående plansak. Saken gjelder: Sandakerveien 58 B og C. Fortetting og utvikling av boliger.
- Saksnummer: 200805956 - Pågående plansak. Saken gjelder: Sandakerveien 56. Gnr. 224 bnr. 343. Det er ønske om å bygge nye kontorlokaler for å samle nåværende brukers virksomhet på et sted. Offentlig ettersyn 20.06. - 15.08.2011.
- Saksnummer: 201310022. Pågående plansak. Saken gjelder: Sandakerveien 56, gnr. 224 bnr. 343. Omregulering til boliger. Planforslag mottatt 20.10.14 Offentlig ettersyn 9.2. - 23.3.15. Sakstype: Foreløpig plan.
- Saksnummer: 201703583 - Pågående plansak. Saken gjelder: Sandakerveien 78. Bolig, næring og studentboliger. Sakstype: Foreløpig plan.
Kommunale avgifter
Kommunale avgifter er inkludert i felleskostnadene.
Felleskostnader inkluderer
Felleskostnad totalt, inklusive kapitalkostnader utgjør: kr.12.975,- per mnd ifølge brev fra forretningsfører.
Laget har avtale om individuell nedbetaling av fellesgjelden (IN-ordning). Dette betyr at man kan innfri deler/hele andel fellesgjeld, to ganger i året. renter og avdrag utgjør per nå kr: 5.472,- (Renter IN-lån: 2.062,- Avdrag IN-lån: kr. 3.406,-).
Felleskostnadene inkluderer: Kommunale avgifter, felles forsikring, kabel-tv, energitillegg (fjernvarme i alle gulv, samt varmtvann), driftskostnader m.m.
Fordeling felleskostnader:
Felleskostnader: kr. 3.020,-
Energitillegg: kr. 4.487,-
Avdrag IN-lån: kr. 3.406,-
Renter IN-lån: 2.062,-
Felleskostnadene øker i takt med renteendringer, kommunale avgifter, med mer.
Fellesgjeld
Andel fellesgjeld er kr. 616.527,- ifølge brev fra forretningsfører datert: 22.11.17.
Lånenummer: 12130405620, DNB bank ASA
Annuitetslån, 12 terminer pr. år.
Rentesats pr. 22.11.2017: 3,5%
Antall terminer til innfrielse: 147
Saldo pr. 22.11.17: 1.717.663,-
Andel av saldo: 616.528,-
Første termin/ første avdrag: 01.04.15 (siste termin 01.02.2030)
Fellesformue
Kr. 69 339,- pr. 31.12.16 iht. brev fra forretningsfører.
Husordensregler/Vedtekter/Regnskap/Budsjett
- Leiligheten er en del av Møllermesternes bolig sameie som består av 6 seksjoner.
- Sameiebrøk: 229/638
- Dyrehold skal styregodkjennes.
- Kjøper skal godkjennes av styret og har selv risikoen for at godkjennelse blir gitt. Styregodkjennelse kan ikke nektes uten saklig grunn.
- Vi oppfordrer alle til å sette seg inn i vedtekter, husordensregler, regnskap, budsjett og årsberetning. Dokumentene er tilgjengelige hos meglerforetaket. Det gjøres oppmerksom på at fellesgjeld og felleskostnader kan variere over tid som følge av beslutninger foretatt i styre og/eller generalforsamling.
- Det opplyses om at ingen kan eie mer enn to boligseksjoner i sameiet, jf. Eierseksjonsloven § 25.
Diverse iht. forretningsfører:
- Sameiet har avtale med Canal- Digital om kabel-tv og bredbånd.
- Hver seksjon eier en hageparsell på ca. 50 m2.
- Sameiet har IN ordning. Individuell nedbetaling av fellesgjeld (IN) innebærer at hver seksjonseier får anledning til å innfri hele eller deler av sin andel av sameiets lån.
Iht. sameiermøtet 08.05.17 (Merk dette ble utført sommeren 2017, det er vil ikke komme ytterligere låneopptak i denne forbindelse):
- Det ble vedtatt å drenere og asfaltere, omfanget av arbeidet vedtas på et styremøte når alle detaljer, opplysninger og priser foreligger. Det blir låneopptak om nødvendig, begrenset oppad til kr. 500.000,-.
Diverse
- Merk: lys i speil på bad i underetasje fungerer ikke.
- Boligen har ferdigattest for bruksendring kontor til bolig datert: 2012, samt bygesaksdok (uattestert) datert: 1865.
- Det er ikke kontrollert om det finnes godkjente bygningstegninger fra kommunen. Det vites derfor ikke om boligen er endret ut ifra de godkjente bygningstegningene.
- Interessentene oppfordres generelt til å undersøke boligen godt før eventuell budgivning, gjerne sammen med sakkyndig.
Forhold ved boligen
For feil og mangler oppfordres De til grundig gjennomgang av eiers egenerklæring og takst, disse kan ses på: boaeiendom.no/hjem/9170248. Vi oppfordrer alle til å ta med bygningskyndig fagmann for nærmere gjennomgang av boligen.
Oppgjør
Kjøpesum, samt omkostninger, skal være inne på meglers klientkonto innen overtagelse.
Budgivning
Alle bud skal inngis skriftlig til megler. Det første budet skal inngis på budskjema påført budgivers signatur. I tillegg må budgiver ha legitimert seg. Senere bud kan inngis per e-post til: boa@boaeiendom.no, SMS til megler eller per fax til megler: Fax. 22 11 00 10. Bud kan også inngis via budgivningsplattform på nett eller app. Velges denne løsning, er det ikke krav til å sende det første budet på budskjema.
Megler skal så snart som mulig bekrefte skriftlig overfor budgiver at bud er mottatt. Bud som ikke er skriftlig, eller som har kortere akseptfrist enn til kl. 12.00 første virkedag etter siste annonserte visning, vil ikke bli formidlet til selger. Et bud er bindende for budgiver når budet er kommet til selgers kunnskap. Selger står fritt til å akseptere eller forkaste ethvert bud, og er således ikke forpliktet til å akseptere det høyeste budet på eiendommen. Megler skal, i den grad det er nødvending og mulig, informere de involverte i budrunden skriftlig om status i budgivningen.
Salgsvilkår/AS IS
Eiendommen selges i den forfatning den er under visning. Salget følger Avhendingsloven § 3-9:
"Endå eigedomen er selt "som han er" eller med liknande allment atterhald, har eigedomen likevel mangel der dette følger av §§ 3-7 eller 3-8. Eigedomen har også mangel dersom han er i vesentlig ringare stand enn kjøparen hadde grunn til å rekne med ut i frå kjøpesummen og tilhøva ellers."
Kjøper kan derfor ikke påberope seg noen andre bestemmelser etter avhl. Kapittel 3, enn det som følger direkte av § 3-9. Dette reduserer selgers ansvar etter avhendingsloven og vil være en del av kontraktsvilkårene.
Opplysninger om innvendige arealstørrelser i salgsoppgaven er hentet fra takst på eiendommen. Opplysninger i salgsoppgaven er godkjent av selger.
Boligkjøperforsikring
Kjøper du bolig gjennom Boa Eiendomsmegling kan du tegne Boligkjøperforsikring gjennom HELP. Forsikringen tegnes senest ved kontraktssignering. Kontakt gjerne megler for utfyllende informasjon om Boligkjøperforsikring og HELP.
Copyright
All tekst og alle bilder i denne annonse er © BOA Eiendomsmegling og uautorisert kopiering eller gjenbruk er ikke tillatt.
Ta kontakt med megler for komplett informasjon
Nyttige lenker
Nærområdet
BOA OSLO VEST
Annonsene kan være mangelfulle i forhold til lovpålagt opplysningsplikt. Før bindende avtale inngås oppfordres interessenter til å innhente komplett informasjon fra meglerforetaket, selger eller utleier.


























