Bildegalleri

Velkommen til Klungveien 30, og til denne eiendommen som det er vanskelig å sette ord på, men som faktisk må oppleves - se alle bilder!
Melhus - En perle av en eiendom som må sees | 725 kvm bygningsmasse | 5,7 mål tomt | Ytterst sjelden mulighet i markedet
Nøkkelinfo
- Boligtype
- Enebolig
- Eieform
- Eier (Selveier)
- Soverom
- 4
- Primærrom
- 339 m²
- Bruksareal
- 725 m²
- Byggeår
- 1984
- Energimerking
- F - Oransje
- Rom
- 6
- Tomteareal
- 5 783 m²
- Bruttoareal
- 798 m²
Fasiliteter
Meglers vurdering
EIENDOMMEN MÅ SEES!
Velkommen til Klungveien 30, og til denne eiendommen som det er vanskelig å sette ord på, men som faktisk må oppleves. Les litt videre her om tomta, bygningsmassen og mulighetene en ny eier vil ha på denne flotte perlen av en eiendom, og se på bildene. Aller viktigst er det å komme på visning og oppleve eiendommen med egne øyne.
UTEOMRÅDET/TOMTA:
Den solrike og lune tomta er meget gjennomført ned til minste detalj. Store grøntarealer er plantet på riktig måte, for å skape en best mulig helhet av eiendommen. Blomster, prydbusker og bærbusker(rips, solbær, bringebær) + jorbæråker er plantet slik at du har en systematisk blomstring i hagen gjennom hele våren/sommeren/høsten. Ingenting er overlatt til tilfeldighetene, så her er til og med bekken på tomta lagt om, slik at den danner et flott vannspeil i den praktfulle hagen.
Robotklipperen gjør at plenene er velstelte hele sommeren. Sommeren 2017 er det i tillegg lagt beleggningsstein i hele gårdsplassen, for å gi eiendommen den siste utvendige finishen slik at alt skal være perfekt.
BYGNINGSMASSEN:
Her får du en bygningsmasse på totalt 725 kvm, fordelt på en flott og stor enebolig, baksthus, behandlingsklinikk med eget bad og oppholdsrom, egen hytte, hønsehus, en stor kombinert garasje/verksted, frittstående garasje og en jordkjeller innfelt i terrenget.
MULIGHETENE TIL Å DRIVE EGET FIRMA PÅ EIENDOMMEN:
Her har man flere muligheter til å kunne drive eget firma på egen eiendom.
1) Garasjen/verkstedet (på hele 318 kvm BRA) er et næringsbygg, og er regulert til varehandel/reperasjon av motorvogner. Her har man kjøreporter til traktorer/stormaskiner/lastebiler, og mulighetene er derfor mange.
2) Behandlingsklinikken har eget bad og oppholdsrom, og er i dag i drift av dagens eier. Her kan ny eier f.eks. drive egen praksis.
3) Bakshuset kan benyttes til bakst og salg av egne bakevarer.
4) Tomta med sitt fantastiske preg og gode størrelse.
5) Muligheter til å dyrke egen mat.
KONKLUSJON:
Dette er en eiendom som det er vanskelig å sette ord på, men som faktisk må oppleves. Dette er den perfekte plassen for en barnefamilie, der barna kan boltre seg fritt omkring på tunet, og kanskje kan man kombinere dette som både bolig og jobbsted for den som tenker i de baner. Her har du i alle fall alt du ønsker deg, og du vil bo veldig usjenert til med en fantastisk utsikt og helt uten innsyn fra naboer.
VISNING:
Kontakt megler for visning av eiendommen - her vil det ikke bli arrangert fellesvisning, men visninger gjennomføres etter avtale med deg/dere. Så her kan man gå i ro og mak sammen med megler (og evt. selger hvis det er ønskelig), slik at man kan få en helhetlig og god visning, og spørre om alt man måtte lure på. Nøl ikke med å ta kontakt.
Beliggenhet
Eiendommen ligger majestetisk plassert i enden av Klungveien. Her har du en bygningsmasse på ca. 750 kvm, med en vakker utsikt utover hele Melhus og mot Trondheim. Eiendommen har en plass og beliggenhet som er vanskelig å beskrive med ord. Fra du parkerer på det store tunet og rusler rundt på eiendommen vil du føle deg fasinert og litt forelsket med en gang. For deg som drømmer om en plass på landet, usjenert plassert der du kan få pustet ut etter travle hverdager, så er dette den perfekte eiendommen. Samtidig har du nærheten til Melhus sentrum, kun 5 km unna.
Kun 1 km til ridesenter. Oppkjørte skiløyper og mange turstier i umiddelbar nærhet.
I sentrum finner man alle servicefunksjoner man regner med å finne i et tettsted og administrasjonssenter, blant annet kjøpesentre (Melhustorget), legesenter, post, banker, bensinstasjon, flere restauranter, tannlege, rådhus, kafèr og treningssenter.
Melhus er et attraktiv og etterspurt boligområde som stadig er under utvikling. Med den pågående oppgraderingen av E6 vil Melhus bare bli enda mer populært, og styrke sin posisjon som et av de mest attraktive områdene utenfor Trondheim. Det er et godt utviklet kollektivtilbud med både tog og buss. Ca. 20 minutter inn til Trondheim, og 40 minutter til Værnes.
Innhold
ALLE BYGNINGER:
BTA: ca. 798 kvm.
BRA: ca. 725 kvm.
P-ROM: ca. 339 kvm.
S-ROM: ca. 386 kvm.
ENEBOLIG:
BTA: ca. 275 kvm
BRA: ca. 257 kvm
P-ROM: ca. 231 kvm:
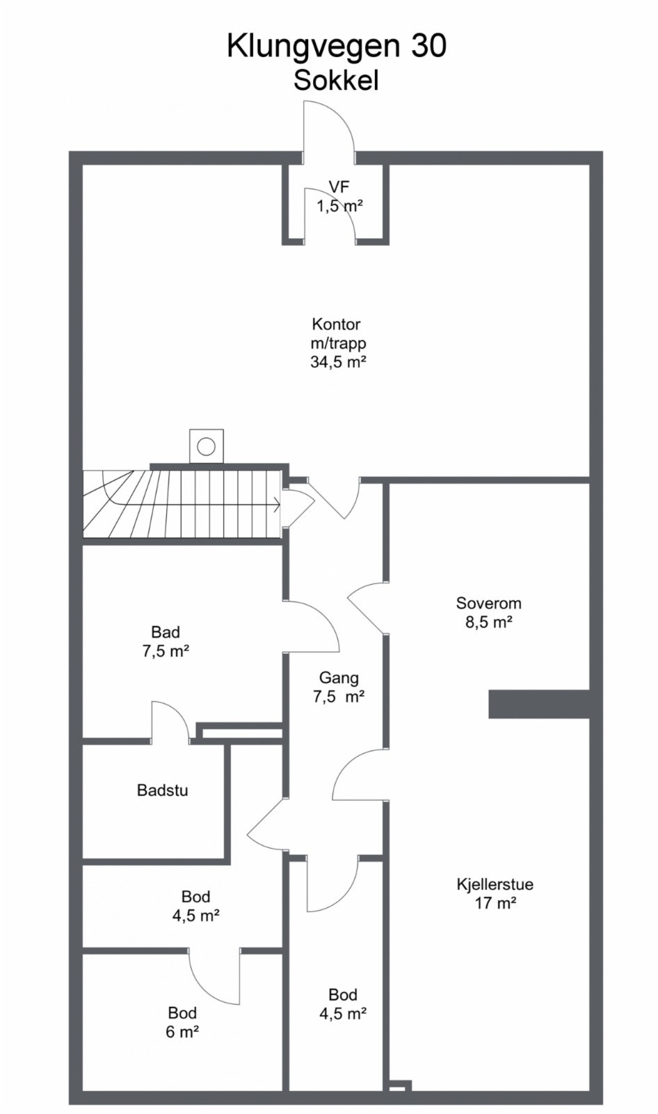
Sokkel: ca. 81 kvm - Vindfang, kontor med trapp, gang, bad, badstue, kjellerstue og soverom.
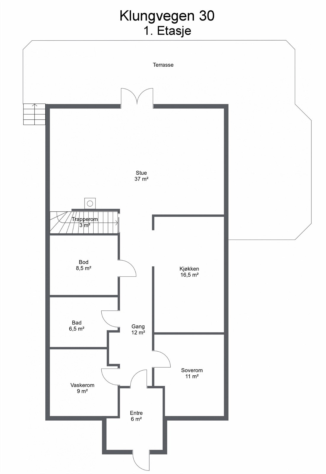
1.etg: ca. 105 kvm - Entré, gang, vaskerom, bad, trapperom, stue, kjøkken og soverom.
2.etg: ca. 45 kvm - Trapperom, gang/disp-rom, 2 soverom.
S-ROM: ca. 26 kvm:
Sokkel: ca. 17 kvm - Bod x 3.
1.etg: ca. 9 kvm - Bod.
Badstuen i sokkeletasjen og deler av areal i 2 etasje er målt etter regelen om 1,90 meters takhøyde og følgelig har ikke badstuen målbart areal noe som også gjelder deler av 2 etasje.
GARASJE/VERKSTED:
BTA: ca. 335 kvm.
BRA: ca. 318 kvm.
P-ROM: ca. 10 kvm:
1.etg: ca. 8 kvm - Vaskerom/påkledningsrom.
Mesanin: ca. 2 kvm - WC.
S-ROM: ca. 308 kvm:
1.etg: ca. 269 kvm - Garasjerom/verksted, garasjerom/lager.
Mesanin: ca. 39 kvm - Lager.
GARASJE:
BTA: ca. 27 kvm.
BRA: ca. 24 kvm.
S-ROM: ca. 24 kvm - Garasjerom.
HØNSEHUS:
BTA: ca. 17 kvm.
BRA: ca. 14 kvm.
S-ROM: ca. 14 kvm - Lager og hønserom.
BAKSTHUS:
BTA: ca. 30 kvm.
BRA: ca. 26 kvm.
P-ROM: ca. 26 kvm - Kjøkken/spisestue.
TROLLSTUA/HYTTE:
BTA: ca. 27 kvm.
BRA: ca. 24 kvm.
P-ROM: ca. 24 kvm - Entré med soveplass og stue.
KLINIKK:
BTA: ca. 54 kvm.
BRA: ca. 48 kvm.
P-ROM: ca. 48 kvm - Entré, pleierom, bad og kontor.
JORDKJELLER:
BTA: ca. 33 kvm.
BRA: ca. 14 kvm.
S-ROM: ca. 14 kvm - Vindfang og bod/lager.
Adkomst
Ta utgangspunkt i Melhus sentrum. Ta så gammelbrua over elva, og sving av mot høyre langs Strandvegen. Etter ca 1 km svinger man opp Øyåsvegen og fylkesvei 734 og følger den oppover. Etter ca. 5 km kommer man opp på toppen og kjører langs flata. Der får man avkjørsel mot Klungvegen på høyre side. Følg Klungvegen i ca. 500 m og hold til venstre, og deretter til venstre på toppen av bakken og du kommer inn på tunet.
Se kartposisjon i annonsen i tillegg.
Det vil bli godt skiltet i regi Heimdal Eiendomsmegling ved private visninger.
Byggemåte
ENEBOLIG:
Enebolig oppført med grunnmur i betong. Yttervegger er i bindingsverk og er utvendig kledd med stående trekledning. Taket har saltaks form og er tekket med takstein. Vinduer i hovedsak med 3-lags glass men også noen med 2-lags glass. Boligen ble bygget og tatt i bruk i 1984/1985.
GARASJE/LAGER:
Bygget er oppført med støpt plate på mark. Yttervegger er i bindingsverk og er utvendig kledd med stålplater. Taket har saltaks form og er tekket med stålplater. Det er etablert 3 store garasjeporter med Elektrisk portåpner. Selger opplyser om at verksteddelen av bygget er isolert. Det er eget toalett og vaske/tørkerom i bygget.
GARASJE:
Garasjen er oppført med støpt plate på mark. Yttervegger er i bindingsverk og er utvendig kledd med stående trekledning. Taket har saltaks form og er tekket med takstein. Det er etablert garasjeport i front.
HØNSEHUS:
Bygget er oppført med støpt plate på mark, og er reist i tre og stavlaft. Taket har saltaks form og er tekket med torv.
BAKSTHUS:
Bygget er oppført med støpt plate på mark. yttervegger er i tre og stavlaft og utvendige fasader er i laft og stående trekledning. Taket har saltaks form og har torvtak. Det er varmekabler i gulv og kjøkken i bygget. Skifer på gulv, hyller og bakstovn.
HYTTE/TROLLSTUA:
Bygget er oppsatt på støpt plate på mark. Yttervegger er i laft. Taket har saltaks form og har torvtak. Det er varmekabler i gulvet.
KLINIKK:
Bygget er oppsatt med støpt plate på mark. Yttervegger er i tre og er utvendig kledd med stående trekledning. taket har saltaks form og er tekket med takstein. det er varmekabler i gulv. Eget flislagt bad med dusj og toalett.
I enden av klinikken er arbeidene med bygging av garasje i gang. Det er støpt plate (ca. 50 m2) med bakvegg i betong for bygging av garasje.
JORDKJELLER:
Bygget er oppført på støpt plate på mark og har vegger og tak i betong. Utvendige fasader er i natursteinsmur og taket er tekket med torv, og er beplantet på tak og sider med div. prydbusker og klatreplanter.
Parkering
Parkering i stor garasje med 3 kjøreporter til storbiler, samt i egen stor gårdsplass.
Oppvarming
Bolighuset: Vedfyring i klebersteinovn, samt elektrisk oppvarming ved panelovner og varmekabler i gulv på bad og vaskerom. Baksthuset: Varmekabler i gulv. Hytte: Varmekabler i gulv. Hønshus: Elektrisk oppvarming. Klinikk: Varmekabler i alle gulv. Garasje/verksted: Panelovn på vaskerom og toalettet, samt elektrisk oppvarming i verkstedrommet på ca. 50 kvm.
Tomtebeskrivelse
Eiet tomt på 5 783,4 kvm i flg. matrikkelbrev.
Tomta er meget gjennomført. Store grøntarealer som er plantet systematisk for å få frem det beste på tomta. Blomster og busker er plantet slik at du har en blomstring i hagen gjennom hele vår/sommer/høst. På tomta er det flere bygninger, nevnes stor garasje/verksted med kjøreporter, garasje, baksthus, klinikk, egen hytte, jordkjeller, hønsehus og selve boligen. Bekken på tomta er lagt om slik at den danner et flott vannspeil i hagen. Fantastisk utsikt fra tomta på toppen av Melhus og Klungvegen.
I husa og på uteområdeene er det utstrakt bruk av naturstein som fasadekledning (jordkjeller), støttemurer og gangstier og sitteplasser. Gaulaskifer, Ottaskifer, Oppdalskifer, Snåsaskifer og Liskifer er brukt.
Skifer på gulv i baksthus og Trollstua. På vegger og golv på bad i hovedhus. Natursteinplater i div steintyper på bad og kjøkken i hovedhus (Barens Red) og på kjøkkenbenk i baksthus.
Sommeren 2017 er det i tillegg lagt beleggningsstein og skifer i hele gårdsplassen.
Vei/ vann/ kloakk
Vei:
Privat vei.
Vann: Offentlig til boligen. Privat vannverk til næringseiendommen.
Avløp: Septikktank på egen tomt.
Velforening
Tirslaugtrø-Klungen veilag.
Tinglyste dokumenter
1986/6762-1/65 12.12.1986 JORDSKIFTE
GJELDER DENNE REGISTERENHETEN MED FLERE
1987/2131-1/65 11.05.1987 BESTEMMELSE OM VEG
RETTIGHETSHAVER: KNR: 1653 GNR: 4 BNR: 1
1987/4100-1/65 04.09.1987 BESTEMMELSE OM VEG
RETTIGHETSHAVER: KNR: 1653 GNR: 4 BNR: 11
1996/1982-5/65 07.05.1996 BESTEMMELSE OM VEG
RETTIGHETSHAVER: KNR: 1653 GNR: 4 BNR: 1
RETTIGHETSHAVER: KNR: 1653 GNR: 4 BNR: 2
RETTIGHETSHAVER: KNR: 1653 GNR: 4 BNR: 3
RETTIGHETSHAVER: KNR: 1653 GNR: 4 BNR: 8
RETTIGHETSHAVER: KNR: 1653 GNR: 4 BNR: 11
RETTIGHETSHAVER: KNR: 1653 GNR: 8 BNR: 1
Ferdigattest
Det foreligger midlertidig brukstillatelse datert 18.06.1985. Ingen krav om ferdigattest på boliger oppført før 01.07.1997.
For garasje/verksted ble byggetillatelse gitt 01.03.1990. Ingen ferdigattest utstedt.
For uthus ble ferdigattest utstedt 02.04.2009.
Diverse
Kommunale avgifter 2017:
Årlig leie vannmåler kr 319,-
Årlig abonnementsgebyr vann bolig: kr. 1 705,-
Årlig abonnementsgebyr vann næring: kr. 2 777,50-
I tillegg kommer målt forbruk vann.
Pr. 2017 er prisen: Forskudd vannforbruk kr. 16,04 pr. m3
For eiendommer som ikke er tilknyttet kommunens avløpsnett, men som har privat septik tilkommer en årlig avgift pr. boenhet på kr. 2 500,-
Prisene er inkludert merverdiavgift.
Eiendomsskatt: kr. 2 600,- for boligdelen, og kr. 6 699,- for næringsdelen.
Feiing: kr. 536,- pr. år.
Komfyr i boligen samt i baksthuset medfølger. Øvrige hvitevarer medfølger ikke.
Selger ønsker å tilby muligheten for et salg uten den store garasje/verkstedet, ved å dele av denne fra eiendommen. Kontakt megler for mer informasjon og prisantydning uten dette bygget.
Kjøpsomkostninger
Beregnede omkostninger ved kjøp:
- Dokumentavgift, 2,5 % av kjøpesum kr. 220 000,-
- Tinglysingsgebyr skjøte p.t. kr. 525,-
- Tinglysingsgebyr pantedokument p.t. kr. 525,-
- Boligkjøperforsikring kr. 8 900,- (frivillig)
Totale omkostninger p.t. ved bud på prisantydning kr. 229 950,-
Boligkjøperforsikring
Å kjøpe en bolig er for de fleste den største økonomiske investeringen i livet og ikke noe du gjør hver dag. Vet du hvilke rettigheter du har som boligkjøper og vet du når du har et rettmessig krav dersom uforutsette problemer dukker opp? Boligkjøperforsikringen bidrar til å gi deg som kjøper en økonomisk trygghet og senker risikoen ved et boligkjøp. Våre advokater er eksperter på eiendom og står klare til å hjelpe deg. Vi dekker dine og eventuelt idømte saksomkostninger.
HVA FORSIKRINGEN DEKKER:
- Utgifter til juridisk bistand og advokat forbundet med at et krav fremmes overfor selger,
og/eller selgers forsikringsselskap
- Bistand til krav som er knyttet opp mot forsinket overlevering av boligen
- Utgifter til takstmenn, sakkyndige og andre nødvendige ekspertuttalelser
- Juridisk bistand fra høyt kvalifiserte saksbehandlere, jurister og advokater
- Dekningen er begrenset oppad til 5 000 000 kr med en egenandel på 4 000 kr
- Før egenandel innbetales mottar sikrede inntil 10 timer innledende bistand
Boligkjøperforsikringen er meglet frem av Norwegian Broker. Dersom du ønsker å tegne boligkjøperforsikring, vil dette være en omkostning ved kjøpet og premien dekkes gjennom din boligfinansiering.
Totale omkostninger
229,950
Boligens løpende kostnader
Antall voksne som bebor boligen i dag: 2
Forsikring: 8 601,-
Kommunale avgifter: Se viktig info i salgsoppgaven.
Avgift veiforening: 450,- for 2017.
Brøyting, strøing: Inkl. i veiforening.
Strøm: Har ikke tall på dette.
Internett: ca. 2 500,- pr. år.
Vi gjør oppmerksom på at denne informasjonen er basert på selgers opplysninger og er ikke kontrollert noe utover dette. Boligens løpende kostnader vil variere ut i fra individuelle leverandøravtaler, samt beboers behov og forbruk.
Navn på takstmann
Stig Magne Selnes
Takstfirma
Takst-Stig Trondheim
Dato for takst
14.07.2017
Konklusjon tilstand-/ boligsalgsrapport
Enebolig som fremstår i hovedsak med standard som fra opprinnelig byggeår men med bad i 1 etasje og kjøkken 1 etasje som er av noe nyere dato. med bakgrunn i dette må noe vedlikehold og oppgraderinger i årene som kommer påregnes.
For videre vurdering anbefales det og gå nøye igjennom rapportens respektive punkter.
Ansvarlig megler
Kim Roger Laugsand
Avd. leder / Eiendomsmegler, MNEF
Ta kontakt med megler for komplett informasjon
Nyttige lenker
Nærområdet
Heimdal Eiendomsmegling avd. Melhus
Annonseinformasjon
| FINN-kode | 103279002 |
|---|---|
| Sist endret | 28. sep. 2017 08:14 |
| Referanse | HE0317209 |
Annonsene kan være mangelfulle i forhold til lovpålagt opplysningsplikt. Før bindende avtale inngås oppfordres interessenter til å innhente komplett informasjon fra meglerforetaket, selger eller utleier.











































































