Bildegalleri

Eiendommen ligger fritt og usjenert til i Helgumsdalen, omgitt av gårdsbruk og dyrket mark. I bakgrunnen ser vi Granavollen og Søsterkirkene.
Solgt
Gran
Sjarmerende boligeiendom i vakre Helgumsdalen ved Granavollen. Stor og usjenert tomt med hovedhus, flere småhus og en va
Prisantydning4 500 000 kr
Nøkkelinfo
- Boligtype
- Enebolig
- Eieform
- Eier (Selveier)
- Soverom
- 3
- Primærrom
- 235 m²
- Bruksareal
- 285 m²
- Etasje
- 3
- Byggeår
- 1941
- Energimerking
- G - Gul
- Tomteareal
- 5 121 m² (eiet)
- Bruttoareal
- 307 m²
Fasiliteter
Balkong/Terrasse
Barnevennlig
Garasje/P-plass
Hage
Ingen gjenboere
Peis/Ildsted
Rolig
Utsikt
Turterreng
Om boligen
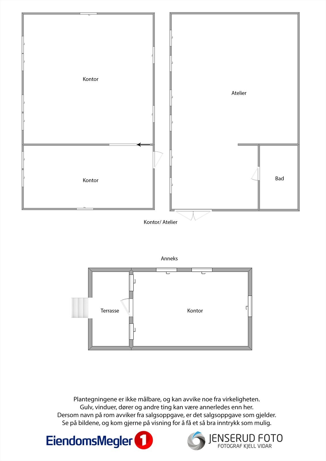
Eiendommen på over 5.000 m2 består av hovedhus, atelier/kontorbygning, uthus med hobbyrom, utebod med carport, badstue, lagerbygg og drivhus/lysthus. Her er det med andre ord plenty av plass til diverse virksomheter - både jobb og fritid. Tomten ligger usjenert og fritt til, omkranset av dyrket mark og gårdsbruk. Granavollen med Søsterkirkene, Glasslåven, Gjæstgiveri og pilegrimssenter ligger fem minutters gange unna.
Velkommen på visning!
Velkommen på visning!
NB: Knappen for å vise hele beskrivelsen har kun en visuell effekt.
NB: Knappen for å vise hele beskrivelsen har kun en visuell effekt.
Salgsoppgaven beskriver vesentlig og lovpålagt informasjon om eiendommen
Se komplett salgsoppgaveNyttige lenker
Nærområdet
EiendomsMegler 1 Hadeland
Vi loser deg trygt gjennom hele boligsalget
Annonseinformasjon
| FINN-kode | 232219071 |
|---|---|
| Sist endret | 28. okt. 2021 11:23 |
| Referanse | 1211210170 |
Annonsene kan være mangelfulle i forhold til lovpålagt opplysningsplikt. Før bindende avtale inngås oppfordres interessenter til å innhente komplett informasjon fra meglerforetaket, selger eller utleier.



















































































