Bildegalleri

Eiendommen er bebygd med flere bygninger.
Solgt
Stor enebolig med driftsbygning og sjelden beliggenhet på Hauge - 4 måls tomt og gode leieinntekter
Prisantydning8 790 000 kr
Nøkkelinfo
- Boligtype
- Enebolig
- Eieform
- Eier (Selveier)
- Soverom
- 3
- Internt bruksareal
- 287 m² (BRA-i)
- Bruksareal
- 287 m²
- Etasje
- 3
- Byggeår
- 1987
- Energimerking
- E - Oransje
- Rom
- 9
- Tomteareal
- 4 047 m² (eiet)
Fasiliteter
Balkong/Terrasse
Barnevennlig
Garasje/P-plass
Golfbane
Hage
Kjæledyr tillatt
Ingen gjenboere
Offentlig vann/kloakk
Peis/Ildsted
Rolig
Sentralt
Utsikt
Bademulighet
Turterreng
Om boligen
Velkommen til Jærvegen 273!
Denne innholdsrike eiendommen må oppleves. Med sin sentrale beliggenhet og unike kvaliteter er dette en sjelden vare å komme over.
Kort og godt:
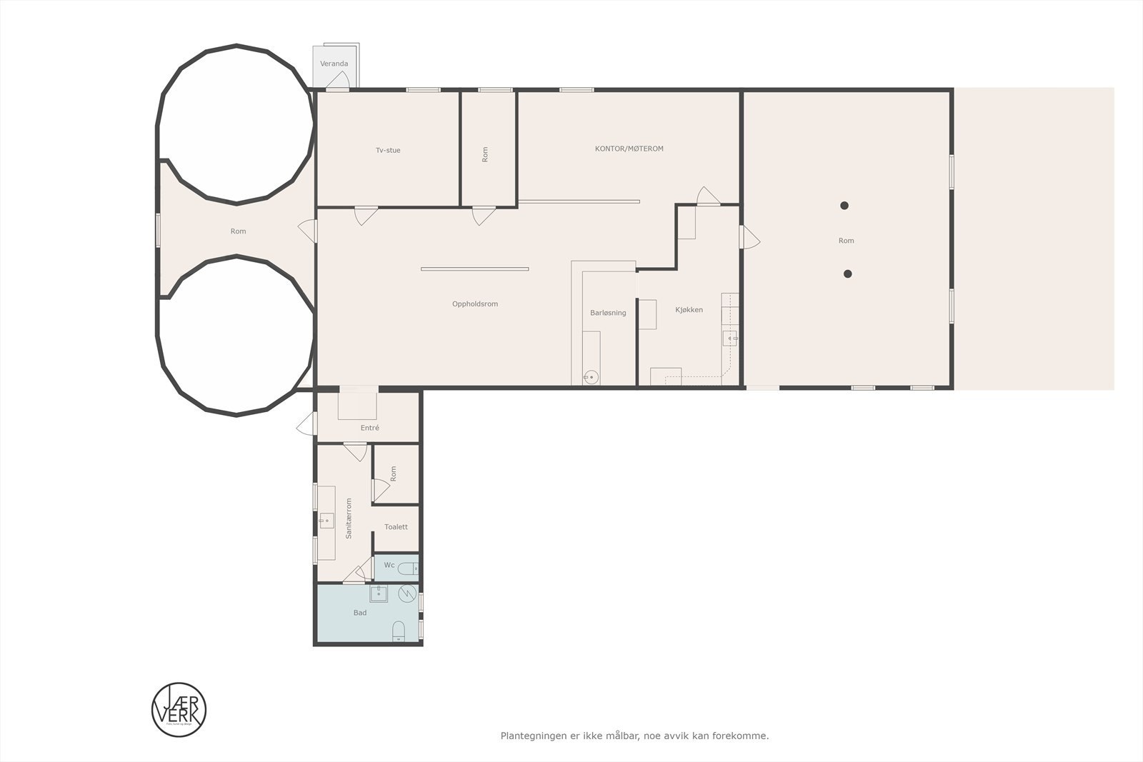
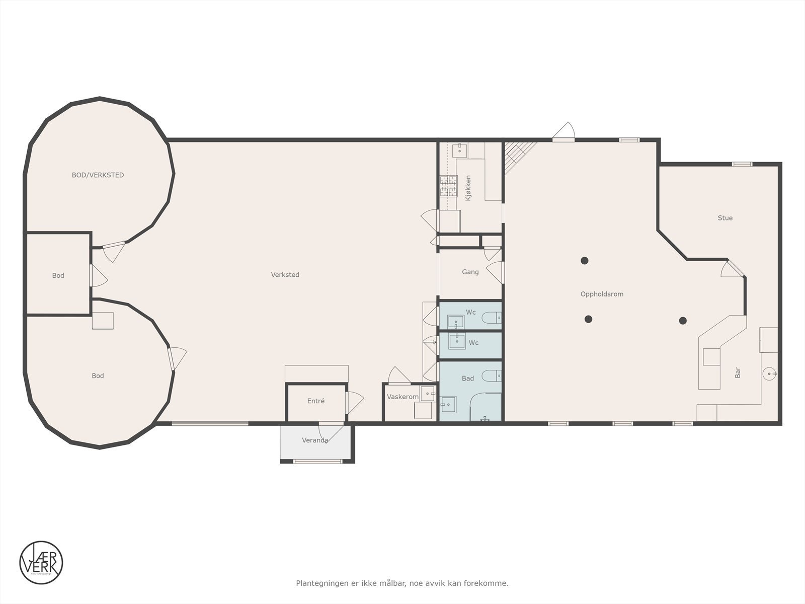
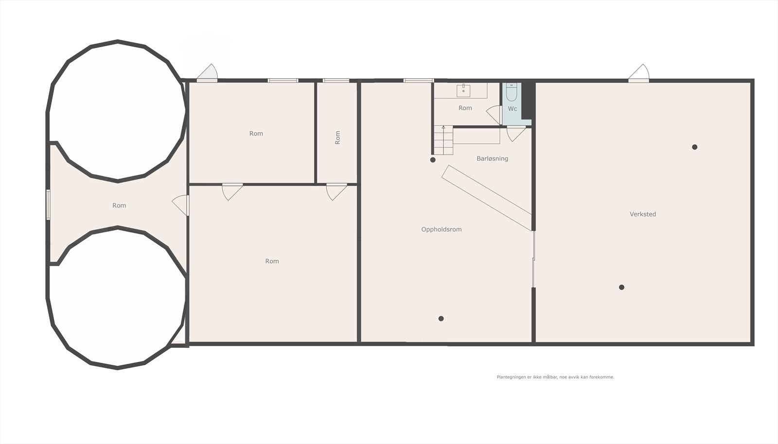
- Stor enebolig på ca. 280 kvm over 3 etasjer
- Solrik og skjermet hage tilknyttet bolig
- Innholdsrike og godt vedlikeholdte driftsbygninger
- Gode leieinntekter
Her finner man alt man måtte ønske i en eiendom, og bare fantasien setter grenser. Med plass til både grønnsakshage og stall kan man virkelig nyte tilværelsen på denne flotte tomten. Velkommen til visning.
Denne innholdsrike eiendommen må oppleves. Med sin sentrale beliggenhet og unike kvaliteter er dette en sjelden vare å komme over.
Kort og godt:
- Stor enebolig på ca. 280 kvm over 3 etasjer
- Solrik og skjermet hage tilknyttet bolig
- Innholdsrike og godt vedlikeholdte driftsbygninger
- Gode leieinntekter
Her finner man alt man måtte ønske i en eiendom, og bare fantasien setter grenser. Med plass til både grønnsakshage og stall kan man virkelig nyte tilværelsen på denne flotte tomten. Velkommen til visning.
NB: Knappen for å vise hele beskrivelsen har kun en visuell effekt.
NB: Knappen for å vise hele beskrivelsen har kun en visuell effekt.
Salgsoppgaven beskriver vesentlig og lovpålagt informasjon om eiendommen
Se komplett salgsoppgaveNyttige lenker
Nærområdet
Eiendomsmegler Norge Jæren
Det viktigste stedet i Norge er der du bor
Prisstatistikk
Jærvegen 273
131 493 klikk
på annonsen
30 627 kr
prisantydning per kvadratmeter
Prisfordeling
Pris per m² ligger 373 kr under snittet for eneboliger i Klepp.
Grafen viser antall eneboliger solgt i Klepp siste året fordelt på pris per m² - totalt 121 eneboliger
Antall boliger
Kvadratmeterpris tilsvarer prisantydning pluss fellesgjeld per kvadratmeter (p-rom eller BRA-i). Prisene i grafen er avrundet til nærmeste 1000 kr.
Annonseinformasjon
| FINN-kode | 342295850 |
|---|---|
| Sist endret | 12. juli 2024 09:59 |
| Referanse | 36240003 |
Annonsene kan være mangelfulle i forhold til lovpålagt opplysningsplikt. Før bindende avtale inngås oppfordres interessenter til å innhente komplett informasjon fra meglerforetaket, selger eller utleier.




























































