Bildegalleri

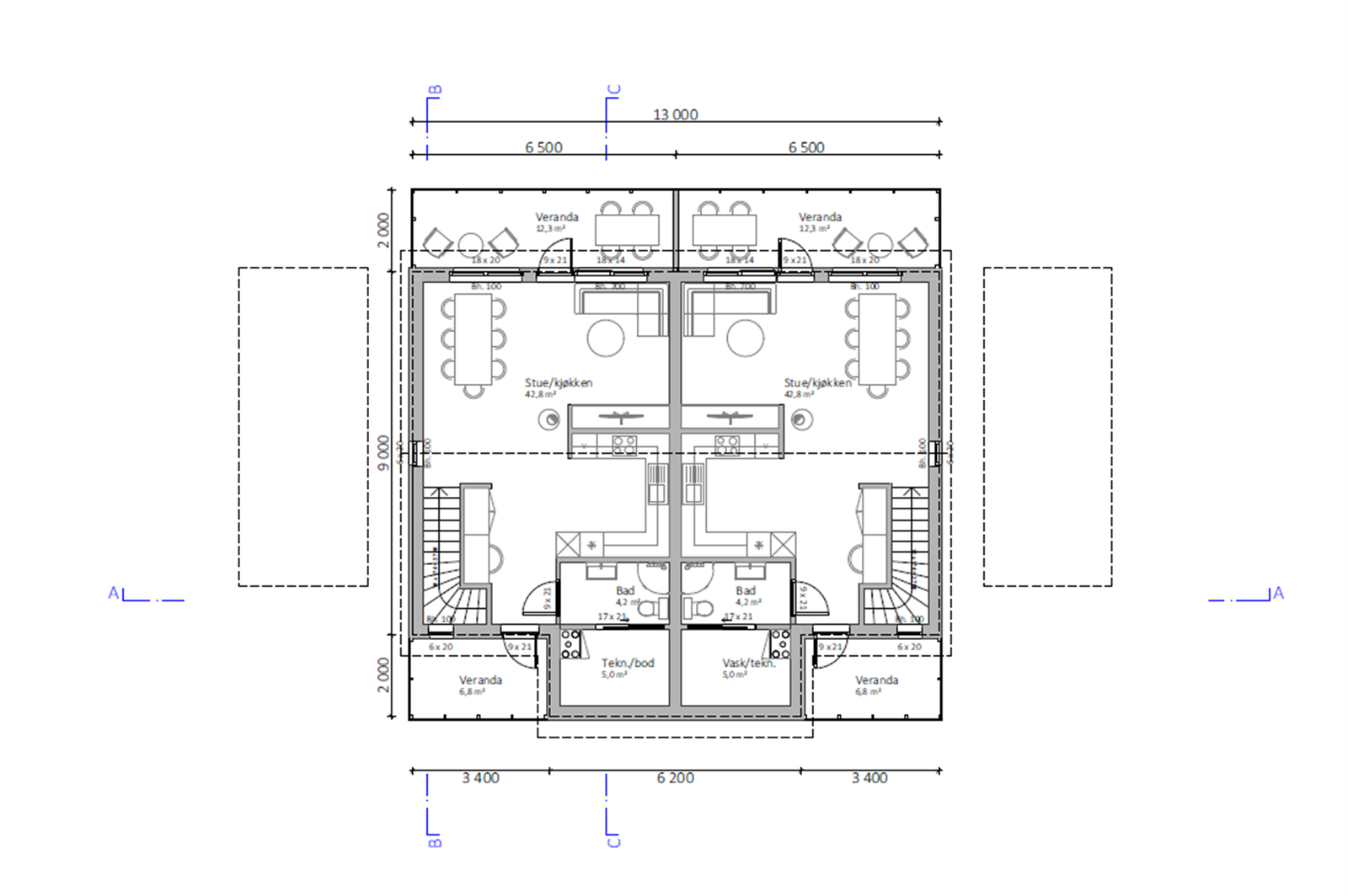
Boligen har varmekabler i gulv i samtlige rom, samt stemningsfull peisovn i stuen
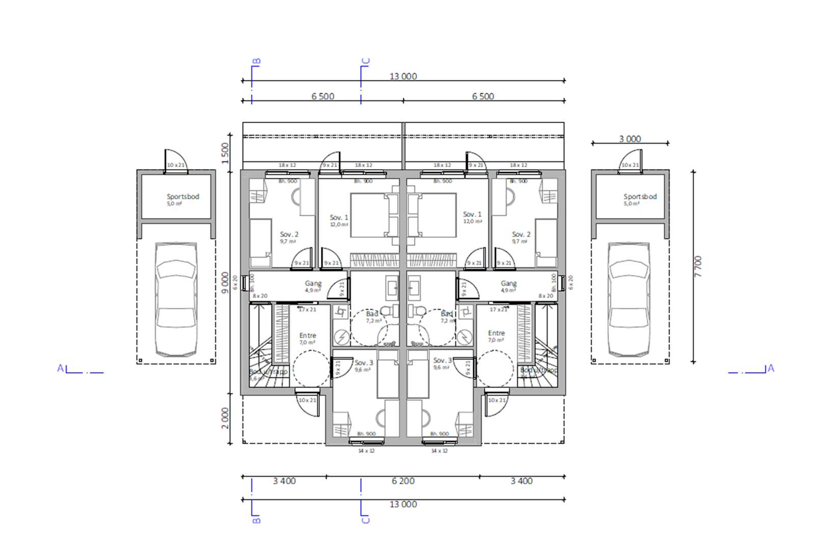
Nyoppført og attraktiv 1/2 av tomannsbolig m/høy standard-3 soverom og 2 bad- Carport og to balkonger. Flott beliggenhet
Nøkkelinfo
- Boligtype
- Tomannsbolig
- Eieform
- Eier (Selveier)
- Soverom
- 3
- Primærrom
- 102 m²
- Bruksareal
- 102 m²
- Etasje
- 2
- Byggeår
- 2022
- Energimerking
- B - Oransje
- Rom
- 4
- Tomteareal
- 843 m² (eiet)
Fasiliteter
Om boligen
Boligen er oppført i 2022/2023 og bærer preg av mange gode, moderne løsninger. Det er en tilnærmet vedlikeholdsfri bolig med SuperWood kledning og pent opparbeidet uteareal når våren kommer. Boligen går over to plan og rommer bl.a. tiltalende stue, kjøkken med integrerte hvitevarer, tre gode soverom, to flislagte bad og to praktiske boder. Gulvvarme i alle rom og stemningsfull peisovn i stuen. I tillegg to flotte balkonger som blir en naturlig forlengelse av boligen på sommertid.
Salgsoppgaven beskriver vesentlig og lovpålagt informasjon om eiendommen
Se komplett salgsoppgaveNyttige lenker
Nærområdet
Krogsveen Jessheim
Prisstatistikk
Lavskrikevegen 10C
på annonsen
prisantydning per kvadratmeter
Prisfordeling
Pris per m² ligger 15 980 kr over snittet for tomannsboliger i Nannestad.
Grafen viser antall tomannsboliger solgt i Nannestad siste året fordelt på pris per m² - totalt 43 tomannsboliger
Antall boliger
Kvadratmeterpris tilsvarer prisantydning pluss fellesgjeld per kvadratmeter (p-rom eller BRA-i). Prisene i grafen er avrundet til nærmeste 1000 kr.
Annonseinformasjon
| FINN-kode | 294001658 |
|---|---|
| Sist endret | 06. juli 2023 07:12 |
| Referanse | KR63.2334 |
Annonsene kan være mangelfulle i forhold til lovpålagt opplysningsplikt. Før bindende avtale inngås oppfordres interessenter til å innhente komplett informasjon fra meglerforetaket, selger eller utleier.















































