Bildegalleri

Lun og koselig terrasse belagt med betongheller.
Rålekker, moderne og helt ny enebolig med 4 soverom og 2 bad. Fine og solrike uteplasser og gode parkeringsmuligheter.
Nøkkelinfo
- Boligtype
- Enebolig
- Eieform
- Eier (Selveier)
- Soverom
- 4
- Primærrom
- 125 m²
- Bruksareal
- 135 m²
- Etasje
- 1
- Byggeår
- 2023
- Tomteareal
- 1 750 m² (eiet)
Velkommen til Gamle Ramnesvei 39C og denne helt nye og flotte eneboligen
Vi presenterer her en splitter ny og rålekker enebolig med solrik og sentral beliggenhet på Sem.
Boligen passer perfekt for en barnefamilie med sine 4 soverom, 2 bad , eget praktisk vaskerom og 1-2 stuer fordelt over 2 plan. Videre er det fokusert på flotte utenomhusarealer med terrasse, balkong og ikke minst fine gressarealer for lek og moro.
Boligen preges av gode, tidsriktige og moderne material- og fargevalg. Dette gjennspeiles i de flotte innredningene på baderommene og på kjøkkenet såvel som overflater generelt.
Det er balansert ventilasjon med varmegjennvinner i boligen, samt at det er varme i gulvet i alle rom i 1. etasje samt på baderommet i 2. etasje. Videre er det forberedt for å innstallere vedovn i stua i 2. etasje.
Planløsningen er meget praktisk og god, og det kan bl.a. nevnes at hovedsoverommet har egen walk-in garderobe. Videre er det fokusert på lagringsplass med både innvendig og utvendig bod.
Fra eiendommen er det kort vei til det meste som skole, barnehager, dagligvarebutikker, flotte turområder etc. Videre er det umiddelbar nærhet til E-18 og ellers kort vei inn til Tønsberg sentrum med et hav av butikker, kultur- og restauranttilbud.
Dette er boligen for deg som ønsker en helt ny, praktisk og plasseffektiv bolig med plass til hele familien, og til en fornuftig pris.
Ved siden av boligen, på samme tomt, er det bygget en tomannsbolig som er under ferdigstillelse. Disse boligene skal også selges, og har en helt lik planløsning og størrelse som eneboligen.
Velkommen til visning!
Adresse
Gamle Ramnesvei 39C
3171 Sem
1. etasje
Boligens innhold og gode planløsning
Boligen har en særdeles god planøsning over 2 plan og passer perfekt for f.eks en barnefamilie.
Her er det luftige rom med en meget god takhøyde.
1. etasje
*Romslig utvendig bod ifb. med inngangspartiet
*Stor og luftig hall/entrè m/ plass til garderobeløsninger.
*Lekkert baderom
*Eget vaskerom med innredning
*3 fine soverom hvorav det ene evt. kan benyttes som ekstra stue
*Innvendig bod
2. etasje
*Stor og åpen stue-/kjøkkenløsning med utgang til romslig og solrik balkong.
*Lekkert baderom
*Hovedsoverom med adkomst til walk-in garderobe.
Beliggenhet
Eiendommen har en solrik og sentral beliggenhet rett vest for E-18 på Sem. Herifra er det kort gangavstand til Sem skole, barnehage og Sem sentrum med en rekke fasiliteter.
Videre er det kort avstand til Tønsberg sentrum som innehar de aller fleste sentrumsfunksjoner. Det er sykkel-/gangvei hele veien fra eiendommen og til Tønsberg sentrum.
Eiendommen er perfekt for pendleren med umiddelbar avstand til E-18. Kort kjøreavstand også til Torp lufthavn eller til Sandefjord.
Boligens standard - kort fortalt
Her står design med moderne og arealeffektive løsninger i høysetet! Huset er moderne innredet med stiltilpasset eksteriør og interiør. Den innvendige standarden bærer preg av gjennomtenkte løsninger, god teknisk standard og funksjonalistiske utforminger.
Videre er det meget flotte uteplasser med balkong ut fra stua i 2. etasje og en fin terrasse i forbindelse med inngangspartiet. I tillegg til dette er det gressarealer forran og ved siden av huset.
*Nyoppført og innflytningsklar enebolig
*Moderne og stilren design
*En særdeles god og effektiv planløsning over 2 etasjer
*Gode solforhold med sol hele dagen
*Et gjennomtenkt material- og fargevalg.
*Sorte vinduer og balkongdører gir et supermoderne særpreg
*Romslig, delvis innglasset balkong med gode solforhold
*Ferdig opparbeidet og lettstelt uteområde m/ferdigplen og asfaltert gårdsplass
*Lekkert kjøkken med integrerte hvitevarer og stor kjøkkenøy
*To lekre baderom - begge med dusjhjørner og vegghengte toaletter
*Separat vaskerom i kombinasjon med teknisk rom
*4 soverom - master bedroom m/adkomst til walk-in garderobe
*Stor og åpen stue-/kjøkkenløsning i 2. etasje i tillegg til at det ene soverommet i 1. etasje også egner seg som stue.
*Klargjort for peisovn
*Balansert ventilasjonsanlegg m/varmegjenvinner gir godt inneklima
*Utstrakt bruk av innfelte LED-downlights i himlinger
*Listefrie tak forsterker det moderne preget
*Kort vei til Tønsberg by, Sem sentrum og lettvint adkomst til E-18
*Lav dokumentavgift da boligen er nyoppført
*Alt er ferdig opparbeidet.
Hvorfor kjøpe nyoppført bolig?
Opplevelsen av å flytte inn i sin egen, helt nye bolig en helt egen følelse. Her har ingen bodd før deg, alt er nytt med velduftende materialer.
º En ny bolig gir forutsigbare boligutgifter og lave vedlikeholdsutgifter i nærmeste fremtid
º Klimavennlig og energiøkonomisk
º Lave kjøpsomkostninger (dokumentavgift beregnet ut fra tomteverdi)
º Vær med på å etablere et nytt nabolag
º Innflyttingsklar uten tanke på å måtte pusse opp først
º Sett ditt eget særpreg på hjemmet - gipsvegger er enkelt å fargesette hvis du senere vil ha andre farger
Type, eierform og byggeår
Enebolig - Eierseksjon.
Oppført i 2023.
Sameiet består av i alt 3 eierseksjoner inkludert en enebolig og en tomannsbolig.
Bygninger og byggemåte
Boligen er bygget i tre over støpt såle av mur og med takstein på taket.
Antall rom
Oppholdsrom: 1-2
Soverom: 4
Bad: 2
Arealer og fordeling per etasje
Primærrom: 125 kvm, Bruksareal: 135 kvm
1.Etasje: p-rom/bra: 63/70 kvm.
2.Etasje: p-rom/bra: 62/65
Tilstandsrapport
Det er ikke utarbeidet tilstandsrapport for denne boligen da den er helt ny. Vanlig garanti-/og reklamasjonsregler gjelder.
Takstmann Geir Gunnerud har målt opp arealene i boligen.
Oppvarming og balansert ventilasjonssystem med varmegjenvinner
Det er elektriske varmekabler (termostatstyrte) i gulv på alle rom i 1. etasje samt på baderommet i 2. etasje.
I stuen er det installert synlig stålpipe klargjort for evt. fremtidig innsetting av vedfyrt ildsted i stuen i 2. etasje.
'Stålpipen må da fullføres fra himlingen og ned til ildstedet.
Det er innlagt balansert ventilasjon med varmegjenvinner som er både økonomisk lønnsomt og har stor betydning for inneklimaet.
Ventilasjonssystemet er plassert i vaskerom/teknisk rom i 1. etasje og styres fra elektronisk kontrollpanel.
Parkering
Det er plass til flere biler på asfaltert gårdsplass.
Videre er det mulig å sette opp garasje.
Areal og eierform
Eierform: Felles eiet tomt for sameiet på 1750 kvm.
Tomt og hage
Pent opparbeidet tomt hvor hver seksjon disponerer sin naturlige del av utearealet. Her er det mulig å sette opp hekker og markere avgrensninger slik man ønsker, eller etter avtale med eierne i fellesskap.
Veien og gårdsplassen er asfaltert og det er etablert flotte gressarealer rundt boligene. Gangveien inn til boligene består av fine betongheller.
Det er meget gode solforhold på eiendommen.
Naboen i syd har fått godkjent å bygge en tomannsbolig i hagen.
Vei, vann og avløp
Eiendommen er tilknyttet offentlig vei, vann og avløp.
Stikkveien fra Gamle Ramnesvei og inn til eiendommen deles med Gamle Ramnesvei 37.
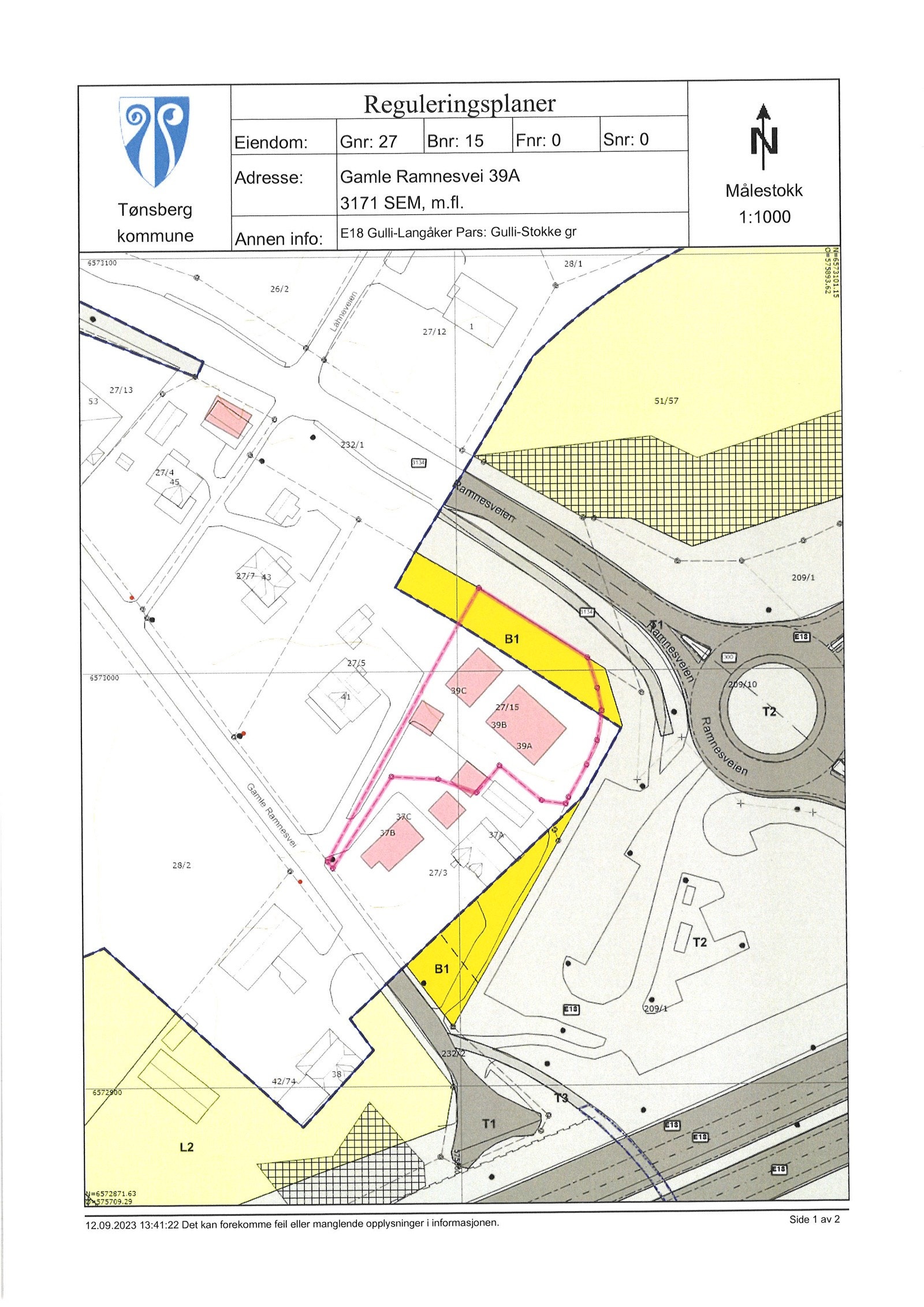
Reguleringsforhold
Eiendommen ligger i område som i kommuneplanen er avsatt til boligbebyggelse.
Eiendommen ligger i regulert område med planid 3803 21015 og plannavn: E18 Gulli-Langåker Pars: Gulli-Stokke grense (4.2.2009).
Reguleringsformål: Boliger.
På naboeiendommen, Gamle Ramnesvei 37, er det blitt godkjent oppføring av en tomannsbolig.
Denne vil dele vei med Gamle Ramnesvei 39.
Se situasjonskart for hvordan tomansboligen blir plassert.
Ferdigattest
Ferdigattest vil foreligge innen overtagelse.
Prisantydning
4 790 000,-
Betalingsbetingelser
Hele kjøpesummen med omkostninger må være innbetalt og disponibel for megler, på meglers klientkonto, senest på siste virkedag før overtagelsen finner sted.
Takst / tilstandsrapport
Det er ikke utarbeidet verdi-/lånetakst eller tilstandsrapport for denne eiendommen.
Lovpålagt garantistillelse fra selger
Iht. Avhendingslova sin paragraf 2-11 som omhandler "garanti for oppfylling av avtalen", vil selger i det tilfellet denne boligen evt. selges innen 6-seks-måneder etter ferdigstillelse av boligen stille en garanti tilsvarende 5% av kjøpesummen til kjøper i forbrukerforhold etter tilsvarende regler i paragraf 12 i Bustadoppføringslova.
Kommunale avgifter
Kr. 15 420 pr. år
Formuesverdi - tidligere omtalt som ligningsverdi
Da boligen er nyoppført er det ikke fastsatt noen formuesverdi.
Formuesverdien fastsettes med utgangspunkt i en kvadratmeterpris, som beregnes av Statistisk sentralbyrå (SSB). Kvadratmeterprisen skal gi uttrykk for en estimert markedsverdi pr. kvadratmeter og bygger på statistiske opplysninger om omsatte boliger (boligtype, areal, geografisk beliggenhet og alder). Ut fra kvadratmeterprisene til SSB fastsetter Skatteetaten årlige kvadratmetersatser. Disse satsene vil utgjøre hhv. 25% av kvadratmeterprisene for primærboliger (der boligeier er folkeregistrert pr. 1. januar) og 90% for sekundærboliger (alle andre boliger).
Informasjon om sameiet
Sameiet består av 3 stk. seksjoner - en frittstående enebolig og en tomannsbolig. Sameiet omfattes av tre seksjoner Gamle Ramnesvei 39a, b og c. Boligsameiet er organisert som seksjonssameie iht. lov av 16.06.2017, nr. 65, Eierseksjonsloven.
Det vil være opp til fremtidige eiere av de tre eneboligene å selv avgjøre hvorledes man vil organisere sameiet med evt. fellesutgifter etc., men det er utarbeidet vedtekter for sameiet. Det er ikke etablert noen rutiner/ordning for evt. fellesutgifter per i dag. Det er utarbeidet vedtekter som følger som vedlegg i salgsoppgaven
Sameiets seksjoner har følgende eierbrøker:
Seksjon 1 : 1/3-del
Seksjon 2 : 1/3-del
Seksjon 2 : 1/3-del
Det er ingen fellesgjeld i sameiet.
Det forutsettes av kjøper aksepterer fremlagte vedtekter som grunnlag for kjøpsavtale. Dersom kjøper har forslag til endringer av vedtekter, kan dette fremmes iht. vedtektene og eierseksjonsloven på senere sameiemøte. Komplette sameievedtekter finner du i salgsoppgaven. En sameier eier en andel i eiendommen, med tilknyttet enerett til bruk av egen boligseksjon, jf. eierseksjonsloven § 1. Ingen kan erverve mer enn to boligseksjoner i et sameie, jf. eierseksjonsloven § 22, 3. ledd.
Adgang til utleie
Eier har full råderett over boligen, og kan fritt leie ut hele eller deler av denne. Det foreligger bare en bruksenhet i hver bolig, og det er ingen separat utleiedel i tillegg til bruksenheten.
Tinglyste rettigheter, heftelser og servitutter
1963/501398-1/91 Bestemmelse om vannledn.
04.05.1963
Bestemmelse om anlegg og vedlikehold av ledninger m.m.
Vegvesenets betingelser vedtatt
Overført fra: 3803-27/3
1991/2877-1/91 Jordskifte
11.03.1991
Overført fra: 3803-27/3
Gjelder denne registerenheten med flere
2021/837757-2/200 Bestemmelse om veg
07.07.2021 21:00
Bestemmelse om vedlikehold
Gjelder denne registerenheten med flere
Eiendommen selges med de tinglyste heftelser/servitutter som påhviler eiendommen. Det vil kun være selgers eventuelle pengeheftelser som vil bli slettet. Kjøper bekrefter å være kjent med og aksepterer at evt. øvrige heftelser/servitutter vil bli stående på eiendommen. Det er kjøpers ansvar å sørge for at hans bankforbindelse blir gjort kjent med disse forhold og at kjøpers eventuelle lån for kjøp av eiendommen, er gitt på disse vilkår.
Konsesjon/odel
Eiendommen er ikke konsesjons- eller odelsbelagt.
Oppgjør
Hele kjøpesummen med omkostninger må være innbetalt og disponibel for megler på meglers klientkonto, senest på siste virkedag innen overtagelsen finner sted. Opptjente renter utover 1/2 R, tilfaller selger.
Andre opplysninger
Det er ikke innhentet særskilte opplysninger om evt pålegg fra e-verk eller brann/feievesen.
Integrerte hvitevarer medfølger i handelen. Øvrige hvitevarer medfølger ikke i handelen, med mindre det klart fremgår av prospektet hvilke hvitevarer som medfølger.
Budgivning
Alle bud skal inngis skriftlig til megler. Benytt "Gi bud"-knappen på våre annonser for å registrere ditt bud elektronisk. Dette er en enkel og sikker løsning som lar deg signere budet elektronisk ved hjelp av BankID.
Finansiering
Z Eiendom as setter deg gjerne i forbindelse med en dyktig finansiell rådgiver i Sparebank1 Sørøst-Norge. Kontakt din megler om dette.
Overtagelse
Avklares i forbindelse med budgivning.
Viktig informasjon
Det er den faktiske bruken av rommet ved salgstidspunktet som har avgjort om rommet er definert som P-Rom eller S-Rom, jfr. Tilstandsrapportens pkt. vedrørende arealer. Dette betyr at enkelte rom kan være i strid med byggeteknisk forskrift og mangle godkjennelse i kommunen for den aktuelle bruken, selv om arealet er medtatt som P-Rom. Det gjøres derfor spesielt oppmerksom på at de eventuelle rom som faller inn under ovennevnte er kjøpers ansvar og risiko. Kjøper påtar seg risikoen både for fremtidig fortsatt bruk og eventuelle pålegg, herunder risikoen for om bruken lar seg godkjenne, og alle kostnader forbundet med dette. Alle arealer er henter fra takstmannens Tilstandsrapport. Arealene er oppgitt av takstmannen på grunnlag av takstbransjens rettledning for arealmåling. Av rettledning fremkommer det at også areal(unntatt boder) som ligger utenom selve bruksenheten skal inngå i BRA, og noen ganger også i P-Rom. Megler har selv ikke målt eiendommen.
Salgsoppgaven er basert på selgers opplysninger og meglers egen undersøkelser. Salgsoppgaven er godkjent av selger.
Lovanvendelse
Eiendommen selges etter reglene i avhendingsloven.
Eiendommen skal overleveres kjøper i tråd med det som er avtalt. Det er viktig at kjøper setter seg grundig inn i alle salgsdokumentene, herunder salgsoppgave, tilstandsrapport og selgers egenerklæring. Kjøper anses kjent med forhold som er tydelig beskrevet i salgsdokumentene. Forhold som er beskrevet i salgsdokumentene kan ikke påberopes som mangler. Dette gjelder uavhengig av om kjøper har lest dokumentene. Alle interessenter oppfordres til å undersøke eiendommen nøye, gjerne sammen med fagkyndig før bud inngis. Kjøper som velger å kjøpe usett kan ikke gjøre gjeldende som mangel noe han burde blitt kjent med ved undersøkelsen.
Dersom det er behov for avklaringer, anbefaler vi at kjøper rådfører seg med eiendomsmegler eller en bygningssakyndig før det legges inn bud.
Hvis eiendommen ikke er i samsvar med det kjøperen må kunne forvente ut ifra alder, type og synlig tilstand, kan det være en mangel. Det samme gjelder hvis det er holdt tilbake eller gitt uriktige opplysninger om eiendommen. Dette gjelder likevel bare dersom man kan gå ut i fra at det virket inn på avtalen at opplysningen ikke ble gitt eller at feil opplysninger ikke ble rettet i tide på en tydelig måte. En bolig som har blitt brukt i en viss tid, har vanligvis blitt utsatt for slitasje og skader kan ha oppstått. Slik bruksslitasje må kjøper regne med, og det kan avdekkes enkelte forhold etter overtakelse som nødvendiggjør utbedringer. Normal slitasje og skader som nødvendiggjør utbedring, er innenfor hva kjøper må forvente og vil ikke utgjøre en mangel.
Boligen kan ha en mangel dersom det er avvik mellom opplyst og faktisk areal, forutsatt at avviket er på 2% eller mer og minimum 1 kvm.
Ved beregning av et eventuelt prisavslag eller erstatning må kjøper selv dekke tap/kostnader opptil et beløp på kr 10 000 (egenandel).
Dersom kjøper ikke er forbruker selges eiendommen som den er , og selgers ansvar er da begrenset jf. avhl. § 3-9, 1. ledd 2. pktm. Avhendingsloven § 3-3 (2) fravikes, og hvorvidt en innendørs arealsvikt karakteriseres som en mangel vurderes etter avhendingsloven § 3-8. Informasjon om kjøpers undersøkelsesplikt, herunder oppfordringen om å undersøke eiendommen nøye, gjelder også for kjøpere som ikke anses som forbrukere. Med forbrukerkjøp menes kjøp av eiendom når kjøperen er en fysisk person som ikke hovedsakelig handler som ledd i næringsvirksomhet.
Lov om hvitvasking
I henhold til Lov av 6. mars 2009 nr. 11 om tiltak mot hvitvasking og terrorfinansiering(Hvitvaskingloven) er megler forpliktet til å gjennomføre legitimasjonskontroll. Dette innebærer blant annet plikt for meglerforetaket til å foreta kundekontroll av begge parter i handelen, herunder plikt til å foreta kontroll av reelle rettighetshavere der kjøper (budgiver) opptrer på vegne av andre enn seg selv. Endelig kundekontroll av kjøper skjer senest på kontraktsmøtet. Dersom kundekontroll ikke kan gjennomføres, kan ikke meglerforetaket bistå med gjennomføring av handelen, herunder foreta oppgjør. Meglerforetaket er videre forpliktet til å rapportere mistenkelig transaksjoner til Økokrim. Med mistenkelige transaksjon menes transaksjon som mistenkes å involvere utbytte fra straffbar handling eller som skjer som ledd i terrorfinansiering. Manglende mulighet for kundekontroll kan også være et forhold som gjør transaksjonen mistenkelig. Det kan ikke gjøres ansvar gjeldene mot meglerforetaket som følge av at meglerforetaket overholder sine plikter etter Hvitvaskingsloven.
Salgsoppgaven beskriver vesentlig og lovpålagt informasjon om eiendommen
Se komplett salgsoppgaveNyttige lenker
Nærområdet
EiendomsMegler 1 Tønsberg
Prisstatistikk
Gamle Ramnesvei 39C
på annonsen
prisantydning per kvadratmeter
Prisfordeling
Pris per m² ligger 2 320 kr over snittet for eneboliger i Tønsberg.
Grafen viser antall eneboliger solgt i Tønsberg siste året fordelt på pris per m² - totalt 443 eneboliger
Antall boliger
Kvadratmeterpris tilsvarer prisantydning pluss fellesgjeld per kvadratmeter (p-rom eller BRA-i). Prisene i grafen er avrundet til nærmeste 1000 kr.
Annonsene kan være mangelfulle i forhold til lovpålagt opplysningsplikt. Før bindende avtale inngås oppfordres interessenter til å innhente komplett informasjon fra meglerforetaket, selger eller utleier.
















































