Bildegalleri

Velkommen inn til en flislagt entré med behagelig gulvvarme.
SOLGT! Lekker og romslig enebolig fra 2019 | Fem soverom og to bad | Dobbelgarasje | Solrikt
Nøkkelinfo
- Boligtype
- Enebolig
- Eieform
- Eier (Selveier)
- Soverom
- 5
- Internt bruksareal
- 174 m² (BRA-i)
- Bruksareal
- 174 m²
- Eksternt bruksareal
- 5 m² (BRA-e)
- Balkong/Terrasse
- 69 m² (TBA)
- Byggeår
- 2019
- Tomteareal
- 698 m² (eiet)
Fasiliteter
Om boligen
EIE v/ Kristian Kåstad Hansen har gleden av å presentere Kappløpet 11!
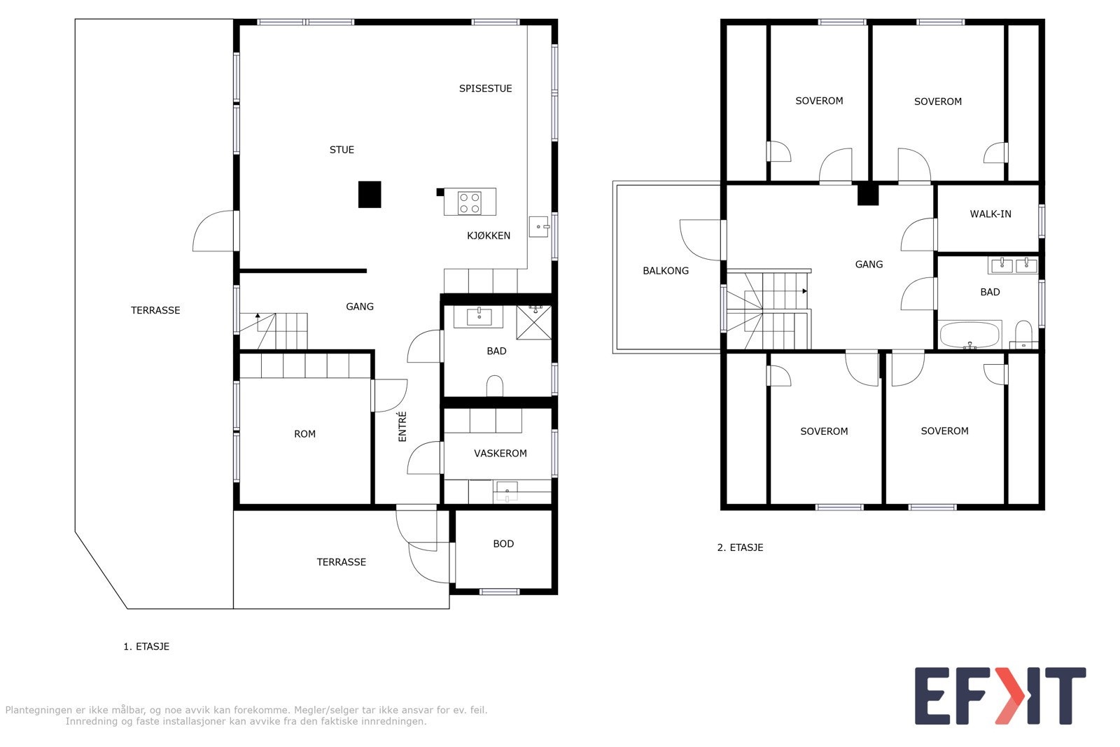
Dette er en nydelig og innholdsrik enebolig fra 2019 med barnevennlig beliggenhet. Her kan du flytte rett inn og enkelt sette ditt preg på boligen. Du får en god planløsning med entré, vaskerom, stue, kjøkken, bad og soverom i 1. etasje. I 2. etasje ligger stue, bad, bod og fire soverom.
Høydepunkter:
- Fem soverom og to bad
- Vaskerom og bod
- Moderne kjøkken med integrerte hvitevarer
- Delikate farge- og materialvalg med høy standard
- Egen tomt og hage gir deg frihet og privatliv
- Solrik terrasse
- Dobbelgarasje og parkering på gårdsplassen
- Lagringsplass i innvendig og utvendig bod
- Barnevennlig nabolag
- Kort gangavstand til barnehager og skoler
- Fantastiske turmuligheter
- Gangavstand til buss og tog
Salgsoppgaven beskriver vesentlig og lovpålagt informasjon om eiendommen
Se komplett salgsoppgaveNærområdet
EIE eiendomsmegling Råholt
Prisstatistikk
Kappløpet 11
på annonsen
prisantydning per kvadratmeter
Prisfordeling
Pris per m² ligger 14 287 kr over snittet for eneboliger i Ullensaker.
Grafen viser antall eneboliger solgt i Ullensaker siste året fordelt på pris per m² - totalt 239 eneboliger
Antall boliger
Kvadratmeterpris tilsvarer prisantydning pluss fellesgjeld per kvadratmeter (p-rom eller BRA-i). Prisene i grafen er avrundet til nærmeste 1000 kr.
Annonseinformasjon
| FINN-kode | 349981790 |
|---|---|
| Sist endret | 07. mai 2024 21:59 |
| Referanse | 101240058 |
Annonsene kan være mangelfulle i forhold til lovpålagt opplysningsplikt. Før bindende avtale inngås oppfordres interessenter til å innhente komplett informasjon fra meglerforetaket, selger eller utleier.









































