Bildegalleri

Lekkert kjøkken bygget av Hamran Snekkerverksted - Hvitevarer fra Gaggenau.
Inaktiv
Nordstrand/Ljan
Eksklusiv utsiktsleil. m/sol hele dagen - Uteplasser på 61 kvm - Svært høy standard -Direkte heisadkomst - Dobbelgarasje
Prisantydning24 900 000 kr
Nøkkelinfo
- Boligtype
- Leilighet
- Eieform
- Eier (Selveier)
- Soverom
- 2
- Internt bruksareal
- 180 m² (BRA-i)
- Bruksareal
- 215 m²
- Eksternt bruksareal
- 35 m² (BRA-e)
- Balkong/Terrasse
- 61 m² (TBA)
- Etasje
- 1
- Byggeår
- 2021
- Energimerking
- B - Gul
- Rom
- 3
- Tomteareal
- 2 434 m² (eiet)
Fasiliteter
Balkong/Terrasse
Barnevennlig
Bredbåndstilknytning
Garasje/P-plass
Heis
Kjæledyr tillatt
Ingen gjenboere
Kabel-TV
Offentlig vann/kloakk
Parkett
Peis/Ildsted
Rolig
Utsikt
Bademulighet
Lademulighet
Balansert ventilasjon
Om boligen
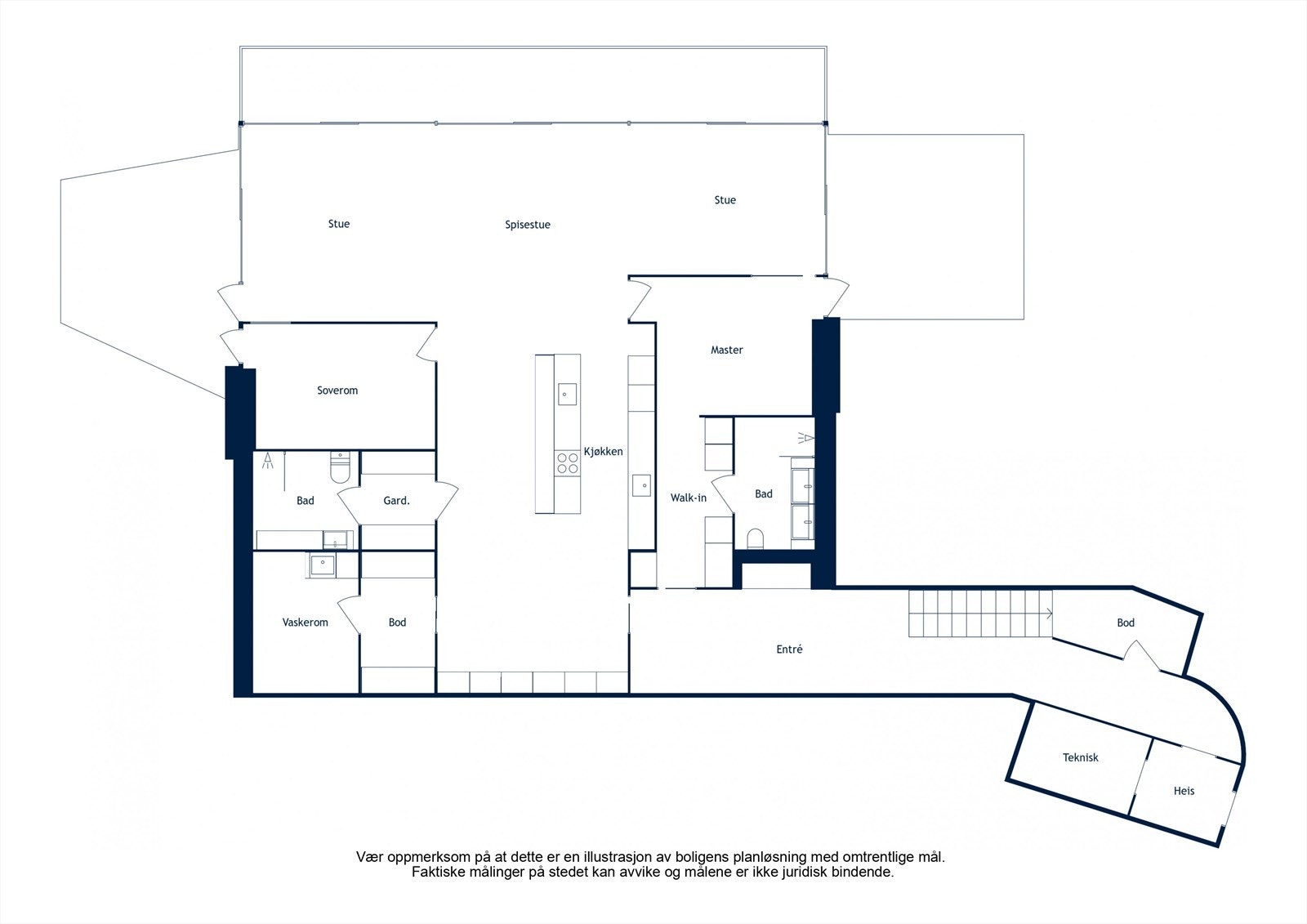
Unik, eksklusiv bolig tegnet av anerkjente R21 Arkitekter, bygget i 2021.
Fantastisk utsikt, både tett på fjorden, men også langstrakt med sikt helt til Holmenkollen. Utsikten oppleves både avslappende og spektakulær på samme tid. Upåklagelige solforhold.
Meget romslig oppholdsrom med flere ulike soner som bl.a. bibliotek m/peis, spisestue og tv-stue. Utgang fra stuen til uteplasser på til sammen 61 kvm. Skyvedører i glass som kan åpnes 9 meter. Snekkerbygd kjøkken, innredninger, hyller og dører fra Hamran. Godt med oppbevaringsplass.
Boligen, uteplassene og området oppleves svært privat med lukket port og innkjøring via tunnel. Det er gjesteparkering på området.
- Vannbåren gulvvarme
- Dobbelgarasje med elbillader og oppbevaring
- Direkte heisadkomst inn til leil.
Fantastisk utsikt, både tett på fjorden, men også langstrakt med sikt helt til Holmenkollen. Utsikten oppleves både avslappende og spektakulær på samme tid. Upåklagelige solforhold.
Meget romslig oppholdsrom med flere ulike soner som bl.a. bibliotek m/peis, spisestue og tv-stue. Utgang fra stuen til uteplasser på til sammen 61 kvm. Skyvedører i glass som kan åpnes 9 meter. Snekkerbygd kjøkken, innredninger, hyller og dører fra Hamran. Godt med oppbevaringsplass.
Boligen, uteplassene og området oppleves svært privat med lukket port og innkjøring via tunnel. Det er gjesteparkering på området.
- Vannbåren gulvvarme
- Dobbelgarasje med elbillader og oppbevaring
- Direkte heisadkomst inn til leil.
NB: Knappen for å vise hele beskrivelsen har kun en visuell effekt.
NB: Knappen for å vise hele beskrivelsen har kun en visuell effekt.
Salgsoppgaven beskriver vesentlig og lovpålagt informasjon om eiendommen
Se komplett salgsoppgaveNyttige lenker
Nærområdet
Sem & Johnsen
Boliger utenom det vanlige
Annonseinformasjon
| FINN-kode | 336993738 |
|---|---|
| Sist endret | 15. mai 2024 12:32 |
| Referanse | 20-23-1612 |
Annonsene kan være mangelfulle i forhold til lovpålagt opplysningsplikt. Før bindende avtale inngås oppfordres interessenter til å innhente komplett informasjon fra meglerforetaket, selger eller utleier.





































