Bildegalleri

Lekkert kjøkken levert fra "Draømmekjøkken", med integrerte hvitevarer og malt i delikat morderne farger på vegg.
Lekker funkisbolig fra 2024 med unik beliggenhet | Spektakulær utsikt og gode solforhold | Dobbelgarasje
Nøkkelinfo
- Boligtype
- Enebolig
- Eieform
- Eier (Selveier)
- Soverom
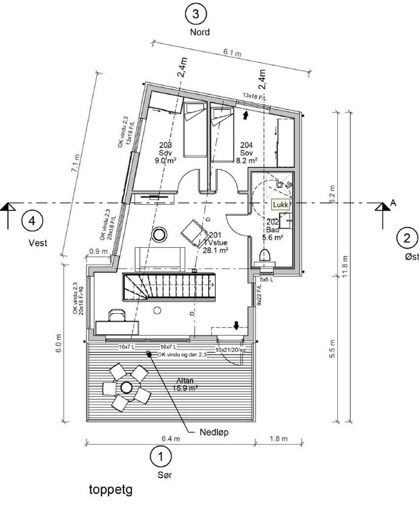
- 4
- Internt bruksareal
- 188 m² (BRA-i)
- Bruksareal
- 188 m²
- Balkong/Terrasse
- 22 m² (TBA)
- Byggeår
- 2024
- Energimerking
- B - Oransje
- Tomteareal
- 889 m² (eiet)
Fasiliteter
Om boligen
Hamarkollen 24 er en ny lekker enebolig, som har en av Fjellhamars beste beliggenheter. Fjellhamar er et fantastisk sted å bo for de som ønsker en blanding av natur og byliv, med både vakre skogområder og sentrum i utvikling. Eneboligen byr på panoramautsikt! Boligen stod ferdig i 2024 og byr på høy standard og eksklusive materialer.
Visning etter avtale. Kontakt megler Kristin Pettersen for visning - 916 03 074
- Nyoppført funkis fra 2024 med høy standard
- Spektakulær utsikt
- Solrike uteplasser på alle plan
- 4 sov og 2 bad
- Varmekabler på alle bad, i entré og stue/kjøkken sonen
- Peisovn i stue
- Kun 9 minutters gangavtand fra boligen ligger Fjellhamar togstasjon
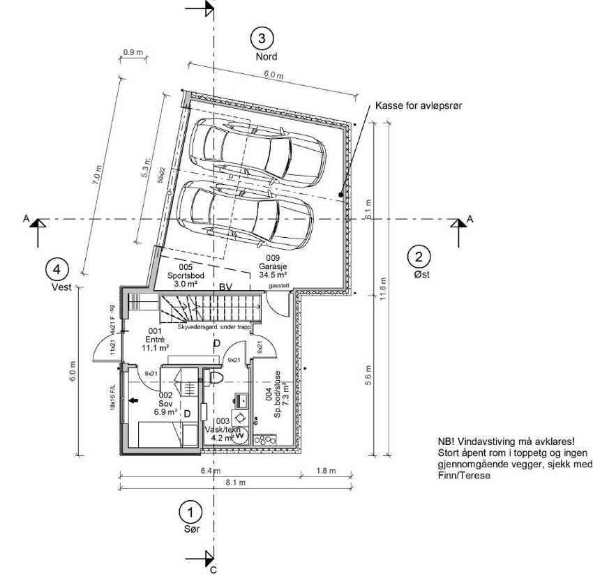
- Boligen har en garasje på hele 39 kvm, med adkomst fra U.etg og fra elektrisk garasjeport
- Flott beliggenhet med kort vei til alt
- Her vil du trives!
Salgsoppgaven beskriver vesentlig og lovpålagt informasjon om eiendommen
Se komplett salgsoppgaveNyttige lenker
Nærområdet

PrivatMegleren Lillestrøm
Kristin Pettersen
Prisstatistikk
Hamarkollen 24
på annonsen
prisantydning per kvadratmeter
Prisfordeling
Pris per m² ligger 19 223 kr over snittet for eneboliger i Lørenskog.
Grafen viser antall eneboliger solgt i Lørenskog siste året fordelt på pris per m² - totalt 168 eneboliger
Antall boliger
Kvadratmeterpris tilsvarer prisantydning pluss fellesgjeld per kvadratmeter (p-rom eller BRA-i). Prisene i grafen er avrundet til nærmeste 1000 kr.
Annonseinformasjon
| FINN-kode | 366539863 |
|---|---|
| Sist endret | 17. feb. 2025 08:39 |
| Referanse | 24240030 |
Annonsene kan være mangelfulle i forhold til lovpålagt opplysningsplikt. Før bindende avtale inngås oppfordres interessenter til å innhente komplett informasjon fra meglerforetaket, selger eller utleier.







































