Bildegalleri

Inaktiv
Madla
Unik, arkitekttegnet enebolig med panoramautsikt mot Hafrsfjord, svømmebasseng og dobbel garasje
Prisantydning17 900 000 kr
Nøkkelinfo
- Boligtype
- Enebolig
- Eieform
- Eier (Selveier)
- Soverom
- 3
- Primærrom
- 260 m²
- Bruksareal
- 277 m²
- Byggeår
- 2002
- Energimerking
- D - Oransje
- Rom
- 5
- Tomteareal
- 543 m² (eiet)
Fasiliteter
Garasje/P-plass
Hage
Peis/Ildsted
Utsikt
Bademulighet
Turterreng
Lademulighet
Visning
Alle EiendomsMegler1 sine visninger har påmelding. Påmelding gjør du enkelt ved å benytte knappen under. Skulle oppsatt tidspunkt ikke passe, kontakt megler - så finner vi en passende tid. Skulle ingen være påmeldt til visningen, vil visningen ikke bli gjennomført. Velkommen til en hyggelig visning.
VisningspåmeldingOm boligen
Særegen arkitektur med langstrakt fasade og panoramavinduer mot fjorden.
Boligen er tegnet av arkitekt Finn Pedersen og kjennetegnes av buede former, åpne løsninger og en luftig takhøyde.
Husets midtpunkt er stua med åpen sirkelformet peis, 6 meter takhøyde og vinduer fra gulv til tak.
Boligen går over 2 etasjer, med åpen stue og er bundet sammen av flott glasstrapp.
1.et: Stue, kjøkken, hagestue/treningsrom, bad, gjestetoalett og vaskerom. Teknisk rom og utvendig bod.
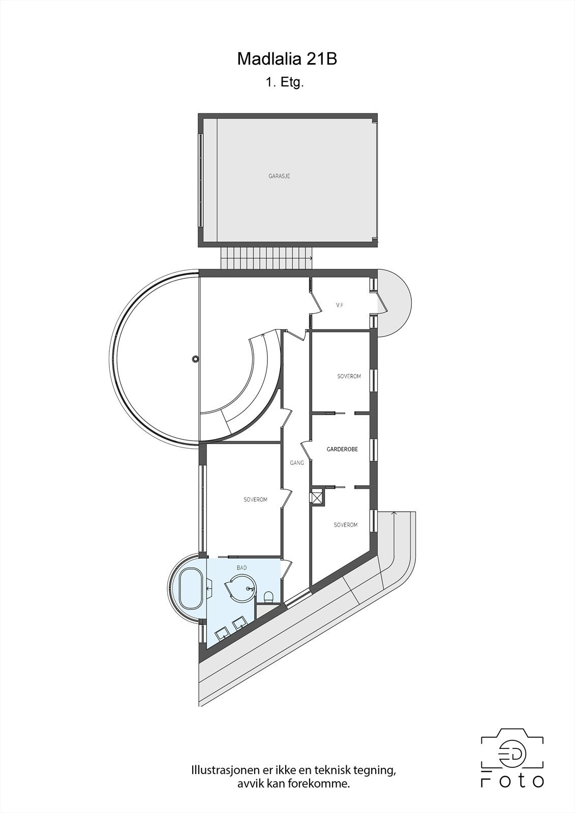
2.et: Entré, stue, 3 soverom, walk-in closet, gang og bad.
Dobbel garasje på 44 kvm.
Svømmebasseng på ca. 6 x 3 meter med glasstak og mulighet for å bade i
middelshavs temperatur året rundt, om du ikke vil spasere ned til stranden.
Boligen er tegnet av arkitekt Finn Pedersen og kjennetegnes av buede former, åpne løsninger og en luftig takhøyde.
Husets midtpunkt er stua med åpen sirkelformet peis, 6 meter takhøyde og vinduer fra gulv til tak.
Boligen går over 2 etasjer, med åpen stue og er bundet sammen av flott glasstrapp.
1.et: Stue, kjøkken, hagestue/treningsrom, bad, gjestetoalett og vaskerom. Teknisk rom og utvendig bod.
2.et: Entré, stue, 3 soverom, walk-in closet, gang og bad.
Dobbel garasje på 44 kvm.
Svømmebasseng på ca. 6 x 3 meter med glasstak og mulighet for å bade i
middelshavs temperatur året rundt, om du ikke vil spasere ned til stranden.
NB: Knappen for å vise hele beskrivelsen har kun en visuell effekt.
NB: Knappen for å vise hele beskrivelsen har kun en visuell effekt.
Salgsoppgaven beskriver vesentlig og lovpålagt informasjon om eiendommen
Se komplett salgsoppgaveNyttige lenker
Nærområdet
EiendomsMegler 1 Madla
En del av Sparebank 1 Sør-Norge
Annonseinformasjon
| FINN-kode | 297461598 |
|---|---|
| Sist endret | 31. jan. 2024 09:23 |
| Referanse | 2205230060 |
Annonsene kan være mangelfulle i forhold til lovpålagt opplysningsplikt. Før bindende avtale inngås oppfordres interessenter til å innhente komplett informasjon fra meglerforetaket, selger eller utleier.

























































