Bildegalleri

Fine detaljer i innredningen på kjøkkenet.
Solgt
HAMAR
Unikt, særpreget og autentisk atriumshus på Ajer |Skjermet og barnevennlig |
Prisantydning5 500 000 kr
Nøkkelinfo
- Boligtype
- Enebolig
- Eieform
- Eier (Selveier)
- Soverom
- 4
- Primærrom
- 143 m²
- Bruksareal
- 148 m²
- Byggeår
- 1962
- Energimerking
- G - Oransje
- Rom
- 5
- Renovert år
- 2004
- Tomteareal
- 688 m² (eiet)
Fasiliteter
Balkong/Terrasse
Barnevennlig
Garasje/P-plass
Hage
Offentlig vann/kloakk
Peis/Ildsted
Rolig
Sentralt
Om boligen
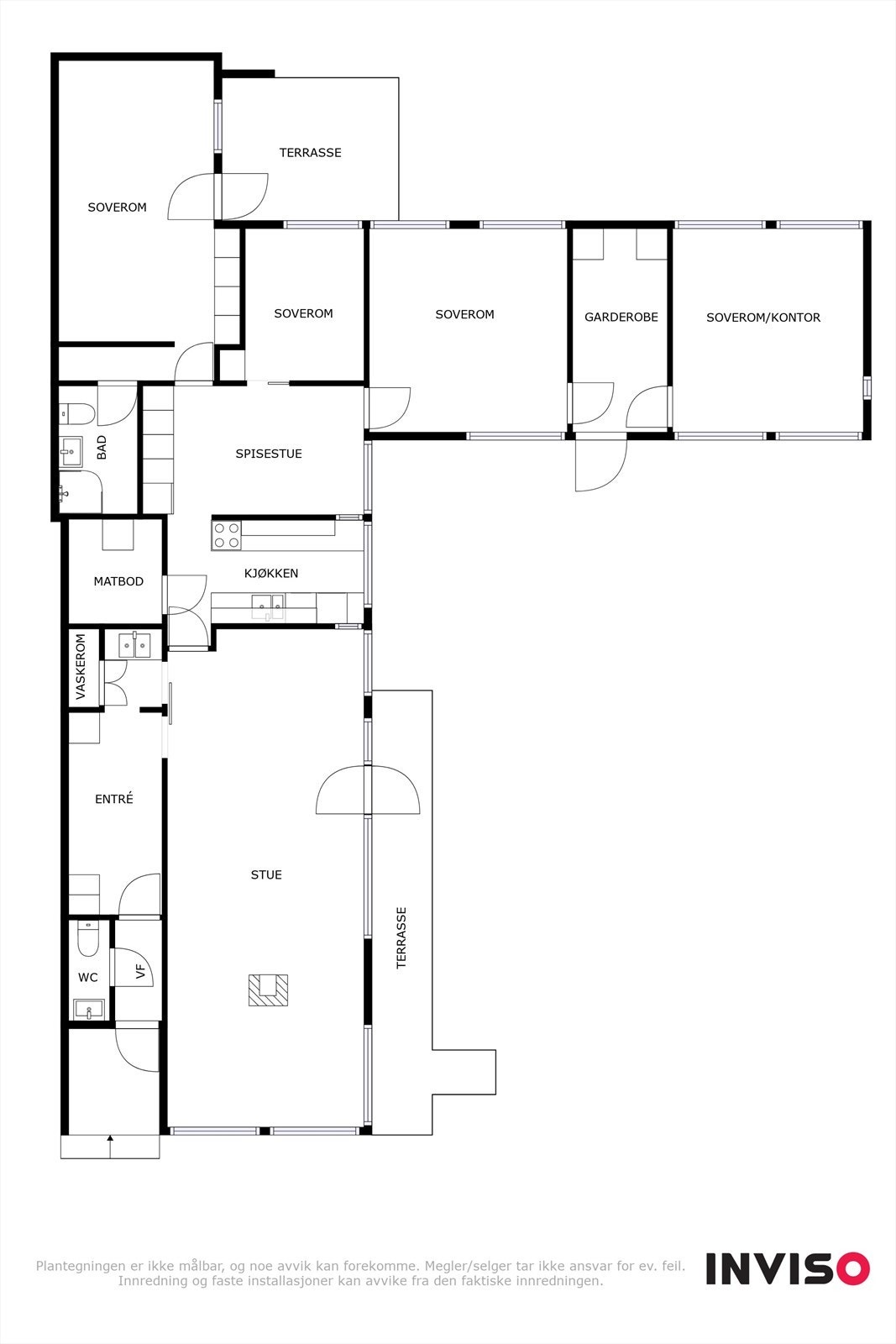
Med meget god og solrik beliggenhet i rolig og barnevennlig villaområde på Ajer, selges autentisk og attraktivt atriumshus fra 1962 med flott skjermet hage. Eiendommens originale arkitektur, stil og standard er ivaretatt med sine kreative og funksjonelle løsninger.
Innholdsrik bolig på ett plan samt delvis grovkjeller. Via et vindfang kommer du inn i entrèen og videre inn i en romslig stue hvor du har flott utsyn til det frodige og usjenerte atriet. Videre er det 4 soverom, kjøkken m/spiskammer og spiseplass, bad, toalettrom m.m. I tillegg kommer carport, uthus og uteboder som skjermer mot øvrig bebyggelse.
Boligen har meget god intern beliggenhet i grenda som bl.a. består av 7 atriumshus tegnet av Are Vesterlid/Arkitim. Kort vei til skoler, barnehager, Maxi kjøpesenter m.m.
Innholdsrik bolig på ett plan samt delvis grovkjeller. Via et vindfang kommer du inn i entrèen og videre inn i en romslig stue hvor du har flott utsyn til det frodige og usjenerte atriet. Videre er det 4 soverom, kjøkken m/spiskammer og spiseplass, bad, toalettrom m.m. I tillegg kommer carport, uthus og uteboder som skjermer mot øvrig bebyggelse.
Boligen har meget god intern beliggenhet i grenda som bl.a. består av 7 atriumshus tegnet av Are Vesterlid/Arkitim. Kort vei til skoler, barnehager, Maxi kjøpesenter m.m.
NB: Knappen for å vise hele beskrivelsen har kun en visuell effekt.
NB: Knappen for å vise hele beskrivelsen har kun en visuell effekt.
Salgsoppgaven beskriver vesentlig og lovpålagt informasjon om eiendommen
Se komplett salgsoppgaveNyttige lenker
Nærområdet
EiendomsMegler 1 Hamar
Vi loser deg trygt gjennom hele boligsalget
Prisstatistikk
Øverlitunet 7
10 587 klikk
på annonsen
38 461 kr
prisantydning per kvadratmeter
Prisfordeling
Pris per m² ligger 10 461 kr over snittet for eneboliger i Hamar.
Grafen viser antall eneboliger solgt i Hamar siste året fordelt på pris per m² - totalt 263 eneboliger
Antall boliger
Kvadratmeterpris tilsvarer prisantydning pluss fellesgjeld per kvadratmeter (p-rom eller BRA-i). Prisene i grafen er avrundet til nærmeste 1000 kr.
Annonseinformasjon
| FINN-kode | 311149023 |
|---|---|
| Sist endret | 21. aug. 2023 08:59 |
| Referanse | 2be84d9f-eee1-46df-8e2e-68527339df93 |
Annonsene kan være mangelfulle i forhold til lovpålagt opplysningsplikt. Før bindende avtale inngås oppfordres interessenter til å innhente komplett informasjon fra meglerforetaket, selger eller utleier.


































