Bildegalleri

Jeløygaten-4-21.jpg
Tre fullt utleide næringsseksjoner ved Kanalen. Selges samlet eller delt.
Nøkkelinfo
- Bruttoareal
- 322 m²
- Etasje
- 1.
- Eieform
- Eier (Selveier)
- Areal
- 322 m²
- Byggeår
- 1880
- Energimerking
- E - Rød
- Tomteareal
- 644 m² (eiet)
Type lokale
Fasiliteter
Visning
Ta kontakt for å avtale visning.| Kort om eiendommen
Lokalene er egnet for kontor, helse, forretning eller servering. Beliggende i pen bygård, med mye passerende fotgjengere og syklister.
Prisantydninger: Seksjon 8: 3,5 MNOK, Seksjon 9: 1,9 MNOK, Seksjon 10: 2,5 MNOK. Prisantydning ved samlet kjøp 7,5 MNOK
| Bebyggelse
To- og treetasjes spennende bygård i pusset tegl, med nyrenoverte næringsarealer i 1. etasje og leiligheter i 2. og 3. etasje.
| Eiendommens potensiale
Lokalene passer for eksempelvis spesialforretninger, håndverksbedrifter, advokat-, revisjons-, regnskapskontorer, arkitekter, speditører, skipsmeglere, eiendomsmegler etc. Også en liten cafè vil lokalet egne seg godt til, men det vil da kreves investeringer i kjøkken.
| Innhold
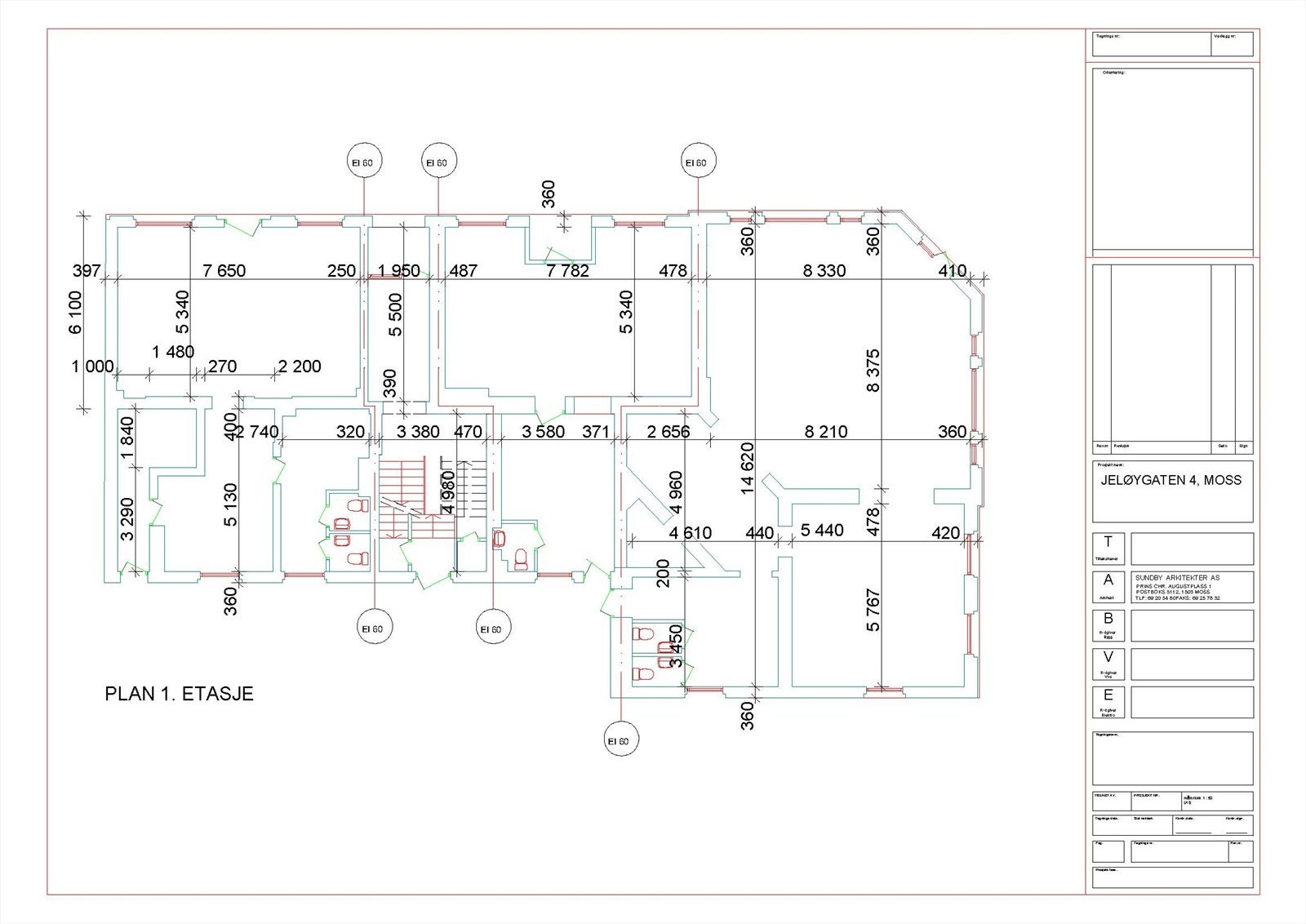
Pent oppussede butikklokaler/kontorer/restaurantlokaler med tilhørende sosiale rom. Hjørnelokale på ca. 157 og et midtlokale på 69 kvm og et lokale på 96 kvm.
Hver av seksjonene har også tilhørende lagerboder i kjeller.
| Beliggenhet
Eiendommen ligger i Jeløgata 4, rett ved havn, Kanalen og Moss Jernbanestasjon i Moss sentrum syd. Kort avstand til kjøpesentra, kulturtilbud og til store nye boligprosjekter. En rekke eiendommer i området er under utvikling/renovering. Ligger nydelig til på hjørnet mot Kanalen, Fiskebasaren og Tollboden. Eiendommens fasade har også flott eksponering mot Rv 19 og Kanalbroen, som daglig har all trafikk til og fra Bastøfergen og Jeløy. Fotgjengere og syklister på vei fra Jeløy til sentrum eller til pendlertog, passerer rett forbi eiendommen.
| Parkering
Avgiftsparkering i gaten foran eiendommen, samt i bakgården.
| Regulering
KP_3002Kommuneplanens arealdel 2021-2032Kommuneplanens arealdel
Endelig vedtatt arealplan 24.03.2021
363Sentrumsplan MossKommunedelplan
Endelig vedtatt arealplan 15.06.2015
261SundbryggeneEldre reguleringsplan (PBL 1985)
Endelig vedtatt arealplan 18.06.1998
473Fv. 317 Helgerødgata - KanalbruaDetaljregulering
Planforslag
463Kommunedelplan for sentrumKommunedelplan
Planforslag Sist behandlet 29.01.2025
Kontakt megler for ytterligere detaljopplysninger.
| Standard
Eiendommen er i løpet av den senere tid blitt totalrenovert både inn- og utvendig, og fremstår p.t. som en sjelden vakker bygård, tilbakeført i original stil med solide materialer og eksklusive fargevalg.
| Beskrivelse av tomt
Ideell andel. Lokalene ligger i blindvei med lite biltrafikk. Bredt fortau foran eiendommen som eventuelt kan muliggjøre eksempelvis gatesalg og/eller uteservering. Leietaker må imidlertid søke kommunen om tillatelse til dette.
| Oppvarming
All oppvarming er elektrisk.
| Ventilasjon
Det er installert balansert ventilasjon med varme/kjøling i næringsarealene.
| Budgivning
Budgiver oppfordres til å benytte vedlagte budskjema. Budgiver er innforstått med at Selger når som helst kan avslå eller akseptere et hvilket som helst bud uten nærmere begrunnelse. Likeledes er bud bindende når det er kommet til Selgers kunnskap. Handelen er juridisk bindende for begge parter dersom budet aksepteres innen akseptfristen. Meglers kontraktsmal vil ligge til grunn for avtalen.
| Offentlig kommunikasjon
Lokalene ligger kun 200 m fra byen jernbanestasjon, 500 m fra fergeanløp Moss-Horten, og med hyppige bussavganger i området.
| Vedlegg til Salgsoppgaven
Leiekontrakter
Vedtekter for sameiet
Årsregnskap for sameiet
Reguleringsplan
Matrikkelbrev
Kommunale opplysninger
Grunnboksutskrift
Servitutter
Plantegninger
| Lovanvendelse
Oppdraget
Meglers oppdrag reguleres i henhold til Lov om eiendomsmegling av 29.06.2007 nr. 73. Fravikeligheten som framgår av lovens § 1-3 og forskriftens § 1-2 er anvendt for dette oppdraget.
Ved salg vil vår standard kjøpekontrakt bli benyttet. Lov om avhending av fast eiendom vil bare i begrenset utstrekning kunne påberopes av Kjøper. Kontrakten kan gjennomgås etter nærmere avtale med megler. Dersom Kjøper ønsker å reservere seg mot noen av bestemmelsene i kjøpekontrakten må dette uttrykkelig fremkomme av budet.
Eiendommen
Eiendommen og dens tilbehør overtas "som den/det er", jfr. avhendingsloven § 3-9.
Kjøper fraskriver seg, så langt gjeldende rett tillater det, enhver rett til å gjøre krav gjeldende mot selger som følge av at salgsobjektet ikke er som det skal være, i medhold av avhendingsloven § 3-7, 3-8 og 3-9, andre regler om ansvar for uriktig og manglende opplysninger og ethvert annet lovfestet eller ulovfestet grunnlag, herunder regler om ansvar for uriktige og manglende opplysninger etter avtaleloven.
Avhendingsloven § 4-19 (2) fravikes også, slik at den endelige reklamasjonsfristen settes til 18 måneder etter overtakelse.
Selger kan ikke gjøres erstatningsansvarlig for indirekte tap, jf. prinsippene i avhendingsloven § 7-1 (2). Selgers samlede ansvar til å betale erstatning og/eller prisavslag ved mangler er begrenset oppad til et beløp som utgjør 10 % av kjøpesummen. Dog slik at kjøper ikke kan fremme krav dersom det samlede kravet er mindre enn 3 % av kjøpesummen. I vurderingen av om det samlede krav overstiger dette minstebeløpet, skal det ses bort fra enkeltkrav under 1 % av kjøpesummen.
Det forutsettes at interessenter gjennomgår alle opplysninger i prospektet grundig, foretar egne undersøkelser herunder besiktigelse av Eiendommen og-, dersom interessenten ikke anser seg selv som tilstrekkelig bygningskyndig, undersøker eiendommen nøye sammen med egen bygningskyndig representant. Kjøper kan ikke fremme noen form for krav overfor Selger tilknyttet forhold Kjøper ble kjent med eller burde blitt kjent med i forbindelse med sin gjennomgåelse av Eiendommen
Alle opplysninger i denne salgsoppgaven med vedlegg er tilrettelagt av megleren etter beste skjønn, men megleren tar ingen ansvar for at informasjonen er riktig eller fullstendig. Kjøper må på egen hånd forsikre seg om at opplysningene er riktige og fullstendige. Megleren fraskriver seg ethvert ansvar for tap som følge av opplysninger som er misvisende, feilaktig eller ufullstendig, samt tap som på annen måte måtte oppstå som følge av kjøpet.
Selger er ikke kjent med ufullstendigheter eller feil i rapporter e.l. som er utarbeidet av tredjemann.
Selger gir ingen garantier i forhold til praktiske eller økonomiske konsekvenser for Kjøper opp mot forurensing i grunn, forhold av arkeologisk interesse eller grunnforholdene på eiendommen i sin alminnelighet.
Det gjøres oppmerksom på regler om avskrivning av faste tekniske installasjoner i avskrivbare bygninger. Partene har selv ansvaret for å sette seg inn i regelverket og konsekvensene av dette. Megler er uten ansvar for konsekvenser reglene påfører partene.
Pro & contra:
Partene må selv foreta avregning av kommunale avgifter, felleskostnader samt eventuelle feste-/leieinntekter og lignende i forbindelse med oppgjøret. Megler foretar ingen pro & contra pr. overtagelsesdato.
Bud og budskjema
Budgiver oppfordres til å benytte vedlagte budskjema.
Budgiver er innforstått med at Selger når som helst kan avslå eller akseptere et hvilket som helst bud uten nærmere begrunnelse. Likeledes er bud bindende når det er kommet til Selgers kunnskap. Handelen er juridisk bindende for begge parter dersom budet aksepteres innen akseptfristen. Meglers kontraktsmal vil ligge til grunn for avtalen.
Salgsbetingelsene for øvrig
Megler er forsikret via Norges Eiendomsmeglerforbunds avtale med tillegg hos Tryg Forsikring.
Formuesansvarsforsikringen utgjør til sammen kr 65 millioner pr formidling pr skadetilfelle. Utvidet forsikringssum dekkes av kjøper.
Dokumentavgift og tinglysningsgebyrer
Ved kjøp av eiendommen må kjøper i tillegg betale tinglysingsgebyr og dokumentavgift. Dette utgjør et tillegg på ca 2,5% av kjøpesummen.
Hvitvaskingsregelverk
I henhold til Lov av 6. mars 2009 nr. 11 om tiltak mot hvitvasking og terrorfinansiering (Hvitvaskingsloven) er megler pliktig å gjennomføre kundetiltak av både oppdragsgiver og kjøper.
Dette innebærer blant annet plikt for meglerforetaket til å bekrefte identiteten til kjøper på grunnlag av gyldig legitimasjon. Samt plikt til å foreta kontroll av eventuelle reelle rettighetshavere. Der kjøper opptrer i henhold til fullmakt må også fullmaktsgivers identitet bekreftes på grunnlag av gyldig legitimasjon. Kundetiltak av kjøper, skal senest skje på kontraktsmøtet.
Dersom budgiver opptrer i henhold til fullmakt, må fullmakten fremlegges samtidig som bud inngis. Dersom kjøper er en juridisk person, plikter kjøper å fylle ut og returnere egne kundekontrollskjemaer før kontraktsmøtet. Firmaattest eller fullmakt må fremlegges samtidig som det inngis bud.
Dersom kundetiltak ikke kan gjennomføres kan ikke meglerforetaket bistå med gjennomføring av handelen, herunder ikke foreta oppgjør. Meglerforetaket er videre forpliktet til å rapportere mistenkelige transaksjoner til Økokrim. Med mistenkelig transaksjon menes transaksjon som mistenkes å involvere utbytte fra straffbar handling eller som skjer som ledd i terrorfinansiering. Manglende mulighet for kundetiltak kan også være et forhold som gjør transaksjonen mistenkelig. Det kan ikke gjøres ansvar gjeldende motmeglerforetaket som følge av at meglerforetaket overholder sine plikter etter Hvitvaskingsloven.
| Hvitvaskingsloven
Eiendomsmeglere er underlagt lov om hvitvasking og er forpliktet til å rapportere til Økokrim om mistenkelige transaksjoner. Lov om hvitvasking innehar også strenge regler om kontroll av legitimasjon fra alle parter i handelen, herunder, selger, kjøper og fullmektiger for disse.
Nærområdet
Metra Næringsmegling AS
Annonseinformasjon
| FINN-kode | 449367723 |
|---|---|
| Sist endret | 03. feb. 2026 13:37 |
| Referanse | MTRA1.2542 |
Annonsene kan være mangelfulle i forhold til lovpålagt opplysningsplikt. Før bindende avtale inngås oppfordres interessenter til å innhente komplett informasjon fra meglerforetaket, selger eller utleier.



























