Bildegalleri

Velkommen til Kalfarveien 102 og Nubbebakken 1.
Næringseiendom bestående av institusjonsbygg + stor villa | Betydelig utviklingspotensiale | Attraktiv beliggenhet!
Nøkkelinfo
- Eieform
- Eier (Selveier)
- Areal
- 1 424 m²
- Byggeår
- 1975
- Tomteareal
- 1 605 m² (eiet)
Type lokale
Fasiliteter
BESKRIVELSE
INNHOLDSBESKRIVELSE
KALFARVEIEN 102 (919 m² BRA):
Innhold | Underetasje:
Entre, vestibyle/trapperom, sluse, kopirom, arkivrom, arkivrom 2, tilfluktsrom, gang, resepsjon, kontor, kontor 2, kontor 3, kontor 4, gang 2, gang 3, garderobe, vaktmesterkontor/bod, sykepleie/behandlingsrom, lab, bibliotek, wc-rom, wc-rom 2, lager, lager 2, vaskerom, bereder rom, el-tavlerom.
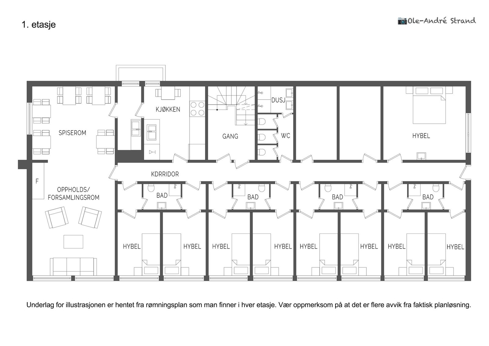
Innhold | 1. etasje:
Korridor, trapperom, dusjrom, wc-rom, wc-rom 2, lager, trimrom, felles kjøkken, felles stue/oppholdsrom, hybel 1, hybel 2, hybel 3, hybel 4, hybel 5, hybel 6, hybel 7, hybel 8, hybel 9, bad 1, bad 2, bad 3, bad 4.
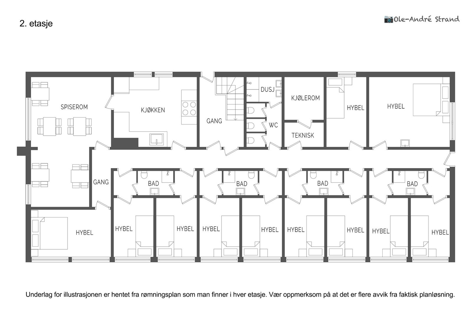
Innhold | 2. etasje:
Korridor, trapperom, dusjrom, wc-rom, wc-rom 2, lager, felles kjøkken, felles stue/oppholdsrom, hybel 1, hybel 2, hybel 3, hybel 4, hybel 5, hybel 6, hybel 7, hybel 8, hybel 9, hybel 10, hybel 11, bad 1, bad 2, bad 3, bad 4.
Takterrasse:
På toppen av taket til Kalfarveien 102 er det en romslig takterrasse, som fordeler seg over bygget.
NUBBEBAKKEN 1 (505 m² BRA):
Innhold | Underetasje:
Verksted (15,1 m²), vaskerom (19,7 m²), lager (18,2 m²), teknisk kott (2,6 m²), lager (15,6 m²), bod (ikke målbar pga. takhøyde).
Innhold | 1. etasje:
Bislag (5,1 m²), entre/trapperom (6,8 m²), gang (5,2 m²), mellomgang (12,9 m²), gang 2 (9,7 m²), hybel 1 (19,2 m²), bad 1 (3 m²), hybel 2 (18,7 m²), bad 2 (2,6 m²), hybel 3 (16,2 m²), bad 3 (3 m²), trapperom til u-etg (1,8 m²), trapperom til 2. etg (2,5 m²), hybel 4 (15,3 m²), bad 4 (2,5 m²), hybel 5 (19,4 m²), bad 5 (3,1 m²), hybel 6 (12,4 m²), bad 6 (2,1 m²), hybel 7 (12 m²), bad 7 (2,4 m²).
Innhold | 2. etasje:
Gang/trapperom (7,6 m²), hall/korridor (10,8 m²), trapperom til 1 etg (2,1 m²), trapperom til loftsetg (1,2 m²), felles stue (25,3 m²), hybel 8 (14,2 m²), bad 8 (2,5 m²), hybel 9 (14,3 m²), bad 9 (2,5 m²), hybel 10 (17,4 m²), bad 10 (2,5 m²), entré/gang leilighet (5 m²), stue leilighet (22,2 m²), kjøkken leilighet 8,2 m²), bad leilighet 3,9 m²), soverom leilighet (9,1 m²).
Innhold | Loftsetasje:
Loftsrom (14,7 m²), loftsrom 2 (19,6 m²), loftsrom 3 (9,3 m²), uinnredet loft (27,7 m²), kott (ikke målbart pga. takhøyde).
Parkering:
På fremsiden av Kalfarveien 102 er det en asfaltert parkeringsplass.
AREALER
Totalt bruksareal: 1.424 m² (BRA)
Nubbebakken 1 = 505 m² (BRA)
Kalfarveien 102 = 919 m2 (BRA)
Måleverdige arealer:
Et areal er måleverdig når vilkår for fri høyde (høyde på minst 1,90 meter med en lengde og bredde på minst 0,60 x 0,60 meter), tilgjengelighet og permanent gangbart gulv oppfylles. I etasjer med skråtak gjelder egne bestemmelser. Ved nødvendige åpninger i etasjeskiller for trapp, måles kun det arealet som opptas av trappen. I etasjen under måles gulvet uten hensyn til trappen. Sjakter, heiser, skorsteiner, innvendige søyler og lignende er unntak og skal måles selv om de ikke oppfyller disse vilkårene og uansett om de har åpning i gulv, tilgjengelighet eller ikke.
Oppgitte arealer er hentet fra vedlagte arealmålingsrapport. Arealene er beregnet og angitt med utgangspunkt i NS 3940:23. Eventuelle betegnelser på rom er angitt ut fra den faktiske bruken, uavhengig av hva som er godkjent hos bygningsmyndighetene.
STANDARD
Sjelden utviklingsmulighet på Kalfaret - to eiendommer med stort potensial og attraktiv beliggenhet!
Salgsoppgaven gjelder presentasjon av eiendommene Kalfarveien 102 og Nubbebakken 1. Beliggende i ett av Bergens mest etterspurte områder. Her får du muligheten til å sikre deg en næringseiendom med både historisk karakter og et betydelig utviklingspotensiale.
Eiendommen består av to bygg - Kalfarveien 102 og Nubbebakken 1 - som samlet representerer en attraktiv næringseiendom med et bredt bruksområde. Kalfarveien 102 er innredet med kontorer, diverse oppholdsrom med kjøkken samt romløsninger som også inkluderer flere behandlingsrom / hybler med felles bad. Dette gir eiendommen en fleksibel struktur som åpner for flere ulike driftsformer og tilpasninger. Nubbebakken 1 er en eldre og prektig villa med flere hybler bestående av oppholdsrom med hybelkjøkken og bad, foruten felles stue/oppholdsrom. Samlet bruksareal for begge eiendommene utgjør 1.424 m² (BRA).
I henhold til kommunens matrikkelrapport er byggene betegnet som:
- Nubbebakken 1: Bo- og behandlingssenter
- Kalfarveien 102: Rehabiliteringsinstitusjon/kurbad
For ytterligere informasjon om reguleringsmessige forhold vises til punkt "Regulering" i salgsoppgaven.
Kalfarveien 102 fremstår som et institusjonsbygg med funksjonelle løsninger, mens Nubbebakken 1 er en innholdsrik villa med tilsvarende rominndeling. Byggenes plassering gir nærhet til både Bergen sentrum og flotte rekreasjonsområder, og legger til rette for enkel tilgjengelighet - både for ansatte, kunder og eventuelle leietakere. Byggene har i en årrekke vært benyttet til helserelatert virksomhet innen rusomsorg.
Det må påregnes omfattende oppgraderinger av begge byggene for å bringe dem opp til dagens standard. Nettopp dette gir nye eiere mulighet til å skreddersy eiendommen etter egne behov og ønsker - enten det er som kontorfellesskap, helserelatert virksomhet, behandlingstilbud eller korttidsutleie via plattformer som Airbnb eller lignende. Kjøper bærer all risiko forbundet med søknad om bruksendring eller andre byggerelaterte søknader.
Et mulighetsstudie utarbeidet av En til En Arkitekter foreligger og viser spennende perspektiver for videre utvikling av eiendommen til leiligheter. Dette kan være av stor interesse for både investorer, utviklere og aktører som søker kombinasjonen av sentral beliggenhet, historisk karakter og kommersielt potensiale. Mulighetsstudiet må betraktes som en inspirasjon til utvikling av eiendommen. Det har ikke vært søkt om endring av bygget som tilsvarer løsning i mulighetsstudiet.
Byggene har stått tom og ubrukt de siste tre årene. I denne forbindelse har dagens eier inngått avtale med selskapet Newsec, slik at representanter fra Newsec har hatt løpende tilsyn med byggene i denne perioden. Det har da bl.a. vært tilpasset justering av varme i aktuelle rom.
Dette er en eiendom som sjelden kommer for salg i dette området, og representerer et attraktivt prosjekt for dem som tenker langsiktig og ser mulighetene i både eksisterende struktur og fremtidig utvikling.
Ta kontakt for ytterligere informasjon, visning eller innsyn i mulighetsstudiet utarbeidet av En til En Arkitekter AS.
Megler:
Dag Jonny Johannessen
ZMegleren AS
970 51 555
djj@zmegleren.no
Megler:
Erik Alræk
ZMegleren AS
40 40 16 66
ea@zmegleren.no
BYGGEMÅTE / AREALMÅLINGSRAPPORT / TILSTANDSRAPPORT
Boligens byggemåte er beskrevet på bakgrunn av vedlagte arealmålingsrapport
Nubbebakken 1 - bo- og behandlingssenter (villa):
Byggeår: 1870
Sum bruksareal (BRA) = 505 m²
Enkel beskrivelse av bygningen:
Grunnmur og fundamenter i murkonstruksjoner. Gulv mot grunn i betong. Oppført i trekonstruksjoner med liggende kledning. Saltak. Taksperrer er tekket med sutak, lekter og skifer/tegltakstein. Renner og nedløp i plast. Sørvendt altan på 10,8 m² med utgang fra hybel 10.
Oppmåling:
BRA-i og BRA-e er oppmålt på stedet med laser.
Innvendige vegger, kanaler etc. utgjør ca 2 m² av bruksarealet i u-etg.
Innvendige vegger, kanaler etc. utgjør ca 15,1 m² av bruksarealet i 1-etg.
Innvendige vegger, kanaler etc. utgjør ca 13,1 m² av bruksarealet i 2-etg.
Innvendige vegger, kanaler etc. utgjør ca 1 m² av bruksarealet i loft-etg.
Oppgitte romarealer er inkludert areal som opptas av innebygd skap/garderobeskap.
Takhøyde:
Takhøyde i boliger varierer på grunn av tekniske krav i byggeforskrifter. Nedsenket tak skjuler ventilasjon og el-installasjoner, badegulv er ofte høyere for sluk og membran, og nivåforskjeller kan skyldes konstruksjon eller estetikk. Takhøyden i u-etg varierer fra 1,89 m - 2,15. Takhøyde i 1-etg er 2,98 m på høyeste punkt, men takhøyden er hovedsakelig 2,49 m - 2,55 unntatt i nedsenket del. Takhøyde i felles stue i 2-etg er 3,32. Takhøyden i deler av 2-etg er 2,88 m, unntatt i nedsenket del.
Kalfarveien 102 - rehabiliteringsinstitusjon:
Byggeår: 1975
Sum bruksareal (BRA) = 919 m²
Enkel beskrivelse av bygningen:
Grunnmur og fundamenter i betong. Gulv mot grunn i betong. Bygningen er oppført i plasstøpte konstruksjoner som bærevegger og etasjeskillere. Yttervegger er oppført i murkonstrukssjoner, betongelementer og bindingsverk i tre med liggende trekledning. Flat takkonstruksjon tekket med takbelegg. Takterrasse på 308 m² med adkomst fra bakre del av eiendommen.
Oppmåling:
BRA-i og BRA-e er oppmålt på stedet med laser. På denne bygningen er det ikke oppmålt hver enkelt rom og målt takhøyde pga. bygningens størrelse.
Tilfluktsrom var utilgjengelig under besiktigelsen. Enkelt bislag på 3,2 m² er ikke medtatt under arealer.
For ytterligere informasjon henvises til vedlagte arealmålingsrapport avholdt av Takstoppdrag AS v/bygningssakkyndig Trond Bertelsen (rapportdato: 12.11.2025) og innhold i byggesaksmappen fra Bergen kommune. Det vises også til vedlagte tilstandsrapport utført av bygningssakkyndig Johan Rye-Holmbo (datert 28.01.2026).
Oppgitte arealer er hentet fra vedlagte arealmålingsrapport. Ansvarlig megler har ikke foretatt kontrollmåling av boligen.
Ulovligheter / manglende godkjenning:
Det er den faktiske bruken av rommene på salgstidspunktet, som har avgjort om rommene er definert som rom til varig opphold eller ikke. Dette betyr at rommet kan være i strid med byggeteknisk forskrift og mangle kommunal godkjenning for den aktuelle bruken, selv om dette arealet er angitt som BRA. Kjøper påtar seg all risiko både for fremtidig fortsatt bruk og eventuelle pålegg, herunder risikoen for om bruken lar seg godkjenne og alle kostnader forbundet med dette.
Når du kjøper et brukt bygg:
Når du kjøper et brukt bygg, er det viktig å være oppmerksom på at dette ikke kan sammenlignes med å kjøpe nytt. Måten byggene ble oppført på kan være annerledes enn i dag. Bygninger svekkes over tid, og utsettes for slitasje blant annet på grunn av bruk og vær og vind. Mange bygg fornyes helt eller delvis, noen i flere omganger, eller det oppføres tilbygg. Særlig for bygg som er pusset opp eller endret, er det viktig å merke seg at fornyelse av overflater ikke nødvendigvis betyr at bygningsdeler er forbedret.
Det oppfordres særskilt at man sjekker byggene grundig og nøye med fagkyndig person, før bud blir inngitt. Til orientering har ikke byggene vært i aktiv bruk siste 3 - tre - år.
ENERGIMERKING / STRØMAVTALE
Selger er ansvarlig for at byggene har energiattest. Det foreligger ikke energiattest for byggene. Laveste energikarakter legges derved til grunn: Rød G
LØSØRE OG TILBEHØR
Interessenter oppfordres å lese vedlagte liste over løsøre og tilbehør som skal medfølge ved handelen. I de tilfeller det medfølger hvitevarer i handelen, overleveres disse uten noen form for garanti utover leverandørgaranti.
Det gjøres oppmerksom på at løsøre som har en klar karakter av å være en del av selgers møbler (selv om det er skrudd opp på veggen), normalt sett ikke vil medfølge ved overtakelse.
Med mindre annet er uttrykkelig avtalt gjelder NEF´s normgivende liste over løsøre og tilbehør.
TOMTEN
Selveiende og opparbeidet tomt med et samlet areal på 1.605 m².
PARKERING
- Biloppstillingsplass på egen tomt
På fremsiden av Kalfarveien 102 er det en asfaltert parkeringsplass.
BELIGGENHET
Næringsbyggene i Kalfarveien 102 / Nubbebakken 1 har en særdeles attraktiv beliggenhet i det etablerte og velrenommerte området Kalfaret, som ligger i den øvre delen av Bergen sentrum. Eiendommen kombinerer det beste av to verdener - med sentral nærhet til bykjernen, samtidig som den er skjermet fra byens mest trafikkerte og støybelastede områder.
Med gåavstand til Bergen sentrum og kollektivknutepunkt som busstasjon, bybanestopp og Bergen togstasjon, er dette en beliggenhet som er både effektiv og enkel i hverdagen. For ansatte, kunder eller samarbeidspartnere betyr dette god tilgjengelighet, uavhengig av transportmiddel.
Her befinner man seg i kort avstand til byens pulserende næringsliv, serveringstilbud og servicefasiliteter. I tillegg finnes det dagligvarebutikker, kafeer og andre servicetilbud i nærområdet - noe som gjør området svært brukervennlig.
Et stort pluss ved denne beliggenheten er nærheten til Store Lungegårdsvannet, som ligger like nedenfor eiendommen. Her finner du flotte turstier, joggeløyper og grønne områder som er lett tilgjengelige gjennom hele året. For ansatte gir dette gode muligheter til å kombinere jobb og aktivitet - enten det gjelder en frisk morgentur, en pause i løpet av arbeidsdagen eller en ettermiddagsøkt.
Det er også gangavstand til treningssentre og andre helserelaterte tilbud i området, noe som gjør det enklere å legge til rette for en aktiv og balansert hverdag.
Kalfaret har tradisjonelt vært et av Bergens mest prestisjefylte boligområder, og i senere år har flere næringsaktører fått øynene opp for de representative og rolige omgivelsene dette området tilbyr. I nærområdet finnes både kontorvirksomheter, helsetjenester, utdanningsinstitusjoner og kulturarenaer - noe som bidrar til en profesjonell, men avslappet atmosfære.
Samtidig har området en sterk historisk identitet, med bygårder og villaer som gir en spesiell karakter og arkitektonisk ramme rundt næringsaktiviteten. Det gir en ekstra dimensjon for virksomheter som ønsker å fremstå med tydelig profil og kvalitet i både uttrykk og beliggenhet.
Kalfarveien 102 / Nubbebakken 1 er en beliggenhet som kombinerer nærhet, tilgjengelighet og trivsel på en måte som sjelden oppnås i sentrumsnære områder. Med kort vei til Bergen sentrum, svært gode transportmuligheter, nærhet til daglige tjenester og flotte rekreasjonsområder - er dette et område som egner seg utmerket for moderne virksomheter med fokus på både effektivitet og trivsel.
ADKOMST
På finn.no kan du se en konkret kartskisse. Ved å trykke på kartet får du tilgang til en spesifisert reiserute fra din startposisjon frem til boligen.
ØKONOMI
KOMMUNALE AVGIFTER
Kommunale avgifter utgjør kr 72.108,- pr. år. I dette inngår gebyr for vann, avløp, renovasjon og feiing/tilsyn. Det kan forekomme variasjoner i avgiftene som følge av forbruk og eventuelle endringer i gebyrer og avgifter.
Det gjøres oppmerksom på at nåværende eier har fått fritak mht. eiendomsskatt på grunn av selskapets formål. Kjøper må derved påregne at det tilkommer eiendomsskatt etter kommunens regulativ.
ANDRE LØPENDE KOSTNADER
Ny eier må belage seg på blant annet følgende årlige kostnader:
- Bygningsforsikring
- Strømforbruk
- Kostnad til bredbånd/internett
- Løpende vedlikeholdskostnader
- Andre uforutsette kostnader
FORSIKRING
Eiendommen er forsikret via Blå Kors Eiendom AS. Ny eier må tegne egen bygningsforsikring inkludert løsøre/innboforsikring.
FORMUESVERDI
Ifølge Skatteetaten foreligger det ikke opplysninger om eiendommens formuesverdi i Skatteetatens register.
TOTALPRIS INKL. OMKOSTNINGER
I tillegg til kjøpesummen må kjøper betale:
Dokumentavgift kr 550 000,00,-
Tgl.gebyr pantedokument kr 545,00,-
Tgl.gebyr skjøte kr 545,00,-
Pantattest kr 260,00,-
Dersom eiendommen selges til prisantydning og det kun tinglyses ett pantedokument, er totalprisen inkl. offentlige gebyrer, avgifter og øvrige kostnader kr 22 551 350,-. Det tas forbehold om endringer i offentlige gebyr.
Kjøper har ikke anledning til å tegne boligkjøperforsikring i henhold til gjeldende vilkår.
BETALINGSBETINGELSER
Kjøpesummen inkludert omkostninger, samt pantedokument tilknyttet eventuelt lån, skal være disponibelt hos megler senest 2 virkedager før overtagelsen.
Kjøpesum, omkostninger og øvrige innbetalinger skal utelukkende innbetales fra kjøpers egen konto i norsk finansinstitusjon. Innbetalinger fra utenlandske kontoer, tredjepartskontoer eller andre konti som ikke tilhører kjøper vil ikke bli akseptert med mindre dette er skriftlig avklart med megler i forkant. Megler kan kreve dokumentasjon på kontohold og transaksjonens opprinnelse før gjennomføring av oppgjøret.
OFFENTLIGE FORHOLD
MIDLERTIDIG BRUKSTILLATELSE OG FERDIGATTEST
Bergen kommunen har utstedt følgende attester:
Kalfarveien 102:
Type: Tillatelse til tiltak
Tiltakets art: Endring av bygg - utvendig støyskjerm
Dato: 16.05.2023
Type: Tillatelse til tiltak
Tiltakets art: Stikkledning for vann
Dato: 28.06.2006
Type: Ferdigattest
Tiltakets art: Ombygging legesenter/ettervernshjem
Dato: 10.02.2004
Type: Ferdigattest
Tiltakets art: Endring boligbygg
Dato: 27.04.1998
Nubbebakken 1:
Type: Byggetillatelse
Tiltakets art: Endring bolig/hybler
Dato: 23.08.1989
Type: Attest
Tiltakets art: Hybelbygg
Dato: 18.06.1975
Type: Ferdigattest
Tiltakets art: Hobbyrom og vaskerom i kjeller
Dato: 24.08.1972
Type: Attest
Tiltakets art: Ombygging
Dato: 19.12.1966
Type: Attest
Tiltakets art: Installasjon av et elektr. bad i 1. etasje
Dato: 14.01.1937
Ferdigattest er en sluttattest fra bygningsmyndighetene om at et søknadspliktig tiltak er ferdigstilt. At ferdigattest eksisterer gir ingen garanti for at det ikke er utført arbeid på boligen som ikke er byggemeldt eller godkjent.
I henhold til Plan- og bygningsloven § 21-10 utstedes det ikke ferdigattest for tiltak det er søkt om før 1. januar 1998.
NB! Interessenter oppfordres å kontakte megler for oversendelse av komplett byggesak for begge eiendommene.
REGULERING
Ifølge Bergen kommune ligger eiendommen i et uregulert område.
I henhold til matrikkerapport mottatt av Bergen kommune er byggene på eiendommen matrikkeført som;
Bo- og behandlingssenter (Nubbebakken 1) / dato: 01.01.1870
Rehabiliteringssenter, kurbad (Kalfarveien 102) / dato: 01.01.1975
Næringsgruppe: Helse- og sosialtjenester
Matrikkelrapporten følger som vedlegg til salgsoppgaven. Det er kjøpers fulle ansvar for egen regning og risiko, dersom det skal søkes om bruksendring eller andre bygningsmessige søknader.
Kommuneplan:
I henhold til gjeldende kommuneplan er eiendommen avsatt til:
65270000 - Sentrumsformål Byfortettingssone BY2 (100,0 %)
Hensynssoner i kommuneplanen:
Kulturmiljø:
65270000 - Fløen (100,0 %)
65270000 - Historisk sentrum (100,0 %)
65270000 - Historiske veifar (3,4 %)
Faresoner:
65270000 - Luftkvalitet - gul sone (100,0 %)
65270000 - Jernbanestøy - gul sone (37,9 %)
65270000 - Vei støy - gul sone (34,4 %)
65270000 - Vei støy - Rød sone (6,4 %)
Bestemmelsesområder i kommuneplanen:
65270000 - Byggegrense, utb.volum, funksjonskrav (100,0 %)
Kommunedelplan
I henhold til kommunedelplan er eiendommen avsatt til:
- Boligområder (99,8 %)
- Veiareal (0,2%)
Planer i nærheten av eiendommen:
PlanID / Plannavn / Saksnr
64820000 - Bergenhus. Gnr 166 Bnr 952 Mfl., Bergen Godsterminal, Nygårdstangen
71740000 - Kommuneplanens arealdel Kpa 2027
16850000 - Bergenhus. Kdp Store Lungegårdsvann Søndre Del
5470002 - Bergenhus. Gamle Kalvedalsveien, Delområde B Og C
9400000 - Bergenhus. Gnr 166 Bnr 1287, 1290 Og 1302, Gamle Kalvedalsveien 42
62640000 - Bergenhus. Gnr 163 Og 166, Fløen - Ulriken, Dobbeltspor
64040000 - Bergenhus/årstad. Bybanen Fra Sentrum Til Fyllingsdalen, Delstrekning 1, Nonneseter - Kronstad
65500000 - Bergenhus. Gnr 166 Bnr 1157 Mfl., Kalfarveien
70280000 - Bergenhus. Gnr 163 Bnr 139 Mfl., Kalfarveien/Nubbebakken
5030000 - Årstad. Kalfarveien/Fløen/Årstad, Opphevelse
Godkjente tiltak i nærheten av eiendommen:
Eiendom: 163/145
Bygningstype: Ombygging Tomannsbolig, vertikaldelt
Status: Rammetillatelse
Dato: 13.05.2025
Eiendom: 166/952
Bygningstype: Tilbygg Verkstedbygning
Status: Igangsettingstillatelse
Dato: 06.12.2018
Eiendom: 166/1769
Bygningstype: - Garasjeuthus anneks til bolig
Status: Meldingssak registrer tiltak
Dato: 26.10.2009
Sefrakminne: Ja (gjelder Nubbebakken 1)
Eiendommen er registrert å kunne ha verneverdig verdi i SEFRAK-registeret (register over eldre bygninger og kulturminner). Registreringen innebærer at bygningen er vurdert som kulturhistorisk interessant, men den er ikke automatisk fredet eller vernet. Eventuelle endringer eller rivning kan likevel kreve særskilt vurdering av byantikvaren.
Andre opplysninger:
Eiendommen er berørt av Eviny Termo AS sitt konsesjonsomra?de for fjernvarmeanlegg.
Hele eller deler av eiendommen antas a? være berørt av støy fra veitrafikk, jernbanetrafikk og helikoptertrafikk over grenseverdier gitt av statlige myndigheter og i kommuneplanens bestemmelser. Antakelsen er basert pa? overordnede støyberegninger. Dette vil kunne fa? betydning for behandlingen av plan- og byggesaker som omfatter den aktuelle eiendommen, blant annet medføre utredningsplikt for tiltakshaver/forslagstiller og eventuelt krav om avbøtende tiltak.
Planinformasjon fra Bergen kommune følger som vedlegg til salgsoppgaven.
VEI, VANN OG KLOAKK
- Offentlig/kommunal vei
- Privat vannledning til offentlig nett
- Privat avløp til offentlig nett
Det er solidarisk ansvar for drift, vedlikehold og oppgradering av felles privat vann- og avløpsnett.
HEFTELSER OG RETTIGHETER
Kommunen har lovbestemt legalpant i eiendommen som sikkerhet for betaling av kommunale gebyr. Eiendommen overdras fri for pengeheftelser.
Følgende tinglyste servitutter følger eiendommen ved overskjøting til ny hjemmelshaver:
1894/900188-1/106
Tinglyst 01.12.1894
Bestemmelse om bebyggelse
Forbud mot visse former for næringsvirksomhet
1896/900239-1/106
Tinglyst 26.06.1896
Bestemmelse om vann-/kloakkledning
Rettighetshaver Kalfarveien 102
Iht. Statsarkivets utskrift står det noe om at Kalfarveien 102 har rett til å legge vann- og kloakkledning over Kalvedalsveien nr. 43? Det er meget vanskelig å tyde hva som står beskrevet. Kontakt megler for oversendelse av utskriften fra Statsarkivet.
1896/900239-2/106
Tinglyst 26.06.1896
Bestemmelse om bebyggelse
Byggeforbud på nærmere angitt avstand/område
Med flere bestemmelser
1899/903629-1/106
Tinglyst 19.06.1899
Bestemmelse iflg. skjøte
Inneholder gjensidige rettigheter og plikter for Kalfarveien 98
Iht. Statsarkivets utskrift står det noe om at Kalfarveien 98 med bestemmelser om forskjellige gjensidige rettigheter og forpliktelser iflg. skjøte. Kontakt megler for oversendelse av utskriften fra Statsarkivet.
1899/903630-1/106
Tinglyst 19.09.1899
Bestemmelser iflg. skjøte
Inneholder forskjellige rettigheter og plikter for Kalfarveien 98 og 102h
1921/911771-1/106
Tinglyst 11.03.1921
Bestemmelse om garasje/parkering
Midlertidig dispensasjon fra bygningsloven
Megler har mottatt utskrift fra Statsarkivet vedrørende ovennevnte servitutter tinglyst/notert i perioden 1894 - 1921. Det er utfordrende å finne disse servituttene i det gamle registeret og hva de konkret omhandler utover teksten som er beskrevet under enkelte erklæringer.
1970/4766-1/106
Tinglyst 03.07.1970
Erklæring/avtale
Bestemmelse om benyttelse av rom
Ovennevnte erklæring sier at innredning på loft i Nubbebakken 1 ikke skal bli brukt til oppholdsrom, soverom, arbeidsrom eller kjøkken. Kopi av erklæringen kan fås ved henvendelse til megler.
1990/7960-1/106
Tinglyst 06.03.1990
Erklæring/avtale
Gjensidig rett til å føre kloakkledning samt foreta ettersyn og reparasjon på ledninger når dette er nødvendig
Kan ikke avlyses uten samtykke fra Bergen kommune
Gjelder denne registerenheten med flere
Ovennevnte erklæring sier blant annet at Nubbebakken 1 og Kalfarveien 106 har felles kloakkledninger fra sine respektive eiendommer og fram til offentlige ledninger. Samtlige eiere gir herved hverandre gjensidig rett til å føre kloakkledninger over sine eiendommer samt foreta ettersyn og reparasjoner på ledninger når dette er nødvendig. For forvoldt skade i den anledning kan kreves erstatning etter skjønn. Vedr. tilknytning av kloakkledning fra hybler i Nubbebakken 1, har Blå Kors vedlikeholdsplikt fra tilknytningspunkt inne på Blå Kors sin eiendom og frem til offentlig kloakkledning. Kopi av erklæringen kan fås ved henvendelse til megler.
1990/7960-2/106
Tinglyst 06.03.1990
Erklæring/avtale
Vedlikeholdsplikt for Blå kors ved tilknytning av kloakkledning fra hybler på denne eiendom fram til offentlig kloakkledning
Enkelte av erklæringene er håndskrevet og svært vanskelig å tyde. Vi oppfordrer deg å kontakt megler for oversendelse av tinglyste erklæringer, slik at du selv kan gå grundig gjennom disse.
Kjøpers bank vil få prioritet etter disse. For servitutter eldre enn fradelingsdato og eventuelle arealoppføringer som kan ha betydning for denne matrikkelenhet henvises det til avgivereiendommen. Ta kontakt med megler for mer informasjon.
Tinglyste rettigheter:
Ingen rettigheter funnet.
UTLEIE
Eiendommen kan leies ut til næringsformål på bakgrunn av kommunens matrikkelrapport. Kjøper er selv ansvarlig for å sjekke at utleieformålet er godkjent av kommunen.
Hele eiendommen leveres ledig for kjøper ved overtakelse.
RADON
Det gjøres oppmerksom på at det ved utleie er krav til å gjennomføre radonmåling, og at forsvarlige nivåer skal kunne dokumenteres. Kravet gjelder alle typer utleieboliger, inkludert leiligheter og hybler i tilknytning til egen bolig, såfremt det betales husleie. Ved for høye verdier må det iverksettes tiltak. Kjøper må selv sørge for å oppfylle bestemmelsene om målinger og eventuelle tiltak ved eventuell utleie av boligen. Se også: http://nrpa.no/radon-i-utleieboliger.
Megler er ikke kjent med at nåværende eier har utført radonmåling.
OM OPPDRAGET
EIENDOMMEN
Kalfarveien 102 / Nubbebakken 1
Gnr. 163, bnr. 139 i Bergen kommune
I henhold til matrikkerapport mottatt av Bergen kommune er byggene på eiendommen matrikkeført som;
Bo- og behandlingssenter (Nubbebakken 1) / dato: 01.01.1870
Rehabiliteringssenter, kurbad (Kalfarveien 102) / dato: 01.01.1975
SELGER
Blå Kors Eiendom AS
Org.nr. 982 322 065
v/Trine Marit Stensen & Knut Garnes iht. firmaattest
EIENDOMSMEGLER
Oppdragsnummer: 2250038
Megler Dag Jonny Johannessen - mobil 97051555 / djj@zmegleren.no
Megler Erik Alræk - mobil 40401666 / ea@zmegleren.no
ZMegleren AS
NO 921 171 846 MVA
DIVERSE
AS-IS klausul:
Eiendommen overtas i den stand som det var i ved Kjøpers forutgående besiktigelse ("as is"). Når en mangel skal vurderes, fravikes avhendingsloven § 3-9 slik at kjøper kun kan påberope seg mangler hvis selger ikke oppfyller sine konkrete forpliktelser under denne kontrakt, ikke har oppfylt sin opplysningsplikt jf. avhl. § 3-7, eller dersom selger har gitt uriktige opplysninger jf. avhl. § 3-8.
Utvask/renhold:
Det gjøres særskilt oppmerksom på at byggene blir ikke ytterligere ren- eller ryddiggjort før overtakelse.
Annet:
Det gjøres oppmerksom på at megler har ikke innhentet særskilte opplysninger om eventuelle pålegg om elektrisk anlegg eller brann/feievesen.
Viktig informasjon ang. loft Nubbebakken 1:
1970/4766-1/106
Tinglyst 03.07.1970
Erklæring/avtale
Bestemmelse om benyttelse av rom
Ovennevnte erklæring sier at innredning på loft i Nubbebakken 1 ikke skal bli brukt til oppholdsrom, soverom, arbeidsrom eller kjøkken. Kopi av erklæringen kan fås ved henvendelse til megler.
OM SALGSOPPGAVEN
Salgsdokumentasjonen er basert på selgers opplysninger gitt til bygningssakkyndig og eiendomsmegler samt opplysninger mottatt fra det offentlige. Interessenter oppfordres å undersøke eiendommen grundig sammen med fagkyndig person, og gjennomgå fullstendig salgsoppgave inkludert vedlegg før bud inngis.
Salgsoppgaven med alle opplysninger er lest og godkjent av selger.
Uautorisert kopiering eller gjenbruk av tekst og bilder fra denne salgsoppgave er ikke tillatt.
KJØPSVILKÅR
OVERTAKELSE
Overtakelse etter nærmere avtale med selger. Vennligst angi ønsket overtakelsesdato i budskjema.
BUDGIVNING
Det er viktig at du gjør deg kjent med all informasjon om eiendommene, og at du har spurt om det du eventuelt lurer på, før du legger inn et bud. Forbrukerinformasjon om budgivning er vedlagt denne salgsoppgaven.
Alle bud og budforhøyelser skal være skriftlig. I tillegg må legitimasjon være fremlagt, og budet skal signeres av budgiver. Eiendomsmegler kan ikke formidle bud før disse kravene er oppfylt. Ved å benytte denne tjenesten vil vilkårene om legitimasjon og signatur fra budgiver være oppfylt. Eventuelle forhøyelser eller endringer av budet kan bekreftes pr SMS eller på e-post. Husk alltid å ringe megler etter at du har sendt et bud eller budforhøyelse, for å forsikre deg om at budet er mottatt og kan formidles til selger. Eiendomsmegler har ikke ansvar for forsinkelser som skyldes tekniske feil.
Eiendomsmegler skal legge til rette for en forsvarlig avvikling av budrunden. For at budene skal kunne bli behandlet og videreformidlet skriftlig til alle involverte parter, må alle bud ha en tilstrekkelig lang akseptfrist, jf. eiendomsmeglingsforskriften § 6-3. Selger må også skriftlig akseptere budet før aksept kan formidles til budgiver, så akseptfrist bør derfor være på minimum 30 minutter. Bud kan uansett ikke settes med kortere frist enn kl. 12.00 første virkedag etter siste annonserte visning.
Akseptfristen er absolutt, det vil si at selger må akseptere budet og kjøper meddeles aksepten innen utløpet av akseptfristen. Dersom du utsetter inngivelse av bud til tett opp mot akseptfristen på et annet bud er det en reell fare for at eiendommen kan bli solgt før ditt bud kommer frem til megler, eller megler rekker å bringe budet videre til selger.
Etter at eiendommen er solgt vil kjøper og selger få tilsendt budjournal. Dette innebærer at alle bud vil bli gjort kjent for partene i den endelige kjøpsavtalen. Øvrige budgivere kan be om å få en kopi av budjournalen i anonymisert form.
OPPGJØR
Oppgjøret gjennomføres av Stender Oppgjør AS
Org.nr. 983 570 658 MVA
Det forutsettes av boligen skal overskjøtes til kjøper, og tinglyses på kjøper som ny eier. Blanco-skjøte blir ikke akseptert av selger.
LOVANVENDELSE
Alle interessenter, herunder kjøper, vil bli vurdert som profesjonell og eiendomsmeglingsloven fravikes følgelig utenfor forbrukerforhold jf. emgl. § 1-4, samt jf. § 1-2 i forskrift til eiendomsmeglingsloven.
Eiendommen overtas i den stand som det var i ved Kjøpers forutgående besiktigelse ("as is"). Når en mangel skal vurderes, fravikes avhendingsloven § 3-9 slik at kjøper kun kan påberope seg mangler hvis selger ikke oppfyller sine konkrete forpliktelser under denne kontrakt, ikke har oppfylt sin opplysningsplikt jf. avhl. § 3-7, eller dersom selger har gitt uriktig opplysninger jf. avhl. § 3-8.
Ovennevnte er ensbetydende med at Kjøper har risikoen for eventuelle skjulte feil og mangler. Risikoen for eventuelle skjulte feil som angitt i avhendingsloven § 3-9 siste punktum, tilligger etter dette Kjøper. Kjøper har herunder risikoen for de generelle krav til tilstanden for Eiendommen, jf. avhendingsloven § 3-2.
Eventuelle feil i rapporter utarbeidet av tredjeparter (tekniske rapporter, grunnanalyser, takster, informasjon fra forretningsfører etc.), som er fremlagt av selger eller selgers representant, er selger uvedkommende. Skulle det vise seg å være feil eller ufullstendigheter i slike rapporter vil avhl. §3-7 og §3-8 fravikes, slik at selger kun svarer for feil som selger faktisk hadde kunnskap om.
Selger kan ikke gjøres ansvarlig for kjøpers eventuelle indirekte tap, herunder tapte leieinntekter og bortfalt rett til dekning av fellesutgifeter, jf. avhl. §7-1 annet ledd. Dette reduserer ansvaret til selger og vil være en del av kontraktsvilkårene, dersom kjøper ved budgivning ikke reserverer seg mot avhl. §3-9.
Utover opplysningene som fremgår i denne salgsoppgave, herunder vedlagte rapporter, er selger ikke kjent med forurensninger i grunnen, forhold av arkeologisk interesse, eller andre grunnforhold som kan ha praktiske eller økonomiske konsekvenser for kjøper. Selger kan ikke holdes ansvarlig for grunnforurensning som kjøper måtte finne påregnelig ut ifra eiendommens historiske bruk. På generelt grunnlag vil det alltid være risiko for at en industrieiendom kan inneholde masser som er lettere forurenset, og som vil måtte deponeres på spesialdepot hvis massene transporteres vekk fra eiendommen.
Reklamasjon må sendes skriftlig til selger innen 60 dager etter kjøper oppdaget, eller burde ha oppdaget, avtalebruddet. Meldingen skal inneholde informasjon at det er oppdaget et avtalebrudd, og hva avtalebruddet består i. Unnlater kjøper å sende slik melding, vil retten til å gjøre brudd på avtalen gjeldende være tapt. Uansett vil retten til reklamasjon være tapt dersom selger ikke er gjort kjent med avtalebruddet innen et år etter overtakelse.
Eventuelle uriktige utvendige og innvendige arealangivelser skal ikke under noen omstendighet kunne påberopes av kjøper som grunnlag for mangelskrav eller et garantibrudd.
Opplysninger i salgsoppgaven er godkjent av selger.
PERSONVERN
Vi gjør oppmerksom på at interessenter kan bli registrert for oppfølging, og at personopplysninger om budgivere og kjøpere vil bli lagret. Videre opplyser vi at mulighetene for å slette sine personopplysninger er begrenset, som følge av at eiendomsmeglingsforetak har plikt til å oppbevare kontrakter og dokumenter i minst 10 år, iht. eiendomsmeglingsforskriften.
HVITVASKINGSREGLENE
I henhold til lov om hvitvasking og terrorfinansiering er eiendomsmegler forpliktet til å gjennomføre kontrolltiltak overfor selger og kjøper, herunder også fullmektiger. Kontrolltiltak kan eksempelvis være å bekrefte kunders og reelle rettighetshaveres identitet, innhente kopi av gyldig legitimasjon, samt å innhente opplysninger om kundeforholdets formål og tilsiktede art. Hvis slike kontrolltiltak ikke lar seg gjennomføre, vil eiendomsmegler ikke kunne etablere kundeforholdet eller utføre transaksjonen.
Dersom kjøper og selger ikke bidrar til å gjennomføre kontrolltiltakene, og dette medfører vesentlig forsinkelse eller at transaksjonen ikke kan gjennomføres, er dette å anse som mislighold av avtalen. Slikt mislighold kan gi rettigheter etter henholdsvis kapittel 5 og kapittel 4 i avhendingsloven.
Partene er selv ansvarlige for eventuelle kostnader og ansvar dette kan medføre. Eiendomsmegleren eller foretaket kan ikke ansvarliggjøres for de konsekvenser dette vil kunne få for partene eller andre som har interesser i eiendomshandelen.
Megler må melde inn eiendomshandler som fremstår mistenkelige til Økokrim. Innmelding av saker vil skje uten at partene varsles.
Nyttige lenker
Nærområdet
ZMegleren AS
Annonsene kan være mangelfulle i forhold til lovpålagt opplysningsplikt. Før bindende avtale inngås oppfordres interessenter til å innhente komplett informasjon fra meglerforetaket, selger eller utleier.








































