Bildegalleri

Næringsareal sentralt i Øvre Årdal. Bygget er i sin heilskap leigd ut til næringsføremål.
Sentralt plassert næringseigedom i Øvre Årdal. Fullt utleigd.
Nøkkelinfo
- Areal
- 450 m²
- Byggeår
- 1972
- Energimerking
- E - Oransje
- Renovert år
- 2002
- Tomteareal
- 2 876 m²
Type lokale
Fasiliteter
Visning
Om eiendommen
Salsobjektet er definert som et næringsbygg som ligg sentralt i Øvre Årdal sentrum. Bygget blei oppført i 1972, og har tidstypisk konstruksjon i høve byggjeår. Bygget blei ombygd og modernisert i 2002.
Bygget er i sin heilskap leigd ut til næringsføremål. Det er inngått ein lengre leigeavtale med Vestland fylkeskommune angåande leige av hovudarealet, nemleg skysstasjon mv. I tillegg er det eit forretningslokale med ein kortsiktig leigeavtale. Årdal kommune sin leigeavtale på toalett er utgått.
Årlege, løpande leigeinntekter pr 2026 er på kr 787 600.
Leigekontrakten med Vestland Fylkeskommune har leigeperiode 01.03.2026–01.08.2035, og ein opsjon for leietakar på 3 nye år. Dersom opsjonen nyttast, har partane ein rett til å forhandle om ein forlenging på 10 nye år på marknadsvilkår. I leigeavtalen med Vestland fylkeskommune er det avtalt ein rekke arbeider som skal utførast før overlevering til fylkeskommunen. Det meste av desse arbeida er utført og betalt. Oppgjer for arbeider som ikkje er betalt vil bli dekka av avsetningar i rekneskapen.
Bodgivning
Det er venta at salsoppgåva med vedlegg blir gjennomgått grundig. Avvik frå vilkår og føresetnader i dette prospektet skal kome tydeleg fram av kvart bod.
Bod må givast skriftleg til meklar innan fastsett frist, og må minst innehalde namn og kontaktinformasjon til bodgjevar, storleiken på bodet, frist for seljar til å akseptere bodet (akseptfrist), ønskja overtaking/ closing -dato, samt eventuelle atterhald og andre vilkår. Bod må givast av rett person i samsvar med firmaattest eller med fullmakt.
Eventuelle atterhald må gå klart fram av bodet. Finansieringsatterhald må gå tydeleg fram, og bodet må skildre finansieringa av transaksjonen, samt eventuelt indikere ønskt tidsline og plan for due diligence.
Eigedomen er hovudaktivum i ÅB Eigedom AS, org.nr. 954 679 721 (Selskapet). Transaksjonen vert gjennomført som sal av 100 % av aksjane i Selskapet. Bod skal gjevast som brutto eigedomsverdi (marknadsverdi for eigedomen). Endeleg kjøpesum for aksjane vert fastsett ved oppgjer/ closing , og salet føreset godkjenning frå seljar.
Ved aksjesal vert det gitt ein rabatt knytt til latent skatt, tilsvarande 10 % av differansen mellom eigedomen sin marknadsverdi og den skattemessige (bokførte) verdien av bygget. Rabatten skal takast omsyn til i bodet og vert rekna ut i samband med oppgjer (til dømes vil rabatten ved prisantydning NOK 6,8 mill. utgjere om lag NOK 180 000, basert på føresetnadene som ligg til grunn).
I tillegg vert det ved oppgjer gjort ei avrekning basert på balanse i selskapet per closing , mellom anna for kontantar/bankinnskot, gjeld og andre relevante eigedelar og plikter (aktiva og passiva). Dette inneber at endeleg kjøpesum for aksjane vert bodet (brutto eigedomsverdi) minus rabatt for latent skatt, justert for netto endring i kontantar, gjeld mv. i selskapet per closing .
Kjøpar må før bod vert gjeve avklare finansiering med bank, inkludert korleis finansieringa kan gjennomførast i samsvar med reglane om finansiell bistand i aksjelova § 8-10. Eventuelle finansieringsatterhald må gå tydeleg fram av bodet.
Kjøpekontrakt for aksjesal vert utarbeidd med utgangspunkt i siste standardmal frå Forum for Næringsmeglere, og eventuelle avvik eller atterhald frå standard skal gå tydeleg fram av bodet.
Det blir teke utgangspunkt i ei open bodrunde der seljar står fritt til å akseptere eller forkaste kvart bod utan nærare grunngjeving, opne for forhandlingar med ein eller fleire bodgivarar, leggje til rette for fleire bodrundar, avslutte salsprosessen osb. Meklar kan formidle avslag eller aksept på vegner av seljar.
Det er krav om skrifteleg bod til meklar. Akseptfrist minimum 72 timer. Bodet er bindande for bodgjevar når bodet er gitt skriftleg til meklar med akseptfrist minimum 72 timer. Bod innkomne etter kl. 16.00 vil ikkje bli handsama før neste dag.
Seljar står fritt til å akseptere eller forkaste eit bod, og pliktar ikkje å akseptere det høgste bodet på eigedomen. Seljar kan også bestemme seg for at sal ikkje blir gjennomført.
Lov om eigedomsmekling § 6-10 blir fråviken, herunder forskrifta §§ 6-2, 6-3 og 6-4, som mellom anna omfattar reglar for bodgiving og innsyn i opplysningar om bod og bodgivarar. Etter at handel har kome i stand, kan kjøpar på førespurnad få kopi av bodjournalen, men der bodgivarane er anonymiserte.
Beliggenhet
Standard
I leigeavtalen som er inngått med Vestland fylkeskommune er det avtalt at vesentlege vedlikehaldsarbeid skal utførast før overtaking den 01.03.2026. Desse arbeida håper Selskapet er utført og betalt før overtaking av Selskapet. Om ikkje vil arbeida i alle fall vere tinga og avsetning til dekning av betaling vere gjort i rekneskapen.
Takstmannen meiner bygningen likevel har behov for generelt vedlikehald i tida framover. I kontaktstraumanalysen er det lagt inn kostnadar til dette fordelt over fleire år.
Under ein del av bygget er det eit lager med redusert etasjehøgde. Her trekk det inn vatn i periodar med mykje nedbør.
Innhold
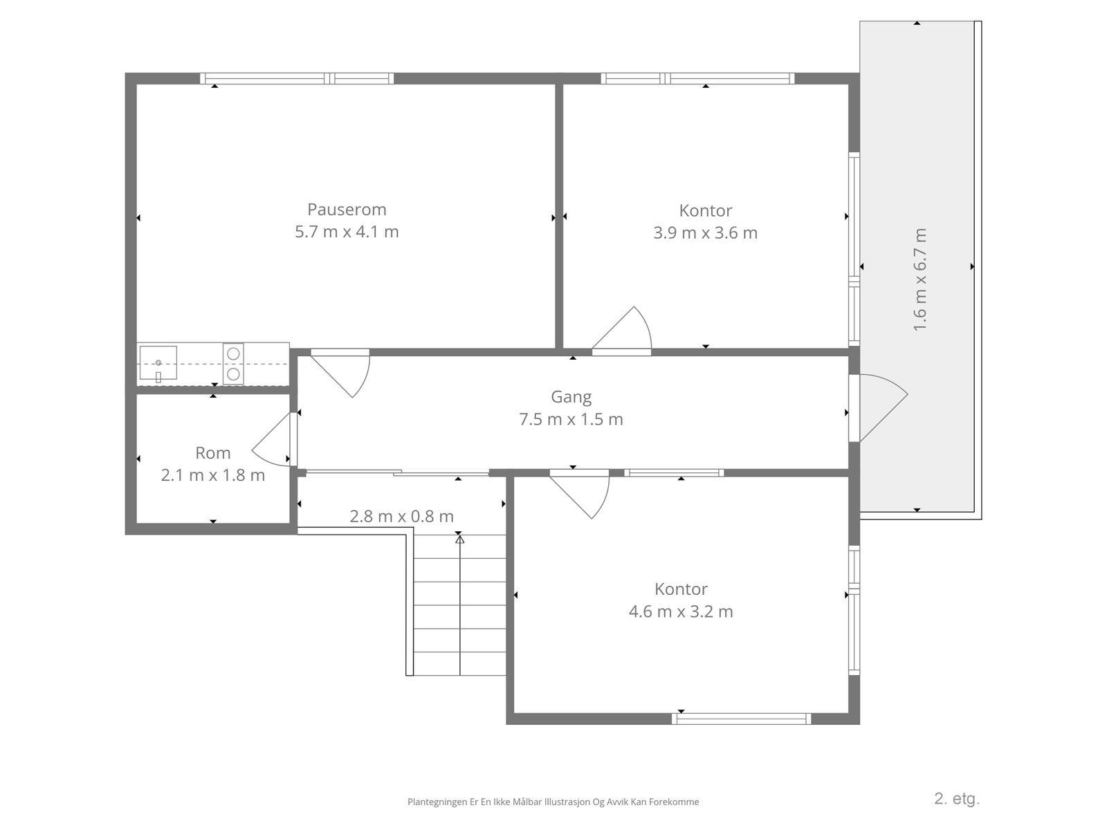
Andre etasje inneheld pauserom, og to kontor. Første etasje i skysstasjon-delen inneheld eit venterom, to rom som per i dag nyttast til lagring, HC-WC og trapp til øvrige etasjar. Underetasjen inneheld eit toalett, sjåførrom, kontor mv. Andre etasje inneheld toalett, garderobe, vaskerom og teknisk rom.
Nyttige lenker
Nærområdet
ADVOKATFIRMAET TOLLEFSEN AS
Annonsene kan være mangelfulle i forhold til lovpålagt opplysningsplikt. Før bindende avtale inngås oppfordres interessenter til å innhente komplett informasjon fra meglerforetaket, selger eller utleier.




















