Bildegalleri

Moderne lagerseksjon med mesanin til salgs! - Sentral beliggenhet på Bryne!
Nøkkelinfo
- Areal
- 102 m²
- Byggeår
- 2021
Type lokale
Visning
Ta kontakt for å avtale visning.Om eiendommen
Om eiendommen
En moderne, praktisk og sentralt beliggende lagerseksjon – perfekt for bedrifter eller privatpersoner med behov for ekstra plass. Fungere utmerket til lagring av bobil, båt, bil eller som hobbyverksted.
Beliggenhet
Lagerseksjonen ligger i et veletablert industriområde på Håland i Bryne, kun få minutters kjøretur fra sentrum. Enkel og effektiv adkomst via Fv44.
Standard og fasiliteter
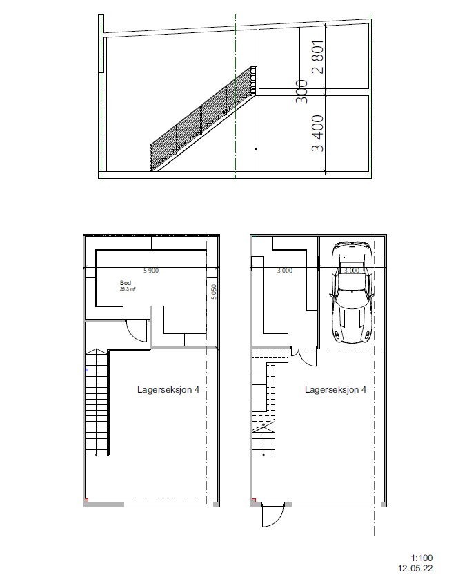
Bygget holder moderne standard med funksjonelle løsninger og høy utnyttelsesgrad med påbygget mesanin:
Isolerte gulv, vegger og tak
Innervegger i isolerte stålkassetter med tetting i topp og bunn
Stor leddport: 4 x 4,5 meter, med vindusfelt, motor og fjernkontroll
Ytterdør med kodelås
Innvendig LED-takbelysning og utvendig lys over inngangsdør
Innlagt vann, avløp og strøm – egen måler
- Lagt opp til fremtidig toalett
- Vask innerst i lokalet
Brannalarm med sensor
6 meter takhøyde
- Mesanin og lukket bod
Kjøkkeninnredning
Strømskap og stikkontakter installert
- Avtrekksvifte i alle rom
Parkering og adkomst
Parkering rett utenfor seksjonen iht. vedtekter i sameiet. Enkel innkjøring og manøvrering.
Kostnader og vilkår
Felleskostnader: Ca. kr 900,- per mnd
(Dekker felles strøm, brøyting, forretningsførsel og forsikring)Kommunale avgifter: Ingen renovasjonsplikt
Forsikring: Bygningen er forsikret av sameiet. Seksjonseier står for inventarforsikring.
Regulering
Området er regulert for lager og industri.
Plantegning og bilder
Se vedlagt plantegning for oversikt over innvendig planløsning. Bilder viser både fasade, porter og interiør.
Interessert?
Ta kontakt for visning eller mer informasjon.
Nærområdet
Planum Eiendom
Annonsene kan være mangelfulle i forhold til lovpålagt opplysningsplikt. Før bindende avtale inngås oppfordres interessenter til å innhente komplett informasjon fra meglerforetaket, selger eller utleier.









