Bildegalleri

"Herredshuset" rett ved Sørreisa Sentrum med flere muligheter og potensiale! Ny pris!
Nøkkelinfo
- Bruksareal
- 696 m²
- Etasje
- 2.
- Eieform
- Eier (Selveier)
- Areal
- 696 m²
- Byggeår
- 1950
- Tomteareal
- 1 799 m² (eiet)
Type lokale
Fasiliteter
Kort om eiendommen
Nordvik Finnsnes presenterer Vikaveien 46, mest kjent som det gamle Herredshuset. Eiendommen har en sentral beliggenhet i Sørreisa.
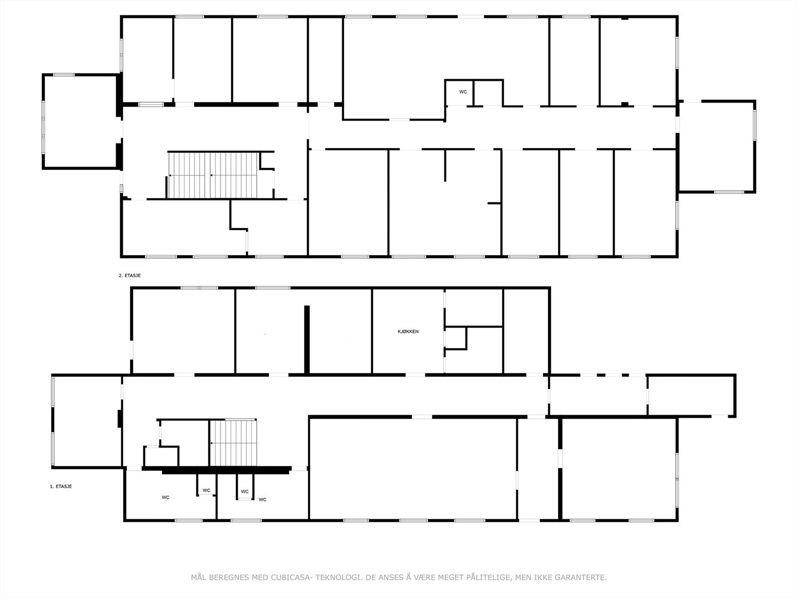
Lokalet går over to etasjer og har i dag blant annet kontorer og kontorfellesskap, møterom, arkivrom, kjøkken, toalettrom, vaskerom og lagerrom med mer. Eiendommen er i dag regulert til offentlig bebyggelse og blitt brukt til kontorer. Kontorlokaler i hovedetasje og møtelokale i kjelleretasjer har tidvis blitt utleid, men det står tomt i dag og er klar for å bli overtatt av nye eiere.
Kontakt megler for visning!
Se videovisningen i annonsen.
Innhold
Bygget går over to etasjer og inneholder følgende:
1. etasje:
- 12 kontor/kontorfellesskap
- Vaskerom
- Toalettrom
- Arkivrom
- Gang
Det er montert t-kjøkken inne på møterom/spiserom.
Kjelleretasje:
- Møterom
- Kjøkken
- Vaskerom
- Garderobe
- Toalettrom
- Lagerrom
- Fyrrom
- Gang/Trapperom
Standard
Næringsbygg med normal standard og etterslep på vedlikehold. Eldre bygg som etter hvert må påregnes oppgradert både innvendig og utvendig.
I første etasje er det flere avlukket kontorer og kontorfellesskap. På møterom/spisesrom er det montert kjøkkeninnredning med en mindre oppvaskmaskin og plass til et lite kjøleskap. Her er det servant og skap. I underetasjen er det et større møterom og et fullverdig kjøkken med komfyr, oppvaskmaskin og kjøleskap.
Begge etasjene har egen inngang.
Eiendommen selges slik den fremstår inkludert inventar som befinner seg på eiendommen ved visning.
Eiendommen kommer ikke til å bli ytterligere eller rengjort ytterligere enn forevist på visning.
Det er ikke foretatt en tilstandsrapport/næringstakst av takstmann. Det foreligger kun en verditakst med en enkel beskrivelse av bygningsdelene. Det er ikke gjort tilstandsvurdering på bygningsdelene som er beskrevet i verditaksten. Interessenter oppfordres derfor til å befare eiendommen med bygningssakskyndig på visning.
Beliggenhet
Det gamle Herredshuset ligger mellom Ytterholtet og Sørreisa sentrum. Det er ca. 500 meter fra sentrum. Sørreisa sentrum byr på apotek, dagligvarebutikker, spiseplasser, treningssenter, frisør, bensinstasjon, bibliotek, skole, barnehage og kommunesenter med opparbeidet gang- og sykkelsti. Fotballbanen, lysløype og turløyper ligger i kort avstand til boligen.
Tomt
Eiendommen ligger i svak skrånede terreng. Tomta er opparbeidet med asfaltert gårdsplass med plass til flere biloppstillingsplasser. Noe gressplen rundt eiendommen. Arealet er opplyst å være beregnet og kan derfor avvike noe.
Parkering
Det er flere biloppstillingsplasser på tomten. Parkering gjøres på egen grunn.
Oppvarming
Bygget varmes opp av radiatorer og elektriske panelovner.
Regulerings og arealplaner
Eiendommen er regulert til offentlig bebyggelse ifølge reguleringsplan "Ytterholtet del av reguleringsplan for Sørstraumen" med PlanID: 1995001. Sørreisa kommune opplyser i brev til megler pr 08.10.2025 at det arbeides med ny arealdel til kommunen som kan få betydning for eiendommen. Det er ikke opplyst om når den nye planen vil ferdigstilles eller trå i kraft.
Heftelser / servitutter
På eiendommen er det tinglyst følgende heftelser og rettigheter som vil følge eiendommen ved salg:
06.10.1950 - Dokumentnr: 1846 - Rettighet
Rettighet hefter i: Knr: 5526 Gnr:26 Bnr:12
Overført fra: Knr: 1925 Gnr: 26 Bnr: 71
Beskrivelse: Erklæring om rett for Straumen Vassverk til å leg ned og vedlikeholde vassledning over d.b grbf 20/11-1950.
29.10.1954 - Dokumentnr: 2171 - Bestemmelse om veg
Rettighetshaver: Knr: 5526 Gnr:26 Bnr:3
Overført fra: Knr:1925 Gnr: 26 Bnr: 71
Beskrivelse: Eiendom 26/3 skal ha rett til bruksvei på vestre side av 26/390, langs grensen til eiendommen gnr 26 bnr 20
10.01.1997 - Dokumentnr: 154 - Bestemmelse ifgl. skjøte
Rettighetshaver: Knr: 5526 Gnr:26 Bnr: 390
Bestemmelse om garasje/parkering
Overført fra: Knr: 1925 Gnr: 26 Bnr: 71
Beskrivelse: Så lenge det er brannstasjon på 26/390, har Sørreisa kommune rett til å benytte parkeringsplass ved brannøvelser og utrykninger.
07.12.2004 - Dokumentnr: 6366 - Bestemmese om veg
Rettighet hefter i: Knr: 5526 Gnr:26 Bnr: 390
Beskrivelse: Eiendom 26/12 gis vegrett over eiendomm 26/390 til inngang og lasterampe på byggets søndre side.
Servitutter kan utleveres på forespørsel hos megler.
Ferdigattest / brukstillatelse
Det forefinnes ikke ferdigattest eller byggegodkjente tegninger for bygget, megler har derfor ikke anledning til å verifisere hvorvidt deler eller heler bygget er godkjent for varig opphold eller hva rommene originalt er søkt som. Det er ikke opplyst byggeår i Matrikkelbrev, takstmann har i sin verditakst estimert byggeår til 1950. Plan- og bygningsloven trådte i kraft
Dagens eier har fått en ferdigattest for "Oppgradering og fornying av hele bygget innvendig", som er datert 05.11.2012. Det forefinnes ikke byggegodkjente tegninger for tiltaket.
Bygget er i Matrikkelbrev registrert med to bygningsnummer.
Bygningsnummer 12 804 555 er registrert som Lagerhall. Tilbygget til nevnte bygningsnummer er registrert med i næringsgruppen: Off. adm. og forsvar, og trygdeordninger underlagt off. forvaltning. Tilbygget står oppført med rammetillatelse og tatt i bruk i 1989. Megler har ikke mottatt midlertidig brukstillatelse/ferdigattest for tilbygget.
Det andre bygningsnummeret,141 038 516, er registrert som annen forretningsbygning i næringsgruppe Industri. Dette er ikke et eget bygg.
Byggemåte
UTDRAG FRA VERDITAKST:
Innvendige forhold
1 etg.
Gulv med belegg og laminat.
Vegger med trepanel, malt mur, og plater med glassfiberstrie som er malt.
Innvendig slette og formpressa dører.
Det er montert t-kjøkken inne på møterom/spiserom.
Himling med tak-ess plater og nedforet t-profil himling.
Det registreres bruksslitasje og mindre skader.
Kjeller.
Gulv med belegg, fliser, malt betong, ubehandlet betong og oppforet tilfarergulv med gulvbord.
Vegger med glassfiberstrie som er malt, malt betong og malte plater.
Innvendige malte speildører, branndør av stål og formpressa dører.
I kjeller er det kjøkken, garderobe og toaletter.
Himling med malt betong, nedforet t-profil himling og smartpanel.
Kjeller fremstår som ett totalrenoverings objekt pga. fuktskader. Fuktskadene skyldes både overvann og kapillært fuktopptrekk
fra grunn.
Befaringsdagen måles det høye fuktverdier i lettvegger og tilfarergulv. På betongvegger og betonggulv ses mye saltutslag.
Bygningsstruktur:
Bygget har stripefundament av betong mot isolert og telefri grunn.
Gulv mot grunn og grunnmur av betong.
Etasjeskiller av armert betong.
Opprinnelige yttervegger er oppført med betongstein.
Valmet takkonstruksjon oppført med prefabrikkerte takstoler, undertak av armert plast folie.
Utvendige forhold
Grunnmur er pusset, eldre vinduer av tre med kobla glass. Eldre kjellerdør av teak.
Vegger er utforet og kledd med liggende malt kledning. Vinduer av tre med forsegla glass, ytterdør av teak og dør to fløyet dør
lager dør av tre.
Taket er tekket med profilerte stålplater. Takrenner, nedløp og beslag av stål.
Det registreres punkterte vinduer, spredde råteskader i kledning og platt ved inngang til lager har setningsskader.
Verditakst fra takstmann er vedlagt salgsoppgaven.
Det er ikke gjort en tilstandsvurdering av takstmann i verditaksten.
Bebyggelse
Eiendommen er bebygget med næringsbygg og biloppstillingsplasser.
Diverse
Kjøper og selger er forpliktet til å undertegne standard kjøpekontrakt utarbeidet av Nordvik i forbindelse med eiendomstransaksjonen. Kjøpekontrakt kan besiktiges hos eiendomsmegler før bud inngis. Kontakt eiendomsmegler for spørsmål.
Det er ikke gjort en tilstandsrapport av takstmann, det foreligger kun en verditakst datert 12.09.2025.
Det er opplyst at det er en tom nedgravd oljetank på baksiden av bygget.
Fra 1. januar 2020 ble det forbudt å fyre med mineralolje til oppvarming av bygninger.
- Der tanken er større enn 3200 liter: Oljetanker som tas permanent ut av bruk skal graves opp. Kommunen kan i særlige tilfeller gi tillatelse til at tanker som permanent tas ut av bruk, rengjøres og fylles med sand, grus o.l. i stedet for oppgraving. Tas oljetanken midlertidig ut av bruk, for eksempel i påvente av omgjøring til biofyringsolje, skal tanken tømmes for olje og sikres mot påfylling.
-For tanker under 3200 liter der kommunen ikke har besluttet at forurensningsforskriften likevel skal gjelde for disse tankene: Det er ikke krav p.t. om at oljetanken fjernes, selv om den er permanent tatt ut av bruk. Det er krav til at eier av eiendommen sørger for at tanken ikke medfører forurensning.
Adkomst
Adkomst fra Vikaveien. Se kartskisse for nærmere veibeskrivelse fra din posisjon.
Offentlig kommunikasjon
Nærmeste bussholdeplass er "Ytterholtet" som ligger ca. 200 meter fra eiendommen. Herfra går det buss til blant annet Sæterslett, Finnsnes Kai, Sjøvegan sentrum og Skøelv skole. Fra Sørreisa sentrum kan du ta buss videre til blant annet Bardufoss, Rabbåsen og med flybussen til Bardufoss Lufthavn. Fra Finnsnes Kai er det hurtigbåt til bl. a. Harstad og Tromsø. Se svipper.no for mer informasjon og avganger.
Overtakelse
Overtakelse skjer eter avtale med selger.
Før eiendommen overleveres kjøper, skal fullt oppgjør og omkostninger være mottatt på meglers klientkonto.
Sentrale lover
Ved salg vil standard kjøpekontrakt, basert på Meglerstandard mars 2020 bli benyttet. Lov om avhending av fast eiendom vil bare i begrenset utstrekning kunne påberopes av Kjøper. Kontrakten kan gjennomgås etter nærmere avtale med megler. Dersom Kjøper ønsker å reservere seg mot noen av bestemmelsene i kjøpekontrakten må dette uttrykkelig fremkomme av budet.
Det forutsettes at interessenter gjennomgår alle opplysninger i salgsoppgaven grundig, foretar egne undersøkelser herunder besiktigelse av Eiendommen og-, dersom interessenten ikke anser seg selv som tilstrekkelig bygningskyndig, undersøker eiendommen nøye sammen med egen bygningskyndig representant. Kjøper kan ikke fremme noen form for krav overfor Selger tilknyttet forhold Kjøper ble kjent med eller burde blitt kjent med i forbindelse med sin gjennomgåelse av Eiendommen.
Kjøpekontrakten forutsetter at Eiendommen overtas i den stand som den var i ved Kjøpers forutgående besiktigelse/gjennomgåelse.
Ved en eventuell mangelsvurdering fravikes avhendingsloven § 3-9, slik at det kun kan gjøres gjeldende at det foreligger mangel:
-dersom Selger ikke oppfyller sine konkrete forpliktelser under denne kontrakt,
-dersom Selger ikke oppfyller sin opplysningsplikt, jf. reguleringen i avhendingsloven § 3-7, eller
-dersom Selger har gitt uriktige opplysninger, jf. reguleringen i avhendingsloven § 3-8.
Risikoen for eventuelle skjulte feil som angitt i avhendingsloven § 3-9 siste punktum, tilligger etter dette Kjøper.
For så vidt gjelder rapporter fra tredjemenn som gjelder Eiendommen (tekniske rapporter, grunnanalyser, takster etc.), og som er vedlagt denne kontrakt og/eller fremlagt av Selger i forbindelse med transaksjonen, så er Selger ukjent med ufullstendigheter eller feil i dokumentene. Skulle dokumentene likevel vise seg å være ufullstendige eller inneholde feil, så fravikes prinsippene i avhendingsloven § 3-7 og § 3-8, slik at Selger bare svarer for eventuelle feil som Selger selv likevel hadde faktisk kunnskap om.
Eventuelle uriktige angivelser av Eiendommens arealer (utvendige og innvendige) skal ikke under noen omstendighet kunne påberopes av Kjøper som grunnlag for mangelskrav.
Reklamasjonsfristen etter Avhl. § 4-19 (2) settes til 18 månder etter overtagelse i tråd med den regulering som følger av vår standard kjøpekontrakt.
Selger avgir de kontraktsgarantier som følger av vår standard kjøpekontrakt.
Selger kan ikke gjøres erstatningsansvarlig for indirekte tap, jf. prinsippene i avhendingsloven § 7-1 (2). Selgers samlede ansvar til å betale erstatning og/eller prisavslag ved mangler er begrenset oppad til et beløp som utgjør 10 % av kjøpesummen. Dog slik at kjøper ikke kan fremme krav dersom det samlede kravet er mindre enn 3 % av kjøpesummen. I vurderingen av om det samlede krav overstiger dette minstebeløpet, skal det ses bort fra enkeltkrav under 1 % av kjøpesummen.
Kjøper overtar Selgers justerings-/tilbakføringsforpliktelser og -rettigheter (m.h.t. merverdiavgift) tilknyttet Eiendommen dersom dette viser seg å være nødvendig. Det skal i så tilfelle inngås en egen avtale om kjøpers overtagelse av selgers justeringsforpliktelse.
Interessenter oppfordres til å kontakte revisor/advokat i forhold til spørsmål vedrørende skatter og avgifter i forbindelse med kjøpet før bud inngis.
Kjøper må selv vurdere om ervervet er meldepliktig etter konkurranselovens § 18 og i tilfelle inngi melding til Konkurransetilsynet. Risikoen for eventuelle konkurranserettslige beføyelser tilligger i sin helhet Kjøper og vil ikke begrense Kjøpers forpliktelser overfor Selger.
ØVRIGE SALGSBETINGELSER:
Budgiver oppfordres til å benytte vedlagte budskjema. Budgiver er innforstått med at Selger når som helst kan avslå eller akseptere et hvilket som helst bud uten nærmere begrunnelse. Likeledes er bud bindende når det er kommet til Selgers kunnskap. Handelen er juridisk bindende for begge parter dersom budet aksepteres innen akseptfristen. Meglers kontraktsmal vil ligge til grunn for avtalen.
Det gjøres spesielt oppmerksom på at eiendomsmeglingsloven § 6-7 er fraveket ved oppdraget, og det legges til grunn av Kjøper bør og vil gjennomføre egne grundige undersøkelser.
Megler har benyttet sin rett til å fravike eiendomsmeglingsloven §§ 4-4, 6-2, 6-9 (2), 6-9 (3), 6-10, 7-1 og 8-8 samt forskriftens fravikelige regler i næringsmegling om budfrister, - skriftlighet, legitimasjon og innsyn i budjournal. Kjøper kan ved forespørsel få innsyn i budjournal i anonymisert form.
Informasjon i dette prospekt er gitt av Selger, offentlige instanser eller Selgers rådgivere. Verken Selger eller Megler påtar seg noe ansvar for mulige feil eller mangler ved prospektet utover de som er konkret er nevnt ovenfor.
Hvitvaskingsregelverk
Eiendomsmeglere er underlagt lov om hvitvasking og tilhørende forskrift. Etter hvitvaskingsloven er eiendomsmegler pålagt å gjennomføre kundetiltak av både selger og kjøper.
Hvis kjøper ikke bidrar til at megler får gjennomført kundetiltak, og dette fører til at transaksjonen ikke kan gjennomføres eller blir forsinket, misligholder kjøper avtalen. Etter 30 dager anses misligholdet vesentlig, og selger har rett til å heve avtalen og gjennomføre dekningssalg for kjøpers regning. Dersom det er selger som ikke bidrar til at megler får gjennomført løpende kundetiltak underveis i oppdraget må eiendomsmegler stanse gjennomføringen av transaksjonen. Selger vil i et slikt tilfelle ha misligholdt sine forpliktelser, og kjøper vil kunne ha et krav mot selger etter avhendingsloven.
Hvis kundetiltak ikke lar seg gjennomføre, vil Nordvik Eiendomsmegling ikke kunne bistå med handelen eller foreta oppgjør.
Budgivning
Budgiver oppfordres til å benytte vedlagte budskjema. Budgiver er innforstått med at Selger når som helst kan avslå eller akseptere et hvilket som helst bud uten nærmere begrunnelse. Likeledes er bud bindende når det er kommet til Selgers kunnskap. Handelen er juridisk bindende for begge parter dersom budet aksepteres innen akseptfristen. Meglers kontraktsmal vil ligge til grunn for avtalen.
Megler kan ikke formidle bud med forbehold om at budet eller forbehold i budet skal holdes skjult (hemmelig) for andre budgivere og interessenter.
Dersom budgiver skal by på eiendommen i henhold til kjøpsfullmakt må megler kontaktes i forkant av budgivning. Ved bruk av kjøpsfullmakt, må fullmakten oversendes til megler i forkant av budgivning.
Vedlegg til Salgsoppgaven
Verditakst datert 12.09.2025
Situasjonskart
Vedleggene er en del av den komplette salgsoppgaven. Det er viktig at interessenter setter seg godt inn i vedleggene og kontakter megler med eventuelle spørsmål før bud inngis.
Ansvarlig megler
Caroline Strand
Nyttige lenker
Nærområdet
Nordvik Finnsnes
Annonseinformasjon
| FINN-kode | 446349975 |
|---|---|
| Sist endret | 19. jan. 2026 12:26 |
| Referanse | 28-0081/25 |
Annonsene kan være mangelfulle i forhold til lovpålagt opplysningsplikt. Før bindende avtale inngås oppfordres interessenter til å innhente komplett informasjon fra meglerforetaket, selger eller utleier.
















































