Bildegalleri

Seksjon 5 og 6 selges samlet og ligger i 1.etasje.
Næringslokaler midt i Tofte sentrum - To seksjoner selges
Nøkkelinfo
- Bruksareal
- 55 m²
- Bruttoareal
- 62 m²
- Etasje
- 1.
- Eieform
- Eier (Selveier)
- Areal
- 55 - 145 m²
- Byggeår
- 1920
- Energimerking
- G - Rød
- Tomteareal
- 771 m² (eiet)
Type lokale
Fasiliteter
Visning
Innhold
To seksjoner selges. Disse ønskes primært solgt samlet, men prisen gjelder en av de, den minste enheten. på BTA 62 kvm .
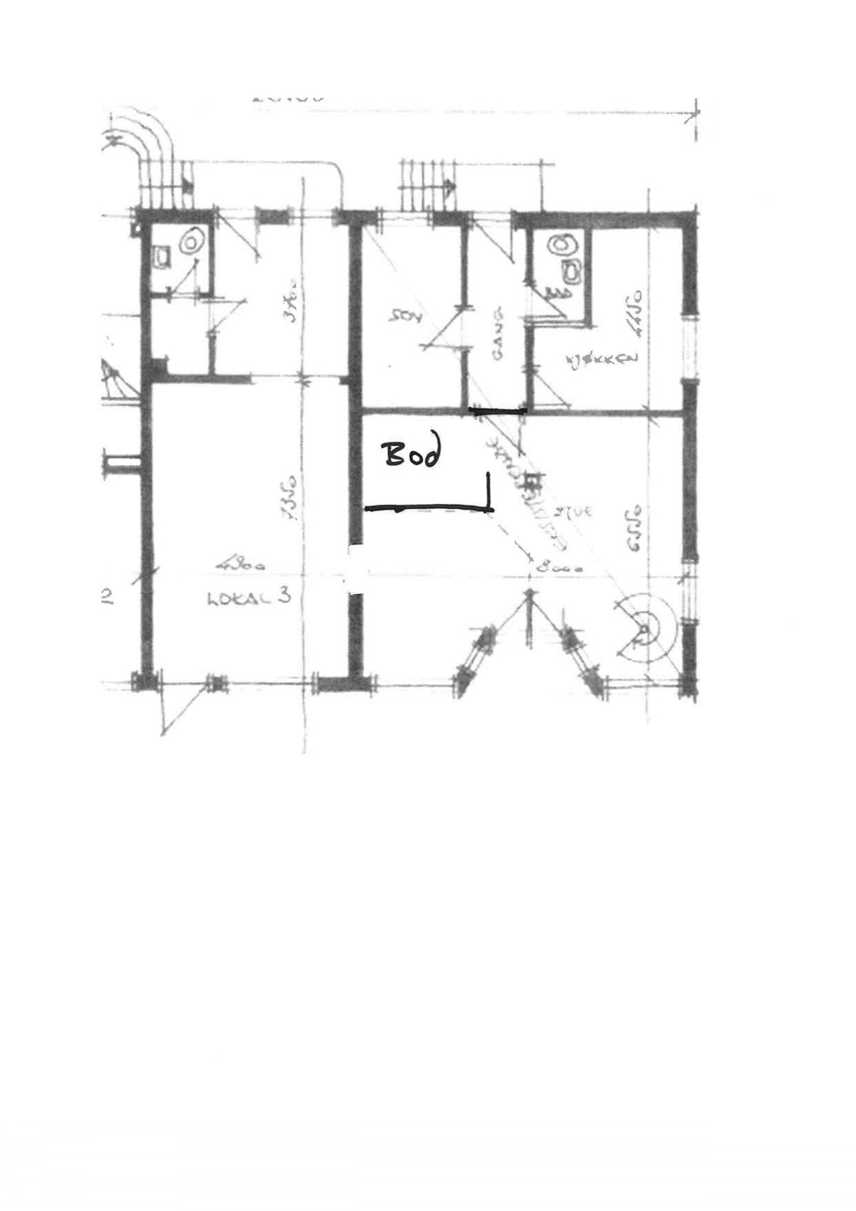
Snr. 5: Seksjonen inneholder næringslokale med noe lagerrom og et toalettrom.
Snr. 6: Seksjonen inneholder følgende næringslokale på 50 kvm BRA og utleierom/apartment på 35 kvm BRA med stue, kjøkken, bad, gang og soverom.
Standard
Normalt god standard innvendig. Stort sett laminat på gulvene og malte veggflater. Mye glass gir lyse lokaler. Himlinger er også malte.
Sameiet har etterslep på vedlikehold og kjøper må påregne utgifter til dette fremover.
Oppvarming
Strøm.
Beliggenhet
Tofte er kommunens sydligste tettsted med et bredt servicetilbud av butikker og serveringssteder. Flere båthavner og badestrender i sentrum. Mange flotte turmuligheter i området, bla. Kyststien til Rødtangen. Forskjellige forretninger i Tofte, det meste rundt hovedgaten som også får forbi eiendommen. Få meter ned til sjøen med flotte bademuligheter og ca. 20 minutter med kjøring til Oslofjordtunnelen. Barnehager og barne-/ungdomsskole i området. Bussforbindelse til Drammen og Oslo - ca 1 times kjøring til Oslo.
Type, eierform og byggeår
Næringsbygg Eierseksjon, oppført i 1920
Arealer
Bruksareal: 55 kvm - 145 kvm, Bruttoareal: 62 kvm - 145 kvm
P-rom kommentar:
Seksjonsnummer 5 har et bruksareal på 55 kvm og et bruttoareal på 62 kvm.
Seksjonsnummer 6 har et bruksareal på 90 kvm og et bruttoareal på 100 kvm.
Arealet er kun oppmålt av takstmann og ikke kontrollert av megler. Arealene er beregnet og rom er definert etter dagens faktiske bruk, uavhengig av hva som er godkjent av bygningsmyndighetene.
Bebyggelse/byggemåte
Pusset murfasade.
Tilstandsrapport/tilstandsgrad
Utført av: Andreas Grønstad Jahnsen
Takstdato: 12.08.24
Markedsverdi: Markedsverdi for seksjonsnummer 5 har blitt satt til kr. 900.000,-. Markedsverdi for seksjonsnummer 6 har blitt satt til kr. 2.000.000,-.
Sameiet bærer preg av etterslep når det gjelder vedlikehold. De siste årene har det vært flere akutte skadeomfang av stor økonomisk karakter, og sameiets ønsket vedlikehold har blitt utsatt. Sameiet har i 2023 opplevd utfordringer med rotteinntrenging gjennom rørsystem og et par seksjoner. Skadedyrkontroll har blitt kontaktet og utført befaring og tiltak.
Mulighet for utleie
Ingen begrensninger mht. dette.
Hybelen i seksjon 6 er i dag utleid til kr.5.900,- per måned. Leien kan reguleres i takt med konsumprisindeksen (tidligst 1 år etter siste leiefastsetting) iht leieavtale.
Tomt
Selveiende felles tomt.
Boligseksjonene har parkeringsplasser som leies av kommunen. I bakgårdener det en liten felles plenflekk.
Areal og eierform
Areal: 771 kvm, Eierform: Fellestomt
Adkomst
Midt i sentrum av Tofte med enkel adkomst og god profilering. Raskeste vei ut til Tofte fra E134 er via Klokkarstua, men man kan også kjøre via Filtvet.
Parkering
Det medfølger ikke parkeringsplasser til lokalene, men det er en del parkering i sentrum av Tofte.
Konsesjon / Odel
Denne eiendommen er ikke konsesjonspliktig.
Vei/Vann/Avløp
Offentlig vei og avløp. Privat vann fra Tofte vannverk.
Kommunale avgifter
Dette er inkludert i fellesutgiftene.
Andre løpende avgifter
Det må påregnes kostnader til strøm, oppvarming, innboforsikring samt vedlikehold. Kostnadene varierer ut i fra forbruk.
Regulering
Eiendommen er regulert til sentrumsformål og bevaring kulturmiljø, reguleringsbestemmelser følger salgsoppgaven.
Brukstillatelse / Ferdigattest
Det foreligger ferdigattest for denne eiendommen, datert 010611. At slik attest foreligger, gir ingen garanti for at det ikke senere er utført arbeider som ikke er byggemeldt/godkjent.
Heftelser / Rettigheter
Følgende heftelser er tinglyst og vil påhvile eiendommens grunnboksblad videre:
Bygget er SEFRAK - registrert. Dette betyr at det er spesielle vilkår om man ønsker fasadeendringer m.v.
Annen nyttig informasjon
Hvitevarer utover det som er integrert medfølger ikke i handelen.
Leieforhold overtas av kjøper.
Andel fellesgjeld
Andel fellesgjeld: 9 779
Lånevilkår
Lånenr OBOS01-98207907448
Type A
Restsaldo 76.917,-
Restløpetid 7 år og 1 mnd.
Term pr. år 12
Avdr.frihet til og med
Type Rente Flyt
Rente (04.07.24) 8,20%
Dette er selskapets totale lån og vilkår.
For seksjonsnummer 5 utgjør det følgende: Restsaldo kr. 3.692,-
For seksjonsnummer 6 utgjør det følgende: Restsaldo kr.6.087,-
Opplysninger om sameie
Sameiet bestående av nærings- og boligseksjoner. Det er totalt 13 seksjoner i sameiet.
Fellesutgifter
Kr 2 356,-
Hhv kr. 2.356,- for snr. 5 og kr. 3.880,- for snr. 6. Fellesutgiftene inkluderer bygningsforsikring, forretningsførsel, trappevask, drift og vedlikehold og kommunale avgifter.
Forretningsfører
OBOS
Formuesverdi
Finnes ikke p.t.
Overtagelse
Avklares i forbindelse med budgivning, kan overtas raskt.
Energimerking
Eiendommen er ikke energimerket. Det antas at karakteren er Rød-G.
Forsikring
Eiendommen er forsikret gjennom sameie. Kjøper må tegne egen innboforsikring pr. overtagelsesdato.
Finansiering
Frem Eiendomsmegling samarbeider med Sparebanken Øst, og kunder som ønsker det kan raskt bli satt i kontakt med en kundebehandler for et uforpliktende lånetilbud. Frem Eiendomsmegling mottar markedsstøtte fra Sparebanken Øst, men det mottas ikke noen form for formidlingsprovisjon for formidling av lånekunder.
Viktig informasjon
Eiendommen selges etter reglene i avhendingsloven etter bestemmelsene "as is" da dette er næringsseksjoner, jfr avhendingslovens §3-9. Eiendommen selges som næringsseksjoner mellom to profesjonelle parter og en salgskontrakt blir basert på meglerstandard for salg av næringseiendom.
Eiendommen skal overleveres kjøper i tråd med det som er avtalt. Det er viktig at kjøper setter seg grundig inn i alle salgsdokumentene, herunder salgsoppgave, takst og selgers eventuelle egenerklæring. Kjøper anses kjent med forhold som er tydelig beskrevet i salgsdokumentene. Forhold som er beskrevet i salgsdokumentene kan ikke påberopes som mangler. Dette gjelder uavhengig av om kjøper har lest dokumentene. Alle interessenter oppfordres til å undersøke eiendommen nøye, gjerne sammen med fagkyndig før bud inngis. Kjøper som velger å kjøpe usett kan ikke gjøre gjeldende som mangel noe han burde blitt kjent med ved undersøkelsen.
Dersom det er behov for avklaringer, anbefaler vi at kjøper rådfører seg med eiendomsmegler eller en bygningssakyndig før det legges inn bud.
Gjennomføring av oppgjør/transaksjoner
Kjøpesum inkl. omkostninger skal være innbetalt til meglers klientkonto før overtagelse. Innbetalingene skal skje fra kjøpers konto i norsk finansinstitusjon. Det forutsettes at skjøtet skal tinglyses på ny eier og at megler får oversendt pantedokumenter som skal tinglyses snarest mulig etter kontraktsunderskrift.
Etter hvitvaskingsloven er megler forpliktet til å gjennomføre identitetskontroll av partene i en eiendomshandel. Dersom partene ikke oppfyller lovens krav til legitimasjon eller megler har mistanke om en mistenkelig transaksjon, kan megler stanse gjennomføring av transaksjonen. Megler er pliktig til evt. å sende melding til Økokrim uten orientering til partene.
Salgsoppgave
Ansvarlig megler:
Fred-Ivar Myrseth
Mob: 91 78 52 72
E-post: fred-ivar@fremeiendomsmegling.no
Frem Eiendomsmegling AS (Org.nr: 979915772)
Besøksadresse Spikkestadveien 92 B, 3441 Røyken
Tlf: 31 29 74 00
Innholdet i salgsoppgaven er godkjent av selger.
Nyttige lenker
Nærområdet

FREM EIENDOMSMEGLING
Annonsene kan være mangelfulle i forhold til lovpålagt opplysningsplikt. Før bindende avtale inngås oppfordres interessenter til å innhente komplett informasjon fra meglerforetaket, selger eller utleier.





























