Bildegalleri

Terrasse.JPG
Restaurant/kurslokaler med leilighet på Raulandsfjell!
Nøkkelinfo
- Bruttoareal
- 560 m²
- Etasje
- 3.
- Eieform
- Eier (Selveier)
- Areal
- 560 m²
- Byggeår
- 1985
- Energimerking
- G - Rød
- Tomteareal
- 1 998 m²
Type lokale
Kort om eiendommen
Eiendommen ligger flott til med Raulandsfjellet rett utenfor!
Beliggenhet
Raulandsfjell har i alle år vært et opplevelsessenter i Rauland på alle årstider, hvor det har vært arrangert diverse kurs, slik som kitekurs og snøskredkurs, utflukter, selskaper, afterski med mer. Anlegget har hatt mange faste gjester og besøkende og fungerer i tillegg som et samlingssted for lokalbefolkningen på Rauland.
Raulandsfjell ligger på 700 moh. i Vinje kommune i Vest-Telemark ved foten av Hardangervidda med 1500 innbyggere, og over 5000 hytter.
Kommunen har store friluftsområder, ved Hardangervidda som det største og kanskje mest kjente. E134 over Haukeli fra Drammen til Haugesund gjør at Hardangervidda er et av de lettest tilgjengjelige høyfjellsområdene i Norge.
Rauland er kjent som en kulturbygd, og du kan oppleve tradisjonelt håndverk, kurs og musikkarrangementer.
Om sommeren kan du bli med MB Fjellvåken II på høyfjellcruise på Møsvatn, ta en dagstur til Hardangerfjorden, besøke de mange museene og utstillingene i området, delta på kurs på Raulandsakademiet, Rusle turer på merkede stier, ri på hest, sykle, fiske i klare fjellvann, jakte på småvilt og være med på mange spennende aktiviteter for store og små.
I vintersesongen kan det også fristes med ca 150 km godt preparerte langrennsløyper i variert terreng, hundekjøring, snøscooterkjøring og stort flott skisenter på Rauland Skisenter.
Innhold
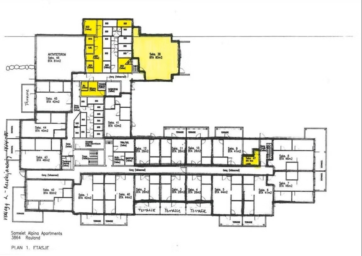
Restaurant/kjøkken/bar - Seksjon 39
Ca 222 kvm med:
Komplett restaurant innredet for for 60 personer
Komplett service/glass etc. for 100 personer
Komplett kjøkken
3 sofagrupper
Komplett bar
Stort lager med 1 frys, 1 kjøl, 1 mineralvann-/ ølkjøl.
Prisantydning kr. 2 190 000,- + omk.
Konferanserom/selskapslokale - Seksjon 50 og 52
Ca 80 kvm med:
Kan rigges til ca. 40-50 personer
Utstyr tilhørende konferanserom
Det har tidligere vært godkjent rammesøknad for oppføring av fritids leilighet.
Prisantydning kr. 790 000,- + omk.
Personal leilighet - Seksjon 36 - Hjemmelen på leiligheten står på eierne privat og vil bli ett eget skjøte.
Ca 100 kvm
Stue med kjøkken
Bad
Gang
2 soverom
2 boder
mellomrom
Prisantydning kr. 1 440 000,- + omk.
Resepsjon - Seksjon 51
Ca 11 kvm med:
Kontorinnredning
Prisantydning kr. 75 000,- + omk.
Bod - Seksjon 47
Ca 6 kvm med:
Sengetøy lager
Prisantydning kr. 60 000,- + omk.
Garasje - Seksjon 38
Ca 80 kvm med:
Komplett verksted
Det har tidligere vært godkjent rammesøknad for oppføring av fritids leilighet.
Prisantydning kr. 375 000,- + omk.
Selger ønsker å selge alt samlet for kr. 4 930 000,- + omk. men er åpen for å ta imot bud på seksjonene.
Tomt
Fellestomt i sameiet. Det meste er opparbeidet som parkeringsplass samt naturtomt.
Bebyggelse
Satt opp i betong og tre.
Standard
Gjennomgående god standard, se for øvrig tidligere takstrapport som medfølger salgsoppgaven, som en beskrivelse av bygningskroppen.
Oppvarming
Elektrisk og vedfyring.
Energimerking
Antatt rød G pga. av alder og størrelse.
Adkomst
Adkomst se kart.
Parkering
Godt med parkering på eiendommen.
Offentlig kommunikasjon
Offentlig kommunikasjon innenfor gangavstand
Diverse
Sameiet Raulandstjell består av 52 seksjonerte fritidsleiligheter og næringsseksjoner. Leilighetene eies av ulike privatpersoner. Mens næringsseksjonene eies av Raulandsfell Eiendom AS, som nå skal selges. Anlegget har ett sporty preg -egner seg for aktive gjester. I tilleg til vanlig turistvirksomhet fungerer stedet ypperlig lokalt for bl.a. bryllup, konfirmasjoner, barnedåp, bursdager og diverse festlige lag. Det kan gjøres avtaler med de private leilighetseierne om utleie av deres leiligheter.
Lokaler kan også gjøres om til leiligheter for videresalg, dette må søkes om hos kommunen.
Nyttige lenker
Nærområdet
EiendomsMegler 1 Næringsmegling
Annonseinformasjon
| FINN-kode | 444786988 |
|---|---|
| Sist endret | 14. jan. 2026 08:51 |
| Referanse | 2904260005 |
Annonsene kan være mangelfulle i forhold til lovpålagt opplysningsplikt. Før bindende avtale inngås oppfordres interessenter til å innhente komplett informasjon fra meglerforetaket, selger eller utleier.





























































