Bildegalleri

Mastvelten presentert av Tegneby og Grønnerød Landbruksmegling
Idyllisk småbruk langs Glomma med innholdsrik bygningsmasse med bla. bolighus og verkstedbygg - Kun 20 min til Elverum!
Nøkkelinfo
- Etasje
- 2.
- Eieform
- Eier (Selveier)
- Areal
- 189 m²
- Byggeår
- 1965
- Energimerking
- F - Oransje
- Tomteareal
- 64 065 m² (eiet)
Type lokale
Kort om eiendommen
Mastvelten ligger idyllisk til med strandlinje langs Glomma, helt syd i Elverum kommune. Småbruket er totalt på 64 daa, hvor 38 daa er dyrket mark og 20 daa prod. skog. Det er en innholdsrik bygningsmasse med bla. driftsbygning med 3 verkstedrom og mye lagring. Boligen har alle fasiliteter på et plan, men har mye lagring og potensiale i kjelleren. Huset har gode kvaliteter som bla. varmepumpe fra 2024 og anlegg for vannbåren oppvarming og varmtvann.
Veslestua har tidligere vært benyttet som bolig, men er i dag kun registrert som uthus. Videre finnes stabbur, redskapshus og fjøs. I fjøset er det laget en hyggelig grillplass. Glomma byr inn til både bading og fiske. I Braskereidfoss er det nærbutikk og et lite serviceutvalg. Det er kun ca. 20 minutter til Elverum og 1 time til Kongsvinger.
Inneholder
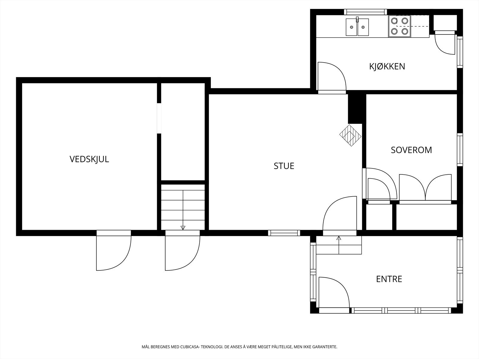
Våningshus (totalt 185 kvm BRA-i):
1. etasje (90 kvm BRA-i): Vindfang, gang, kjøkken, stue, soverom 1, soverom 2, kontor, bad og utvendig bod.
Kjeller (95 kvm BRA-i): Gang, 2 garasjer og 3 boder.
Driftsbygning (totalt 150 kvm BRA-e):
Etasje (78 kvm BRA-e): 3 verkstedsrom.
Kjeller (72 kvm BRA-e): lagerom.
Fjøs (totalt 68 kvm BRA-e):
Etasje: Grillrom, fjøsgang og 2 fjøs.
Stabbur (totalt 23 kvm BRA-e):
Etasje: Lagerrom
Veslestua (totalt 87 kvm BRA-e):
Etasje (62 kvm BRA-e): gang, kjøkken, stue, soverom, vedskjul og bod.
Kjeller (25kvm BRA-e): lagerom.
Redskapsskjul (totalt 44 kvm BRA-e):
Etasje: Redskapsskjul
Beliggenhet
Mastvelten ligger skjermet til ved Glomma, helt syd i Elverum kommune. Småbruket har et totalt areal på 64 daa, hvor 38 daa er dyrket mark og 20 daa produktiv skog. Beliggenheten er idyllisk med nærhet til flotte turområder og både fiske- og bademuligheter i Glomma.
Eiendommen har en innholdsrik bygningsmasse med bla. driftsbygning med 3 verkstedrom og mye lagring i kjelleren. Et av verkstedene er innredet med løftebukk.
Bolighuset har alle fasiliteter på et plan, men har mye lagring og potensiale i kjelleren. Huset har gode kvaliteter som bla. varmepumpe fra 2024 og anlegg for vannbåren oppvarming og varmtvann. Enkel adkomst til badstua for ekstra velvære i hverdagen.
Veslestua har tidligere vært benyttet som bolig, men er i dag kun registrert som uthus. Bygningen er innredet med kjøkken, stue og soverom. Videre finnes et enkelt stabbur, redskapshus og fjøs. I fjøset er det laget en hyggelig grillplass med utsyn mot Glomma. Et hyggelig rom som byr inn til sosiale samlinger med familie og venner.
I Braskereidfoss er det nærbutikk og et lite serviceutvalg. Det er kun ca. 20 minutter til Elverum og 1 time til Kongsvinger. Velkommen på visning!
Betalingsbetingelser
Hele kjøpesummen med omkostninger må være innbetalt og disponibel for megler på meglers klientkonto, senest på siste virkedag innen overtagelsen finner sted.
Overtagelse, tilleggsinfo.
Overtakelse etter nærmere avtale med selger. Det oppfordres til å nevne ønsket overtagelse i evt. bud.
Bebyggelse
Bolighus, byggeår 1965:
Taktekking er utført med lakkerte metallplater med taksteinform. Taktekkingen er besiktiget fra bakkeplan da det ikke er tilgang til taket som ivaretar HMS krav til sikring ved arbeider i høyden. Taktekkingen er vurdert ut fra alder og det som er mulig å vurdere fra bakkeplan. Undertak, lekter og sløyfer er vurdert ut fra alder. Gjennomføringer i taket er ikke undersøkt da besiktigelsen er gjort fra bakkeplan.
Beslag, takrenner, nedløp og vindskier er besiktiget fra bakkeplan da det ikke er tilgang til taket som ivaretar HMS krav til sikring ved arbeider i høyden. Beslag, takrenner, nedløp og vindskier er vurdert ut fra alder og det som er mulig å vurdere fra bakkeplan. Pipebeslag og takhatter er ikke undersøkt da besiktigelsen er gjort fra bakkeplan. Takrenner og nedløp er utført i metall. Det er montert takstige for adkomst til pipe.
Yttervegger oppført i ytong med utvendig påforing og isolering. Utvendig kledning er trepanel. Konstruksjonen er lukket, oppbygging, isolering og tilstand innvendig i konstruksjonen er derfor ikke vurdert. Kun synlige overflater utvendig og innvendig er vurdert.
Skråtak utført som trekonstruksjon med sperrer/takstoler. Utvendig inspeksjon utført fra bakkenivå. Innvendig inspeksjon fra luke, innebygd del av takkonstruksjon er ikke tilgjengelig for inspeksjon. Loft er kaldt loft.
Driftsbygning, byggeår 1984:
Bygget fremstår med normal standard for denne type bygg. Bygget fremstår som vedlikeholdt, men løpende vedlikehold må påregnes. Fundamentert med ringmur i murte blokker.
Etasjeskille mot 1. etasje i betongdekke og trekonstruksjon. Yttervegger i bindingsverk, utvendig kledd med metallplater. Saltakkonstruksjon i tre, utvendig tekket med metallplater. Vinduer i tre. Porter og dører i metall. Bygget har innlagt elektrisitet. Bygget er ikke tilstandsvurdert ihht Forskrift til avhendingslova og NS3600. Dette er kun en enkel beskrivelse.
Fjøs, byggeår ukjent:
Dette er et eldre bygg som er bygd med annen byggeskikk og tekniske krav enn et moderne bygg. Bygget har dermed andre krav til standard og løsninger, samt bygningsdeler som har utlevd/ tilnærmet utlevd sin brukstid ut fra stipulert levetid. Byggets alder tilsier at det kan være feil/ mangler utover det som er beskrevet i denne rapporten. Ut fra alder har bygget en standard og tilstand som forventet. Bygget fremstår med manglende vedlikehold og har behov for vedlikehold.
Yttervegger i laftet tømmer, grillstue i bindingsverk med utvendig trekledning. Saltakkonstruksjon i tre, utvendig tekket med metallplater. Vinduer og dører i tre. Tillbygg med grillstue. Bygget har enkelt opplegg for elektrisitet. Bygget er ikke tilstandsvurdert ihht Forskrift til avhendingslova og NS3600. Dette er kun en enkel beskrivelse.
Stabbur, byggeår ukjent:
Dette er et eldre bygg som er bygd med annen byggeskikk og tekniske krav enn et moderne bygg. Bygget har dermed andre krav til standard og løsninger, samt bygningsdeler som har utlevd/ tilnærmet utlevd sin brukstid ut fra stipulert levetid. Byggets alder tilsier at det kan være feil/ mangler utover det som er beskrevet i denne rapporten. Ut fra alder har bygget en standard og tilstand som forventet. Bygget fremstår med noe etterslep når det gjelder vedlikehold. Det må påregnes å ta inn igjen etterslep på vedlikehold, deretter må løpende vedlikehold påregnes.
Fundamentert med punktfundamenter. Gulvkonstruksjon i tre. Yttervegger i laftet tømmer, takspiss i bindingsverk. Utvendig tak tekket med metallplater. Dører i tre. Bygget er ikke tilstandsvurdert ihht Forskrift til avhendingslova og NS3600. Dette er kun en enkel beskrivelse.
Veslestua, byggeår 1959:
Dette er et eldre bygg som er bygd med annen byggeskikk og tekniske krav enn et moderne bygg. Bygget har dermed andre krav til standard og løsninger, samt bygningsdeler som har utlevd/ tilnærmet utlevd sin brukstid ut fra stipulert levetid. Byggets alder tilsier at det kan være feil/ mangler utover det som er beskrevet i denne rapporten. Ut fra alder har bygget en standard og tilstand som forventet. Bygget fremstår alderspreget, men som tilfredsstillende vedlikeholdt, løpende vedlikehold må påregnes.
Fundamentert med ringmur og punktfundamenter. Kjeller i betongkonstruksjon under del av bygget. Etasjeskille mot 1. etasje i betongdekke, ellers jordgulv. Yttervegger i bindingsverk, utvendig kledd med trepanel. Saltakkonstruksjon i tre, utvendig tekket med takstein. Vinduer og dører i tre. Bygget har innlagt elektrisitet. Del av bygget er innredet som bolig, dog uten bad/ toalett. Bygget er ikke tilstandsvurdert ihht Forskrift til avhendingslova og NS3600. Dette er kun en enkel beskrivelse.
Redskapsskjul, byggeår ukjent:
Redskapsskjul med enkel standard. Bygget fremstår med manglende vedlikeholdt og har behov for vedlikehold. Fundamentert med punktfundamenter. Yttervegger i bindingsverk, utvendig kledd med trepanel. Pulttakkonstruksjon i tre, utvendig tekket med metallplater. Bygget er ikke tilstandsvurdert ihht Forskrift til avhendingslova og NS3600. Dette er kun en enkel beskrivelse.
Badstue, byggeår ukjent:
Badstue i trekonstruksjon med vedfyrt badstuovn. Bygget er ikke tilstandsvurdert ihht Forskrift til avhendingslova og NS3600. Dette er kun en enkel beskrivelse.
Byggemåte
Se vedlagte tilstandsrapport på bolighuset fra Ole Harald Hoel, datert 10.11.2025, der byggemåte er nærmere beskrevet, og også gitte tilstandsgrader fremkommer.
Bolighuset har fått følgende tilstandsgrad 2:
- Utvendig > Taktekking:
Mer enn halvparten av forventet brukstid er oppbrukt på taktekking med underliggende bygningsdeler. Gjennomføringer i taket er ikke undersøkt da tilgang til taket ikke ivaretar HMS krav til arbeid i høyden.
- Utvendig > Nedløp og beslag:
Mer enn halvparten av forventet brukstid er oppbrukt på takrenner, nedløp og beslag. Beslagsløsninger i tilknytning til gjennomføringer i taket og konstruksjoner for bortledning av vann fra takflaten er ikke undersøkt da tilgang til taket ikke ivaretar HMS krav til arbeid i høyden.
- Utvendig > Veggkonstruksjon:
Det er observert glipper/ åpninger i overganger/ lufting i veggkonstruksjon der mus kan komme inn.
- Utvendig > Takkonstruksjon/Loft:
Innebygd del av takkonstruksjon er ikke undersøkt da den ikke er tilgjengelig. Takkonstruksjon er kun vurdert fra luke da loft ikke har gangbart gulv. Eldre takkonstruksjon som har utlevd mer enn halvparten av sin brukstid.
- Utvendig > Vinduer:
Det er stedvis noe skade/ slitasje på overflater vinduer. Ytre tetting rundt vinduer er ikke tilfredsstillende utført. Det er noe manglende ferdigstillelse av vinduer/ omramming.
- Utvendig > Dører:
Det er ikke nødvendig med strakstiltak i forhold til dørenes isolerglass ut fra dagens situasjon, men punktering av glassene kan oppstå som følge av alder.
- Utvendig > Balkonger, terrasser og rom under balkonger:
Det er skade/ slitasje på overflater. Rekkverket har ikke tilstrekkelig høyde til å oppfylle kravet i Teknisk forskrift.
- Innvendig > Overflater:
Det er ikke behov for strakstiltak i forhold til skade/ slitasje på overflater, men om kjøper har andre brukskrav eller krav til estetikk kreves det utbedring eller utskifting. Det er ikke behov for strakstiltak i forhold til ferdigstillelse, men om kjøper har andre brukskrav eller krav til estetikk kreves det utbedring eller utskifting.
- Innvendig > Etasjeskille/gulv mot grunn:
Det er høydeforskjell på gulv mellom rom i samme etasje. Det er registrert stedvis knirk i gulv/ etasjeskille.
- Innvendig > Radon:
Radonmålinger er ikke foretatt, heller ikke andre tiltak mot radon, eiendommen ligger i et område som i NGU Radon aktsomhetskart er definert med "moderat til lav" aktsomhetsgrad.
- Innvendig > Rom Under Terreng:
Det er påvist fukt i grunnmur/ gulv. Det er gjort visuelle observasjoner av fuktmerker på overflater.
- Innvendig > Innvendige dører:
Det er ikke behov for strakstiltak i forhold til skade/ slitasje på overflater, men om kjøper har andre brukskrav eller krav til estetikk kreves det utbedring eller utskifting.
- Tekniske installasjoner > Vannledninger:
Røroppleggets alder tilsier at innvendige vannledninger har oppbrukt mer enn halvparten av sin brukstid. Vurderingen baseres derfor på alder og at det ikke er påvist funksjonssvikt. Det er registrert noe redusert vannmengde/ trykk ved tapping av vann. Det er registrert noe manglende isolering av røropplegg.
- Tekniske installasjoner > Avløpsrør:
Røroppleggets alder tilsier at innvendige avløpsledninger har oppbrukt mer enn halvparten av sin brukstid. Vurderingen baseres derfor på alder og at det ikke er påvist funksjonssvikt. Det er ikke påvist lufting over tak av anlegget.
- Tekniske installasjoner > Andre VVS-installasjoner:
Det er ikke framlagt dokumentasjon på vannkvaliteten.
- Tomteforhold > Grunnmur og fundamenter:
Det må påregnes vedlikehold/ utbedring av grunnmur. Manglende utbedring/ vedlikehold vil kunne føre til ytterligere skade på grunnmuren.
- Tomteforhold > Terrengforhold:
Ut fra tilstand på befaringsdagen er det ikke nødvendig med strakstiltak i forhold til terrengets utførelse mot grunnmur. Det anbefales imidlertid å følge med på om vann samler seg/ renner inn mot grunnmur ved ulik nedbørsintensitet. Dersom vann samler seg mot grunnmur anbefales det å gjennomføre tiltak for å lede vann bort fra grunnmur. Vann som trekker inn mot grunnmuren medfører unødvendig fuktbelastning på grunnmur/ fuktsikring/ drenering, og øker sannsynligheten for at vann kan trenge inn i boligens innvendige areal under terreng.
- Tomteforhold > Utvendige vann- og avløpsledninger:
Utvendige vann- og avløpsledninger er nedgravde konstruksjoner som ikke er tilgjengelig for vurdering. Røroppleggets alder tilsier at vann- og avløpsledninger har oppbrukt mer enn halvparten av sin brukstid. Vurderingen baseres derfor på alder og at det ikke er påvist funksjonssvikt.
- Tomteforhold > Septiktank:
Avløpsanlegg er nedgravde konstruksjoner som ikke er tilgjengelig for vurdering. Anleggets alder tilsier at avløpsanlegg har oppbrukt mer enn halvparten av sin brukstid.
- Våtrom > 1. Etasje > Bad > Overflater vegger og himling:
Vindu er ikke utsatt for direkte vannsprut, men plasseringen i våtsone kan øke risikoen for vanninntrengning i tilstøtende konstruksjon, og kan forkorte brukstiden til vindu/tilstøtende konstruksjon. Det anbefales å vurdere tiltak for å beskytte vindu/ tilstøtende konstruksjon mot fuktpåvirkning.
- Våtrom > 1. Etasje > Bad > Overflater Gulv:
Med dagens bruk fungerer våtrommet med fallforhold som ikke er tilfredsstillende, men ved lekkasje fra installasjon i rommet vil det være stor sannsynlighet for at lekkasjevann vil trenge inn i tilstøtende konstruksjoner. Det anbefales å gjøre tiltak for å sikre at lekkasjevann går til sluk. Har kjøper andre brukskrav og/ eller preferanser kan det være nødvendig med tiltak i forhold til dette. Det anbefales å gjøre tiltak for å sikre at lekkasjevann går til sluk.
- Våtrom > 1. Etasje > Bad > Sluk, membran og tettesjikt:
Det er ikke fremvist dokumentasjon på utførelse og materialer for våtrommets tettesjikt. Våtrommets tettesjikt er innebygd og er derfor ikke mulig å vurdere uten dokumentasjon. Ut fra alder på våtrommet er mer enn halvparten av forventet brukstid oppnådd på membran/ tettesjikt. Det er ikke fremvist dokumentasjon på utførelse av gjennomføringer i våtrommets tettesjikt. Gjennomføringene er innebygd/ tildekket og er derfor ikke mulig å vurdere uten dokumentasjon. Ut fra alder på våtrommet er mer enn halvparten av forventet brukstid oppbrukt på sluk.
På bolighuset har følgende forhold ikke blitt undersøkt:
- Tomteforhold > Fuktsikring og drenering:
Drenering/ fuktsikring er nedgravde konstruksjoner som ikke er tilgjengelig for vurdering. For utvendig drenering/ fuktsikring er det ikke kjent utførelse og alder. På denne bakgrunn settes det tilstandsgrad IU (ikke undersøkt).
Kommunale avgifter
På eiendommen ble det i 2024 fakturert følgende kommunale gebyrer:
- Feiing kr. 1 072,00
- Eiendomsskatt kr. 1 578,76
- Renovasjon kr. 3 824,00
- Slam kr. 1 874,00
Merk: Eiendommen har privat avløpsanlegg med slamavskiller. Slamavskilleren tømmes hvert 2. år og ble sist tømt 21.05.2025. Gebyrene for slamtømming faktureres av SØIR IKS.
Tomten
Eiendommen har jfr. NIBIO Gårdskart 38,1 daa dyrket areal. Dyrket areal består av jord av svært god jordkvalitet. Dyrket areal er bortleid med avtale inngått 1. mars 2023. Årlig leiebeløp er kr 16 000,-.
Eiendommen har har jfr. NIBIO gårdskart skogareal med følgende bonitetsfordeling:
- Høy bonitet 3,0 daa
- Middels bonitet 17,3 daa
Skogen er ikke aktivt drevet, og har en størrelse som gjør det mest egnet til uttak av ved for eget bruk.
Oppvarming
Det er opplyst av eier at boligen har følgende kilder for oppvarming:
- Elektriske varmeovner.
- Varmepumpe fra 2024.
- Vannbåren gulvvarme i 1. etasje og gang kjeller.
- Elektriske varmekabler gang og bad 1. etasje.
- Ildsted for ved.
Personopplysningsloven
I henhold til personopplysningsloven gjør vi oppmerksom på at interessenter kan bli registrert for videre oppfølgning.
Hvitvaskingsreglene
Eiendomsmeglere er underlagt Lov om tiltak mot hvitvasking og terrorfinansiering (hvitvaskingsloven) - L01.06.2018 nr. 23. Det følger av loven at megler bl.a. har plikt til å gjennomføre kundekontroll. I de tilfeller hvor kunden er juridisk person skal megler også kartlegge hvem som er reelle rettighetshavere. Med reelle rettighetshavere menes fysiske personer som eier eller kontrollerer mer enn 25% av eierandelene i selskapet. Partene må bidra til at kundekontrollen lar seg gjennomføre på en hensiktsmessig måte. Megler plikter å rapportere mistenkelige transaksjoner til Økokrim. Ved slik rapportering vil ikke partene blir varslet.
Lovverk
Eiendommen skal overleveres kjøper i tråd med det som er avtalt. Det er viktig at kjøper setter seg grundig inn i alle salgsdokumentene, herunder salgsoppgave, tilstandsrapport og selgers egenerklæring. Kjøper anses kjent med forhold som er tydelig beskrevet i salgsdokumentene. Forhold som er beskrevet i salgsdokumentene kan ikke påberopes som mangler. Dette gjelder uavhengig av om kjøper har lest dokumentene. Alle interessenter oppfordres til å undersøke eiendommen nøye, gjerne sammen med fagkyndig før bud inngis. Kjøper som velger å kjøpe usett kan ikke gjøre gjeldende som mangel noe han burde blitt kjent med ved undersøkelsen.
Dersom det er behov for avklaringer, anbefaler vi at kjøper rådfører seg med eiendomsmegler eller en bygningssakyndig før det legges inn bud. Hvis eiendommen ikke er i samsvar med det kjøperen må kunne forvente ut ifra alder, type og synlig tilstand, kan det være en mangel. Det samme gjelder hvis det er holdt tilbake eller gitt uriktige opplysninger om eiendommen. Dette gjelder likevel bare dersom man kan gå ut ifra at det virket inn på avtalen at opplysningen ikke ble gitt eller at feil opplysninger ikke ble rettet i tide på en tydelig måte. En bolig som har blitt brukt i en viss tid, har vanligvis blitt utsatt for slitasje og skader kan ha oppstått. Slik bruksslitasje må kjøper regne med, og det kan avdekkes enkelte forhold etter overtakelse som nødvendiggjør utbedringer. Normal slitasje og skader som nødvendiggjør utbedring, er innenfor hva kjøper må forvente og vil ikke utgjøre en mangel.
Boligen kan ha en mangel dersom det er avvik mellom opplyst og faktisk areal, forutsatt at avviket er på 2% eller mer og minimum 1 kvm. Ved beregning av et eventuelt prisavslag eller erstatning må kjøper selv dekke tap/kostnader opptil et beløp på kr 10 000 (egenandel).
Dersom kjøper ikke er forbruker selges eiendommen "som den er", og selgers ansvar er da begrenset jf. avhl. § 3-9, 1. ledd 2. pktm. Avhendingsloven § 3-3 (2) fravikes, og hvorvidt en innendørs arealsvikt karakteriseres som en mangel vurderes etter avhendingsloven § 3-8. Informasjon om kjøpers undersøkelsesplikt, herunder oppfordringen om å undersøke eiendommen nøye, gjelder også for kjøpere som ikke anses som forbrukere. Med forbrukerkjøp menes kjøp av eiendom når kjøperen er en fysisk person som ikke hovedsakelig handler som ledd i næringsvirksomhet."
Diverse
- Ved overtakelse av eiendommen blir våningshuset ryddet og rengjort. Øvrige bygninger og utearealer overtas slik det fremstår på visning og vil ikke bli ryddet eller rengjort ut over dette. Selger forbeholder seg retten til å ta med seg det han selv ønsker av Løsøre, maskiner, redskaper og antikviteter. Dette gjelder også frittstående hvitevarer.
Regulering
Eiendommen er omfattet av Kommuneplanens arealdel (KPL 2011-2022, ikrafttredelse: 22.06.2011). Eiendommens areal er i kommuneplanens arealdel avsatt til LNF-område.
Kommunen arbeider med en ny arealdel: Kommuneplanens arealdel 2025 - 2036. Status: Planforslag. Besøk kommunens nettsider for ytterligere informasjon.
Ferdigattest
Det foreligger ferdigmelding for takforlengelse inkl. ny kjellernedgang som tilbygg til bolig, datert 04.04.2013. Det foreligger bygningstegninger fra takforlengelsen datert 12.07.2009.
Det foreligger ikke godkjente tegninger, midlertidig brukstillatelse eller ferdigattester på kjelleretasjen, øvrig bygningsmasse og/eller tiltak. Til info utstedes det ikke lengre ferdigattest for tiltak det er søkt om før 1. januar 1998.
Kjøper påtar seg risikoen for både fremtidig, fortsatt bruk og eventuelle pålegg, for alle ovennevnte forhold, og herunder risikoen for om bruken lar seg godkjenne, og alle kostnader forbundet med dette. Det kan være krav i lov, forskrift og planverk som ikke er eller kan oppfylles, i så fall vil kommunen kunne kreve at rommet/ rommene/bygningsdelene settes tilbake til opprinnelig godkjent stand.
Vei, vann og avløp
Eiendommen har adkomst fra Solørvegen via privat veg.
Eiendommen har privat vannforsyning fra brønn.
Eiendommen har privat avløpsanlegg.
Eiendommens avløpsløsning tilfredsstiller ikke gjeldende rensekrav og det vil komme pålegg tilknyttet avløpsløsningen. Eiendommen vil få pålegg om enten oppgradering av det private avløpsanlegget eller tilknytning til offentlig avløp dersom dette er mulig. Alt arbeid med det private avløpsanlegget er huseierens ansvar, og huseieren må dekke alle kostnadene for dette.
Servitutter
På eiendommen er det tinglyst følgende heftelser og rettigheter som følger eiendommens matrikkel ved overskjøting til ny hjemmelshaver:
3420/73/6:
02.11.1908 - Dokumentnr: 900115 - Erklæring/avtale. Ekspropriasjonsforr./konduktørforr. vedrørende NSB. Gjelder denne registerenheten med flere.
01.08.1910 - Dokumentnr: 900132 - Erklæring/avtale. NSBs betingelser vedtas. Ang./bruk av planovergang.
11.02.1977 - Dokumentnr: 940 - Erklæring/avtale. Rettighetshaver: HEDMARK KRAFTVERK for erverv av fallrettigheter. Vedr. utbygging av Braskereidfoss i GLOMMA. Gjelder denne registerenheten med flere.
04.11.1977 - Dokumentnr: 7502 - Erklæring/avtale. NSBs betingelser vedtas. Vedr. bruk/sløyfing av div. planoverganger.
29.11.1979 - Dokumentnr: 9424 - Skjønn. Sak nr. 2/1977B. Med flere bestemmelser. Gjelder denne registerenheten med flere.
06.12.2007 - Dokumentnr: 1005680 - Jordskifte. Sak: 0400-2007-0010 Mastvelten. Gjelder denne registerenheten med flere.
Rettigheter i annen eiendom:
06.12.2007 - Dokumentnr: 1005680 - Bestemmelse om veg. Rettighet hefter i: Knr:3420 Gnr:73 Bnr:34. Sak: 0400-2007-0010 Mastvelten
10.01.2023 - Dokumentnr: 31727 - Erklæring/avtale. Rettighet hefter i: Knr:3420 Gnr:235 Bnr:2 Kan ikke slettes uten samtykke fra: Bane Nor Sf, Org.nr: 917 082 308 Bestemmelse om bygging og bruk av vei og nedleggelse av planovergang Solørbanen KM 174,956
10.01.2023 - Dokumentnr: 31727 - Erklæring/avtale
Rettighet hefter i: Knr:3420 Gnr:73 Bnr:7
Rettighet hefter i: Knr:3420 Gnr:73 Bnr:25
Rettighet hefter i: Knr:3420 Gnr:73 Bnr:33
Kan ikke slettes uten samtykke fra: Bane Nor Sf, Org.nr: 917 082 308. Bestemmelse om bygging og bruk av vei og nedleggelse av planovergang. Solørbanen KM 174,956. Gjelder denne registerenheten med flere
Ansvarlig megler
Anne Sofie Strekerud
Nyttige lenker
Nærområdet

TEGNEBY & GRØNNERØD LANDBRUKSMEGLING AS
Annonseinformasjon
| FINN-kode | 443574432 |
|---|---|
| Sist endret | 16. jan. 2026 07:15 |
| Referanse | GAR30.2584 |
Annonsene kan være mangelfulle i forhold til lovpålagt opplysningsplikt. Før bindende avtale inngås oppfordres interessenter til å innhente komplett informasjon fra meglerforetaket, selger eller utleier.








































