Bildegalleri

Velkommen til sørøsthjørnet av Pilar Bjerke – her ligger mulighetene åpne!
Bjerke Travbane: Næringsseksjon med stort potensiale selges rimelig!
Nøkkelinfo
- Etasje
- 1.
- Areal
- 232 m²
- Overtakelse
- Q3 - 2026
Type lokale
Visning
Ta kontakt for å avtale visning.Om eiendommen
Bjerke er i en massiv, men tydelig transformasjonsfase, der området rundt Bjerke Travbane utvikles til en helt ny bydel med ca. 1.500 nye boliger, handel og møteplasser! Se mer her: (https://www.selvaagbolig.no/oslo/bjerke/torgbyen/)
Selvaag Bolig, sammen med andre aktører, har store planlagte prosjekter i området, som vil gi økt befolkningstetthet, kjøpekraft og etterspørsel etter lokal næring. Kombinasjonen av lav nybyggproduksjon i Oslo og langsiktig byutvikling gjør Bjerke attraktivt for investering i næringseiendom, med potensial for stabil etterspørsel og leieprisvekst over tid.
Denne næringsseksjonen står ferdig som rålokale Q3-2026, noe som gir stort potensiale til å skreddersy arealet sammen med potensielle leietaker innenfor følgende segmenter butikk, klinikk, kontor eller servering.
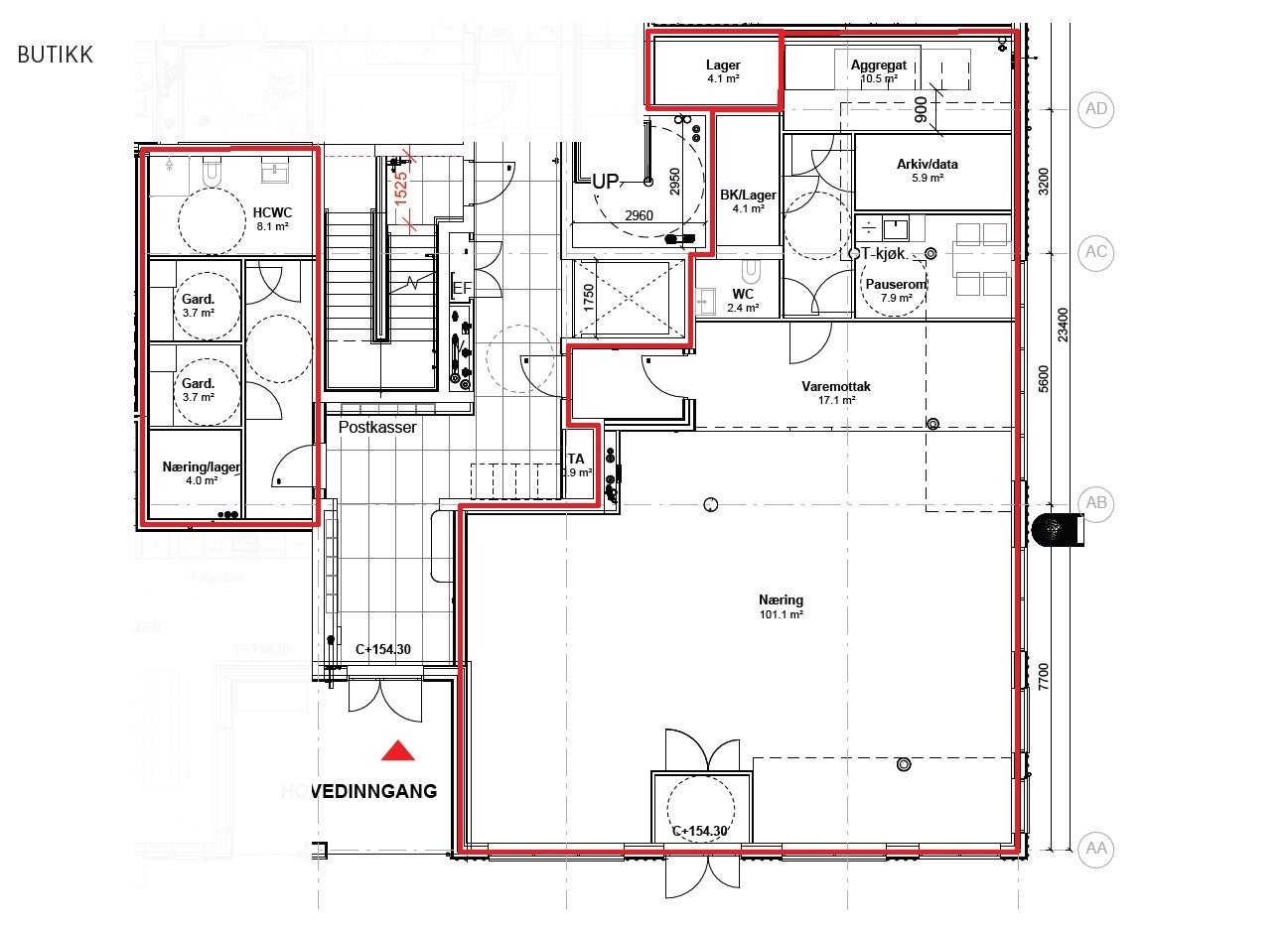
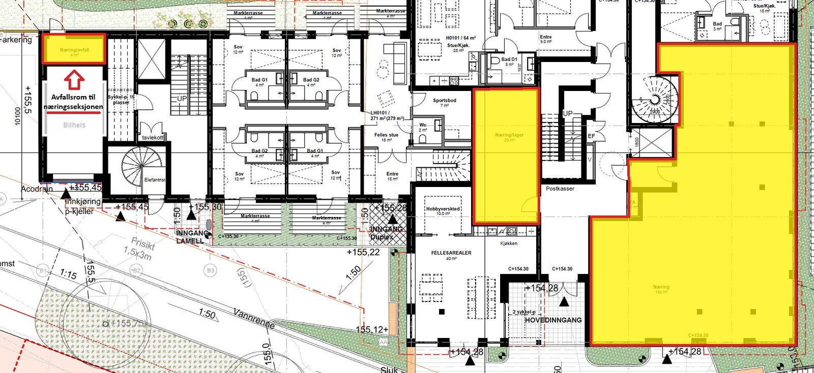
Med totalt 232 kvm BTA tilbyr seksjonen en funksjonell fordeling mellom
- 191 kvm salgsareal,
- 33 kvm lager, og
- 8 kvm eget søppelrom.
Plasseringen i byggets sørøstre hjørne gir naturlig eksponering, god synlighet og enkel adkomst for kunder og besøkende. Et nytt, offentlig tilgjengelig torg foran inngangspartiet skaper et innbydende møtepunkt, og gir rom for profileringsmuligheter, kundemottak eller aktivitet utenfor lokalet. Parallelt går høytrafikerte Refstadveien, et viktig knutepunkt mellom Trondheimsveien og Østre Aker vei.
Tidslinje
- Byggestart: 1 kvartal 2025
- Forventet overlevering næringsseksjon 3. kvartal 2026
- Tidlig tilgang gis for planleging og prosjektering
Beliggenhet
Rett ved alt du trenger:
- Busstopp (Årvollveien) – ca. 5 min gange med flere linjer mot sentrum og rundt i byen.
- Refstadsvingen holdeplass – ca. 6 min gange med god busstilgang.
- Bjerke busstopp – ca. 10–11 min gange med ruter til sentrum og øvrige Oslo?områder.
- T-bane (Risløkka) – ca. 15 min gange til T-banen med direkte forbindelse mot sentrum.
- Bjerke Travbane – kort vei til lokal attraksjon og møteplass.
- Dagligvare, service og små handel i nærområdet, typisk langs Refstadveien og lokalt handelstilbud.
Innhold
For komplett informasjon om salgsobjektet, skal interessenter / budgivere referere til salgsprospektet i sin helhet når de evaluerer et mulig kjøp, da dette inkluderer viktig informasjon om salgsobjektet, salgsprosessen, fravikelser fra loven, etc.
Følgende presiseres likevel ifm. finn annonsen
- Salget struktureres i utgangspunktet som salg av eiendomsselskap
- Bud skal baseres på brutto eiendomsverdi
- Aksjepris beregnes iht markedspraksis (meglerstandarden)
- Ved direkte salg av Eiendommen selges den som den er (as is) iht markedspraksis (meglerstandarden)
- Det forutsettes at salget gjøres mellom profesjonelle parter (næringstransaksjon)
- Selger forbeholder seg retten til å gå i forhandlinger og/eller akseptere bud når som helst, uten å måtte opplyse om dette til evt. andre budgivere og/eller interessenter
- Selger forbeholder seg retten til å forkaste ett, flere, og/eller samtlige bud, herunder evt. velge å ikke gjennomføre et salg
- Megler i samråd med Selger forbeholder seg retten til å fastsette en budfrist, utvide fristen for budgivning, tilrettelegge for nye budrunder, og/eller tilrettelegge for en lukket budrunde
- Det gjøres oppmerksom på at lover & regler er fraveket på flere punkter
- Særskilte bestemmelser om budgivning gitt i medhold av eiendomsmeglingsloven § 6-10 kommer ikke til anvendelse ved utførelsen av oppdraget
- Iht. eiendomsmeglingsloven § 1-3 og eiendomsmeglingsforskriften § 1-2 kan loven fravikes utenfor forbrukerforhold. Følgende av lovens bestemmelser fravikes: § 4-4, § 6-2, § 6-4, § 6-5, § 6-7, § 6-8, § 6-9, § 6-10, kapittel 7 og § 8-8. Tilhørende bestemmelser i eiendomsmeglerforskriften er også tilsvarende fraveket. Videre fravikes forskriftens krav til utlevering av budjournal iht. emgll. § 1-4 tredje og fjerde ledd og forskriftens § 1-2 og § 1-4, dvs. plikten om utlevering av budjournal etter forskriftens § 6-4
- Bestemmelsene om budgivning i forskrift om eiendomsmegling § 6-3 gjelder ikke.
- Det tas forbehold om feil, oppdateringer, endringer, korrigeringer, etc
- Enhver transaksjon skal spesifikt godkjennes av Selger’s styre
For komplett informasjon, henvises interessenter til salgsprospektet samt egne undersøkelser. Ved konflikt mellom finn annonse og salgsprospekt, skal salgsprospektet være tellende.
Nærområdet

Urban Jungle Brokerage AS
Annonseinformasjon
| FINN-kode | 441555939 |
|---|---|
| Sist endret | 15. des. 2025 12:10 |
| Referanse | Pilar Bjerke - Hjørnet |
Annonsene kan være mangelfulle i forhold til lovpålagt opplysningsplikt. Før bindende avtale inngås oppfordres interessenter til å innhente komplett informasjon fra meglerforetaket, selger eller utleier.









