Bildegalleri

Velkommen til Ringgata 178, presentert av Inger Helene Simensen. Foto: Pil Branding (Kim Rognmo).
Kombinasjonsbygg med næringslokale og leilighet m.m. Garasje. Utleid næringslokale.
Nøkkelinfo
- Eieform
- Eier (Selveier)
- Areal
- 607 m²
- Byggeår
- 1961
- Energimerking
- D - Oransje
- Tomteareal
- 851 m² (eiet)
Type lokale
Fasiliteter
Informasjon om eiendommen
Beskrivelse
Kombinasjonsbygg fra 1961 med næringslokale i 1. etasje og leilighet i 2. etasje.
Bygget går over tre etasjer og er i dag innredet med fire boenheter og et bofelleskap med tre soverom. Det gjøres oppmerksom på at det er kun leiligheten i 2. etasje som er formelt godkjent. Leilighetene i 1. etasje og underetasjen er ikke bruksendret hos kommunen.
P.t. er det kun en leilighet i 1. etasje som er leid ut. Denne er leid ut for kr. 6 500,- pr. mnd. inkl. strøm. Leieforholdet løper ut 31.07.2026. Leieavtale spesifiserer 3 måneder oppsigelsestid.
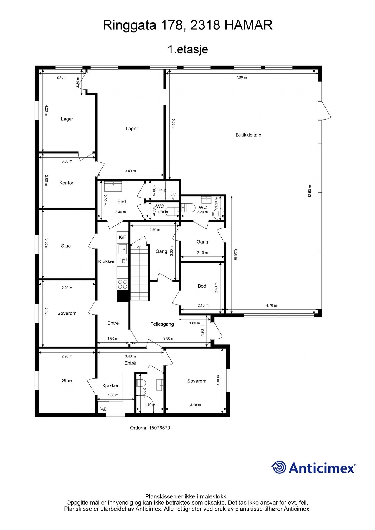
Næringslokalet ligger i 1. etasje og består av butikklokale, kontor, lagre og toalettrom.
Lokalet er i dag utleid til Starframe Discgolf. Lokalet er leid ut for kr. 9 000,- eks mva. pr. mnd. Kontraktens opprinnelige leieperiode er over. Det som gjelder nå er et ikke-skriftlig, faktisk etablert leieforhold basert på leietakers fortsatte bruk, betaling av leie og utleiers aksept av bruken og betalingen. I grunnen et tidsubestemt leieforhold. Leietaker kan sies opp etter rimelig frist og leietaker kan i utgangspunktet si opp selv, med tilsvarende rimelig frist. Kjøper overtar ansvar og risiko knyttet til tidsubestemte avtaler. Kjøper må selv forsøke å reforhandle disse. Konferer megler ved spørsmål.
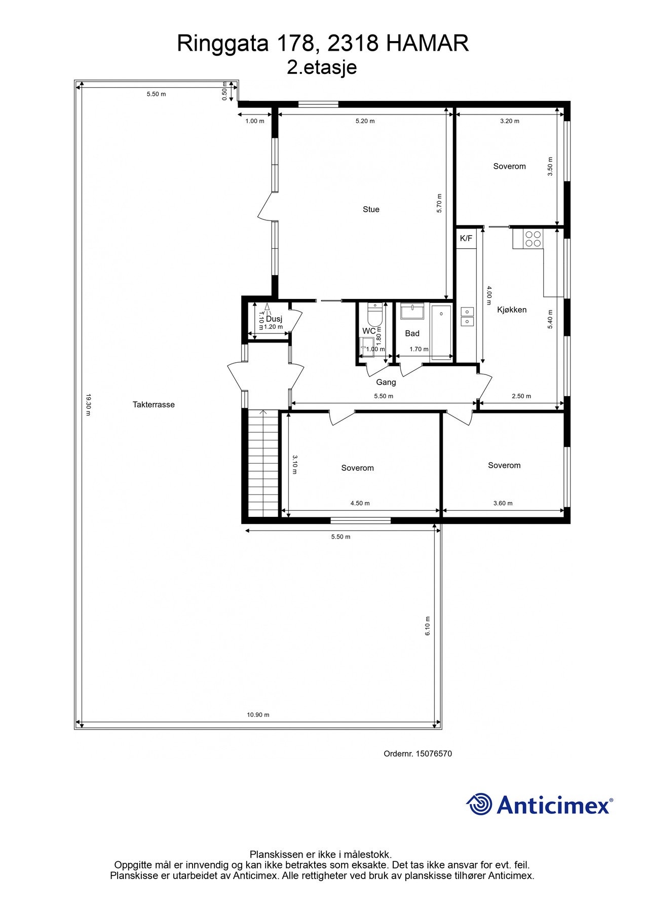
Leiligheten i 2. etasje har adkomst via fellesgang på fremsiden av bygget. Leiligheten har stue, adskilt kjøkken, tre soverom, bad, toalettrom og dusjrom. Fra stuen og fellesgang er det utgang til stor takterrasse på 146 m2.
Det som i dag fremstår som en leiligheter i 1. etasje har adkomst fra samme fellesgang som leiligheten i 2. etasje. Begge leilighetene har stue, kjøkken, soverom og bad. Den ene leiligheten har i tillegg eget toalettrom og dusjrom med adkomst fra badet.
Det som i dag fremstår som en leilighet i underetasjen har utvendig adkomst fra baksiden av bygget. Leiligheten har en åpen stue- og kjøkkenløsning, soverom, bad og toalettrom.
Det som i dag fremstår som et bofelleskap i underetasjen har utvendig adkomst og via butikklokalets lagerområde. Bofelleskapet har en todelt stue, kjøkken, tre soverom, toalettrom, dusjrom og vaskerom.
Inneholder
Enebolig:
1. etasje: 108 m² BRA / 108 m² BRA-i
2. etasje: 114 m² BRA / 114 m² BRA-i
Underetasje: 232 m² BRA / 232 m² BRA-i
Følgende rom er inkludert i BRA-i:
1. etasje: 2 entreer, 2 soverom, 2 bad, fellesgang, gang, bod, toalettrom, dusjrom, 2 kjøkken og 2 stuer.
2. etasje: Gang, dusjrom, toalettrom, bad, 3 soverom, kjøkken og stue.
Underetasje: Fyrrom, 2 ganger, 4 soverom, 3 toalettrom, vaskerom, dusjrom, bod, hobbyrom, 2 entrer, 2 stuer, kjøkken og stue med åpen kjøkkenløsning.
Næringsdel 1. etasje:
1. etasje: 128 m² BRA / 128 m² BRA-i
Følgende rom er inkludert i BRA-i:
1. etasje: Gang, toalettrom, 2 lager, kontor og butikklokale.
Garasje:
25 m² BRA / 25 m² BRA-e
Følgende rom er inkludert i BRA-e:
1. etasje: Garasje og bod
I tillegg har boligen følgende TBA (terrasse- og balkongareal):
146 m²
Vedlagte plantegninger er ikke målbare, og oppgitte arealer er hentet fra vedlagte tilstandsrapport. Arealene er beregnet og angitt med utgangspunkt i NS 3940:23. Eventuelle betegnelser på rom er angitt ut fra den faktiske bruken, uavhengig av hva som er godkjent hos bygningsmyndighetene.
Areal
BRA: 607 m²
BRA-i: 582 m²
BRA-e: 25 m²
Byggemåte
Selger har i forbindelse med salget innhentet en tilstandsrapport fra Anticimex, datert 25.10.2025. Rapporten er en teknisk gjennomgang og angir eventuelle byggetekniske avvik, samt kostnadsoverslag for eventuelle oppgraderinger. Tilstandsrapporten og selgers egenerklæring er en del av denne salgsoppgaven og må leses nøye av interessenter før det legges inn bud. Kjøper anses kjent med de opplysninger som tydelig gis i en offentlig godkjent tilstandsrapport, og kan følgelig ikke reklamere på belyste forhold. Vi vil gjøre spesielt oppmerksom på viktigheten av å lese igjennom rapportens TGIU (tilstandsgrad ikke undersøkt), samt TG2 og TG3 som angir avvik fra normal slitasje, høy alder, bygningsdel som må utbedres, og lignende. Det følgende er hentet fra den bygningssakkyndiges beskrivelse av boligen:
Grunnmur og bærende konstruksjoner i hovedsak av betong. Fundamentert på ukjent byggegrunn. Bygget er oppført med støpt gulv mot grunn. Yttervegger av betong/trekonstruksjoner. Utvendige fasader av murpuss samt av liggende og stående trekledning. Etasjeskillere av betong og trekonstruksjoner. Saltak i trekonstruksjoner. Yttertak er utvendig tekket med metallplater. Boligen og leilighetene har entrédør i forskjellig utførelse. Vinduer og balkongdør med karmer av tre, og to-lags glass. Balkongdør med karmer av tre, og to-lags glass. Ventilasjon med naturlig tilluft kombinert med stedvis mekanisk avtrekk.
Boligen har fått følgende TG 3:
- Dusjrom bofellesskap underetasje: Helhetsvurdering.
- Kjøkken - Bofellesskap underetasje: Helhetsvurdering.
- Toalettrom - Fellesareal underetasje: Helhetsvurdering.
- Rom under terreng (kjeller, underetasje, sokkeletasje) - Leilighet underetasje: Underetasjen har vegger under bakkenivå som er utlektet fra grunnmuren. Det er foretatt hulltaking og utført fuktmåling med egnet instrument i utlektet veggkonstruksjon. Det ble registrert høye fuktverdier. Forholdet tyder på fuktskader i konstruksjonen. Relativ fuktighet ble målt til 90,2 prosent, ved 13,6 celsius. Piggmåling: 29,6 vektprosent. Hulltaking i forbindelse med fuktmåling viser at konstruksjonen har en oppbygging som vurderes til å være en risikokonstruksjon. Det observeres bruk av papp i veggkonstruksjonen, noe som erfaringsmessig er forbundet med forhøyet risiko for muggdannelser. Eksakt årsak er ikke kjent, men svakheter med dreneringen vurderes til å være en medvirkende årsak. Skjulte eller bakenforliggende skader er høyst sannsynlig oppstått. Tilstanden inne i resterende deler av konstruksjonen er ikke kjent.
- Vinduer og dører: Det er observert høy slitasjegrad og skader på enkelte vinduer. Balkongdør i felles areal 2.etasje: Døren har ut og innvendig slitasje og tegn til råteskader.
- Balkoner, terrasser, veranda etc.: Takterrassen og rekkverk har synlige symptomer på slitasje/elde. Rekkverkshøyden er under 1,0 meter. Basert på ovennevnte forhold oppfyller ikke balkongen dagens krav til sikkerhet.
- Drenering: Helhetsvurdering.
Boligen har fått følgende TG 2:
- Bad i leilighet 2. etasje: Tilluftsspalte er ikke etablert. Se punkt "Vannrør" under avsnitt om tekniske anlegg. Eksakt alder på tettesjiktet er ikke kjent. Tettesjiktet er likevel vurdert til å ha en alder som tilsier at det er grunn til å varsle om risiko for svekket tettefunksjon eller lignende forhold som utvikles over tid. Tettesjiktets eksakte tilstand/eventuelle restelevtid er ikke kjent. Grunnet plassering av badekar er det ikke mulig å foreta undersøkelse av sluket. Utførelse vedrørende tettedetaljer /tilstand er ukjent.
- Dusjrom i leilighet 2. etasje: Helhetsvurdering.
- Bad i leilighet nærmest garasje 1. etasje: Tilluftsspalte er ikke etablert. Drenering fra innebygget toalettsisterne er ikke registrert. Det kan derfor ikke verifiseres om vanninstallasjonen er utført slik at eventuelt lekasjevann raskt blir synliggjort. Fallforhold utenfor sluksonen vurderes til å ikke være tilstrekkelig for å lede eventuelt lekkasjevann til sluk, og det er ikke påvist at tettesjiktet har tilstrekkelig oppkant ved dørterskel. Overgang mellom sluk og membran er uoversiktlig. Det kan derfor ikke verifiseres at utførelsen er korrekt, eller at lekkasjesikkerheten er ivaretatt.
- Bad med dusjrom i leilighet 1. etasje: Helhetsvurdering.
- Bad leilighet i underetasje: Dør uheldig plassert nær våtsone. Det registreres moderate tegn til bomlyd (tegn til hulrom) under enkelte gulvfliser. Det observeres stedvise sprekker/riss i enkelte flisfuger. Lokalfall i sluksonen er mindre enn hva som ideelt anbefales. Det vurderes at fallforholdet ikke fører til tilfredsstillende avrenning av bruksvannet i nedslagsfeltet. Fallforhold utenfor sluksonen vurderes til å ikke være tilstrekkelig for å lede eventuelt lekkasjevann til sluk, og det er ikke påvist at tettesjiktet har tilstrekkelig oppkant ved dørterskel. Ved en eventuell lekkasje er det fare for at vann kan renne ut i tilliggende arealer og forårsaker skader.
- Vaskerom i bofellesskap underetasje: Helhetsvurdering.
- Kjøkken i leilighet 2. etasje: Helhetsvurdering.
- Kjøkken i leilighet nærmest garasje 1. etasje: Helhetsvurdering.
- Kjøkken i leilighet 1. etasje: Helhetsvurdering.
- Kjøkken i leilighet underetasje: Vannrørene er ikke plugget mot varerør. Det er ikke montert automatisk lekasjestopper for å begrense eventuelle lekkasjer fra vanninstallasjoner, noe som strider imot kravet for bygningsdelen. Kjøkkeninnredningen og benkeplate bærer preg av alder/slitasje, men tiltak vurderes ikke som nødvendig. Det er ikke etablert komfyrvakt på kjøkkenet, noe som strider imot kravet for bygningsdelen. Utførelsen av kjøkkenet bærer preg av egeninnsats, med den risiko dette innebærer.
- Toalettrom i leilighet 2. etasje: Tilluftsspalte er ikke etablert. Vannrør Se punkt "Vannrør" under avsnitt om teknisk anlegg.
- Toalettrom i leilighet 1. etasje: Helhetsvurdering.
- Toalettrom i leilighet underetasje: Ingen, eller lite ventilasjon av rommet. Vannrør Vannrørene er ikke plugget mot varerør.
- Toalettrom i bofelleskap underetasje: Helhetsvurdering.
- Øvrige rom - leilighet i 2. etasje: Helhetsvurdering.
- Øvrige rom - Leilighet nærmest garasje i 1. etasje: Helhetsvurdering.
- Øvrige rom - Leilighet i 1. etasje: Helhetsvurdering.
- Øvrige rom - Fellesareal i 1.- og 2. etasje: Helhetsvurdering.
- Rom under terreng (kjeller, underetasje, sokkeletasje) - leilighet underetasje: Lite ventilasjon i etasjen. Det er ukjent om ventilasjon/tilluft er tilstrekkelig. Gulvets overflatemateriale er slitt/aldringspreget. Gulvets overflatemateriale har tegn til fuktskader (soverom og innenfor ytterdør stue).
- Rom under terreng (kjeller, underetasje, sokkeletasje) - Bofelleskap underetasje: Helhetsvurdering.
- Rom under terreng (kjeller, underetasje, sokkeletasje) - Fellesareal underetasje: Helhetsvurdering.
- Loft - uinnredet / råloft - Kaldtloft over leilighet 2.etasje: Det er ikke etablert dampsperre mellom varm og kald sone. Det registreres uisolerte ventilasjonsrør. Forholdet inne i røret er ikke kjent.
- Innvendige trapper - Trapp i felles areal mellom 1.etasje og 2.etasje: Trappen er slitt/aldringspreget, men forholdet vurderes til å være av estetisk karakter. Trappen har ikke håndløper på begge sider. Basert på ovennevnte forhold oppfyller ikke trappen dagens krav til sikkerhet.
- Innvendige trapper - Trapp i felles areal mellom 1.etasje og underetasje: Trappen er slitt/aldringspreget, men forholdet vurderes til å være av estetisk karakter. Trappen har ikke håndløper på begge sider. Trappen har stedvis fri ganghøyde lavere enn 2,0 m. Basert på ovennevnte forhold oppfyller ikke trappen dagens krav til sikkerhet.
- Etasjeskiller - Leilighet underetasje: Det er registrert skjevheter i stue og i stue (motsatt retning). Forskjellen mellom høyeste og laveste punkt er målt til 41 mm i stue, og 22 mm i stue (motsatt retning). Målinger er gjort på tilfeldig steder.
- Etasjeskiller - Bofellesskap og hobbyrom underetasje: Det er registrert skjevheter i hobbyrom, hvor forskjellen mellom høyeste og laveste punkt er målt til 61 mm. Målinger er gjort på tilfeldig steder.
- Etasjeskiller - 1. etasje: Det er registrert skjevheter i felles gang, hvor forskjellen mellom høyeste og laveste punkt er målt til 20 mm. Målinger er gjort på tilfeldig steder.
- Etasjeskiller - 2. etasje: Det er registrert skjevheter i stue og i stue (motsatt retning). Forskjellen mellom høyeste og laveste punkt er målt til 17 mm i stue, og 31 mm i stue (motsatt retning). Målinger er gjort på tilfeldig steder.
- Tekniske anlegg, VVS anlegg (Sjekkpunkter utover det som er inkludert i andre rom): Vannrør av kobber er vurdert til å ha en alder som tilsier at anbefalt brukstid er passert. På bakgrunn av alderen er det grunn til å varsle om risiko for skjulte avvik, svekket funksjon, usikker restlevetid eller lignende forhold som utvikles over tid. Enkelte avløpsrør er vurdert til å ha en alder som tilsier at anbefalt brukstid er passert. På bakgrunn av alderen er det grunn til å varsle om risiko for skjulte avvik, svekket funksjon, usikker restlevetid eller lignende forhold som utvikles over tid. Radiatorer (med tilhørende røropplegg) er vurdert til å ha en alder som tilsier at anbefalt brukstid er passert. Enkelte avløpsrør er vurdert til å ha en alder som tilsier at anbefalt brukstid er passert. På bakgrunn av alderen er det grunn til å varsle om risiko for skjulte avvik, svekket funksjon, usikker restlevetid eller lignende forhold som utvikles over tid.
- Radon: Det er ikke foretatt radonmåling i boligen og verdiene er derfor ukjent.
- Elektrisk anlegg: Huseier er ikke tilgjengelig for å besvare spørsmål som gjelder for det elektriske anlegget. Forholdet medfører at avhendingslovens minstekrav til undersøkelser ikke har blitt gjennomført og kan medføre at mulige relevante opplysninger vedrørende bruk, funksjon og tilstand ikke er blitt gjort oppmerksom på. Det er ikke fremlagt samsvarserklæring på det elektriske anlegget. Med bakgrunn i TG2 bør det gjennomføres en utvidet el-kontroll av en kvalifisert elektrofaglig person.
- Yttervegger inkl. fasader og konstruksjon: Helhetsvurdering.
- Dører og vinduer: Vinduer generelt bærer preg av høy slitasjegrad. Balkongdør i stue 2. etasje har utvendig slitasje og tegn til oppfukting. Ytterdør til felles areal 1.etasje bærer preg av slitasje og elde.
- Yttertak: Helhetsvurdering.
- Grunnmur, fundamenter: Skråriss/vertikalriss observert på grunnmur. Risset er med høy sannsynlighet oppstått for lenge siden, men for å bekrefte eller avkrefte om det fortsatt er utvikling bør forholdet holdes under oppsikt. Avskalling av maling/murpuss observeres stedvis på grunnmuren.
- Stikkledninger og tanker: Utvendige vann- og avløpsrør har ukjent alder/tilstand. Anbefalt brukstid kan være passert.
- Frittstående byggverk - Garasje: Helhetsvurdering.
Ovennevnte punkter er på ingen måte utfyllende. For ytterligere informasjon om byggemåte, årsak bak tilstandsgrader, konsekvens og anslag på eventuelle utbedringskostnader, se tilstandsrapport som ligger vedlagt. Interessenter oppfordres til å kontakte bygningssakyndig ved eventuelle bygningstekniske spørsmål.
Tomt
eiet 851,70 kvm
Tomtestørrelse/-areal er hentet fra digitalt kartverk. Det gjøres oppmerksom på at denne type kart kan være noe upresise og at man dermed kan få avvik ved en eventuell fremtidig oppmåling. Mangel grunnet arealsvikt, jfr. avhendingslovas § 3-3, kan derfor ikke påberopes.
Tomtegrensene er registrert som mindre nøyaktig mot sør, vest og øst.
Parkering
Parkering i garasje eller på parkeringsplass.
Elektrisk anlegg
Sikringsskap med automatsikringer plassert i gang til trapp mellom 1. etasje og underetasje. Boligen har hovedsakelig åpent elektrisk anlegg.
Det gjøres oppmerksom på at en tilstandsrapport kun inneholder en forenklet kontroll av det elektriske anlegget.
Energimerking
Energiattest med energimerke: Oransje D
Oppvarming
Oppvarming med radiatorer tilkoblet varmesentral kombinert med elektrisk oppvarming. Åpen peis i stue i leilighet-underetasje.
Eiendom og eierform
Ringgata 178, 2318 HAMAR,
Fast
Diverse
Eiendommen selges som den er uten ytterligere utvask eller rydding.
Det er innhentet opplysninger fra Brann- og Feiervesenet. Det ble sist gjennomført feiing 01.09.2009. Det ble sist gjennomført tilsyn 07.04.2022, uten avvik. Det ble gitt følgende anmerkninger:
- Det er veldig dårlig med røykvarslere i de forskjellige hyblene, dette må det være bedre rutinekontroller for. Samt utbytting av slukkeutstyr.
- 3 sider av elementskorstein kledd inn på kjøkken i leilighet 1. etg.
- Murt peis er ikke tilfredsstillende oppført. I peis skal det mellom brennbart og ildrommet være murverk på minst 471 mm, eller 350 mm ved bruk av egnet ubrennbar plate med brannmotstand 0,004m2kw2.
Det tas forbehold om feil/mangler ved eventuelle nye installasjoner og/eller forskriftskrav trådt i kraft etter siste tilsyn.
Uautorisert kopiering eller gjenbruk av all tekst og alle bilder i denne annonse/salgsoppgave er ikke tillatt.
Beliggenhet
Eiendommen har en sentral beliggenhet rett ved Ankerskogen. Her finner du både svømmehall med helse og velværeavdeling samt utendørs opplyste turstier, skiløyper, skøytebane, akebakke og frisbeegolfbane. Sentrum med Stortorget, kulturhuset, gågate og kino ligger kun en kort gåtur unna. Bussen finner du i nærheten, og Hamar togstasjon i sentrum har avgang til Oslo hver time.
Kort avstand til Mjøsa/Koigen med gode bademuligheter, og turmuligheter langs Mjøsa helt til Jessnes via Ridehusstranda og Domkirkeodden.
I området er det flere alternativer for barnehager. Greveløkkka barneskole (1.-7. trinn) ligger i umiddelbar nærhet. For de mellomste og eldste finner vi Ajer Ungdomsskole og Hamar katedralskole som også ligger i kort gangavstand fra eiendommen.
Adkomst
Ved å trykke på kartet i annonsen får du enkelt tilgang til en spesifisert reiserute fra ønsket startdestinasjon til den aktuelle boligen. Det vil bli skiltet med EIE visningsskilt ved fellesvisninger.
Økonomi/drift
Eiendomskatt
Eiendomsskatten er for inneværende år kr. 20 765,-
Eiendomsskatten kommer i tillegg til de kommunale avgiftene.
Kommunale avgifter
Kr. 65 182,-
Oppgitt beløp ble fakturert på eiendommen i 2024.
I disse inngår avløp, vann, renovasjon og feiing.
Det gjøres oppmerksom på at det kan forekomme variasjoner i avgiftene som følge av forbruk og eventuelle endringer i gebyrer/avgifter.
Faste løpende kostnader
Utover det som er nevnt under punktet kommunale avgifter påløper kostnader til for eksempel strøm, fyring/brensel, forsikring, innvendig/utvendig vedlikehold og abonnement til TV og Internett.
Offentlige forhold
Forpliktelser, rettigheter og servitutter
Eiendommens servitutter følger av dens grunnboksblad. For servitutter eldre enn fradelingsdato og eventuelle arealoppføringer som kan ha betydning for denne matrikkelenhet henvises det til hovedbruket / avgivereiendommen. For festenummer gjelder henvisningen servitutter eldre enn festekontrakten. Ta kontakt med megler for mer informasjon.
Følgende servitutt er tinglyst på eiendommen:
Dagboknr. 100992, tinglyst 14.03.1962. Eiere eller festere av tilstøtende tomter har rett til å føre vann- og kloakkledninger over tomten for å komme i forbindelse med offentlige vann- og kloakkledninger. Full gjerdeplikt mot gate, gangsti, friareal eller annen kommunal eiendom m.m.
Vei/vann/kloakk
Eiendommen har adkomst via offentlig vei.
Eiendommen er tilknyttet offentlig vann og avløp.
Regulering
Overordnet gjelder "Kommuneplanens arealdel 2018-2030" med planid.: 20170001.
Eiendommen er i planen avsatt til boligbebyggelse og ligger i hensynsone for radon, krav vedrørende infrastruktur, krav om felles planlegging og støy ( gul og rød sone).
Eiendommen omfattes også av "Kommunedelplan for kulturminner og kulturmiljøer innenfor byvekstgrensen" med planid.: 20110002.
Selv om eiendommen ligger innenfor plangrensen, så ligger ikke eiendommen innenfor hensynssoner eller bestemmelsesområder i selve planen.
Det foregår planlegging av ny kommuneplan med planid.: 2025008. Se kommunens hjemmeside for å følge planprosessen.
Kopi av planer fås ved henvendelse til megler. Vi oppfordrer interessenter til å gjøre seg kjent med disse.
Midlertidig brukstillatelse og ferdigattest
Eiendommen er oppført før 1998 og har ikke ferdigattest eller midlertidig brukstillatelse. Iht. plan- og bygningsloven § 21-10, utstedes ikke ferdigattest for bygg/endringer som ble omsøkt før 01.01.1998. Det vil dermed ikke være mulig å be om ferdigattest for slike tiltak. Dette betyr ikke at tiltak blir lovlige, men at saken ikke lenger kan avsluttes med ferdigattest.
Bygget har i nyere tid blitt innredet med leiligheter og bofelleskap. Det er mottatt tegninger av kommunen, men disse er ikke stemplet og det foreligger heller ikke ferdigattest. Evt. søknad om godkjenning av tiltaket i tråd med dagens bruk skjer for kjøpers regning og risiko. Kjøper overtar eiendommen slik den fremstår på visning. Kjøper overtar risikoen for evt. ulovlighetsoppfølging fra kommunens side.
Byggetegninger fra kommunen viser at fasaden er endret etter oppføring. Det er satt inn flere dører til underetasjen og satt opp et overbygg ifm. inngangen til en leilighet.
Fasadeendringer er iht. plan- og bygningsloven søknadspliktig. Evt. søknad om godkjenning av tiltaket i tråd med dagens bruk skjer for kjøpers regning og risiko. Kjøper overtar eiendommen slik den fremstår på visning, samt eventuell ulovlighetsoppfølging fra kommunen sin side. Kopi av tegninger og eventuelle attester kan fås ved henvendelse hos megler.
Kjøpsvilkår
Prisantydning, omkostninger og evt. fellesgjeld
Prisantydning kr 6 900 000,-
Omkostninger:
kr 172 500,00,- (Dokumentavgift)
kr 240,00,- (Pantattest kjøper)
kr 500,00,- (Tingl.gebyr pantedokument)
kr 500,00,- (Tingl.gebyr skjøte)
--------------------------------------------
kr 7 073 740,- (Omkostninger totalt ved prisantydning)
--------------------------------------------
kr 7 073 740,- (Totalpris inkl. omkostninger)
Overtagelse
Overtagelse etter avtale med selger.
Betalingsbetingelser
Fullstendig kjøpesum samt evt omkostninger skal være disponibelt på meglers klientkonto innen dato for overtagelse. Kjøpesummen skal innbetales fra norsk finansinstitusjon og/eller kjøpers konto i norsk finansinstitusjon. Eventuell egenkapital skal innbetales i én samlet betaling fra kjøpers egen konto i norsk finansinstitusjon.
Lovanvendelse
Generelle bestemmelser
Salgsoppgaven er basert på de opplysningene selger har gitt til megler, tilstandsrapport, opplysninger innhentet fra kommunen, Kartverket og andre tilgjengelige kilder. Det er viktig at kjøper setter seg grundig inn i alle salgsdokumentene, herunder salgsoppgave, tilstandsrapport og selgers egenerklæring. Kjøper anses kjent med forhold som er tydelig beskrevet i salgsdokumentene, og slike forhold kan ikke påberopes som mangler. Dette gjelder uavhengig av om kjøper har lest dokumentene. Alle interessenter oppfordres til å undersøke eiendommen nøye, gjerne sammen med fagkyndig før bud inngis. Kjøper
som velger å kjøpe usett kan ikke gjøre gjeldende som mangel noe han burde blitt kjent med ved undersøkelsen. Dersom det er behov for avklaringer, anbefaler vi at interessenter rådfører seg med
eiendomsmegler eller egne rådgivere før det legges inn bud. En eiendom/et lokale som har blitt brukt i en viss tid, har vanligvis blitt utsatt for slitasje og skader kan ha oppstått. Bruksslitasje og at det kan avdekkes forhold etter overtakelse som nødvendiggjør utbedringer, må kjøper forvente. Kjøper og selgers rettigheter og plikter reguleres av avtalen mellom partene, samt informasjonen som har vært tilgjengelig for kjøperen i forbindelse med handelen. Avtalen utfylles av avhendingsloven. Salget forutsettes gjennomført mellom profesjonelle parter. Der kjøper er en juridisk person, eller en fysisk person som hovedsakelig handler som ledd i næringsvirksomhet, er kjøpet ikke å anse som et forbrukerkjøp.
Avtalevilkår
Eiendommen har en mangel dersom den ikke er i samsvar med kravene som følger av avtalen. Eiendommen selges som den er , og selgers ansvar utover det konkret avtalte er da begrenset etter avhendingsloven § 3-9, første ledd andre setning. Avhendingsloven § 3-3 andre ledd fravikes, og eventuell uriktige angivelser av Eiendommenes arealer (utvendige og innvendige) kan ikke under noen omstendighet. Avhendingsloven § 4-19 (2) fravikes, slik at den endelige reklamasjonsfristen settes til 1 år etter overtakelse. Informasjon om kjøpers undersøkelsesplikt, herunder oppfordringen om å undersøke eiendommen nøye, gjelder også for kjøpere som ikke anses som forbrukere. Selger står fritt til å forkaste eller akseptere ethvert bud, og er for eksempel ikke forpliktet til å akseptere høyeste bud.
Personvern
Som interessent, budgiver og kjøper vil dine personopplysninger bli registrert og lagret. Som eiendomsmeglingsforetak har vi plikt til å oppbevare kontrakter og dokumenter i minst 10 år, jf. eiendomsmeglingsforskriften § 3-7 (3). Dette innebærer at mulighetene for å få slettet personopplysninger er begrenset. Du kan lese om vår behandling av personopplysninger i vår personvernerklæring på https://eie.no/eiendom/personvernerklaering
Hvitvasking
Eiendomsmegler er underlagt lov om hvitvasking og tilhørende forskrift. Hvitvaskingsloven pålegger megler å gjennomføre kundetiltak av både selger og kjøper. Dersom kjøper ikke bidrar til at megler får gjennomført kundetiltak, og dette medfører at transaksjonen ikke kan gjennomføres eller blir forsinket misligholder kjøper avtalen. Dette vil kunne gi selger rettigheter etter avhendingsloven, herunder rett til å heve kjøpet og gjennomføre dekningssalg for kjøpers regning dersom misligholdet er vesentlig. I tilfeller der det er selger som ikke bidrar til at megler får gjennomført løpende kundetiltak underveis i oppdraget må megler stanse gjennomføringen av transaksjonen. Selger vil i så fall ha misligholdt sine forpliktelser, og kjøper vil kunne ha krav mot selger etter avhendingslovens bestemmelser om mislighold og forsinkelse.
Dersom kundetiltak ikke lar seg gjennomføre vil EIE eiendomsmegling ikke kunne bistå med handelen eller foreta oppgjør.
Om oppdraget
Oppdragsnr: 72250407
Ansvarlig megler: Inger Helene Simensen
EIE Hamar
Hamar Eiendomsmegling AS
NO 916 933 568 MVA
Produkter eller tjenester som tilbys partene i forbindelse med oppdraget
Meglerforetaket og EIE-kjeden har flere samarbeidspartnere som tilbyr produkter eller tjenester i forbindelse med gjennomføring av megleroppdraget.
Dette gjelder følgende:
- Gjensidige forsikring tilbyr boligselger- og boligkjøperforsikring samt forsikringsløsninger til selger og kjøper
- Overo leverer oppgjørsskjema og overtakelsesprotokoll for EIE. Kunder tilbys ulike leverandører for strøm, alarm og bredbånd avhengig av tilbydere i kundens nærområde
- EIE AS (morselskap for franchisegiver i EIE-kjeden) og enkelte meglerkontor i EIE-kjeden har indirekte eierinteresser i Bomega AS (Hjem.no) i ulike eierkonstellasjoner gjennom EIE Hjem AS.
- EIE eiendomsmegling samarbeider med ulike bankforbindelser om formidling av finansielle tjenester. Meglerforetaket kan motta godtgjørelse for dette.
- Finit Deleie tilbyr deleie på enkelte objekter
- Secundo er en markedsplass for salg av bruktgjenstander
Les mer om våre samarbeid og investeringer her: eie.no/eiendom/eie-investerer
Nyttige lenker
Nærområdet
EIE eiendomsmegling Innlandet
Annonseinformasjon
| FINN-kode | 441431300 |
|---|---|
| Sist endret | 08. jan. 2026 05:02 |
| Referanse | 72250407 |
Annonsene kan være mangelfulle i forhold til lovpålagt opplysningsplikt. Før bindende avtale inngås oppfordres interessenter til å innhente komplett informasjon fra meglerforetaket, selger eller utleier.













