Bildegalleri

Kontorbygg og lager på egen tomt
Spydeberg - Lager 480 kvm og kontorbygg 290 kvm til salg på eiet tomt 3196 kvm
Nøkkelinfo
- Bruttoareal
- 770 m²
- Eieform
- Eier (Selveier)
- Areal
- 770 m²
- Tomteareal
- 3 196 m² (eiet)
Type lokale
Visning
Ta kontakt for å avtale visning.| Kort om eiendommen
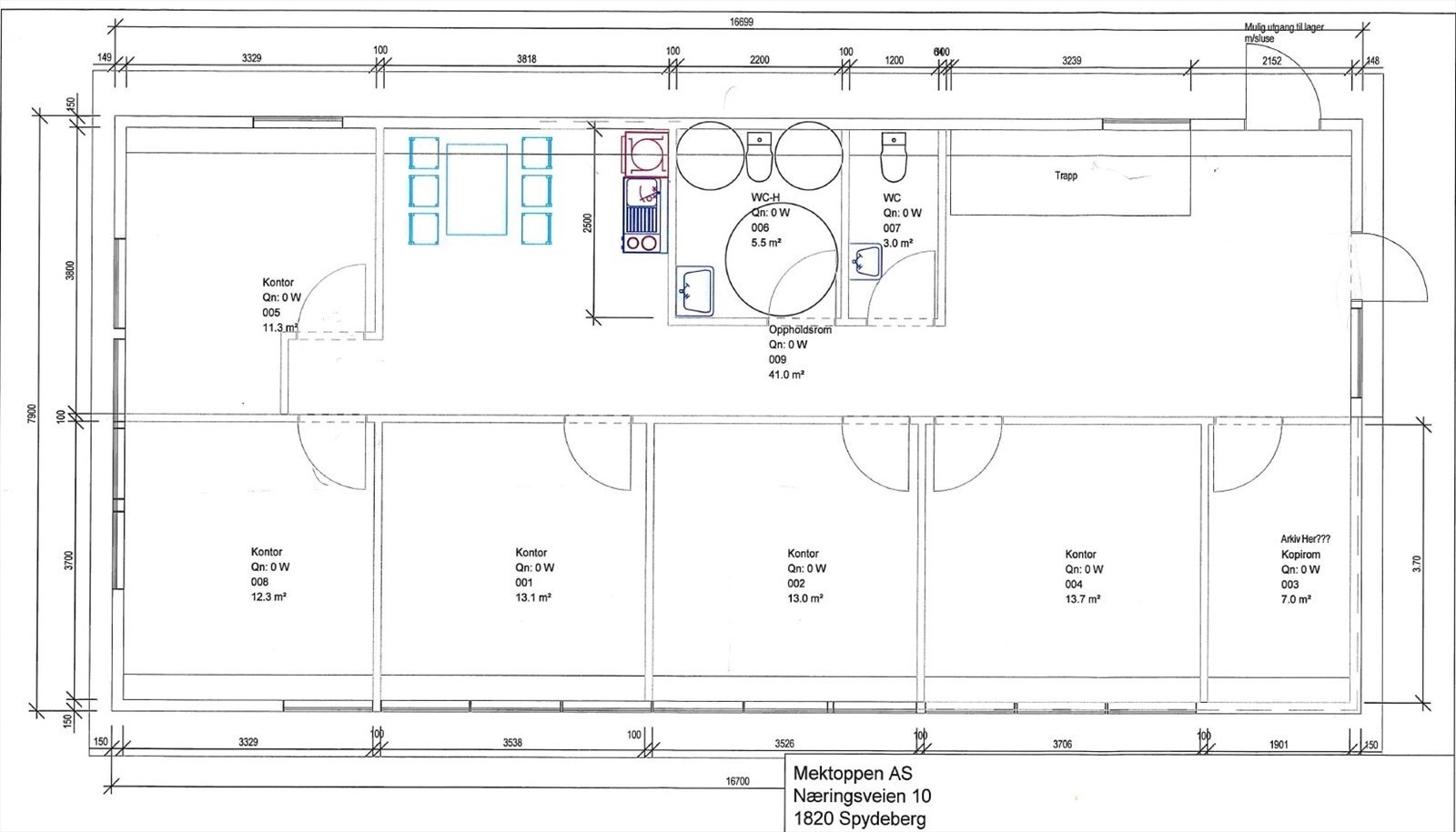
Lager og kontor på egen tomt. Kontorbygget ble opprinnelig oppført i 1979 som klubbhus for Spydeberg Motorklubb, senere utvidet i 2005. Hovedhuset har to plan. 1. etg. inneholder 5 store
kontorer, et kopi/printerrom, kjøkkenløsning med spiseplass, 1 WC og 1 HCWC. I underetasjen er det stort møterom med kjøkkenløsning, to toaletter, dusj, teknisk rom og verkstedlokale.
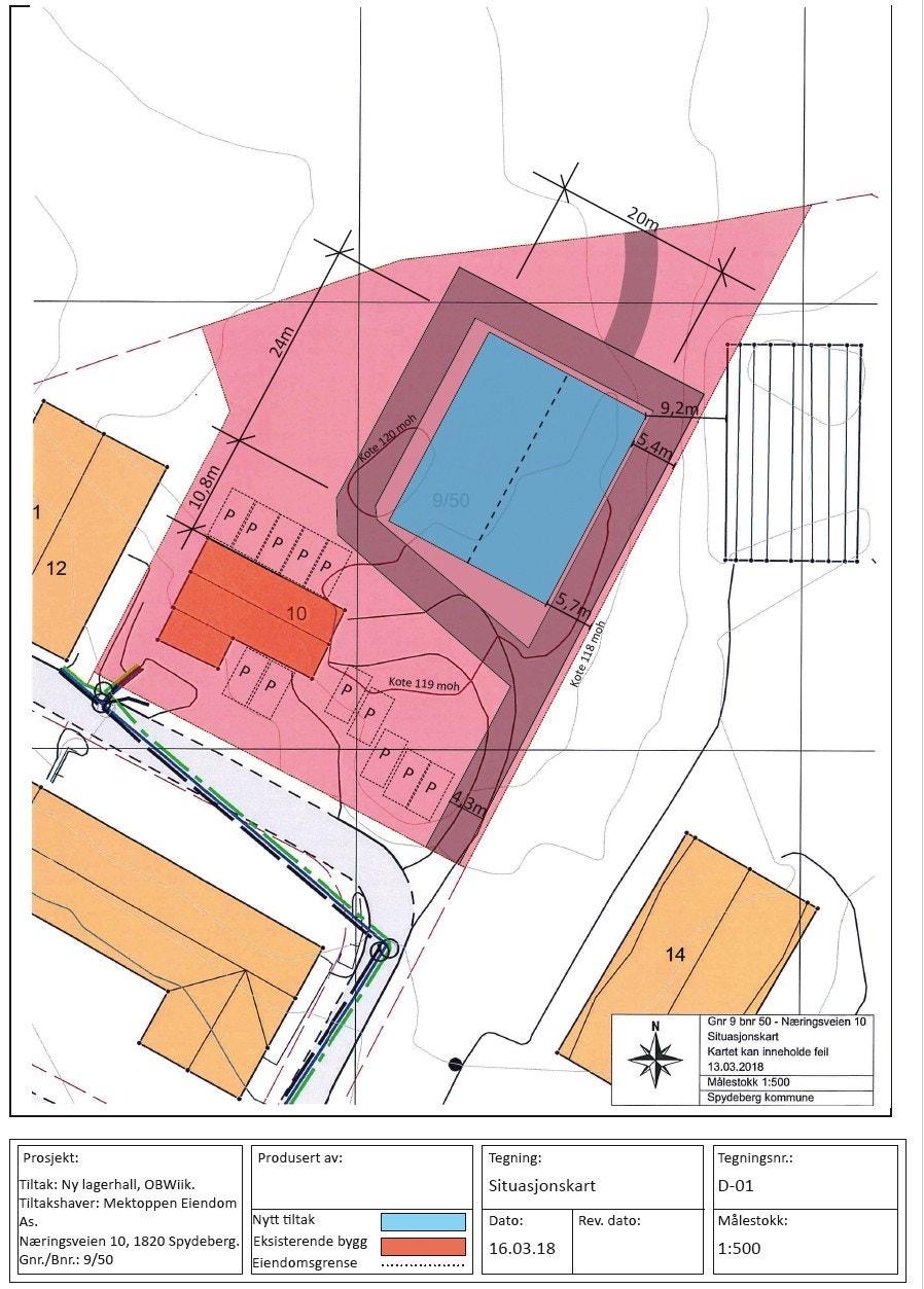
I 2018 ble det satt opp et nytt O.B. Wiik telt på 20 x 24 meter med støpt dekke innvendig. Teltet har isolert duk, men det fungerer som et kaldt lager i dag uten oppvarming. Gruset gårdsplass. Rikelig med parkering og utelagringsmuligheter på egen tomt. Det er montert 3 stk. ladere for elbil.
Selger har også følgende containere på tomten som kan selges til respektive priser;
1 stk. blå lagercontainer kr. 80.000,- eks mva.
3 stk. kontorcontainer kr 150.000,- eks.mva.pr stk.
Samlet kjøp av 3 stk. kontorcontainere, 1 stk. lagercontainer og trapp for kontorcontainere tilbys til kr. 495.000,- eks mva.
| Beliggenhet
Eiendommen er sentralt beliggende på Løvestad industrifelt kun få minutter fra Spydeberg sentrum. Veletablert næringspark med flere store lokale aktører. Området ligger sentralt i forhold til nye E18 og er spesielt godt egnet for industri-, import-, service- og håndverksbedrifter som ønsker god kommunikasjon. Kun 10 minutter til Askim og 45 minutter til Oslo.
| Adkomst
Eiendommen har adkomst via Næringsveien, se kart. Det er 4 km til påkjøringsrampe E18.
| Regulering
Eldre reguleringsplan Løvestad Industrifelt med formål Industri, og kommuneplanens arealdel 2024-2035 med formål Næringsvirksomhet.
| Standard
Lagerteltet fra 2018 fra O.B.Wiik 20 x 24 x 5 meter med stålramme og PVC belagt polyestervevet duk 900g/kvm. U-verdi 0,76, tilfredsstiller 3,5 kN/kvm snølast og 1,65 kN/kvm vindlast. Betongsåle og belysning. To leddporter og to persondører. Støpt dekke.
| Ventilasjon
Ventilasjon og kjøling i kontorbygget:
Ventilasjonsanlegget er levert av Stillesby Ventilasjon Service AS i 2018.
Balansert ventilasjon med luftmengde 2500m3/h plassert i kjeller. Kanalføring fordelt på loft med til luft til alle rom og avtrekk fra de fleste rom. Noe kanalføring i gangsone kjeller.
Lager får luft i vegg fra teknisk rom. Ventilasjonsaggregatet type Systemair med roterende gjenvinner 80%. Vannbårne batterier for varme og kjøling.
Varmeanlegget: Det er vannbåren gulvvarme i 1 etg. Det er montert en liten el kjele for gulvvarme og en for vannbårent varmebatteri i ventilasjonsaggregatet. Elektriske varmekabler i u etg.
Kjøleanlegg: Kjølemaskin for vannbårent kjølebatteri i ventilasjonsaggregat.
| Budgivning
Budgiver oppfordres til å benytte vedlagte budskjema. Budgiver er innforstått med at Selger når som helst kan avslå eller akseptere et hvilket som helst bud uten nærmere begrunnelse. Likeledes er bud bindende når det er kommet til Selgers kunnskap. Handelen er juridisk bindende for begge parter dersom budet aksepteres innen akseptfristen. Meglers kontraktsmal vil ligge til grunn for avtalen.
| Vedlegg til Salgsoppgaven
Målebrev
Situasjonsplan
Ledningsplan
Utskrift fra Eiendomsregisteret
Reguleringsbestemmelser
Grunnbok
Tinglyste avtaler
| Lovanvendelse
Oppdraget
Meglers oppdrag reguleres i henhold til Lov om eiendomsmegling av 29.06.2007 nr. 73. Fravikeligheten som framgår av lovens § 1-3 og forskriftens § 1-2 er anvendt for dette oppdraget.
Ved salg vil vår standard kjøpekontrakt bli benyttet. Lov om avhending av fast eiendom vil bare i begrenset utstrekning kunne påberopes av Kjøper. Kontrakten kan gjennomgås etter nærmere avtale med megler. Dersom Kjøper ønsker å reservere seg mot noen av bestemmelsene i kjøpekontrakten må dette uttrykkelig fremkomme av budet.
Eiendommen
Eiendommen og dens tilbehør overtas "som den/det er", jfr. avhendingsloven § 3-9.
Kjøper fraskriver seg, så langt gjeldende rett tillater det, enhver rett til å gjøre krav gjeldende mot selger som følge av at salgsobjektet ikke er som det skal være, i medhold av avhendingsloven § 3-7, 3-8 og 3-9, andre regler om ansvar for uriktig og manglende opplysninger og ethvert annet lovfestet eller ulovfestet grunnlag, herunder regler om ansvar for uriktige og manglende opplysninger etter avtaleloven.
Avhendingsloven § 4-19 (2) fravikes også, slik at den endelige reklamasjonsfristen settes til 18 måneder etter overtakelse.
Selger kan ikke gjøres erstatningsansvarlig for indirekte tap, jf. prinsippene i avhendingsloven § 7-1 (2). Selgers samlede ansvar til å betale erstatning og/eller prisavslag ved mangler er begrenset oppad til et beløp som utgjør 10 % av kjøpesummen. Dog slik at kjøper ikke kan fremme krav dersom det samlede kravet er mindre enn 3 % av kjøpesummen. I vurderingen av om det samlede krav overstiger dette minstebeløpet, skal det ses bort fra enkeltkrav under 1 % av kjøpesummen.
Det forutsettes at interessenter gjennomgår alle opplysninger i prospektet grundig, foretar egne undersøkelser herunder besiktigelse av Eiendommen og-, dersom interessenten ikke anser seg selv som tilstrekkelig bygningskyndig, undersøker eiendommen nøye sammen med egen bygningskyndig representant. Kjøper kan ikke fremme noen form for krav overfor Selger tilknyttet forhold Kjøper ble kjent med eller burde blitt kjent med i forbindelse med sin gjennomgåelse av Eiendommen
Alle opplysninger i denne salgsoppgaven med vedlegg er tilrettelagt av megleren etter beste skjønn, men megleren tar ingen ansvar for at informasjonen er riktig eller fullstendig. Kjøper må på egen hånd forsikre seg om at opplysningene er riktige og fullstendige. Megleren fraskriver seg ethvert ansvar for tap som følge av opplysninger som er misvisende, feilaktig eller ufullstendig, samt tap som på annen måte måtte oppstå som følge av kjøpet.
Selger er ikke kjent med ufullstendigheter eller feil i rapporter e.l. som er utarbeidet av tredjemann.
Selger gir ingen garantier i forhold til praktiske eller økonomiske konsekvenser for Kjøper opp mot forurensing i grunn, forhold av arkeologisk interesse eller grunnforholdene på eiendommen i sin alminnelighet.
Det gjøres oppmerksom på regler om avskrivning av faste tekniske installasjoner i avskrivbare bygninger. Partene har selv ansvaret for å sette seg inn i regelverket og konsekvensene av dette. Megler er uten ansvar for konsekvenser reglene påfører partene.
Pro & contra:
Partene må selv foreta avregning av kommunale avgifter, felleskostnader samt eventuelle feste-/leieinntekter og lignende i forbindelse med oppgjøret. Megler foretar ingen pro & contra pr. overtagelsesdato.
Bud og budskjema
Budgiver oppfordres til å benytte vedlagte budskjema.
Budgiver er innforstått med at Selger når som helst kan avslå eller akseptere et hvilket som helst bud uten nærmere begrunnelse. Likeledes er bud bindende når det er kommet til Selgers kunnskap. Handelen er juridisk bindende for begge parter dersom budet aksepteres innen akseptfristen. Meglers kontraktsmal vil ligge til grunn for avtalen.
Salgsbetingelsene for øvrig
Megler er forsikret via Norges Eiendomsmeglerforbunds avtale med tillegg hos Tryg Forsikring.
Formuesansvarsforsikringen utgjør til sammen kr 65 millioner pr formidling pr skadetilfelle. Utvidet forsikringssum dekkes av kjøper.
Dokumentavgift og tinglysningsgebyrer
Ved kjøp av eiendommen må kjøper i tillegg betale tinglysingsgebyr og dokumentavgift. Dette utgjør et tillegg på ca 2,5% av kjøpesummen.
Hvitvaskingsregelverk
I henhold til Lov av 6. mars 2009 nr. 11 om tiltak mot hvitvasking og terrorfinansiering (Hvitvaskingsloven) er megler pliktig å gjennomføre kundetiltak av både oppdragsgiver og kjøper.
Dette innebærer blant annet plikt for meglerforetaket til å bekrefte identiteten til kjøper på grunnlag av gyldig legitimasjon. Samt plikt til å foreta kontroll av eventuelle reelle rettighetshavere. Der kjøper opptrer i henhold til fullmakt må også fullmaktsgivers identitet bekreftes på grunnlag av gyldig legitimasjon. Kundetiltak av kjøper, skal senest skje på kontraktsmøtet.
Dersom budgiver opptrer i henhold til fullmakt, må fullmakten fremlegges samtidig som bud inngis. Dersom kjøper er en juridisk person, plikter kjøper å fylle ut og returnere egne kundekontrollskjemaer før kontraktsmøtet. Firmaattest eller fullmakt må fremlegges samtidig som det inngis bud.
Dersom kundetiltak ikke kan gjennomføres kan ikke meglerforetaket bistå med gjennomføring av handelen, herunder ikke foreta oppgjør. Meglerforetaket er videre forpliktet til å rapportere mistenkelige transaksjoner til Økokrim. Med mistenkelig transaksjon menes transaksjon som mistenkes å involvere utbytte fra straffbar handling eller som skjer som ledd i terrorfinansiering. Manglende mulighet for kundetiltak kan også være et forhold som gjør transaksjonen mistenkelig. Det kan ikke gjøres ansvar gjeldende motmeglerforetaket som følge av at meglerforetaket overholder sine plikter etter Hvitvaskingsloven.
| Hvitvaskingsloven
Hvitvaskingsregelverk
I henhold til Lov av 6. mars 2009 nr. 11 om tiltak mot hvitvasking og terrorfinansiering (Hvitvaskingsloven) er megler pliktig å gjennomføre kundetiltak av både oppdragsgiver og kjøper.
Dette innebærer blant annet plikt for meglerforetaket til å bekrefte identiteten til kjøper på grunnlag av gyldig legitimasjon. Samt plikt til å foreta kontroll av eventuelle reelle rettighetshavere. Der kjøper opptrer i henhold til fullmakt må også fullmaktsgivers identitet bekreftes på grunnlag av gyldig legitimasjon. Kundetiltak av kjøper, skal senest skje på kontraktsmøtet.
Dersom budgiver opptrer i henhold til fullmakt, må fullmakten fremlegges samtidig som bud inngis. Dersom kjøper er en juridisk person, plikter kjøper å fylle ut og returnere egne kundekontrollskjemaer før kontraktsmøtet. Firmaattest eller fullmakt må fremlegges samtidig som det inngis bud.
Dersom kundetiltak ikke kan gjennomføres kan ikke meglerforetaket bistå med gjennomføring av handelen, herunder ikke foreta oppgjør. Meglerforetaket er videre forpliktet til å rapportere mistenkelige transaksjoner til Økokrim. Med mistenkelig transaksjon menes transaksjon som mistenkes å involvere utbytte fra straffbar handling eller som skjer som ledd i terrorfinansiering. Manglende mulighet for kundetiltak kan også være et forhold som gjør transaksjonen mistenkelig. Det kan ikke gjøres ansvar gjeldende motmeglerforetaket som følge av at meglerforetaket overholder sine plikter etter Hvitvaskingsloven.
Nærområdet
Metra Næringsmegling AS
Annonseinformasjon
| FINN-kode | 441180103 |
|---|---|
| Sist endret | 12. des. 2025 13:36 |
| Referanse | MTRA3.25107 |
Annonsene kan være mangelfulle i forhold til lovpålagt opplysningsplikt. Før bindende avtale inngås oppfordres interessenter til å innhente komplett informasjon fra meglerforetaket, selger eller utleier.























